回應赤道極端氣候的通風策略
坐落於亞洲金融樞紐新加坡,名為「空氣三階」公寓(Three Stages for Air Apartment)的私人住宅案,由深諳熱帶氣候的Pencil Office建築師事務所精心擘劃。面對赤道地區高溫潮濕的極端環境,居住者往往陷入享受熱帶風情與躲避烈日暴雨的矛盾之中。
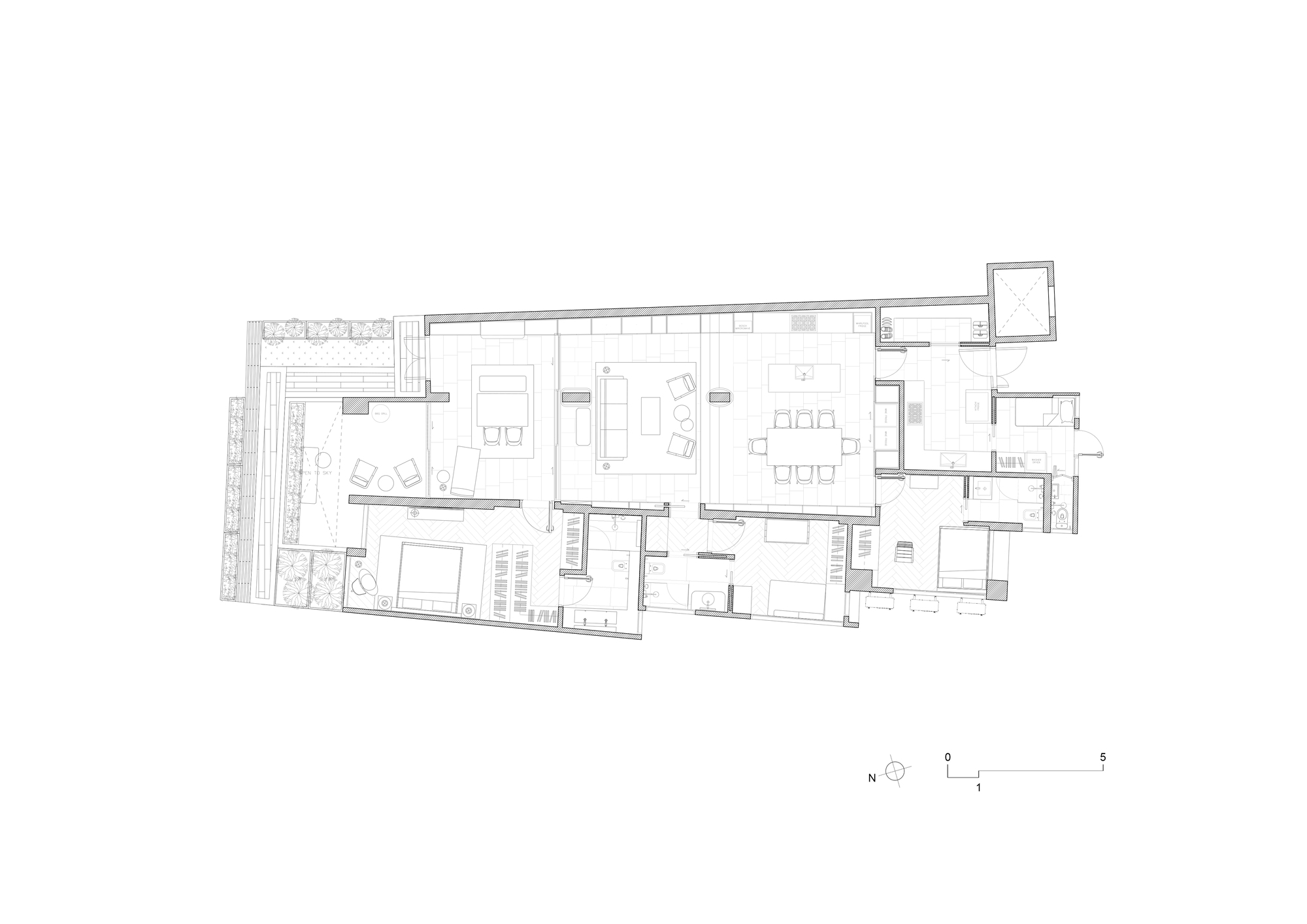
為解決前述痛點,設計團隊在249平方米的輻射狀底層公寓兩端,規劃出雙向開口的通風路徑;一端朝向戶外門廊敞開,另一端則連接公寓大樓內部中庭,引導自然微風橫向穿梭於起居場域。若未來有增建需求,此一平面架構亦能提供良好擴展性。如此規劃徹底顛覆傳統都會住宅封閉格局,讓新鮮空氣成為調節微氣候的天然介質。


木質框架界定的三段式氣流層次
提取赤道特有的微風與氣流作為無形建材,設計團隊將年輕家庭的生活動線與氣候細微變化緊密扣合,大刀闊斧地將主要生活空間切割為三個層次分明的量體。
被溫潤木材包覆的門型框架,在無形中柔和地劃分出三種截然不同的空氣場域,帶出循序漸進的感官體驗。每個階段皆配備量身訂做的天花板構造,使原本肉眼無法察覺的空氣品質與流動狀態,轉化為具體可見的建築表情。
居住者在穿梭於不同量體之間時,能真切感受溫度與濕度的細微落差,宛如漫步於室內森林,突顯建築專業扎實控制物理環境的底蘊。



沖孔鋁板拱頂與低平天花板對話
深入公寓後段的第三空間,廚房區域採用高度較低的平坦天花板設計,營造出適合家人親密互動的溫馨尺度,並保留較涼爽的人工溫控環境,供日常家務勞動使用。將視線轉向靠近戶外的前端,天花板造型深受膨脹氣流啟發,轉化為帶有多孔特性的拱頂結構。
兩座拱頂採用具備漸層效果的沖孔鋁板構築而成,猶如一層細緻濾網,將赤道地區刺眼的陽光,轉化為柔和朦朧的漫射光線。光影在金屬網格的獨特紋理間跳躍,宛如為空間披上薄紗,反映出設計者精細掌握自然光線,極度適合在此工作或放鬆休憩。


混合人工空調與自然風的中介區
位於中央地帶的第二量體,扮演著承先啟後的關鍵樞紐,負責混合冷氣與未經處理的自然空氣,並調和兩側的光線與視野。為調節三段式空間內的氣候體驗,設計團隊導入多項輔助裝置。
隱藏於漸層金屬屏幕後方的空調設備,能在午後突如其來的極端高溫中快速降溫,冷空氣與自然通風交織,形成混合式的涼爽氣流,確保身心舒適。機器設備不再是突兀的工業產品,而是隱身於建築皮層下的微氣候調節器,說明科技與自然共存的住宅新趨勢。


極簡材質襯托出的無形空間主角
可活動的木製百葉屏幕被廣泛應用於橫截外部至中央的光線與氣流動線,在提供必要隱私遮擋的同時,更具備優異的聲學過濾效果,有效阻絕都會區嘈雜的車水馬龍。柔軟的編織布料濾網進一步調節光影與聲波,孕育出細膩且經過嚴密建構的室內氛圍。
整體堅持極簡的建材色調與一絲不苟的細節要求,結合天花板、屏幕與門扇等純粹的建築語彙,成功讓變幻莫測的氣候躍升為生活場域的絕對主角。居住空間不再只是遮風避雨的硬殼,而是能與自然環境共呼吸的有機生命體,讓人看出設計團隊化繁為簡的深厚功力與關懷居住者身心健康的初衷。


建築圖


作品資訊
作品名稱:Three Stages for Air Apartment
作品位置:新加坡 Singapore
作品類型:公寓、住宅、私人住宅、室內設計、新加坡、新加坡建築、新加坡建築師
設計單位:Pencil Office
總樓地板面積:249 平方米
竣工:2021年
攝影:Ong Chan Hao
營造廠:Ngai Chin Construction Pte Ltd
主持設計師:Erik L’Heureux FAIA