跨越半世紀的家族傳承與發酵建築論
位於橫濱市的新橫濱食料品中心,歷史可追溯至1967年,那是東海道新幹線新橫濱站開通後不久的年代。建築師的祖父為了服務當時湧入此地的新居民,集結了肉舖、蔬果店等個人商店,建立了這座結合居住與商業的設施。
面對建築老舊化的必然命運,當代的經營者與設計團隊並未選擇許多開發商慣用的「全拆重建」手段,而是提出了一種更為細膩且具生物學隱喻的「發酵」概念。這並非單純的保存,而是一種透過減築、新築、移轉、改修等連續步驟,讓建築在時間的長河中緩慢轉化、熟成的過程。採取動態保存策略,保留了原有店鋪的營業生機與社區情感,同時注入了新的空間機能,使建築如同發酵食品般,隨著時間推移而產生更豐富的風味與層次。





巨型結構與微型聚落的尺度辯證
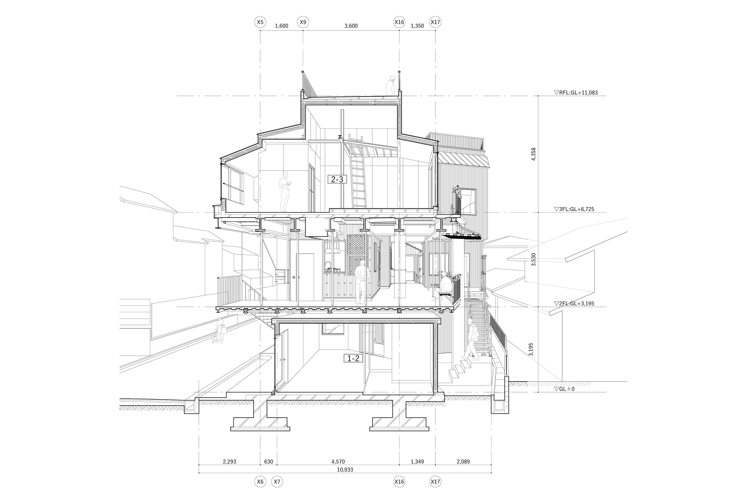
在建築的結構邏輯上,設計團隊展現了對都市尺度與人體尺度的精準掌握。他們在三樓的高度設定了一層人工地盤,並由八根500mm見方的巨型鋼柱支撐,形成了一個穩固的「巨型結構」。
巨大的骨架彷彿是拔地而起的樹幹,賦予了建築不可撼動的存在感。然而,依附在這個巨型骨架之上的,卻是一群尺度親切、彷彿周邊兩層樓木造住宅般的微型量體。
這些小尺度的空間單元以一種看似隨機卻經過精密計算的方式堆疊、簇擁,形成了強烈的視覺對比。這種「大」與「小」的並置,不僅在結構上實現了自由平面的可能性,更在視覺上重現了都市中摩天大樓與巷弄住宅共存的獨特地景,為使用者創造出豐富的空間體驗。





懸吊結構釋放的垂直自由度與立面韻律
由於二樓的樓板採用了懸吊結構,建築師得以擺脫傳統樑柱對樓層高度的嚴格限制。這使得二樓的空間規劃展現出極大的自由度,相對於平坦的共用走廊,各個區塊的樓地板可以自由地上升400mm或下降200mm。
在垂直向度上微小變化,創造出了一種充滿節奏感的空間序列,打破了集合住宅常見的單調水平性。與此同時,一樓的屋頂坡度也隨之調整,以呼應二樓的樓板變化。這種內在空間邏輯的外化,直接形塑了建築立面的獨特表情,使得一樓與二樓的立面呈現出分節、錯落的視覺效果,彷彿是一首凝固的音樂,在街道上演奏著關於居住與生活的變奏曲。









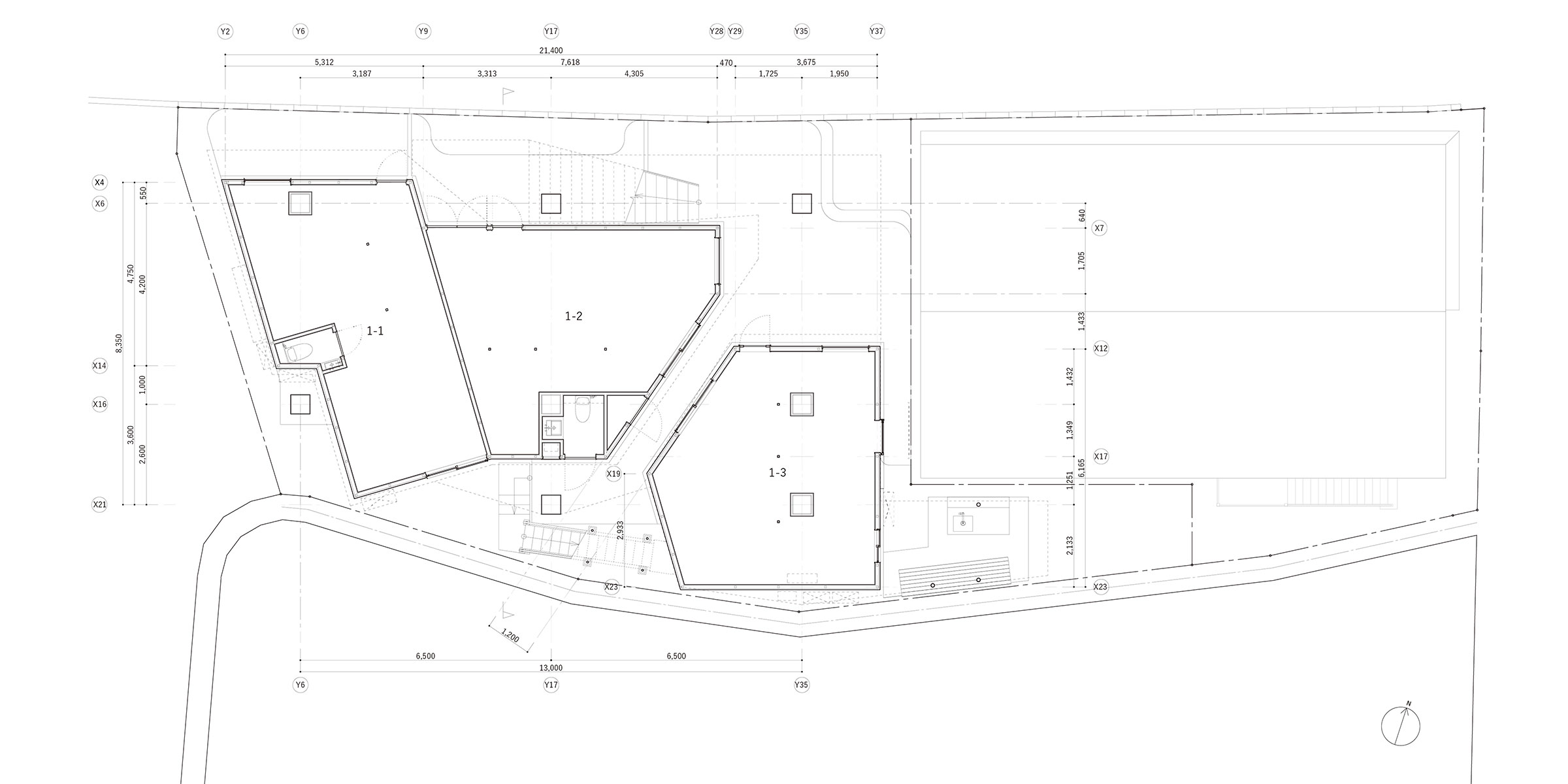
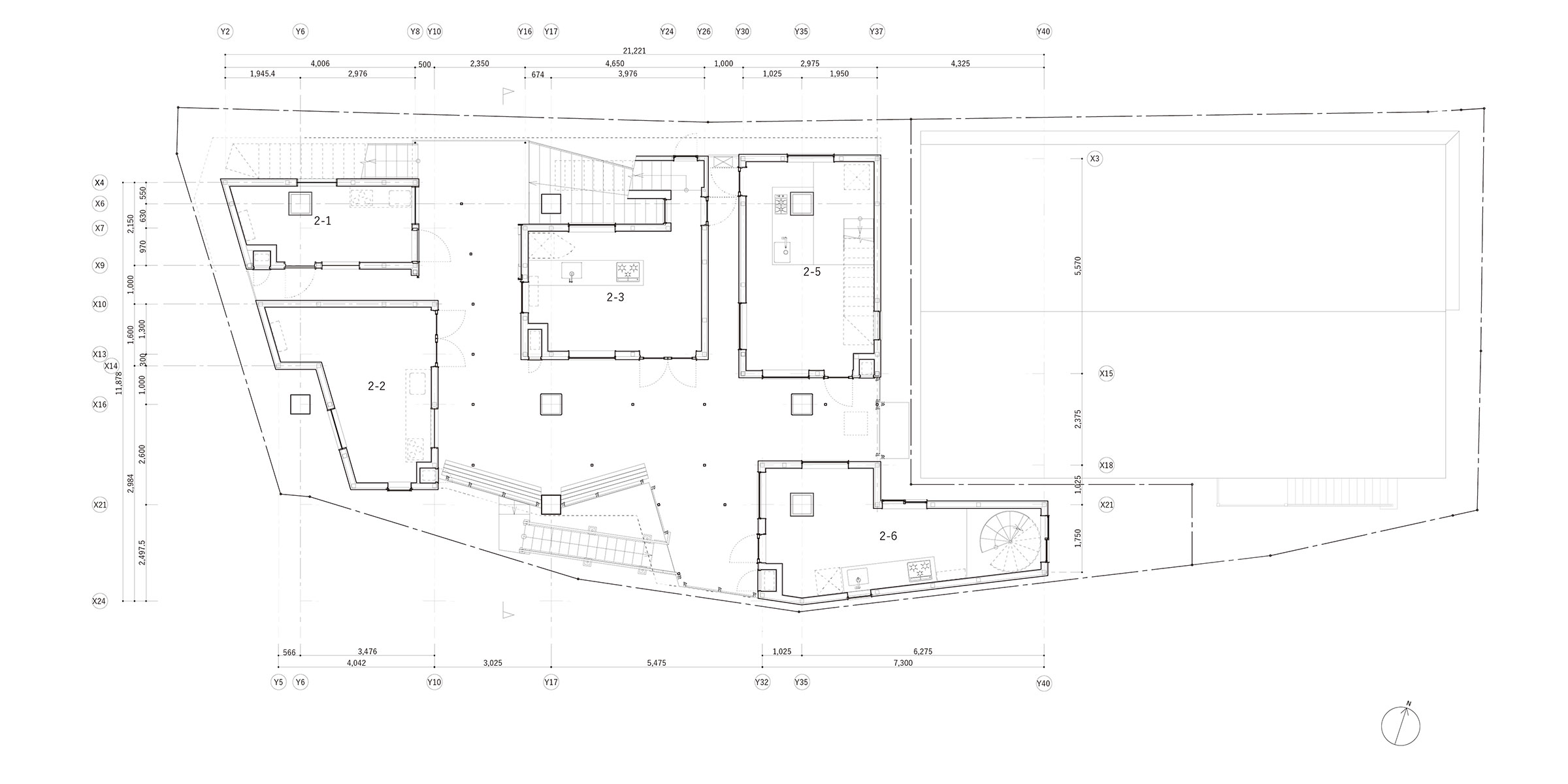
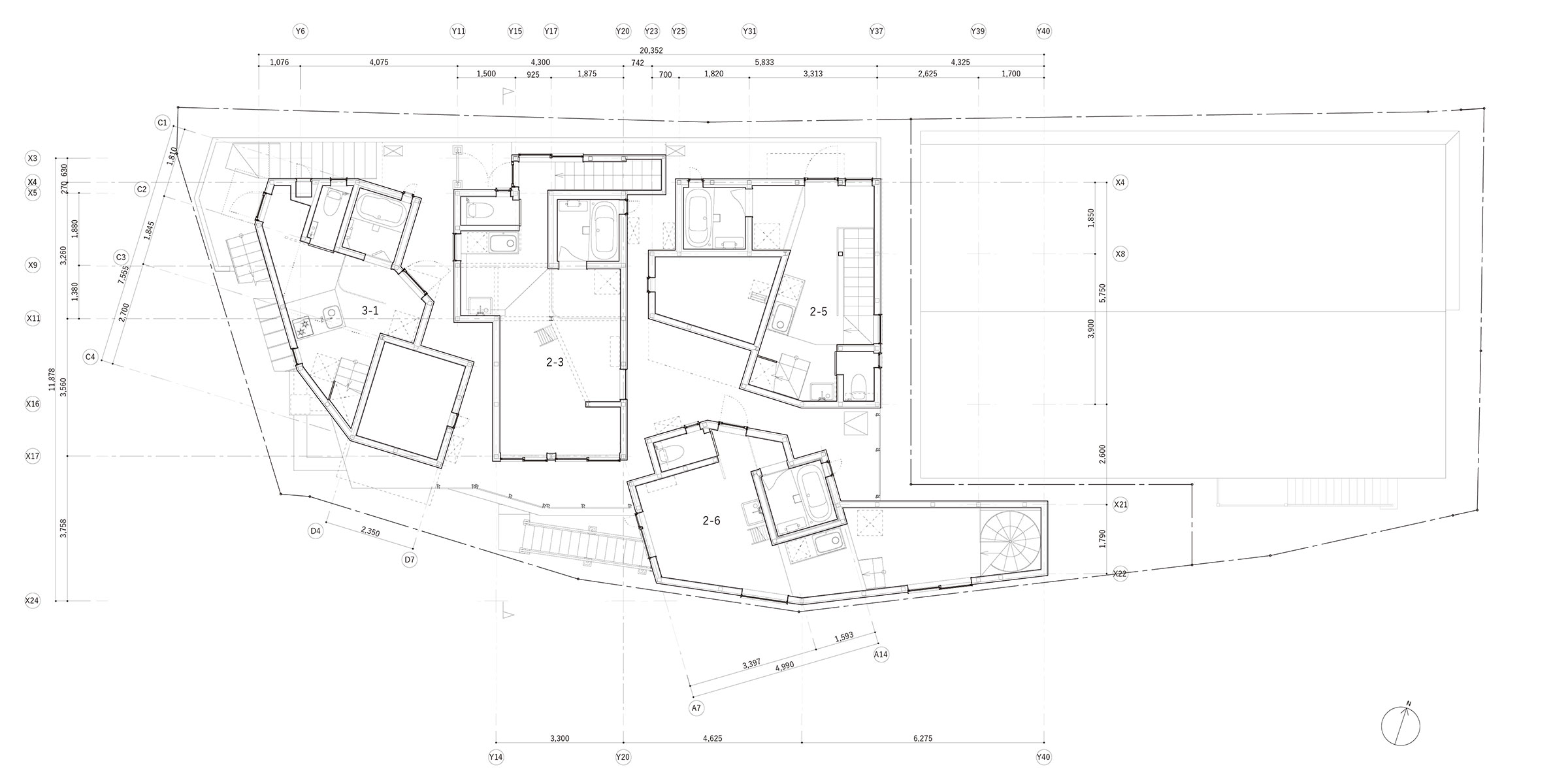
篠原町谷戶地形的建築轉譯與空間隱喻
新橫濱食料品中心所在的篠原町,屬於典型的「谷戶」(Yato)地形,這是一種由丘陵與谷地交織而成的特殊地貌,特徵是高低差顯著且隘路縱橫。建築師敏銳地捕捉到了這一在地特質,並將其轉譯為建築內部的空間語言。
透過錯層的設計、視線的穿透以及路徑的迂迴,建築內部重現了彷彿行走在谷戶聚落中的空間感。各個獨立的店鋪與住戶單元在平面上相互重疊、錯位,彼此之間留出了如同「路地」(Roji)般的縫隙。這些縫隙不僅是物理上的通道,更是光線、風與視線流動的媒介,讓使用者在建築內部移動時,能夠時刻感受到一種取自地形的場所精神。








弱連結下的鄰里關係重塑與邊界模糊
在空間社會學的層面上,該項目試圖建立一種「自律同時弱連結」的新型態鄰里關係。傳統的住商混合建築往往將商業與居住嚴格分層,導致兩者互不往來。然而,新橫濱食料品中心打破了這道僵硬的界線。一樓至三樓混合了店鋪、住宅與共用空間,不同機能的單元在剖面上交錯配置。開口部的設計刻意避免了直接的對視,而是透過角度的偏移與高度的落差,維持了適度的距離感。這種設計既保障了居住者的隱私,又保留了與鄰人互動的可能性。住戶與訪客在這些模糊的邊界中不期而遇,形成了一種由空間引導的、自然而然的社交氛圍,重塑了現代都市中逐漸淡薄的鄰里情感。




過度分節作為喚醒使用者主體性的手段
建築師提出了「過度表達」(Over-Articulation)做為核心設計哲學,具體表現在對材料與構造細節的極度外露與表現上。例如,外牆的波浪鋼板省略了底層的木條,直接將無數的螺絲釘依據構造需求打在鋼板上,形成了某種充滿工業感與手工痕跡的表層紋理。室內的石膏板與夾板也毫不掩飾地露出了固定用的螺絲。
這種做法並非粗糙,而是一種有意識的策略,旨在喚醒使用者的主體性。這些外露的構造如同留給使用者的「輔助線」與「把手」,暗示著這個空間是可以被觸摸、被修改、被參與的。它鼓勵住戶利用這些痕跡進行二次創作,讓建築隨著生活的使用而不斷演化。



經濟與情感並重的舊建築再生策略
在營建成本日益高漲的當下,如何平衡經濟效益與情感保存成為都市更新的一大難題。新橫濱食料品中心採取了將基地分割,保留一半舊建築進行改修,另一半興建新建築的策略。這不僅成功爭取到了銀行融資,更在財務上實現了預算的有效控制與收益的提升。新築棟在設計上刻意以一種擁抱的姿態緊貼著既存棟,兩者在形態與材料上既有對比又有呼應。新建築採用了與舊建築相近的尺度感,並將舊有的瓦片轉化為地面的碎石,透過這些細膩的物質轉換,新舊建築在時間軸上達成了和解與對話,示範了一種兼顧現實與理想的開發模式。


在地食堂概念下的公共性回歸
面對現代社會核家庭化與孤獨感的問題,建築師提出了「在地食堂」(Local Dining Kitchen, LDK)的概念,試圖將私有的廚房與餐桌延伸為社區的公共資產。一樓、二樓的開放空間以及屋頂露台,被定義為居民與訪客共享食物的場所。這裡不僅歡迎購買外帶食物的顧客,也開放給居民在此享用午餐,甚至鼓勵鄰近的長者帶著自製餐點來此聚會。這種將「食」的行為公共化的嘗試,呼應了藤原辰史所提倡的「緣食」概念,旨在透過食物的分享,重建社區的連結與歸屬感,讓建築成為滋養人際關係的溫暖容器。

跨越造與用界線的建築師營運模式
ウミネコアーキ 在此作品所扮演的角色遠遠超越了傳統的設計者。他們從初期的事業企劃開始,便深度參與其中,甚至跨足不動產仲介與設施的長期營運。建築師將自己的事務所設在其中一角,親身居住並使用這個空間。這種「自己設計、自己營運、自己居住」的模式,打破了「造」與「用」之間的隔閡。透過實際的生活體驗,建築師能夠即時回饋並調整空間的使用方式,確保設計理念能夠在日常生活中真正落地生根。這種實踐展現了建築師對於社會責任的深刻反思,也為建築專業的未來發展拓展了新的可能性。

邁向未來的動態保存與生活風景
新橫濱食料品中心的落成並非終點,而是一個持續演化的起點。正如「發酵」的比喻,這座建築將隨著時間的推移、店鋪的更迭以及住戶的介入,不斷產生新的風味與面貌。它不再是一座被凍結的紀念碑,而是一個有機的、會呼吸的生命體。建築師透過精準的空間操作與深厚的人文關懷,成功地將一座老舊的市場轉化為凝聚社區情感的新據點。這座建築證明了,在快速變遷的都市中,透過對記憶的尊重與對未來的想像,我們依然能夠創造出既具有時代精神,又充滿人情溫度的生活風景。
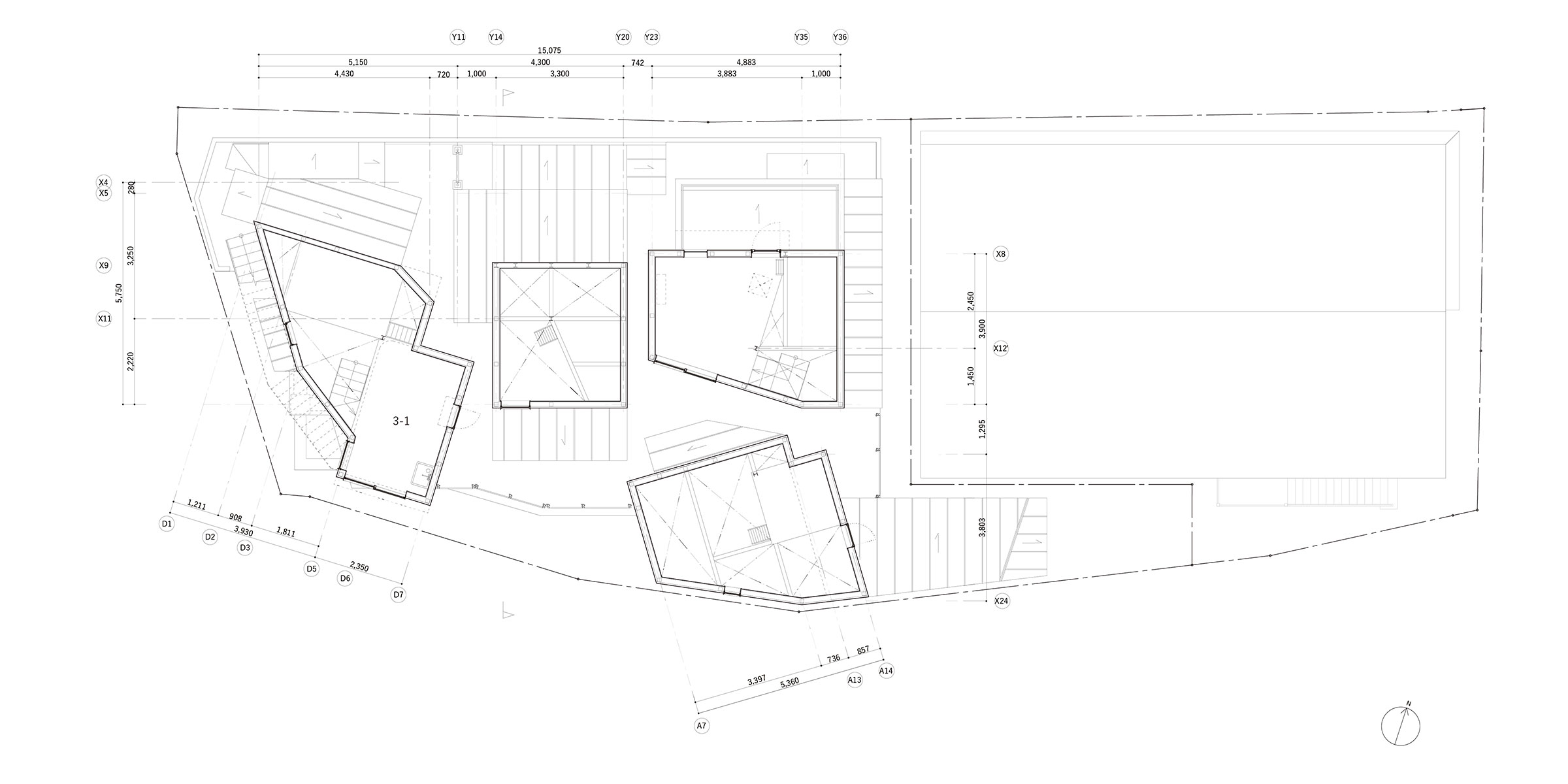
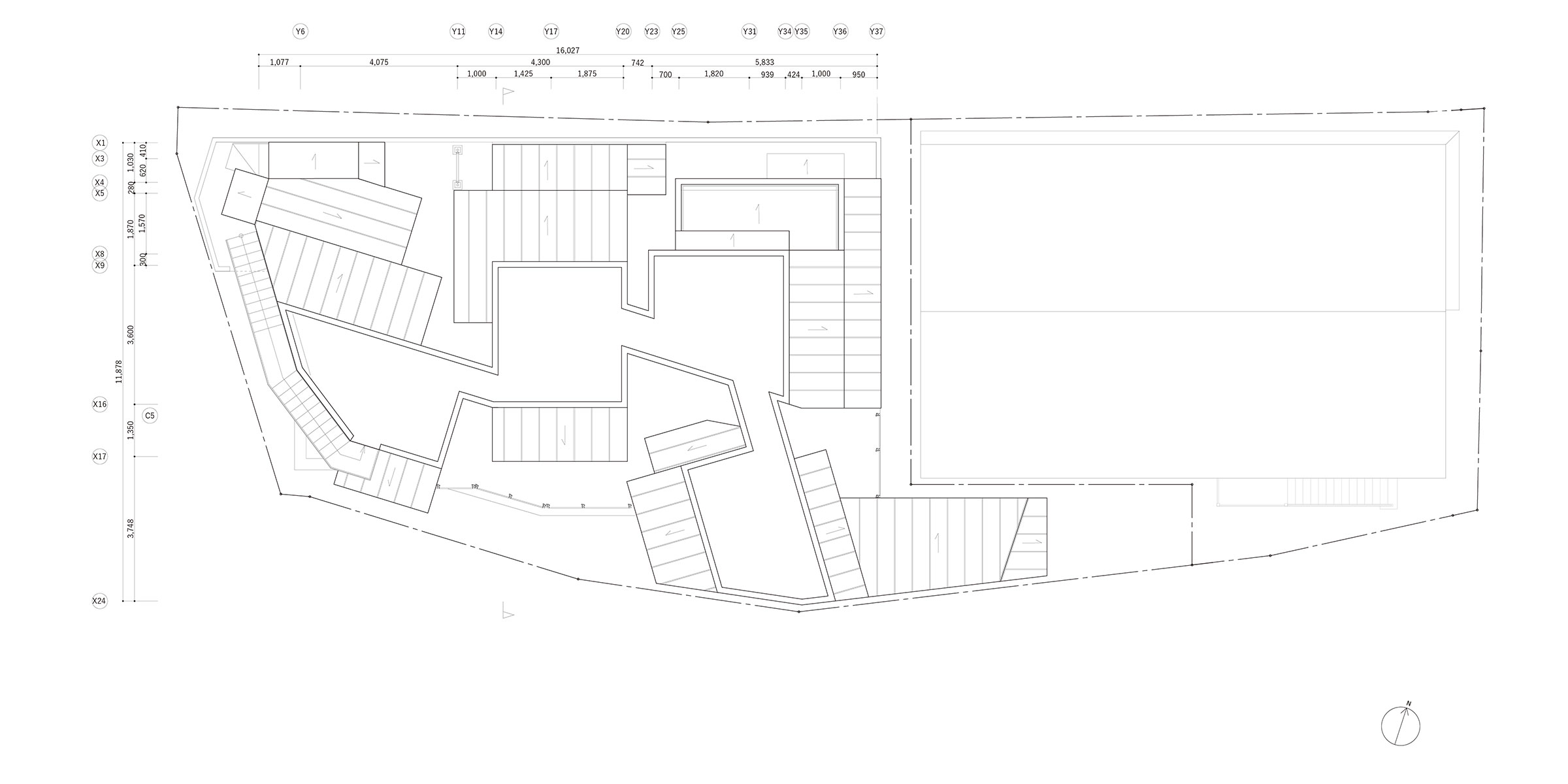
建築圖






作品資訊
作品名稱:新横浜食料品センター (Shin-Yokohama Grocery Center)
作品位置:日本神奈川縣橫濱市 Kanagawa, Yokohama, Japan
作品類型:集合住宅、商業設施、日本、日本建築、日本建築師、鋼構
企劃、不動產、營運:ウミネコアーキ (Umineko Archi)
設計單位:ウミネコアーキ (Umineko Archi)
基地面積:224.04 平方米
建築面積:155.69 平方米
總樓地板面積:367.06 平方米
竣工:2025年6月
攝影:Eichi Tano
設計團隊:若林拓哉、石毛龍、伊藤祐介
結構設計:yasuhirokaneda STRUCTURE (金田泰裕、青山健太、木村友美)
景觀設計:AOI LANDSCAPE DESIGN (吉田葵、高石竜介)
設備設計:NoMaDoS (高橋良輔)
平面設計:ワニデザイン (Wani Design)
插畫:イスナデザイン (Isuna Design)
不動產支援:きんつぎ (野々垣賢人)
營造廠:關口工務店 (中田隆、松尾健太郎)
給排水衛生與空調通風設備工程:小林設備工業 (小林伸彦、岡部憲嗣)
電氣設備工程:高橋電氣工業所 (高橋敏、井上宏之)
瓦斯設備工程:United Engineering (鳴海真次、梅沢賢二)
鋼構工程:矢田部鐵工所 (矢田部元嗣、滝沢公雄)
屋頂與外牆工程:齊藤興業 (佐藤真、佐藤伶音)
金屬門窗與玻璃工程:老川工業 (飯塚浩司、內野喜晴)
防水工程:Motive (櫻井弘樹、濱野景司)
木作與內裝工程:有留內裝 (有留辰男、有留公哉)
木製門窗工程:新井建具 (新井章友)
塗裝工程:日下部塗裝店 (日下部修一、豐島兼好)
地坪內裝工程:Interior Suzuki (鈴木治、佐伯昌弘)
住宅設備機器工程:奧山管材機器 (高橋和海、橫山聖水)
金屬工程:森鐵工業 (森田和雄)
戶外景觀工程:鳶小池工業 (小池勇二)
耐火包覆工程:東成 (川上敦之、打込伸一)