顛覆傳統農舍刻板印象的混合建築實驗
在立陶宛(Lithuania)克萊佩達區(Klaipėda District)的Utriai村,一座新落成的建築正悄然挑戰著人們對農用建築的既定認知。由Architectural Bureau G.Natkevičius & Partners 設計的 Utriai Storage Barn,不單是機械存放的倉庫,更是隱藏在金屬盔甲下的溫馨客房。
在當代建築日益模糊功能界線的趨勢下,建築師提出:為何農用建築不能兼具美感?為何倉庫不能成為客人的舒適庇護所?透過混合模式,這座被稱為「jauja」(穀倉)的建築,融合了實用性與舒適度,為鄉村建築的可能性寫下了新的註腳。



靈活分區與人機共存的空間策略
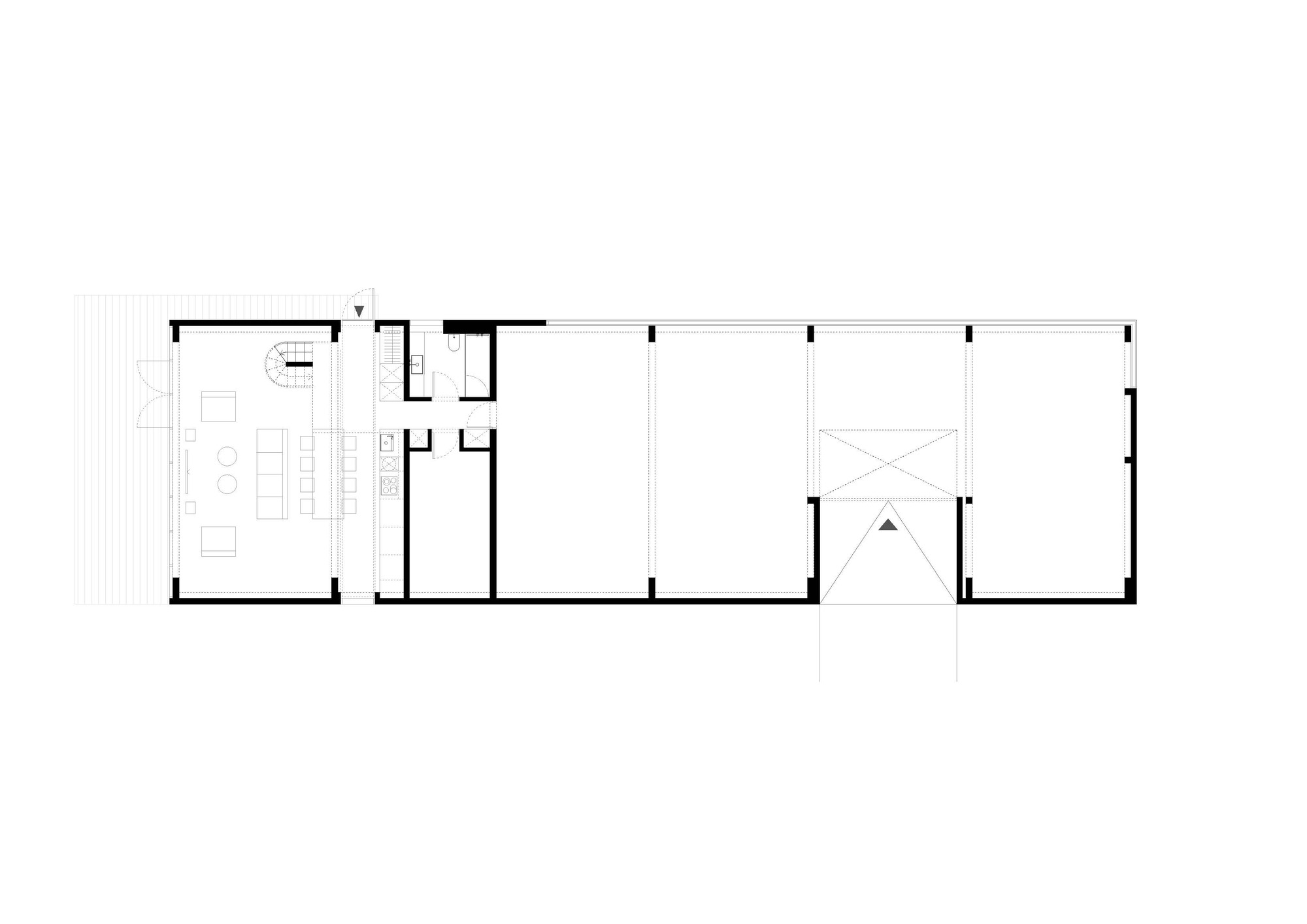
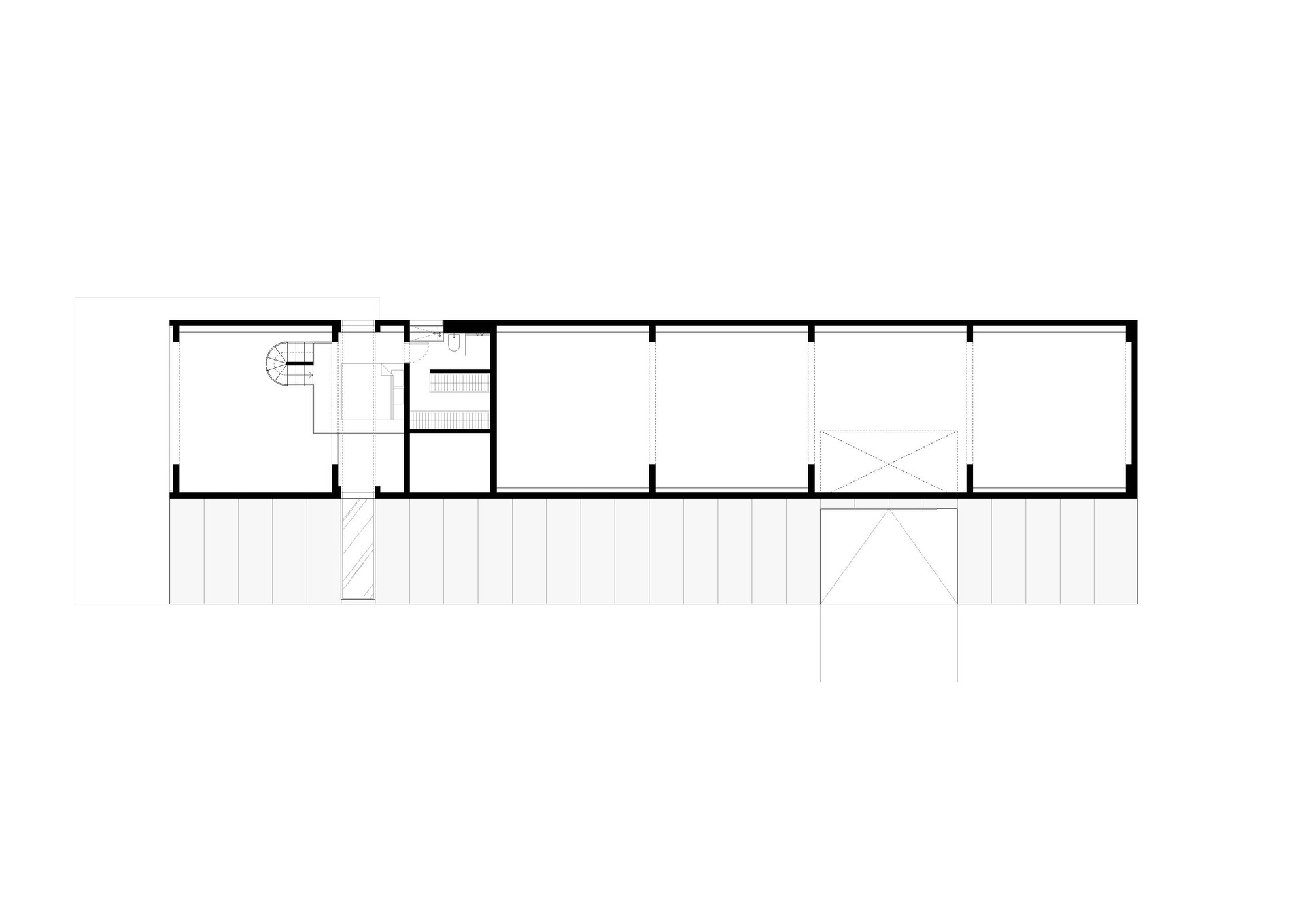
核心的建築密碼在於「靈活性」。平面結構清晰地劃分為兩個區域,雖然共享同一個屋簷,卻服務於截然不同的生活場景。較大的量體被規劃為「潔淨」的倉儲空間,擁有挑高、開闊的格局,並透過寬大的分節式車庫門進出,完美適應大型農業機械的操作與存放需求。
然而,建築的西側則展現了完全不同的人性化尺度。這裡設有獨立入口,通往一系列超越傳統倉庫概念的空間。透過精心設計的輔助房間與夾層樓板,創造出一個真正的通用空間。得益於高品質的工程解決方案與充足的自然光線,這個區域可以瞬間轉換功能:白天是充滿活力的工作坊或辦公室,夜晚則變身為設備齊全的客房,提供客人飽覽自然美景的住宿體驗。





膠合木與拋光混凝土交織的精緻工業風
為了營造出農用建築中罕見的溫馨感,建築團隊(由專案負責人T. Jūras與建築師K. Lodaitė領軍)刻意避開了廉價的裝修方案。室內性格由外露的 GLT 膠合木構(GL28h等級)所形塑。巨大的木構架為空間增添了韻律感與溫暖度,柔化了拋光混凝土地板帶來的工業冷冽感。這種材料的二重奏創造出一種類似Loft的美學風格——既耐用到足以應對粗重的農務工作,又精緻到足以讓人放鬆身心,享受片刻的寧靜。





光線演繹與單坡楔形量體的外部防禦
對於一座不僅服務於物體,更服務於人的建築來說,自然光是至關重要的。西立面的大型玻璃展示窗框住了夕陽的餘暉,而最引人注目的元素——一個從屋頂過渡到北立面的垂直天窗——確保了建築最深處也能獲得充足的照明。
使得夾層感覺不再像是陰暗的閣樓,而是一個寬敞的觀景台。從外部看,建築保持著神秘與封閉的姿態。單坡、楔形的量體被一層均勻的「皮膚」所包覆——不鏽鋼色的三明治板。這是一個建築外殼:強壯、耐用、低維護,保護著內部豐富多樣的生活。35度的屋頂傾斜角不僅形成了一個充滿動感的剪影,更為未來的能源自主(太陽能發電)做好了準備。






建築圖







作品資訊
作品名稱:Utriai Storage Barn
作品位置:立陶宛 Utriai, Lithuania
作品類型:GLT、木構、私人住宅、住宅、辦公室、立陶宛、立陶宛建築、立陶宛建築師
設計單位:Architectural Bureau G.Natkevicius & Partners
總樓地板面積:206 平方米
竣工:2025年
攝影:Lukas Mykolaitis
主持建築師:K. Lodaitė, G. Natkevicius
室內設計:K. Lodaitė
專案經理:K. Lodaitė, T. Jūras
結構工程師:M. Kasiulevičius, R. Paleckis