慕尼黑工業遺址新生契機:Werksviertel-Mitte未來辦公想像
在德國經濟火車頭慕尼黑的心臟地帶,一片經歷工業榮光、如今正經歷都市更新鉅變的沃土──Werksviertel-Mitte地區,瓦克辦公大樓(Wacker Chemie AG)拔地而起。此案由北歐建築勁旅C.F. Møller 建築師事務所操刀,佔地一萬五千七百平方公尺,不僅是單純的辦公場所,更意圖成為一處集辦公、文化、娛樂及商業零售於一身的複合樞紐。
建築師深思熟慮,企望打破建築與都市的隔閡,運用高度透明的玻璃帷幕與開放的姿態,強化內部空間與外部環境的視覺連通與實質互動,如同一位張開雙臂迎接鄰里的主人,以可滲透、富於生氣且引人入勝的姿態,積極回應周遭的都市紋理與社群脈動。
大樓外觀最引人注目的,莫過於那巨大而統一的網格結構,以及一道道充滿律動感的曲線簽名,這別出心裁的設計語彙,靈感正是來自於該區過往縱橫交錯的鐵道軌跡,巧妙地將歷史記憶轉化為建築表情,並朝向主要的公共步行區域敞開,彷彿記述著此地區的蛻變故事。



地面層的都市交響曲:激發鄰里互動的商業與社交動能
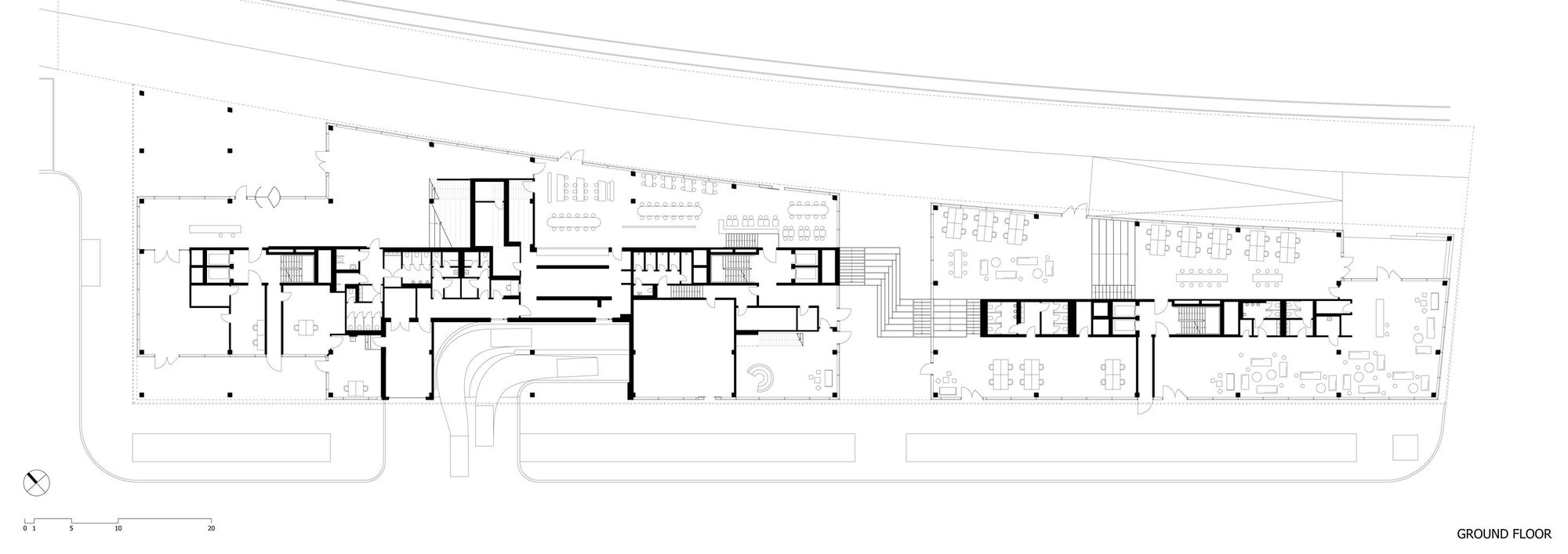
為了讓瓦克辦公大樓能真正融入周邊鄰里的日常生活,成為促進都市活動的催化劑,設計團隊煞費苦心規劃其地面層。此一層級的空間安排極具巧思,佈滿琳瑯滿目的零售店鋪機會、可依需求調整的彈性辦公單元,以及滿足新創與自由工作者需求的共享辦公設施。所有機能均被安置於挑高達兩層樓的宏偉空間內,感覺格外開闊。建築量體的中央,更規劃一處對公眾開放的拱廊空間,引導人流穿梭其間,創造更多不期而遇的交流可能。
建築師特意在建築體的各個面向都設置透明且易於辨識的入口,大幅強化建物內部多元活動與外部都市空間之間的連結性,歡迎城市居民與訪客進入探索。以高度開放性與穿透性的設計策略,有助於將瓦克辦公大樓塑造為慕尼黑都市景觀中的新亮點與目的地,提供商業契機,更貢獻寶貴的公共交流場域,可謂匠心獨運。



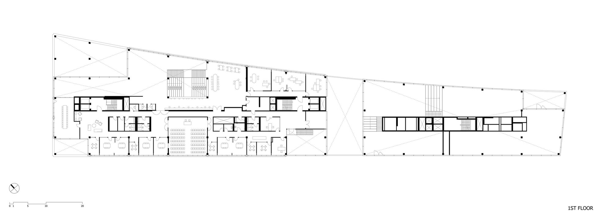
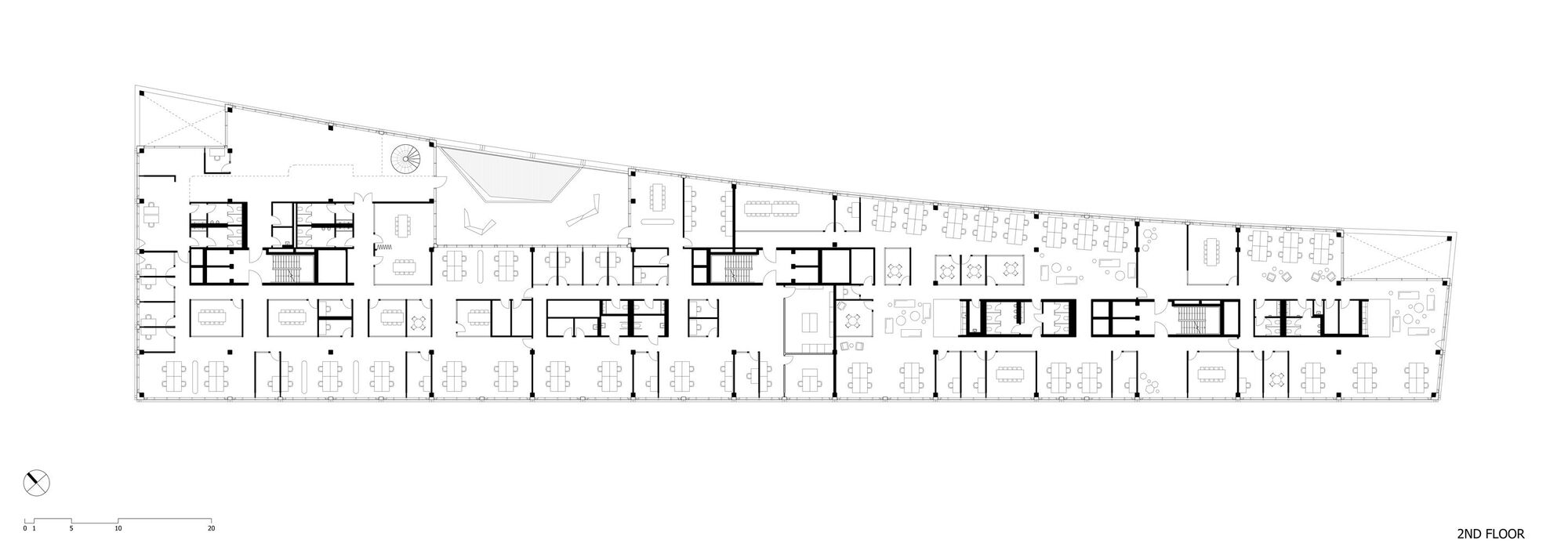
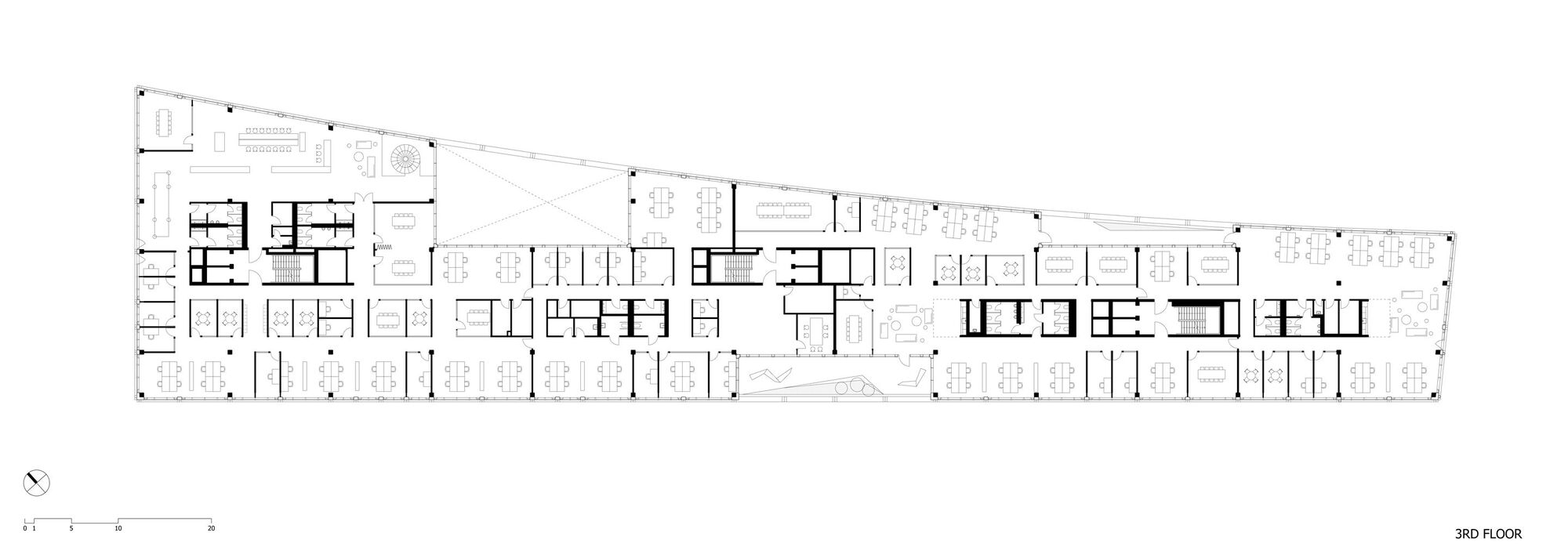
錯落有致的辦公綠洲:創新工作空間與空中庭院
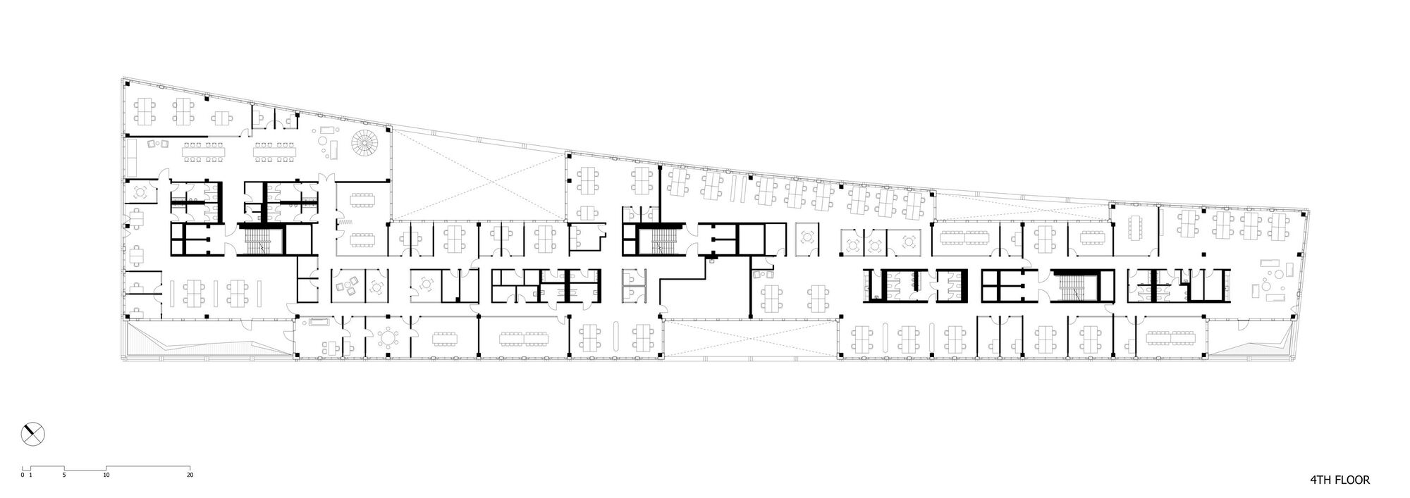
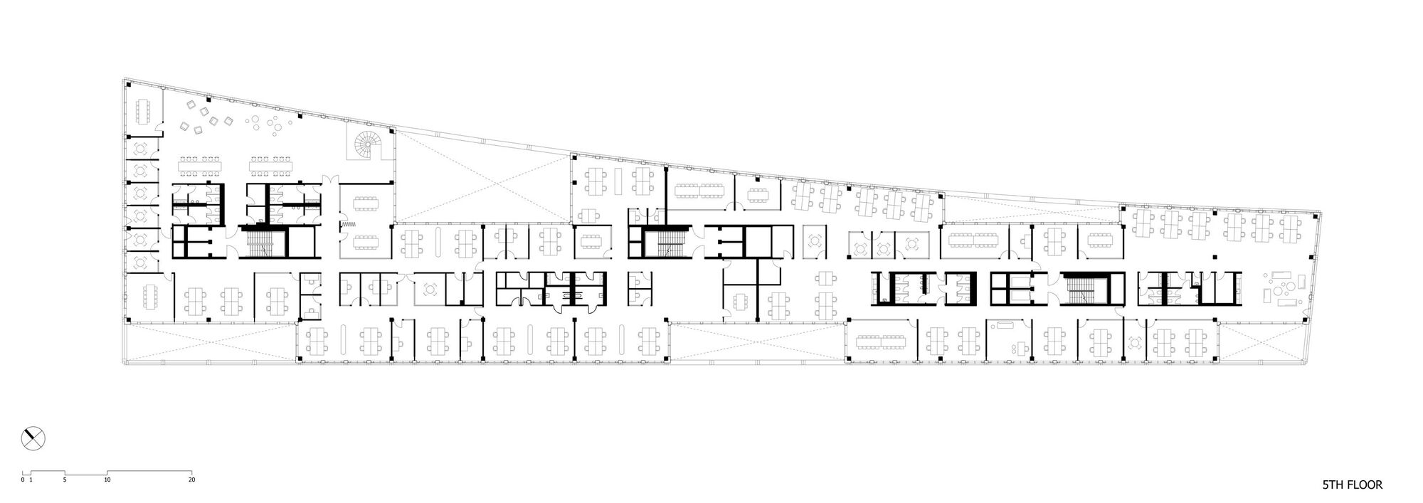
瓦克辦公大樓的上半部,由四層精心佈局的辦公樓層構成,環繞著一種呈現Z字形曲折變化的平面組態。如此配置突破傳統方正格局的單調,創造出更富變化與趣味的空間序列。在這些樓層中,設計師規劃了寬敞且具高度使用彈性的開放式辦公景觀區,鼓勵知識分享與協作。這些辦公區域形成數個內部迴圈動線,巧妙地環繞著一系列分佈於不同樓層高度的外部綠化庭院。
這些庭院如同鑲嵌在建築軀體內的綠寶石,成為員工休憩、交流的場所。在垂直交通方面,內部設有三個核心筒,高效串聯各個辦公樓層,並向下連通至建築的基座與地面層,確保人流順暢。這些綠意盎然的庭院不僅是視覺焦點,更具有重要的環境效益,扮演將充足的自然光線引入寬闊樓板深處的關鍵角色,光明几淨的環境有助提升工作效率與身心健康。







永續營建與環境共生:實踐綠建築的智慧與承諾
瓦克辦公大樓的設計充分展現對環境永續性的高度重視。前述提及的多處空中庭院,除了引入日光,對改善建築整體的微氣候條件亦有顯著貢獻。透過植栽的蒸散作用與遮蔭效果,這些綠色空間有助於調節周遭溫度與濕度,並對緩解都市熱島效應產生積極作用,在密集的城市開發中堪稱可貴。
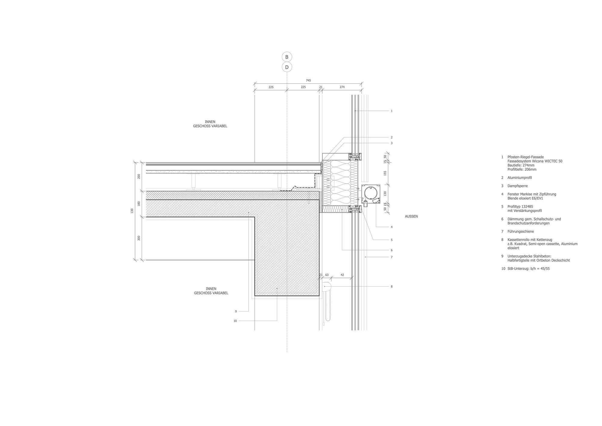
在營建策略上,此建築的整體網格結構,無論是內部構件或外部立面元件,均大量採用預鑄工法製造。這種工廠預先生產、現場組裝的方式,不僅能有效縮短現場施工時程、降低營建成本,達到精打細算之效,更能確保構件品質。
立面設計亦別具巧思,透過如同浮雕般的凹凸變化,為大面積的開窗區域提供被動式遮陽效果,減少日照負荷。在建材選用上,更是優先考量環保屬性,積極導入再生混凝土與再生鋁等永續材料,身體力行節能減碳的目標,足見其未雨綢繆的環保意識。



















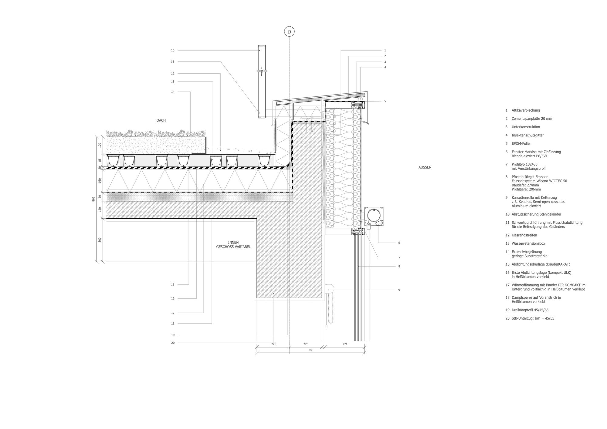
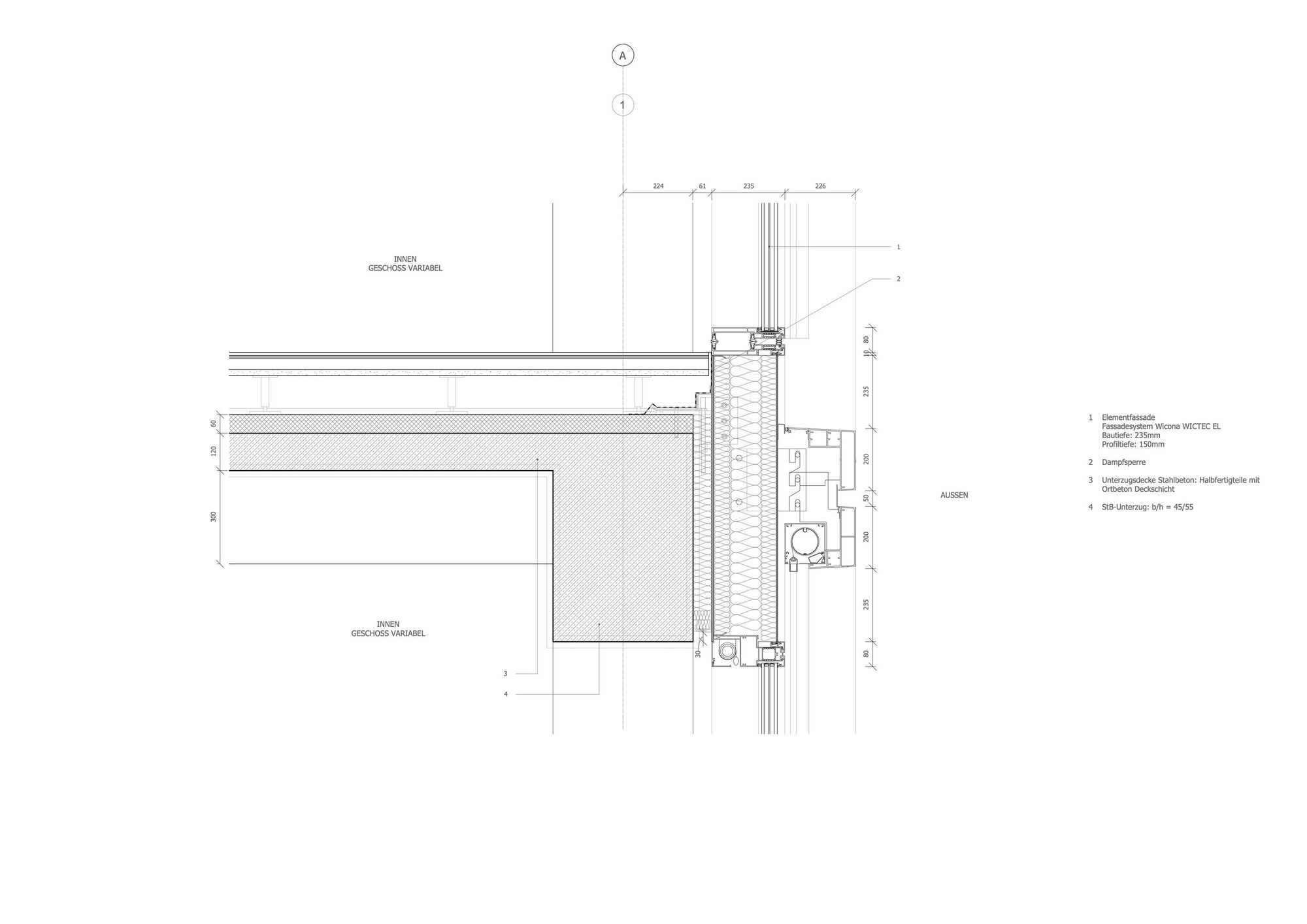
建築圖


























作品資訊
作品名稱:Wacker Chemie AG
作品位置:德國慕尼黑 Werksviertel-Mitte Gisela-Stein-Straße 1, 81671 München, Germany
作品類型:辦公大樓、辦公建築、商業建築、德國建築、丹麥建築師、公共空間、永續建築
業主:PATRIZIA Deutschland GmbH
設計單位:C.F. Møller
總樓地板面積:15700 平方米
竣工:2024年
攝影:Mark Hadden
設計團隊:C.F. Møller Architects
合作夥伴:Nordland Arkitekter, CL MAP GmbH
工程顧問:WB-I Wolf+Bogatic PartG mbB, IBF Ingenieurgesellschaft mbH
景觀設計:Jühling & partner, Landschaftsarchitekten bdla mbB
營造廠:Köster GmbH