俞挺主持的Wutopia Lab為旭輝集團設計的二酉書店,於2021年5月1日對外開放,僅僅三個星期,這家新書店就成為了大眾點評黃浦區書店音像店排行榜第一。成為 Jean Nouvel 設計的網紅建築恆基旭輝天地裡的網紅書店。
看得見的山和看不見的山
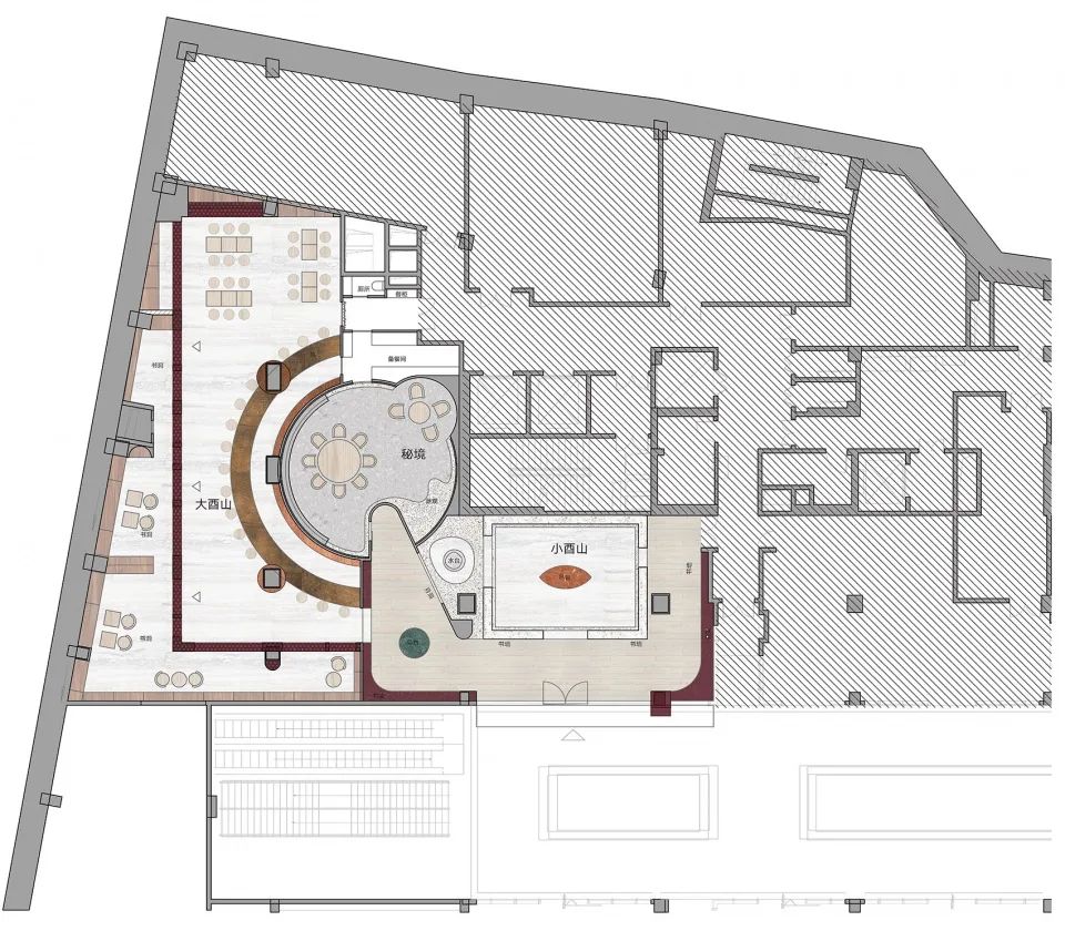
二酉書店得名於「大酉山」和「小酉山」,大小酉山是學者為避免秦始皇焚書而保存典籍的地點,後來變成中國文化傳承的象徵,「二酉」作為設計概念的線索,俞挺決定將兩座抽象並象徵大小酉山加以空間化後植入書店。

二酉的背景故事
書店的名字和理念得自於旭輝天地總經理林峰的創意偶得,二酉書店「書為山、詩為樹、花為綴、茗為香、酒為伴」的理念,是整間書店的精神所在,二酉加一點即為酒,這是愛書人同時也是愛酒人的林峰,將概念和人生串聯起來的神來之筆。


二酉書店的小酉山
於是設計變得簡單直接,當讀者進門的時候,會看到一個白色的山,這是白色人造石製作的書架。光線從石壁裡面透出來,這時她又像一個燈山,它就是二酉書店的小酉山。看得見的小酉山是二酉書店的新書精品書推薦區。





二酉書店的大酉山
二酉書店的「大酉山」沒有鮮明的外觀視覺形象,讀者需要穿過書架和隔牆來到書店的主要空間,其實是來到了大酉山的內部。
大酉山因其大,而看不見,正所謂不識真面目,只緣在山中。

俞挺把彼此聯繫貫穿的山洞抽象成人們習慣的空間體驗,而非真實地模仿其型態。
連續不斷的酒紅色沖孔鋁板形成的洞口,以及書架形成的各種可以坐下來的角落和空間,其實就是大酉山裡的環環相扣的山洞。讀者就在這個山洞中發現等待揭曉的秘籍。

對洞穴的類型學提煉,幫助建築師利用組織書架,隔斷,商品以及書本擺設而在不大的空間中形成了極豐富的空間體驗,做到了處處有驚喜,步步有景。



現代中國書店反映傳統性格
「步步有景」是中國傳統園林設計的基本手法,當讀者意識到步步有景時,不由得會將大小酉山的體驗和遊園彼此聯繫,於是人們會明白,在店外看到透明玻璃後閃閃發光的白山時,建築師所隱藏的開門見山的小心思,會明白在小酉山旁邊的水井,滴泉的隱喻「山不在高,水不在深」以及恍然發現的中國性和稀薄的禪意。
這決定它是一間真正意義的現代中國書店。

秘境
兩山之間的圓形空間就是秘境。屬於書店主人自己的世界,它像一個壺,其中自有天地,山石,翠松,書酒和主人,這就是在上海浮華鬧市中的洞天福地。設計秘境的俞挺不由得羨慕不已而寫了一首五絕。
建築師羨慕的秘境更是主人寄放安頓自己心靈的去處。壺中方寸雖小,卻可讓人,而知天外又有天當止則止;且悟道非可道應行便行。

二酉書店,作為瞭解上海的入口
旭輝天地總經理林峰想做一個特別的書店,他認為,人們日常所遇到的大多數書店僅僅是賣書和一些文創產品,想創造一種展示生活方式的書店,能夠結合鮮花、結合酒、結合茶以及精挑細選的書。
俞挺自從設計第一家鐘書閣松江旗艦店開始,就不願意去設計書店基本教義派偏愛的那種所謂純粹但其實乾枯乏味的書店,他認為書店應該不僅僅吸引愛書的人更應該接納那些原本不愛讀書的普通人,書店就應該是一個微型的文化綜合體,是網路背景下具有業主高粘性的社交文化場所,他覺得林峰的概念正好合乎他的構想,這也是俞挺接這個設計案的原因。

書店內的生活區域
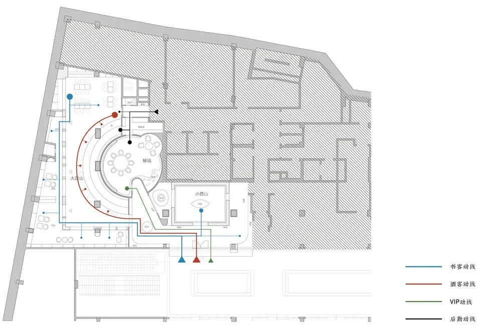
大酉山的主空間分成兩個區,一個就是層層疊疊由角落組成的閱覽區。一個是被俞挺稱之為活色生香的圓弧形長桌所主導的生活區。在如畫卷徐徐展開的桌面上可以有咖啡、茶、酒、閱讀、香道、花道、盆景以及吃幾口的閒適心情。這畫卷集中呈現了林總和俞挺所設想的復合業態。

但不僅於此,讀者會發現,大酉山除了可以展覽和路演,還有無處不在的鮮花點綴在洞口、書架、吧檯、書桌,甚至書店門口。
所謂仙山,才能四季花開不敗,唯有知識,才能流傳百世。

設計者的情緒帶入到書店氛圍
俞挺認為建築師可以拿書店作為一個工具來理解這個城市,來理解這個城市的人,來理解這個城市文化後作出的一個積極的反應。每個書店都可以是一種短暫,或者是足夠長,或者是非常長的一種理解和反應。這種反應成就了書店和所在城市的彼此。
和俞挺設計的其他書店不同,二酉書店的反應呈現一種安靜,像一首小詩。不是長詩,或者節奏緊張明快的現代詩,不會充滿攻擊性,它非常平緩,甚至有些古典。安靜對俞挺而言其實也是非常難得的一個情緒。因為他的生活當中充滿了各種波折。加上性格敏感,俞挺也不是能夠特別安靜。在設計和建造書店的時候,一個不太能夠安靜自己的人需要面對各種人的焦慮。
細微的焦慮一開始就像微微風,之後可能會有點點像暗潮洶湧即將吞噬人的時候,俞挺要表現成淡定和安靜,只有戰勝自己的同時,才能夠撫慰其他人。
這是俞挺試圖控制那種不安擾動所創造的安靜的書店,回想他做過的那麼多書店裡面,這個書店可以說是情緒最為平和、節奏最為舒緩,遊走期間當中是帶著微笑,而不是各種驚訝或者歡呼,所以情緒在這裡是安靜。

捷徑
讀者藉由書瞭解這個世界,並懂得更好的去理解世界或理解其他人。藉由書店此一個微小的被建築師精心塑造過的世界,使得讀者有了一個更短的捷徑,更快更直接地深入理解更為廣袤世界和人。所以,二酉書店,這個被俞挺精心塑造的微小世界可以成為讀者或者訪客深入理解上海的一個入口。

建造這個入口只花了40天,二酉書店呈現所有艱難的訓練和思考,在最後都展現出不可思議的輕鬆這個狀態,這也是俞挺理解的中國美學要義。
二酉書店 作品資訊
作品名稱:二酉書店
作品位置:上海旭輝天地
作品類型:書店、室內設計
業主:旭輝集團
設計公司:Wutopia Lab
主持建築師:俞挺
作品經理:濮聖睿
專案建築師:楊思齊
設計團隊:郭宇辰 詹孛迪
施工圖設計:上海呈煜空間設計有限公司
總樓地板面積:452平方公尺
設計時間:2021.2-3
建設時間:2021.4
照明設計:張宸露
攝影:CreatAR Images
影片:CreatAR Images
訪談影片:Wuto-lini studio
建築材料:沖孔鋁板、石英石
二酉書店 建築圖



