廣陵城區的時光切片與新生
揚州,這座因鹽商與運河而興盛的千年古城,在廣陵路的深處,藏著一組由不同年代斷層構成的建築組團,彷彿凝固的時光切片。廣陵有熊酒店的基地,便是這樣一個所在,清代木結構的風骨猶存,與上世紀磚混建物的樸實並立,犬牙交錯。整個更新計畫的挑戰,無異於在歷史的紋理上動刀,目標是將這些沉睡的老房子,轉化為一座現代園林式酒店。不僅是建築的修復,更是對揚州生活記憶的溫柔喚醒,承繼了舊時的風雅,更注入當代活力。




跨域協作的建築交響詩
此案作為廣陵古城都市更新的首發陣容,其重要性不言而喻。宏觀的規劃階段,由學術底蘊深厚的東南大學建築設計研究院有限公司總綰全局,奠定了尊重歷史、活化街區的基調。然而,當藍圖轉入現實,一場由多方專家構成的協作平台於焉成形,如同一支精密的交響樂團。
由日本建築師青山周平 (Shuhei Aoyama) 與藤井洋子 (Yoko Fujii) 領軍的B.L.U.E.建築設計事務所,負責最關鍵的空間創意;而江蘇揚建集團、意匠軒等營造單位,則扮演著將圖紙化為精工的匠人角色,彼此珠聯璧合,共同譜寫這闋建築詩篇。




蘇北電影院的記憶迴廊
酒店大堂,前身是承載數代揚州人光影記憶的蘇北電影院,空間改造猶如一場與時間的對話。B.L.U.E.建築設計事務所的策略是「惜墨如金」,對原有高聳的屋頂木結構予以最大程度的保留與尊重,讓歷史的痕跡成為空間的主角。
大廳中央,一方借鑒了揚州古典園林「庭院」佈局的樹池迴廊悄然植入,天光雲影徘徊其間,巧妙地將自然氣息引入室內,模糊了內外界線。懸掛的幕布,不僅是形式上的致敬,更具備實際放映功能,讓酒店大堂成為一個動態的文化客廳。



材質與光影的溫潤絮語
空間的氛圍,往往由材質的選擇來決定。大堂的設計,在材料運用上極具巧思,企圖喚醒潛藏於揚州人內心深處的集體記憶。地面鋪設的天然石材,沉穩如古運河的河床;主要的木作選用了溫潤的老榆木,其深刻的紋理彷彿訴說著歲月滄桑。牆面點綴的鋸齒狀木飾面,則增添了現代的節奏感。此外,設計團隊與揚州本地藝術家合作,將曾在蘇北電影院上映的老電影場景與人物,轉化為一幅幅風格獨具的板畫,與復古金屬配件、水磨石細節相映成趣,讓每一位來客,都能在此尋到一絲熟悉的溫暖。


亭臺樓閣的當代轉譯
基地內兩棟新建的建築,是此次更新中最大膽的筆觸,其功能分別設定為餐廳包廂、客房與湯屋。建築師從揚州園林最經典的「亭臺樓閣」意象中汲取靈感,卻非照本宣科的模仿,而是進行精神上的轉譯。其中一棟將二樓客房量體抬升,懸挑於簡潔的平台上,形成「樓臺」的現代樣貌,不僅破解了基地限制,更為住客創造了開闊的觀景視野。牆體採用了竹模混凝土,讓冰冷的材質表面,印上了溫潤的竹子紋理,與回收老牆磚的斑駁形成新舊對話。



與自然共生的水療庭院
緊鄰著名私家園林「盦園」的湯屋,其設計更顯內斂與精妙。入口通道由半通透的磚牆界定,維持了必要的私密性。建築的雙坡屋頂高低錯落,呼應周邊的傳統民居輪廓,又在轉折懸挑處,為內部空間引入了天光。水療與足療兩個核心區域,環繞著一處靜謐的私密內院,當立面的折疊門與推拉窗完全敞開,整個湯屋便化身為一座與自然聲息相通的水療庭院。外牆鋪設的手鑿石板瓦與手鑿紋理石材,皆是對揚州園林「以石造景」傳統的當代呼應。




文保客房的靜默守護
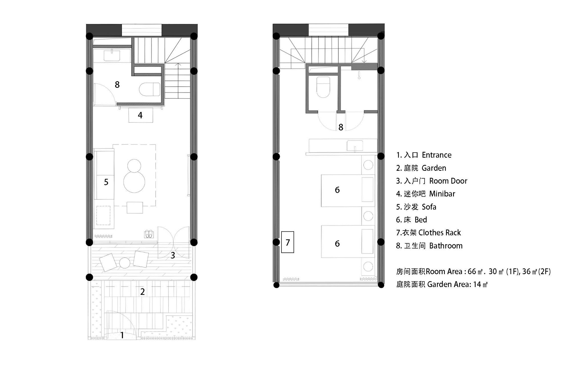
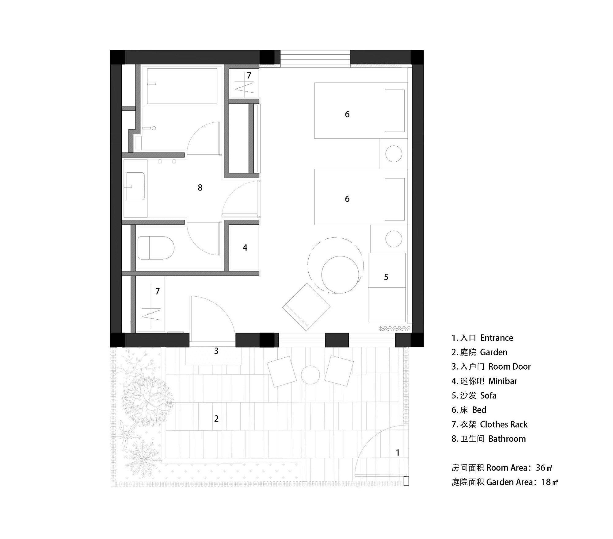
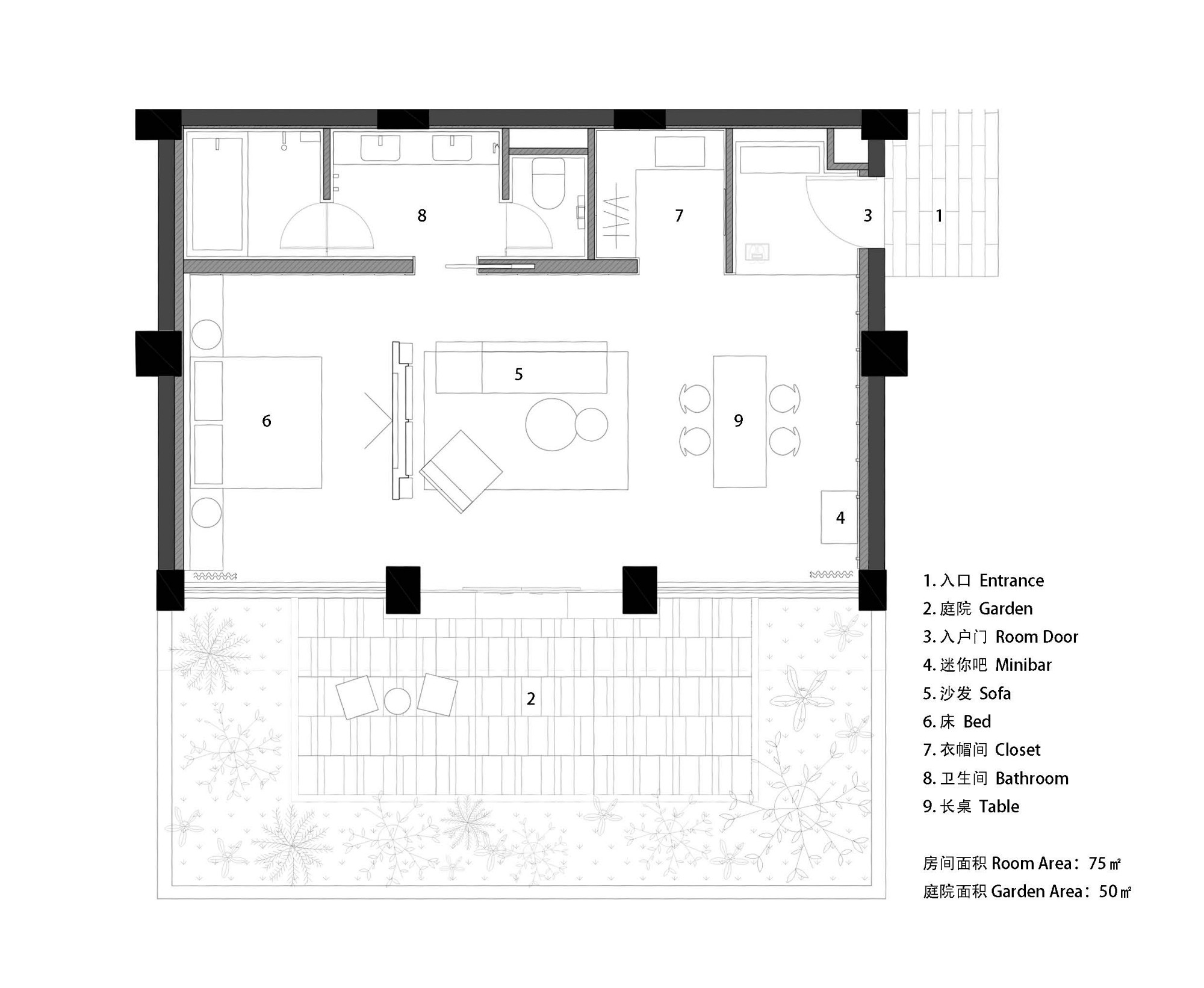
酒店共四十間客房,散佈於新舊樓棟之中,其中改造難度最高的,莫過於被列為文保建築的老宅。對於這些珍貴的文化遺產,設計團隊的態度近乎虔誠。所有的木結構與外立面均按「修舊如舊」的原則進行修繕,內部則小心翼翼地植入空調、供暖系統與現代化的衛浴設備。這種「外科手術」般的改造,確保了歷史建築的骨架與靈魂得以完整留存,同時滿足了現代旅人對舒適度的要求,在開放的內部佈局中,流露出一股從容自在的氣息。








在地工藝的細膩妝點
不論是古典客房或現代客房,室內的材質選擇與細節處理,都堅守著一貫的設計哲學:忠於材料的真實質感,並向在地文化汲取養分。木材、天然石材、手工磚、紋理塗料等自然材質,構成了空間溫潤、淺亮的基調。設計團隊更深入研究了揚州傳統的木版畫雕刻與銅器製作技藝,將這些文化符號予以提煉,轉化為手鑿紋理的木板、做舊的銅板裝飾,妝點於客房各處。這些細節,如同畫龍點睛,讓整體空間的在地屬性與文化厚度,油然而生。








建築圖













作品資訊
作品名稱:揚州廣陵有熊酒店
作品位置:江蘇揚州
作品類型:中國、酒店、旅宿、室內設計、景觀設計、舊建築改造
業主:揚州廣陵文化旅遊開發集團有限公司
總樓地板面積:約4250平方米
設計週期:2023年12月-2024年4月
施工週期:2024年7月-2025年4月
竣工:2025年
攝影:夏至
城市更新整體規劃:東南大學建築設計研究院有限公司
建築設計:
新建建築(湯屋,客房棟6號樓):B.L.U.E.建築設計事務所
建築改造(客房棟2號樓,客房棟7號樓):B.L.U.E.建築設計事務所
建築改造(蘇北電影院及其他建築):東南大學建築設計研究院有限公司-UAL城市建築工作室
室內設計:B.L.U.E.建築設計事務所
景觀設計:廣州山水比德設計股份有限公司-有象工作室
電影院展陳設計:築道如聞
品牌運營:萬科酒店管理有限公司
主持建築師:青山周平、藤井洋子
專案團隊:劉淩子、李穌芸、周紫薇、曆靜遠、趙馨蕊、王嘉慧、嚴景玉
營造廠:江蘇揚建集團有限公司
文保建築修繕:揚州意匠軒園林古建築營造股份有限公司
結構形式:木結構(文保建築),磚混結構(客房棟2#&客房棟7#),鋼筋混凝土框架結構(新建建築)
主要建築外立面材料:竹模混凝土,木模混凝土,水洗石,回收老青磚,石板瓦,灰泥塗料,手鑿拉槽面石材
主要室內材料:手工紋理實木板,鋸齒橡木板,老榆木板,火燒面花崗岩,手工石材磚,萊姆石,木紋石材,水磨石,紋理塗料,夾絹玻璃,做舊金屬板