長垣鄉土新生:云寨村的多功能社區樞紐
在河南省長垣市的廣袤平原上,一座別具匠心的社區建築悄然矗立於數個村莊的交匯之處──云寨村社區活動中心,由深耕本土建築語彙的素朴建筑工作室與學術底蘊深厚的清華大學建築設計研究院攜手完成,主創建築師宋晔皓、陳曉娟試圖在此探索鄉村公共空間的新可能。
活動中心園區不僅定位為村民舉辦節慶大典、欣賞休閒電影、聆聽科普講座的文化禮堂,更體貼地為周邊村落的老者與稚童開闢了一方日常休憩遊樂的天地。尤有進者,作為區域內鄉村環境改造提升的先行示範點,它亦承擔起對外服務接待、舉辦文化交流沙龍等多元任務,宛若一顆投入鄉間池塘的石子,激起圈圈漣漪,為傳統農村注入現代活力與對外連結的契機。



游園入夢:立體院落的空間敘事
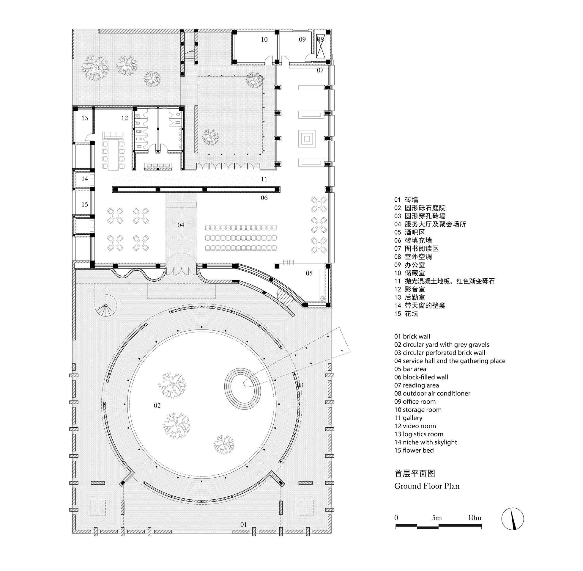
建築設計的核心理念,是將室外場域與建築本體視作一個密不可分的整體,打造出一處全天候向公眾敞開懷抱的「立體遊園」,巧妙地將有限的空間加以立體化、趣味化,引導人們在其中穿梭、停留、互動,創造出豐富的空間體驗。
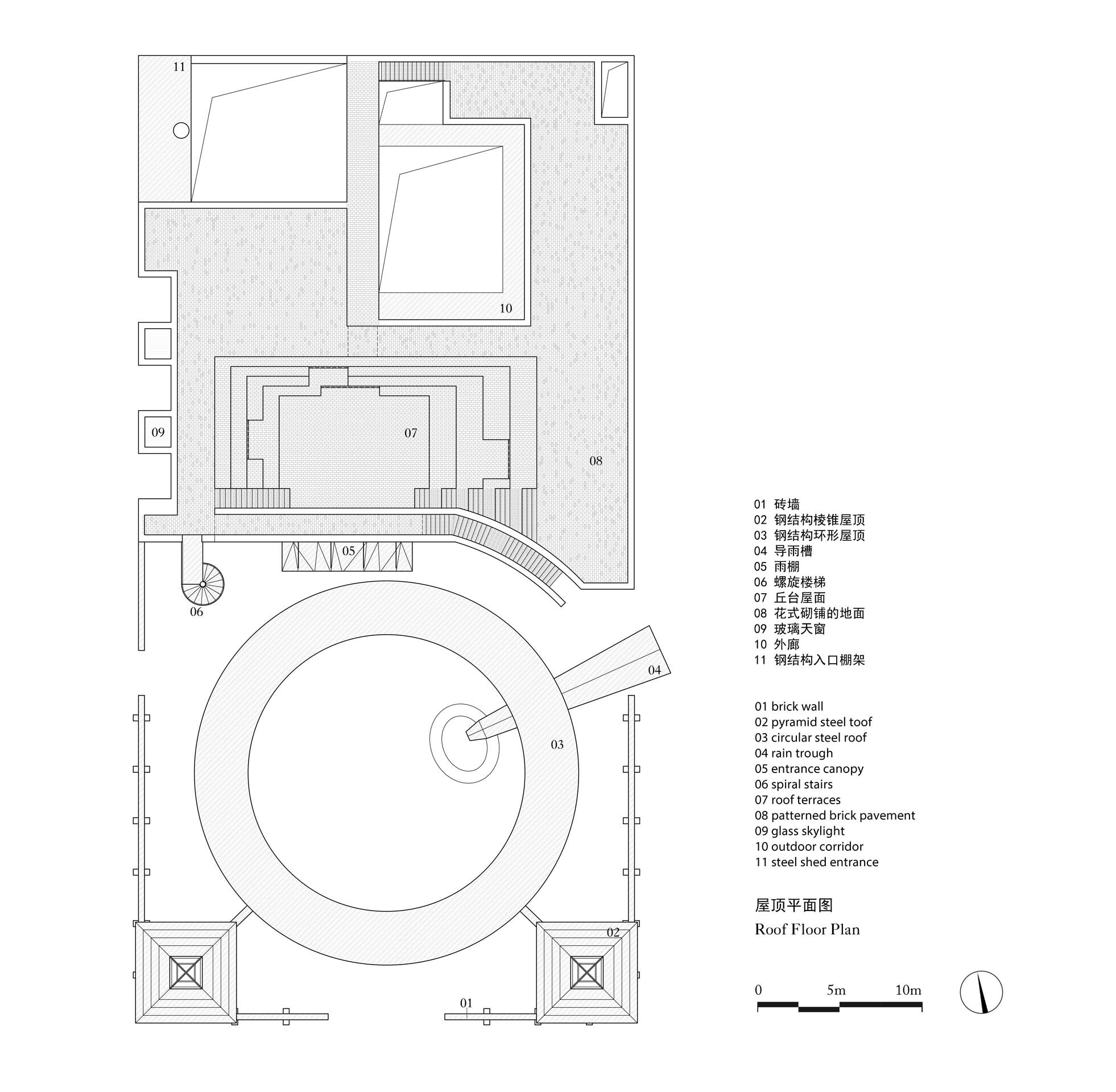
其中,環形的儀式性聚集庭院,既能滿足盛大慶典活動的需求,其開闊的場地與精心布置的細節,亦使其成為村民們平日閒坐談天、享受片刻寧靜的理想場所,陽光灑落,樹影婆娑,自有其動靜皆宜之妙。而以獨特的丘台造型為視覺焦點的屋面平台,則賦予了使用者登高望遠的可能,近可俯瞰錯落有致的村落分布,遠可眺望無垠的田疇沃野,成為晨曦中太極拳舒展身姿、黃昏下廣場舞翩蟍起舞的絕佳舞台,更是孩子們追逐嬉戲、上下攀爬的天然樂園,笑語喧囂,生機盎然。




靜謐與交融:廊院、樹院及在地材質的謳歌
「立體遊園」的空間序列,在動態的聚集庭院與屋頂平台之外,亦悉心規劃了靜態與過渡的場域。廊院輕巧地環繞著圖書閱覽區及小型展覽廊道,形成一方相對私密且寧靜的內向庭園,適合個人沉思靜讀,或三五好友低聲交流,營造出濃厚的書香氛圍。
位於北側入口的樹院,則巧妙地將基地內原有的一株茁壯楊樹保留下來,並以整面質樸的高紅磚牆及俐落的深色金屬板圍合,不僅形成內外空間之間簡潔而明確的過渡,更讓老樹成為庭院的靈魂,見證著歲月流轉與社區的發展。
在建築材料與工藝的選擇上,設計團隊充分展現了就地取材的智慧,紅磚與金屬加工,皆源自長垣本地。手工砌築的紅磚,溫潤而富有紋理質感,不僅在視覺上延續了周邊傳統村落建築的樸實風貌與歷史文脈,更在情感上喚起了居民的集體記憶。




小中見大:活化鄉村的運營巧思
長垣地區現代金屬工業的蓬勃發展,為金屬材料的廣泛應用提供了堅實基礎。於是,鋼構件作為一種建造便捷、易於加工的常見在地材料,被大量運用於社區中心的構建中,深灰色的冷峻材質,與溫暖的紅磚形成了鮮明而和諧的對比,不僅強化了建築的視覺張力,更巧妙地起到了引導人流、界定空間的作用,堪稱點石成金。
面對相對有限的建設用地、建築規模以及嚴格的預算控制,此透過一系列精心的設計策略,成功實現了「小中見大」的目標,為村民們提供了多樣化的活動場景。從寬敞的地面庭院到視野開闊的屋頂平台,再到功能各異的室內空間,村民們可以根據自身的需求,靈活地使用這些各具識別性的場所。為了降低後續的運營維護成本,社區中心還實行了分時段、分區域的管理模式,確保了公共資源的有效利用,讓周邊村莊的老人、兒童乃至中青年人,都能在一天中的任何時候來到這裡,或參與日常休閒,或組織集會活動,從而有力地重塑了那份久違的村莊聚落向心力與盎然生機。









建築圖






作品資訊
作品名稱:云寨村社区活动中心
作品位置:中國 長垣市
作品類型:磚牆、鋼構、中國建築、活動中心、公共建築、文化設施
設計單位:清華大學建築設計研究院、素樸建築工作室
總樓地板面積:635 平方米
竣工:2020年
攝影:未提供
主持建築師:宋晔皓、陳曉娟
設計團隊:解丹、孫菁芬、褚英男、匡天宇、黃致昊、夏雨妍、岳文博
結構設計:龔政、張玥、田仲朋
施工圖單位:上海頤景建築設計有限公司
照明設計:清華大學建築學院 張昕工作室