
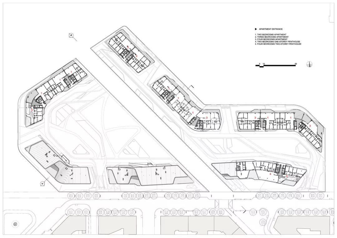
由 Zaha Hadid Architects 建築師事務所設計的米蘭City Life住宅綜合體,位於Fiera di Milano(米蘭新國際展覽中心)區域,由一條蜿蜒的動線描繪成其動人的天際線,住宅綜合體由七座彎曲的建築組成,高度在五至十三層之間。
獨特的建築元素包含曲面陽台蜿蜒的律動以及屋頂的輪廓,伴隨著延展的屋頂露台,為所有頂層豪華公寓提供了一個柔軟優雅的外形。住宅綜合體工程於2009年8月開始動工,第一批公寓於2013年完成。 考量到對環境和舒適度的需求,設計者在基地和建築朝向做了最佳配置,大多數公寓都面向東南方向,可從露台上欣賞到城市或公園的絕佳風景。




作為外牆材料,纖維混凝土板和天然木板強調了建築群的空間流動性,同時給予了住宅庭院內部一種私密性和家的感覺。室內通向寬敞的露台。所有公寓都以結構和設備的解決提案為特色,能夠輕鬆地適應個人需求。每一間房在尺寸、光照和格局上都與其他間有所不同,從兩居室、大型家庭公寓、到雙層頂樓豪華公寓不等。
在地面層,雙層高大廳湧進的光線源於從地面延伸到天花板的巨大開口,進而建立了與公園的強烈視覺連續性。主電梯和載貨電梯可通往所有樓梯間。地下停車場直接通向各個建築,簡單、便捷且安全。
作品資訊
作品名稱:CityLife Milano
作品位置:義大利米蘭
建築師: Zaha Hadid Architects
總樓地板面積: 38000.0 平方公尺
設計: 2013年
攝影師: Simón Garcia
廠家: PBA, Catellani & Smith
專案總監:Gianluca Racana
專案建築師:Maurizio Meossi
結構:Msc Associati, Milan (danilo campagna)
設備:Hilson Moran Italia
建築表皮:Permasteelisa
室內大堂:Bazea
大理石地板:Bosisio
木地板:Antonini Legnani
景觀:Peverell
業主:Citylife spa
主營造廠:Tre Torri Contractor/City Contractor
建築圖





