文化樞紐的成長挑戰
在德國柏林莫阿比特(Moabit)區的都市紋理中,藝術與都市學中心(Zentrum für Kunst und Urbanistik, ZK/U)自2012年由一座舊貨運站改造以來,便迅速成為一個充滿活力的文化磁場。它的活動光譜極其多元,涵蓋了藝術、都市研究、音樂活動,乃至於城市策略講座、電影放映與社區市集等。這種包羅萬象的特性,使之迅速在柏林藝文界獨樹一幟,但也很快讓現有空間變得捉襟見肘,無法滿足日益增長的活動需求。



從天而降的增建解方
到了2016年,增建的決策勢在必行。然而,ZK/U面臨一項極其嚴峻的挑戰:建築四周被公園綠地環繞,任何形式的水平擴張都將侵占寶貴的公共開放空間,這在極度重視公園綠地的柏林幾乎是不可能的任務。面對此一困境,唯一的出路便是向上發展。
最終的解決方案,是在原有的、未設暖氣的舊倉庫之上,增加一個全新的樓層。因地制宜的垂直增建策略,不但解決了空間問題,更成為都市密度與綠地保存兩難下的一個智慧解答。



新舊交疊的構造美學
擴建的過程猶如一次精準的外科手術。建築團隊移除了舊屋頂,但完整保留了地下層大廳的所有牆壁與天花板。全新的結構體,輕盈地包裹住既有的磚牆,歷經滄桑的牆面,被刻意地維持其未經絕緣處理的原始粗獷樣貌,從而延續了該建築獨有的工業性格。承先啟後的手法,讓新與舊並非相互覆蓋,而是並置對話,空間的歷史感與記憶因此得以保存,並與新的機能需求共存。



層次豐富的透明皮層
新建築的皮層設計,充滿了豐富的空間層次。地下室與地面層規劃為大型活動空間,南側的玻璃立面,刻意從原有的磚牆向外推移了1.8公尺,在兩者之間創造出一個猶如藝廊般的獨特廊道空間。而在北側,玻璃立面的退縮幅度更大,達到六公尺,從而圍塑出一個額外的室內房間。採用不對稱的處理手法,回應了不同座向的日照與機能需求,更讓建築的立面,從單純的表皮轉化為具有深度與多重用途的中介地帶。



穿梭於內外的動感路徑
兩座顯眼的戶外樓梯,引導人們通往全新的上層樓,此樓層四周被迴廊式的走道所環繞。這些走道不僅是動線,更是空間的延伸,它們同時提供了從室內及室外進入上層空間的多重路徑,徹底模糊了建築的內外分野。而原有的屋頂,則被轉化為一個可供使用的大型露台,提供了無與倫比的城市全景視野。這種將動線與觀景平台外部化的設計,極大地促進了空間的開放性與公共性,成為建築的畫龍點睛之筆。




由使用者完成的最終章
整個擴建案最核心的精神,在於各個建築元素的開放性佈局。從舊有的月台及其頂棚、新建的樓梯、玻璃帷幕、結構體本身、環繞的廊道、斑駁的磚牆,到內部的房間,所有新舊元素都以一種開放、並列的姿態,一層層地呈現在觀者眼前。然而,真正為此空間注入靈魂的,是無數在此活動的藝術家、文化工作者與社區團體。正是這些使用者,以自身的創造力與互動,完成了建築的最終章,使其成為一個真正活躍的藝術與都市交流中心。


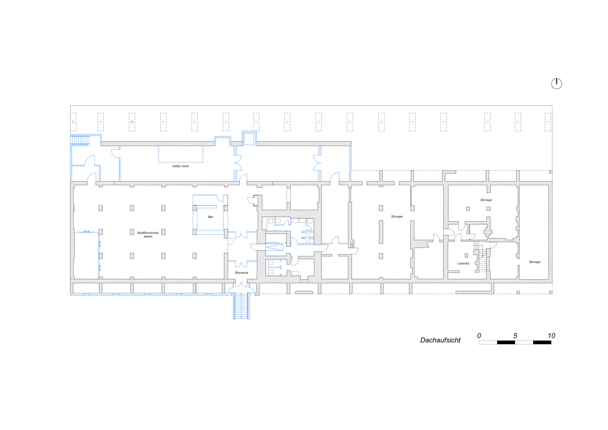
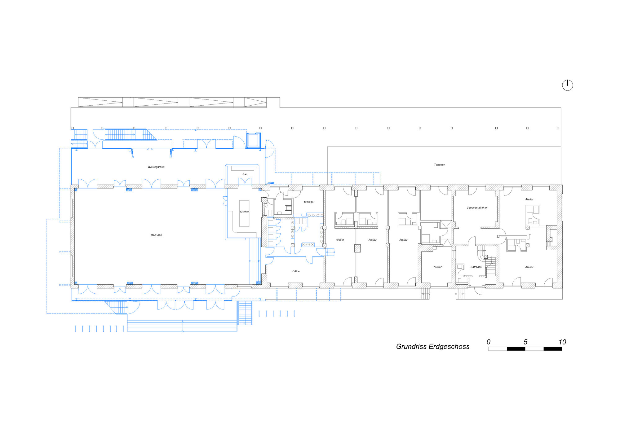
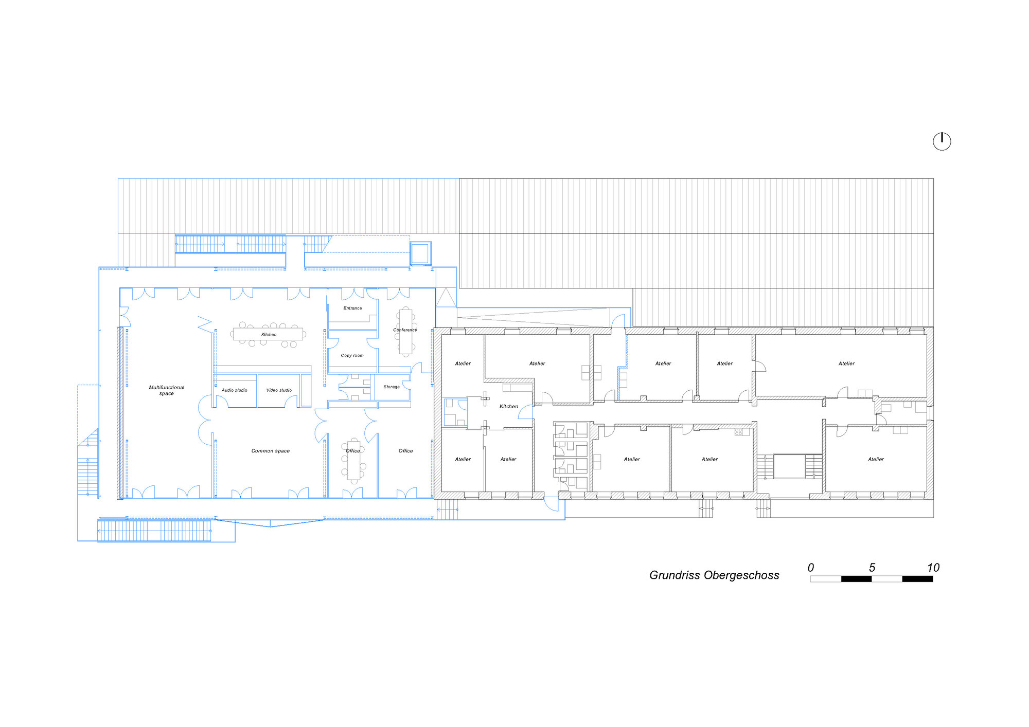
建築圖







作品資訊
作品名稱:Zentrum für Kunst und Urbanistik, ZK/U |Center for Art and Urbanistics
作品位置:德國柏林 Berlin, Germany
作品類型:德國建築、德國建築師、文化設施、舊建築改造、鋼構
設計單位:Peter Grundmann Architekten
總樓地板面積:3200 平方米
竣工:2025年
攝影:Yizhi Wang
製造商:AGC Glass, DW Systembau, MAUER, Refunc, SLAB, Thomas Gruppe
主持建築師:Peter Grundmann, Uwe Zinkahn
專案領導:Uwe Zinkahn
技術團隊:Alisa Buslaeva
營造廠:Quittenbaum Bauingenieure