常見的「清水混凝土」,其實就是混凝土一次澆灌成型,表面不作任何裝飾,直接採用混凝土自然色為飾面,利用混凝土表面的線條或槽孔作為裝飾圖案,這樣的設計風格所呈現的結構就是清水混凝土結構;最常用這種材料的就是安藤忠雄,相信很多朋友們都看過大師的作品。像這種不加修飾的清水混凝土效果,就是一種裝飾混凝土,換句話說,具有裝飾藝術表現力的混凝土都可以稱之為「裝飾混凝土」。

本文主要介紹以下議題
內容目錄
裝飾混凝土的性能特色

裝飾混凝土的表面有特殊的裝飾性,硬化後強度增加,所使用的場景更加廣泛,室內外牆面裝飾、景觀構築物等都適用,具體特色如下:
1.造型多樣
裝飾混凝土可塑性較強,造型多變,這也拓寬了使用範圍,除了結構機能外,還有裝飾用途,尺寸規格多樣。

2.裝飾效果強
設計師可以根據設計提案,利用混凝土的可塑性來實現各種裝飾圖案的設計,而且表現效果也很好。

3.模擬性高
裝飾混凝土可以模仿不同材料的飾面效果,如:仿石、仿木、仿金屬等,一定程度上是可以替代部分材料的。

4.性能好
具有耐磨、耐刮劃、耐撞擊;耐水、防潮、防黴、抗菌,易清洗;耐化學腐蝕;防火、耐熱、耐煙灼;環保無害;穩定性強,不易變形等等。

表面的處理方法

混凝土表面裝飾方式有很多,但歸結起來主要有2種:採用裝飾板模和採用混凝土表面特殊處理。
1.裝飾板模

採用裝飾板模的方法,是利用混凝土的可塑性特色,就是可以被塑造成任意形狀,之後凝固成特定的設計。
而採用特殊效果的板模,或者根據設計師所設計的圖案進行澆灌,能獲得的不同的圖案和紋理表面。

這種方法主要依靠的是造型板模,大部分所使用的是PU(聚氨酯)橡膠墊板模,利用橡膠工業化訂製出特殊的圖案。

加工製作時,將帶圖案的PU墊放在普通板模內表面完成澆灌,待完工後拆模,就可以獲得特殊的圖案造型。

使用PU橡膠墊的一大益處就是它可以重複利用,表面圖案多樣,也可以進行特殊訂製。
2.混凝土表面特殊處理

混凝土表面特殊處理,其實是在混凝土表面呈現出相應的圖案,根本原理是利用人在不同角度,混凝土板上的凹槽深淺陰影差別,來實現不同角度動態的成像效果,屬於特殊裝飾板模類。
3.價格

裝飾混凝土屬於客製化產品,它的價格取決於製作難度和板模的重複使用率。一般PU標準成品板模,根據板模大小按每平方公尺計算,大概在3000~5000元。
安裝工藝

根據上邊的介紹,我們可以知道,裝飾混凝土其實是個很寬泛的概念。在一定程度上,我們所說的GRC(玻璃纖維增強混凝土)也算是裝飾混凝土的一種,它的一大特色同樣是可實現個性化客製化,還是一種可再生循環利用的綠色建築材料。
接下來就以GRC為例,給大家看下它的施工工藝。
1.施工流程
具體的施工流程為:測量、放線→GRC板塊加工圖排版加工→鋼龍骨製作安裝→龍骨驗收→安裝GRC板塊→表面飾面處理
2.施工節點

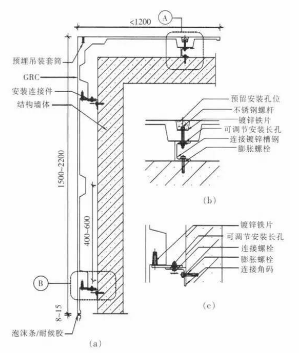
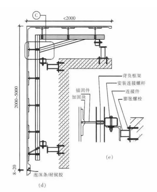
1)室外應用


GRC帷幕牆與建築主體轉角連接構造示意


CRC帷幕牆曲面板與建築主體連接構造示意
2)室內應用


GRC牆板板塊立面示意圖

橫剖節點示意圖

豎剖節點示意圖

GRC天花板塊加工構造示意圖

GRC天花板塊安裝節點示意圖

GRC天花板塊節點示意圖

檢修口細部

GRC天花板塊接縫示意圖
