
這套公寓位於俄羅斯聖彼得堡市中心以撒大教堂(St. Isaac’s Cathedral)附近,一棟經過翻新的建築中。

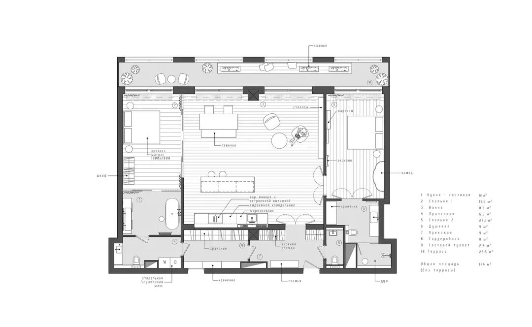
該作品的主要任務是保留帶有地板的大窗戶的公寓主房間的原始空間,因此所有主要區域(起居室,廚房和臥室)都沿著窗戶,雜物間和浴室放置。沿空白牆放置。


我們希望盡可能保留房間的光線和體積,因此起居室-廚房位於公寓的中央,帶有兩個窗戶,主臥室和第三個窗戶與公共區域之間有一個分隔。玻璃隔板,有助於保留公共空間的感覺。


內部構造融合了極簡主義美學和經典元素。在寬敞的客廳中,一個優雅的金屬圖書館與帶銅制配件的經典雙門相連,在臥室裡,一個古色古香的法式衣櫃在一張簡單形狀的床的背景下脫穎而出。


現代主義的細部可以追溯到整個內部:拱形,元素的圓潤,磨砂的白色玻璃製成的球形燈罩…







內飾細部中大量使用了銅元素:混合器,支腿,鉸鏈,把手,鉤子,燈,窗檯,分隔板等等…

















