永續思潮引領創新,北美館X-site計畫徵件開跑
臺北市立美術館(後簡稱:北美館)坐落於台北市中山區花博公園旁,是台灣首座公立美術館,自1983年創立以來,一直是台灣現當代藝術發展的重要推手。如今,北美館的年度盛事「X-site計畫」再度啟動,第12屆徵件活動正式開跑,以「永續發展」為核心議題,邀請各界創意人才共同打造一個兼具藝術性與環保意識的實驗場域。
跨領域合作激盪火花,400萬總製作費徵求創意提案
X-site計畫歷年來以其開創性、跨領域合作的特色聞名,鼓勵參賽團隊在建築、當代藝術、展覽、公眾計畫等領域中,提出大膽創新的構想。本屆計畫更將「永續性」納入評選標準,期待團隊在施工工法、材料使用和回收計畫上都能體現減碳思維。獲選團隊不僅能獲得新台幣400萬元的總製作經費,更能將其創意理念實踐於北美館戶外廣場,為市民帶來獨特的藝術體驗。


鼓勵多元參與,豐富公共性對話
除了專業團隊,X-site計畫也鼓勵來自不同背景的創作者共同參與,透過多元視角,豐富公共性對話。徵選活動除了注重空間體驗,也期待團隊能規劃公眾參與活動,讓北美館戶外廣場成為市民互動交流的場域。為了鼓勵更多新銳創作者投入,進入複審但未獲選的團隊,每隊將可獲得新台幣5萬元的提案工作費,讓創意種子得以持續萌芽。
徵件詳情與說明會資訊
第12屆X-site計畫徵件活動即日起至2024年9月23日(一)下午5時截止,參賽作品須為首次發表,並須符合美術館廣場基地的承重、限高等執行條件。獲選作品預計於2025年5月3日至7月13日在北美館戶外廣場展出。欲了解參選資格、注意事項、徵選方式及時程等詳情,歡迎參加7月26日下午3時30分於北美館圖書文獻中心舉辦的徵件說明會,或參閱臺北市立美術館官網公告。
相關文件下載
2025 X-site計畫徵件簡章.pdf
2025 X-site計畫徵件簡章.docx
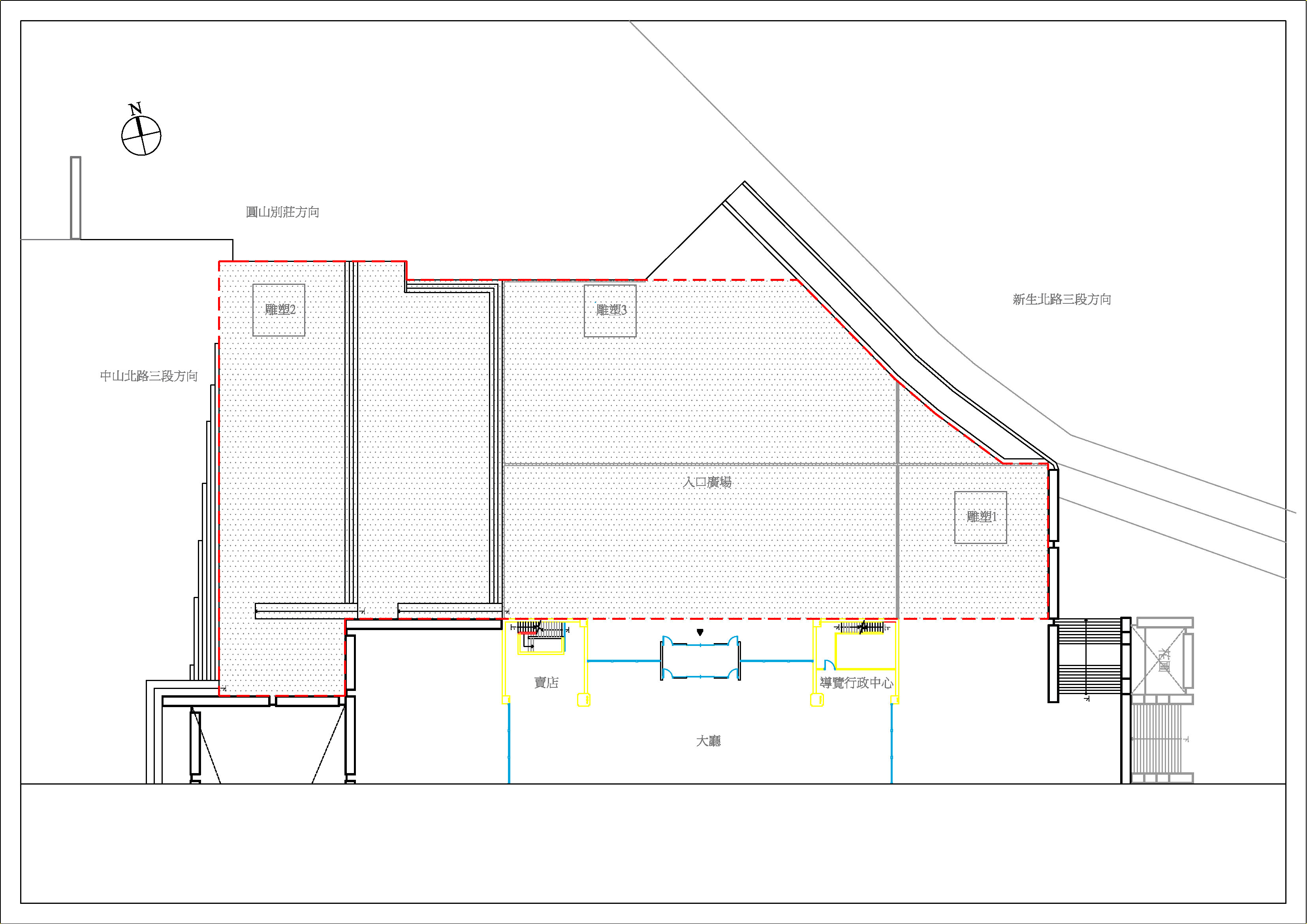
北美館廣場平面圖.pdf
北美館廣場平面圖.dwg
歷屆X-Site計畫作品

延伸閱讀:北美館第11屆X-site計畫《林木林》登場,感想工作室打造都市森林幻境

延伸閱讀:疫情時代的藝術療癒:北美館2023年第10屆X-site計畫獲勝作品《途中》,高牆中的感官之旅

延伸閱讀:臺北市立美術館2022年第9屆X-site計畫《藍屋》2022年5月21日登場,孔維傑與張雅筑以「沉浸之所」演繹藍色複調感知

延伸閱讀:臺北市立美術館2021第8屆X-site計畫《爆炸容器》多重真實2021年7月13日登場,「超限游擊X真實構築」賦予交疊場域波動和身體經驗

延伸閱讀:北美館2020年第7屆X-site計畫《膜》開展,偏光片打造多重真實超感空間

延伸閱讀:北美館2019第六屆X-site計畫,評審委員團宣告「本屆從缺」進入複選七支團隊無一獲選

延伸閱讀:北美館2018年第5屆X-site計畫《OO》登場,大林工作室林佩蓉、塗家伶以雙圓柱體構築超現實空間

延伸閱讀:迷霧森林現身北美館!2017年第4屆X-Site計畫《供霧所》偶然設計+陳冠瑋建築師打造夢幻藝術空間,翻轉工務所刻板印象

延伸閱讀:北美館2016第3屆X-site計畫《浮光之間》開幕,沈庭增建築師打造浮光場域,帶你走入兒時回憶

延伸閱讀: 台北市立美術館廣場首次推出「X-site計畫」,開創公共藝術空間:陳宣誠、任大賢、蘇富源團隊打造《邊緣地景》在北美館廣場創建感官重置地帶
