周易設計 以祈福為願 – 庵鍋餐廳

0
2668

熱情的仲夏,油桐花隨風散落一地,螢火蟲在空中縈繞閃爍;白天朵朵灑落的雪白,夏夜閃閃螢光的浪漫,備添春夏之交的清涼。

四季更迭帶來的不同感受,一如多樣性城市帶給人的豐富多采;走在台中市公益路上,琳瑯滿目的餐廳林立,一間挑高九米的古樸外觀,矗立著偌大的庵字,在洗練摩登的都市 文化中,日式樸拙的建物給人一種淨化心靈的感受。「庵鍋」,日式火鍋燒烤,以「淨化、祈福」元素為主題式開展,有別於一般的大眾化,細緻沉穩的日式風格是 這次的設計主軸。


↗ 庵鍋外觀(click for larger iamge)

挑 高九米的建築本體,內部陳設卻是由相當細膩的巧思構成。進門左側的水景區,由不規則紋路的石皮高牆、象徵綿延蒼翠的松樹、淙淙流水,與日式風提燈演繹;右 側懸浮在水面上的佛像,是許願池的意念,上方的撞鐘,散發祈福的意味,底下鋪滿窸窣的碎石,帶領我們一步步藉由禪意進入日式嚴謹調性中。


↗ 櫃臺祈福卡區(click for larger iamge)

中央開放式座位,以天燈造型為概念發想的燈飾,搭配黑色烤漆玻璃天花板,倒影中有加乘空間的效果,傳達更深一層幸福、祈願的意念;周圍環繞水幕上的燭台,與入口右側佛像處的燭台遙相輝映,將廟宇特性深植其中,讓用餐的客人心靈也能與浩瀚的天穹相繫能量源源不絕流動。

兩 旁半開放式座位,一邊佐以嵌入式撞鐘造型壁面,優雅脫俗的蘭花點綴其間,邊端以玻璃面區隔,讓視覺效果更寬闊;另一側以飽滿大石填滿整個壁面,低調沉穩中 帶有些許變化的趣味;通往洗手間的動線轉折處以摺紙建築概念做設計,日式小茶壺擺放於整個大空間的底層角落,將日式風味一路延伸。

周易設計師的精湛、與眾不同的設計,以獨特的空間效應傳達日式料理的藝術與內涵,讓每位進到庵鍋的客人不僅吃得養生,心靈也因而感受到全然的淨化,貼心的思維從庵鍋的命名到櫃檯處祈福卡的設立,帶著平靜心靈用餐的同時,祝福也得以散播。

>>設計案基本資料
設計案名稱:庵鍋
設計案位置:台中市公益路二段112號(台灣)
主要用途:餐廳
設計團隊:周易設計工作室
建築面積:380平方米
樓地板面積:380平方米
設計日期:2008年9月-10月
工程日期:2008年11月-12月
攝影:和風攝影
攝影擁有者:呂國企

設計團隊基本資料
設計師:周易
公司名稱: 周易設計工作室
地址:台中市五權西路一段204號
聯絡電話:+88623759455
E-mail: joyis.chou@msa.hinet.net
網址: http://www.wretch.cc/blog/joychou1959

>>相關圖片


↗ 庵鍋立面圖(click for larger iamge)


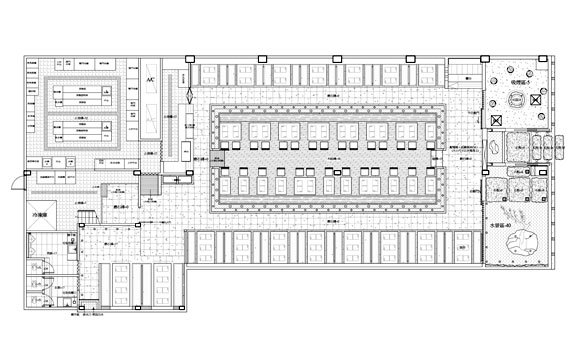
↗ 庵鍋平面圖(click for larger iamge)


↗ 庵鍋所使用的天燈詳圖(click for larger iamge)

Leave a reply

Please enter your comment!
Please enter your name here

這個網站採用 Akismet 服務減少垃圾留言。進一步了解 Akismet 如何處理網站訪客的留言資料