人權學習中心位於國家人權博物館白色恐怖景美園區內,建築本體為軍法學校及警備總部時期之教室、軍官宿舍。主要建築及附屬建物歷經幾十年來各種不同的使用機能,未來則做為人權館內的教室、表演場及排練場,空間定位開放、多變、自由,滿足教學及展演相關的複合性機能。
整修後建築與廣場
整修後廣場
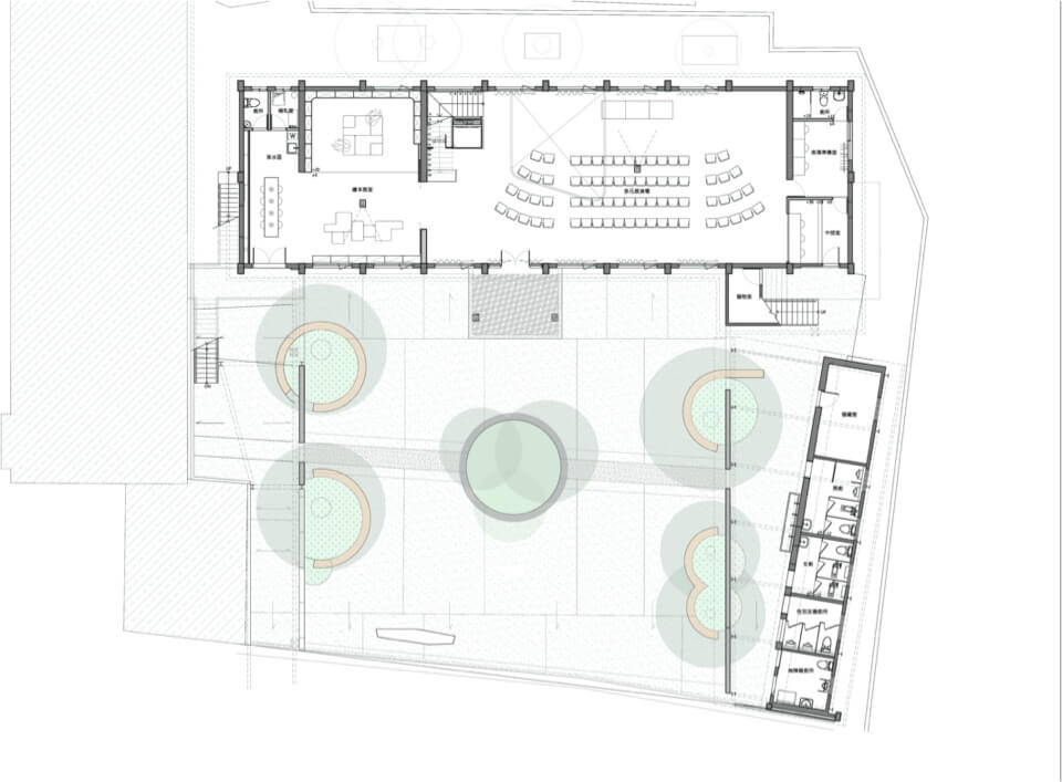
配置圖
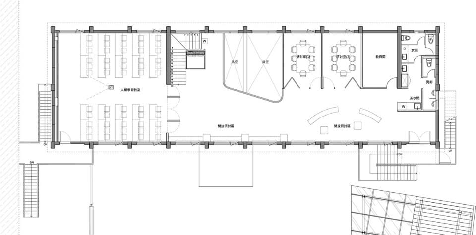
二樓平面圖
設計構想多面向的表演方式將內部的樓板劃開,新設的內部樓梯及挑空在歷史建築的限制下,推翻原有建築的限制而帶來不同於以往的表演場域,將舞台、後台、觀眾的視野形成一種多面相的觀看與表演型態,反映了對人權議題的各種討論方向。


排演場

開放式的空間組織

內部各個空間的使用皆保持彈性,將整體建築作為一個開放流動的教學場域,但又能依照未來館方不同的教學活動規劃,劃分為不同的教學研討空間。


老樹與廣場







保留既有的老樹,廣場的設計以不同大小的圓形草地、圓形座椅來呼應既有圍牆上的拱門形式,也跨越了圍牆的內外。 圍牆、廣場與建築 既有建築左右的兩道圍牆及中央的圓形花圃,定義了中央廣場的十字軸線。景觀設計保留既有的十字軸線,但切開傾倒的部分圍牆,使廣場的活動能夠漫延至兩側,配合建築面向廣場的開口調整,整體活動能延伸、自由流動至廣場,如此相互串聯,創造一個開放的學習場所。

色彩計畫
整體空間色彩以低彩度的灰、白為主,加入木紋清水模牆、色彩豐富的家具及通透的玻璃活動隔間等,使整個空間仍維持園區整體的建築風貌,但又加入了現代的設計元素,豐富視覺效果。
照明計畫

光與影敘說此場域的故事,探親之路的起點場域,訴說著過去與未來。
內部照明除了表演場的舞台燈光外,其他均採用間接或線性光源。景觀照明採用埋地洗牆燈、隱藏的線性光源外,也使用了綁樹投光燈,夜間樹影能在地面上創造動態的效果。新與舊的圍牆上以投射燈打出人像剪影,述說著進入這個場所的人們將獲得人權的普世價值知識向外發散且世代傳承。
圍牆、戶外圓形座椅夜間照明
作品資訊
作品名稱:國家人權博物館-人權學習中心
作品位置:新北市新店區
業 主:國家人權博物館
作品類型:文化設施、展演空間、劇場排練、多功能教室、研討室、兒童繪本、服務空間
建 築
事 務 所:徐忠瑋建築師事務所+方禾設計
建 築 師:徐忠瑋
參 與 者:祝冠瑩、高瑞鴻
監 造:徐忠瑋建築師事務所
室 內:方禾設計
結 構:林黃欽土木結構技師事務所
水 電:協揚工程顧問有限公司
景 觀:徐忠瑋建築師事務所
照 明:一隱照明設計顧問
施 工
營 造 廠:富陽營造有限公司
材 料
建 築:鋼構、耐候塗料
開 口:鋁窗、烤漆鋼板
室 內:鋼構、木紋模、亞麻仁油地板、鑽泥板、造型飾板
景 觀:實木、耐候鋼
建築面積:339.25㎡
總樓地板面積:627.55㎡
設計日期:107年10月至108年6月
工程日期:108年7月至109年3月
攝 影:原間影像工作室 朱逸文
團隊介紹
徐忠瑋建築師事務所
成立於2011年,專注具人文議題與時間刻痕的議題,近年以既有及歷史建築改造為主要研究對象。
方禾設計
主要從事住宅及公共空間室內設計,擅長於老屋新生加入現代思維與使用者生活經驗契合。
徐忠瑋建築師
淡江大學建築技術系
任華夏科技大學建築系及室內設計系兼任講師。
徐忠瑋建築師事務所 主持建築師
方禾室內裝修有限公司 主持設計師