以當代方式向傳統致敬,成都好利來1992概念店/Some Thoughts 空間設計工作室

0
2083

千百年來,「寬窄巷子」一直是成都這座古老城市脈絡延續的縮影,其所在的區域在清朝時為八旗居住之地;由於四川成都地理位置緊鄰西藏,康熙年間西藏準格爾部叛亂,康熙皇帝派蒙滿騎兵平亂,平亂成功以後,乾隆就安排蒙滿八旗子弟常駐成都,修建少城,於是就把北京的胡同(衚衕)帶到了四川。

在建築上這裡不僅是老成都「千年少城」的最後遺存,同時也是北方胡同文化在南方的唯一樣本,從清朝八旗兵營的宅院到現代化的歷史文化商區,寬窄巷子始終是一座包容當代並抒寫未來的載體。

成都好利來1992概念店餐廳室內設計/Some Thoughts 空間設計工作室

成都好利來1992概念店餐廳室內設計/Some Thoughts 空間設計工作室

成都好利來1992概念店餐廳室內設計/Some Thoughts 空間設計工作室

成都好利來1992概念店餐廳室內設計/Some Thoughts 空間設計工作室

成都好利來1992概念店餐廳室內設計/Some Thoughts 空間設計工作室

成都好利來1992概念店餐廳室內設計/Some Thoughts 空間設計工作室

「好利來1992」入駐寬窄巷子,期盼以當代的表達方式向傳統致敬,並回顧品牌創始至今幾十年來的發展歷程。Some Thoughts認為對回顧傳統,在理解上需要避開某種風格的驅動,同時尋求一種超越時代背景的形式與材料之間的關係。

成都好利來1992概念店餐廳室內設計/Some Thoughts 空間設計工作室

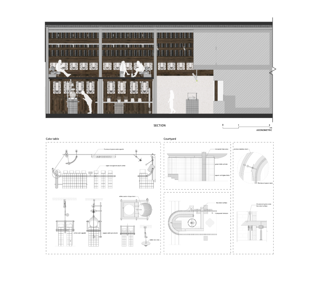
剖面圖 © Some Thoughts 空間設計工作室

成都好利來1992概念店餐廳室內設計/Some Thoughts 空間設計工作室

成都好利來1992概念店餐廳室內設計/Some Thoughts 空間設計工作室

成都好利來1992概念店餐廳室內設計/Some Thoughts 空間設計工作室

成都好利來1992概念店餐廳室內設計/Some Thoughts 空間設計工作室

成都好利來1992概念店餐廳室內設計/Some Thoughts 空間設計工作室

成都好利來1992概念店餐廳室內設計/Some Thoughts 空間設計工作室

採取挖掘商品與材料之間的關係,我們發現糕點作為商品與空間中使用的玻璃磚、瓦在用途和規格上都有著明顯差異。但追溯其製造過程,當液態狀經過高溫冷卻後,一個既易碎又有形的固體被製造。在傳統疊代至今的共性面前,我們期待它們去賦予空間某種新的秩序並被到訪者重新理解和接近。

成都好利來1992概念店餐廳室內設計/Some Thoughts 空間設計工作室

成都好利來1992概念店餐廳室內設計/Some Thoughts 空間設計工作室

成都好利來1992概念店餐廳室內設計/Some Thoughts 空間設計工作室

成都好利來1992概念店餐廳室內設計/Some Thoughts 空間設計工作室

成都好利來1992概念店餐廳室內設計/Some Thoughts 空間設計工作室

成都好利來1992概念店餐廳室內設計/Some Thoughts 空間設計工作室

利用玻璃瓦作為濾光器,使之在空間中折射、漫反射,進而引發空間及粗糙表面與光線的相融,在時間的推移中讓到訪者體驗到一種多變的重疊感。

成都好利來1992概念店餐廳室內設計/Some Thoughts 空間設計工作室

剖面圖 © Some Thoughts 空間設計工作室

成都好利來1992概念店餐廳室內設計/Some Thoughts 空間設計工作室

成都好利來1992概念店餐廳室內設計/Some Thoughts 空間設計工作室

成都好利來1992概念店餐廳室內設計/Some Thoughts 空間設計工作室

成都好利來1992概念店餐廳室內設計/Some Thoughts 空間設計工作室

設計師嘗試將視覺附著在古建築的屬性上進行重組,採取裝置與建築的相關性在空間中拉開視覺的張力並模糊直白的視覺符號。空間提供了大眾對傳統與當代之間的全面探索,並代表了某種情感語境,輔助想法向到訪者輸出了一個可感知的空間。

成都好利來1992概念店餐廳室內設計/Some Thoughts 空間設計工作室

成都好利來1992概念店餐廳室內設計/Some Thoughts 空間設計工作室

建築圖

成都好利來1992概念店餐廳室內設計/Some Thoughts 空間設計工作室

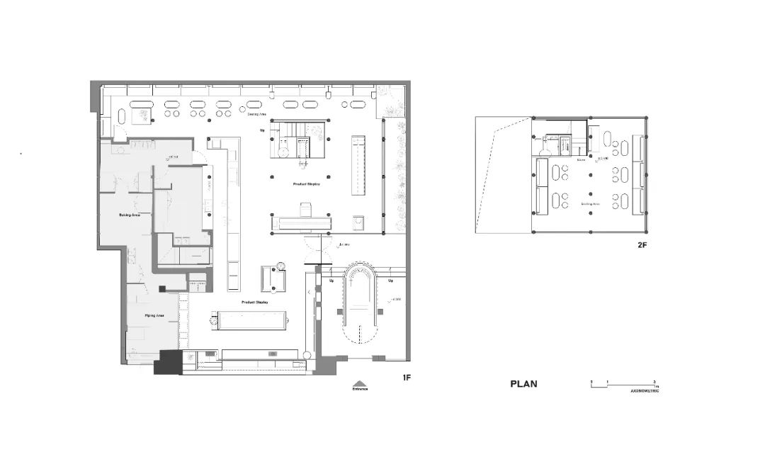
平面圖

成都好利來1992概念店餐廳室內設計/Some Thoughts 空間設計工作室

形體生成 © Some Thoughts 空間設計工作室

作品資訊

作品名稱:好利來1992概念店

作品位置:中國成都寬窄巷子

作品類型:室內設計

業主:好利來

建築設計:Some Thoughts 空間設計工作室

竣工:2021

面積:240.0 平方公尺

攝影師:邵峰

主持建築師:李京澤

設計團隊:劉盛雨、謝朕

營造廠:Shanghai TIQI Industrial Co. Ltd.

Leave a reply

Please enter your comment!
Please enter your name here

這個網站採用 Akismet 服務減少垃圾留言。進一步了解 Akismet 如何處理網站訪客的留言資料