由日本建築師坂茂(Shigeru Ban)設計,原本預計在2007年竣工的龐畢度中心梅斯市分館 Centre Pompidou-Metz 終於在2010年5月12日舉行新館開館儀式,梅斯市(Metz)距離距離法國巴黎3個半小時車程,未來建築迷們又多了一處必須朝聖的地方。
新的龐畢度中心由日本的坂茂建築事務所(Shigeru Ban)、巴黎的 Jean de Gastines 和倫敦 Gumuchdjian 建築師事務所共同設計,在2003年舉行的龐畢度中心新館國際競圖中,這支三國聯合設計團隊擊敗來自瑞士的 Herzog & de Meuron 建築師事務所以法國的 Dominique Perrault 建築師事務所等五支強勁對手,在評選中獲得最後勝利。

位於巴黎的龐畢度中心自1977年對外開放以來,由於收藏品數量龐大,致使大量作品得不到向公眾展示的機會。為了增加作品的展示機會,以及能夠滿足今後不斷增加的收藏品,該中心決定再建一個分館。
2003年1月梅斯市與龐畢度中心的管理單位宣佈這個以藝術、文化為主體的展覽空間將建設在梅斯市,而這裡離一般人觀念中的藝術重鎮巴黎有相當距離,反而與德國、比利時、盧森堡較近。
選擇這裡主要是因為2007年開通的歐洲東部TGV(高速鐵路)竣工後,法國方面希望吸引更多來自東歐和北歐各國的遊客,志在讓新龐畢度中心成為法國藝術家與歐洲其他地域藝術交流的一個區域中樞,也利於地區發展之平衡關係。

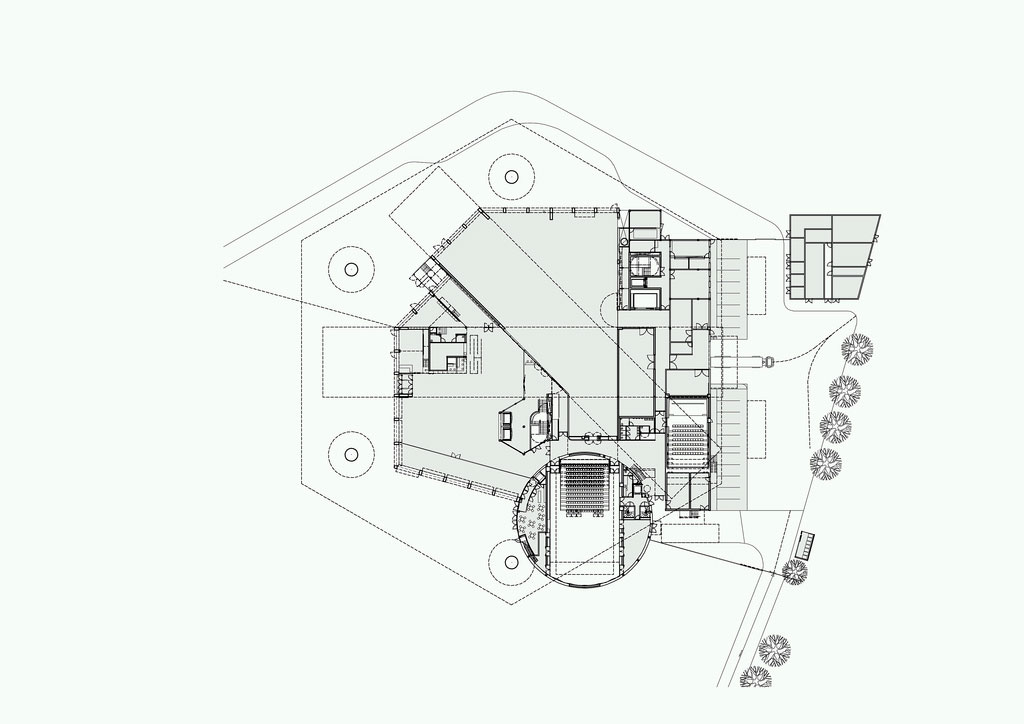
龐畢度中心梅斯市新館座落於法國梅斯市(Metz)一座公園內,總樓地板面積為14000平方米,其中6000平方米用作展覽場地。

比照與巴黎龐畢度中心,龐畢度中心梅斯市分館內部空間是三個永久性不規則展區,以矩形(平行六面體)管子建造,伸出屋頂之外,將大塊觀景窗戶直接打開,可看 到周圍的地標建築。展區正中心成列了最重要的藝術品,天花板高度從5.7米伸展到18米,除了展區空間,還有一座144席的演講廳、創意工作室以及屋頂咖 啡館。

三座高100米、寬15米的鋼構長方形管道結構可以控制氣溫,適合放置永久性的展品,如年代久遠的火車站和教堂紀念物,地面層是暫時性展覽的區域,包括室內和室外兩塊區域,安裝了可移動的玻璃窗板,能夠自由開關,打開時景觀可與周圍的公園景致相串通。

受到中國編織竹帽的啟發,建築頂部是巨大的鋼管和膠合板製成的六角形傘狀結構,覆蓋著半透明的薄膜,起到保護作用,建築師坂茂表示,在夏季可以「脫下」幾層薄膜,冬季可以「穿上」幾層薄膜,隨時能夠根據氣候的變化進行改換。
這座巨大建築的基本外形是一個六邊形,屋頂面積達8000平方米,利用白色纖維玻璃薄膜,施以 Telfon 塗層,彎曲的屋頂用複雜的六邊形網狀結構支撐,木樑以膠合板製作,網狀結構支撐具有極高的彈性,才使得屋頂面積可以極大化。
屋頂塗層不僅防水,還能控制溫度,保證內部藝術品得到保護。建築平面的中心處是一根高達77米的鋼構尖頂,據說象徵著龐畢度中心(Centre Pompidou)1977年在巴黎開放。
很早就以處理木構或竹構造出名的 Shigeru Ban 在設計初始階段便已考慮到木材的接合,他在四周採用了 1m 厚木樑作為結構的外框,然後把大約 200mm 厚的木樑以三個方向縱橫交錯起來,發展出其在立體空間內蜿蜒起伏的形狀。
每個方向的木樑都是由兩層的木板組成,在每個交接點是由 6層的木板互相緊扣,因此只需四支木柱便足夠支撐起8000 平方米面積的屋頂。

採聚四氟乙烯(PTFE)薄膜做為覆蓋的屋頂,在白天時,整座博物館外觀如白色草帽般光潔,但夜間在室內亮燈後,結構的影子便投射在白色屋頂上,凸顯其窩峰式木構造的特色,給予來此的訪客於室外、室內,白天、晚上不同時間不同地點截然不同的視覺感受。
首任館長 Pontus Hulten 說,「博物館不再是存放失去了社會功能的作品之祭壇,而是藝術家與民眾接觸,並激發民眾創意的地方。」
相關圖片


↗ Centre Pompidou-Metz 龐畢度中心梅斯市分館在白天時,整座博物館外觀如白色草帽般光潔
























建築圖

立面圖 | Elevation






