基地下挖讓孩子們安心遊玩,智利幼兒園Kindergarten Bambú/Gonzalo Mardones Viviani

0
2066

Kindergarten Bambú幼兒園位於智利的拉斯孔德斯(Las Condes)城鎮內,地處智利聖地亞哥安第斯山脈的山腳。

幼兒園設計的首要考量,確保在幼兒園建築不對周邊鄰里產生過多影響的前提下,讓園內的兒童可以將注意力放在所參與的遊戲活動和教育學習上,而不受周邊建築的影響,採用策略是將基地下挖,以創造一個較低的水平面,部分建築放置在半地下,使其與鄰里周邊的建築互不干擾,而遠方的自然景觀、丘陵、山脈和天空能盡收眼底。

智利幼兒園 Chile Kindergarten Bambú/Gonzalo Mardones Viviani

智利幼兒園 Chile Kindergarten Bambú/Gonzalo Mardones Viviani

將基地下挖,以創造一個較低的水平面,部分建築放置在半地下,使其與鄰里周邊的建築互不干擾 智利幼兒園 Chile Kindergarten Bambú/Gonzalo Mardones Viviani
將基地下挖,以創造一個較低的水平面,部分建築放置在半地下,使其與鄰里周邊的建築互不干擾
木構編織立面 智利幼兒園 Chile Kindergarten Bambú/Gonzalo Mardones Viviani
木構編織立面

智利幼兒園 Chile Kindergarten Bambú/Gonzalo Mardones Viviani

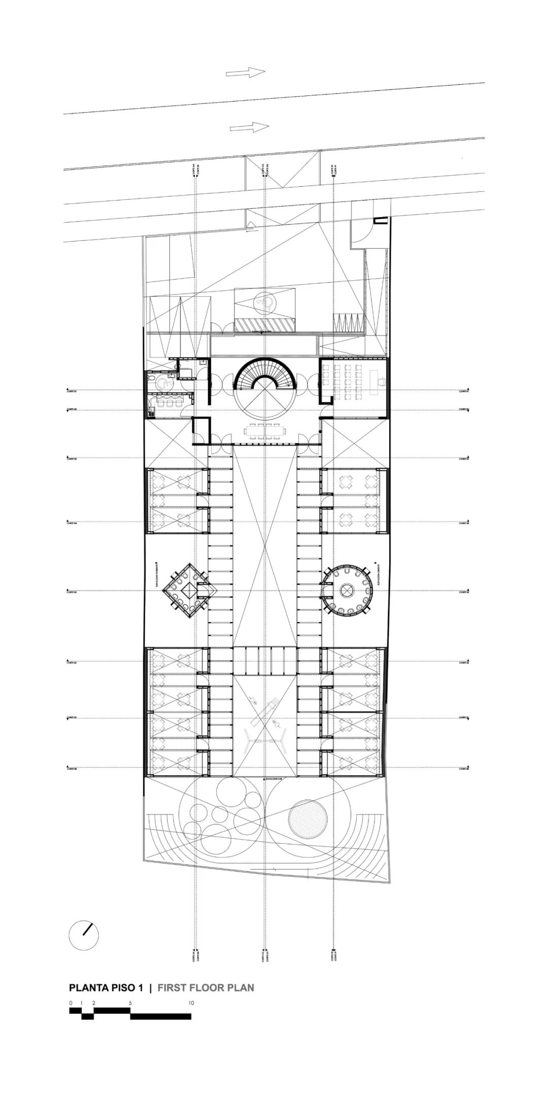
此外,建築盡可能地沿著街廓邊緣的建築線興建,以最大化中心的兒童遊樂場區域,並圍繞內部庭院打造了系統化的教室空間。此一做法在清晰地呈現各空間機能的同時,標明了連接大型中央庭院的兩條走廊要素。

中心的兒童遊樂場 智利幼兒園 Chile Kindergarten Bambú/Gonzalo Mardones Viviani
中心的兒童遊樂場
孩子在廊下半戶外空間遊玩 智利幼兒園 Chile Kindergarten Bambú/Gonzalo Mardones Viviani
孩子在廊下半戶外空間遊玩

建築內部的空間動線由一個連接不同機能空間的門廊架構。空間形狀各異,有圓柱形、方形、以及對應的矩形和對角線關係。因而,即便是身處內部的中央庭院,使用者依舊可以捕捉到大小或遠近間的差異性感受。

孩子在廊下半戶外空間遊玩 智利幼兒園 Chile Kindergarten Bambú/Gonzalo Mardones Viviani
孩子在廊下半戶外空間遊玩
半戶外廊道空間 智利幼兒園 Chile Kindergarten Bambú/Gonzalo Mardones Viviani
半戶外廊道空間
半戶外廊道空間 智利幼兒園 Chile Kindergarten Bambú/Gonzalo Mardones Viviani
半戶外廊道空間

材料與語彙

作品在材料和色調語言的設計上有著獨特且統一的考量,以將所有元素組合在一起,例如層壓板材的松木樑、柱子以及代表性的松木板牆壁。

空間幾何

空間的幾何形狀由基礎形構成,對兒童而言簡單可辨(光的立方體、三角形、正方形和圓柱體);空間內的光線塑造手法涉及垂直、水平和對角線多個次元。

智利幼兒園 Chile Kindergarten Bambú/Gonzalo Mardones Viviani

內部空間 智利幼兒園 Chile Kindergarten Bambú/Gonzalo Mardones Viviani
內部空間

智利幼兒園 Chile Kindergarten Bambú/Gonzalo Mardones Viviani

建築師試圖打造一個安靜的建築實體,以呈現獨特松木的金色光芒。內部中央庭院的雕塑由Federico Assler為幼兒園專們打造,對此一教育機能的建築空間有著代表性的意義。

木頭樓梯 Timber Stairs智利幼兒園 Chile Kindergarten Bambú/Gonzalo Mardones Viviani
木頭樓梯

智利幼兒園 Chile Kindergarten Bambú/Gonzalo Mardones Viviani

智利幼兒園 Chile Kindergarten Bambú/Gonzalo Mardones Viviani

‍‍‍‍‍‍‍‍‍‍‍‍‍‍‍‍‍‍‍‍‍‍

建築圖

基地位置圖 智利幼兒園 Chile Kindergarten Bambú/Gonzalo Mardones Viviani
基地位置圖
一樓平面圖 智利幼兒園 Chile Kindergarten Bambú/Gonzalo Mardones Viviani
一樓平面圖

 

智利幼兒園 Chile Kindergarten Bambú/Gonzalo Mardones Viviani

二樓平面圖

智利幼兒園 Chile Kindergarten Bambú/Gonzalo Mardones Viviani

屋頂平面圖

智利幼兒園 Chile Kindergarten Bambú/Gonzalo Mardones Viviani

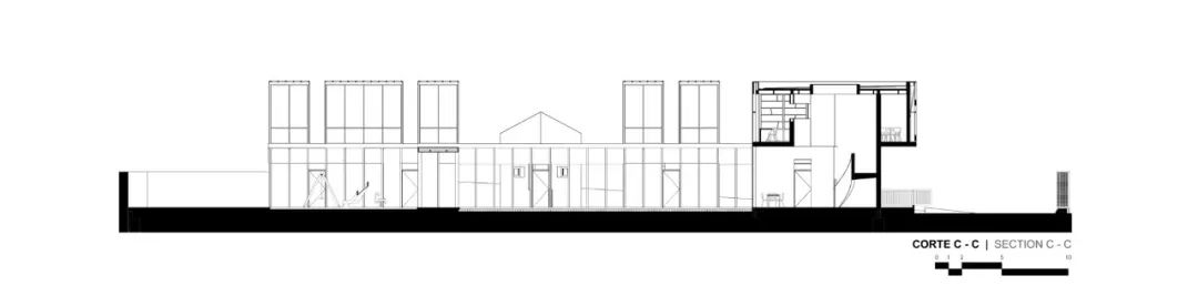
剖面圖

智利幼兒園 Chile Kindergarten Bambú/Gonzalo Mardones Viviani

剖面圖

智利幼兒園 Chile Kindergarten Bambú/Gonzalo Mardones Viviani

剖面圖

智利幼兒園 Chile Kindergarten Bambú/Gonzalo Mardones Viviani

剖面圖

智利幼兒園 Chile Kindergarten Bambú/Gonzalo Mardones Viviani

剖面圖

智利幼兒園 Chile Kindergarten Bambú/Gonzalo Mardones Viviani

剖面圖

智利幼兒園 Chile Kindergarten Bambú/Gonzalo Mardones Viviani

剖面圖

智利幼兒園 Chile Kindergarten Bambú/Gonzalo Mardones Viviani

剖面圖

智利幼兒園 Chile Kindergarten Bambú/Gonzalo Mardones Viviani

剖面圖

智利幼兒園 Chile Kindergarten Bambú/Gonzalo Mardones Viviani

剖面圖

智利幼兒園 Chile Kindergarten Bambú/Gonzalo Mardones Viviani

剖面圖

智利幼兒園 Chile Kindergarten Bambú/Gonzalo Mardones Viviani

剖面圖

智利幼兒園 Chile Kindergarten Bambú/Gonzalo Mardones Viviani

剖面圖

智利幼兒園 Chile Kindergarten Bambú/Gonzalo Mardones Viviani

剖面圖

智利幼兒園 Chile Kindergarten Bambú/Gonzalo Mardones Viviani

北向立面圖

智利幼兒園 Chile Kindergarten Bambú/Gonzalo Mardones Viviani

東向立面圖

智利幼兒園 Chile Kindergarten Bambú/Gonzalo Mardones Viviani

西向立面圖

智利幼兒園 Chile Kindergarten Bambú/Gonzalo Mardones Viviani

南向立面圖

作品資訊

作品名稱: Kindergarten Bambú幼兒園

作品位置 : 拉斯孔德斯, 聖地亞哥首都大區, 智利

事務所 : Gonzalo Mardones Viviani

總面積 : 455.0 平方公尺

測量工程師 : Alberto Ramírez

雕塑家 : Federico Assler Maderas

攝影師 : Pablo Casals

Leave a reply

Please enter your comment!
Please enter your name here

這個網站採用 Akismet 服務減少垃圾留言。進一步了解 Akismet 如何處理網站訪客的留言資料