空間可以勾勒出一張畫布,讓身體自由、無拘束,透過真實的生活去渲染、填滿畫布。終究,在畫布內找到自己的影子。
此刻的我,回家了! 和自己和解。
山合院位於新北市新店區的秀岡山莊範圍內,西側毗鄰康橋國際學校(秀岡校區),社區內有著媲美國家公園般的山水地景,依地勢高低配置著獨棟或雙拼雙坡、四坡式波形瓦屋面美式住宅。




基地整地
基地位於山坡地上,西側面向道路為下緩坡高度下降約1.8米。基地北、東及西側為既有擋土牆,也是建商早期因開發地籍分割界定出來的範圍。基地東南角為三級坡高程下降約2.5米,既有駁坎因天然地勢的關係存有破口,駁坎的下方則為社區內環湖步道。
由於本案未設置地下室(除水保設施),整地原則是於駁坎內側新設擋土牆補齊破口,以防止未來東南角土方的流失。基地面向道路側沿著建築線退縮1.5米闢建人行步道後興築擋土牆以回應道路的緩降。
建築規劃
新建住宅為2層樓建築物,無設置屋頂突出物。1F非居室休憩空間-客廳、餐廳、廚房、玄關設計為一層樓高(4.2M),透過低度容積率的開發及微建物量體設計,讓此小品建築能與周遭既有建物與環境共生。
設計概念:山上的微建築
胡世昭建築師試著以「微、弱、輕」的空間設計觀點與語法,在一個熟成且社區意識深化的山區地域涵構,以「環境優先」的空間文本去發展空間形態與構成;當「環境即資源」依山傍水成為真實,建築應成為環境的配角,讓環境孕育出一個能與週遭自然生態能取得共好與平衡的「微 . 建築」。不追求垂直高度的生長,以二層樓取代三層樓;設計團隊以40%的低度容積去對比60%的法容上限。

山與合院基地被群山環繞著,入春後點綴在遠方山林綠叢間的是梧桐花。胡世昭建築師在山中創生一個「院」稱之為「山合院」,它必需穠纖合度,才能成為自然元素的載體。
三合院的開口望向湖對岸的紅瓦屋頂及遠挑後方的山林。合院的中心是光影一池水,映射著建築物的豐富光影表情,雲霧飄渺的院內可以聽見風聲、雨聲及鳥叫聲,院裡面的人是透過天空這個媒介與環境緊緊的連繫著。

生活的場景
環抱合院的出挑簷廊成為室內空間與院落的延伸與中介,簷廊下的空間及大面積的落地橫拉窗將人從室內誘導出來,而發生在簷廊下方的樣態如泡腳池、躺椅、鞦韆及BBQ爐台才是孕育真實生活的場景所在。
漂浮的房子建築的「邊與界」是實與虛、封閉與開放、室內與室外的轉換處,在垂直向度外牆板接近地面層的內縮,塑造出一間「漂浮在空中的房子」;如同踢腳板的美學一般,提供了大地與構造物的緩衝帶。
一樓樓地板的上抬(95公分)除了讓房子取得內部高外部低的姿態,同時也讓位處山區潮濕多雨的環境下的建物提供一個阻絕地濕氣的方案。別於傳統基礎的向下開挖,讓原本密閉潮濕的筏式基礎直接構築於整平的基地地面之上,因上抬樓地板而裸露基礎的外緣牆上預配通氣口,讓原本密閉潮濕的基礎坑得以進行自然通風對流。

縫補土地與建築
拾級是移動方向的暗示與引導,亦是縫補高程的手段。階、梯是空間與空間的連結與駐足點,在上下層的空間中流動或停留,流動中還能建構出不同的空間氛圍。量體漂浮後的隱退必然存在著動線的接口與癒合,建築物前庭Z形的戶外階梯及依附在建物週邊的坡道或短梯,每一階的腳步都可以蘊藏生活的智慧與預設端景的驚喜,讓這原本僅有連接機能的物件,成為人接近建築中情緒梳理的緩衝。
落瀑的時間存在感
合院右護龍的玻璃盒中是茶屋。一邊望向遠方的秀麗山巒,一邊可觀賞鄰地樹梢上跳舞的五色鳥,而另一邊則是望向合院中間水池的落瀑,無風的時候水池如明鏡一般映射著天空與後方二層樓的家。茶屋裡的日常是有形的「茶藝」和無形的「茶道」,刻意讓茶屋主人面對水池的落瀑而座,石板上刻劃的深溝伴隨著聲響讓水幕激動了起來,而這水流動的音符讓人感受到時間的存在。

生態跳島
綠屋頂版牆結構及反樑至屋頂板上的設計,讓室內看不到樑柱的存在,同時利用突出於屋頂面上的反樑圍塑成可植栽的花圃的邊界。當建築開發行為成為生態與綠地的殺手,從建築立面或屋頂找回失去的綠化面積,是修復生態保育的積極作為。
綠屋頂除了能降溫、保濕也提供使用者一個能從事半農的機會,刻意降低屋頂高度的可及性屋頂,人在屋頂找回在地面失去的自然,讓自己也讓鄰居得到環境美化、療癒身心的效果。


入口省去了多餘的綴飾,「山合院」幾個白色高低錯落盒體的極簡造型格外醒目,在主幹道上就清楚可見,刻意降低彩度、深淺不一的磚石矮牆經過巧妙地垂直分割與錯落,任材質兀自傳述原生的大地粗曠質感,堆疊出豐富變化與層次,有別於週圍渡假別墅磚紅溫潤的大眾色彩。外圍蜿蜒的戶外階梯拾級而上,向路過的人們發出了誠摯邀請。





起居空間往內玄關的另一側前行,踱過一偶轉角便能來到一間挑高4.2米的起居空間,它是由客廳、餐廳、廚房及中島構成的主空間,為展現空間器度、開闊並延伸空間長軸的視野,在客廳植入了一座人字形柚木皮斜天花板,客廳一角倒吊著一座黑鐵造型火爐,它是客廳的藝術品也是冬天家人蓄暖的所在,藉由高低差的對比與層次,在空間視覺上帶出高挑錯覺,也讓平面空間變得立體有趣。中島上方留著一排長高窗,除增進烹廚空間空氣的對流,同時自然光也透過折射從天花上方漫射下來。



內玄關進入內玄關,前景迎來的是合院的「內埕」以遠方的山際線為背,水池中間的視覺焦點是一株斜倚在如鏡水面上的五葉松,大片橫拉的落地窗讓人經驗到剛離開自然卻又重新進入了自然的驚喜,它具體發生在「家裡」,一個「合院擁抱自然的家」。


茶屋
業主李銘煌董事長喜歡品茗、以茶會友,且因工作的關係經常往返於台東與台北兩地,除了在台東鹿野向果農收購水果製成冰棒,也在當地找茶農契作蜜香紅茶,設計起草就特別交待胡世昭建築師,需要安排一間可以實踐家訓並兼顧至親朋友聚會的茶屋。
相對於起居空間必需對外保有的私密性,胡世昭建築師把基地內視覺景觀最好的位置留給了茶屋,三邊都是玻璃的落地窗邀請了自然進來。起居空間與茶屋的玄關是由一道挑高的金屬對開橫拉門區劃開來,茶屋的玄關牆面貼覆的是仿古的斑駁紅磚,地面貼的是建築師至景觀石材廠精挑出來的鐵刀石薄板,進入茶屋的玄關古樸況味襲面而來。
實木胡桃木茶桌是由六片(3尺*6尺)塌塌米圈圍著,為取得最持久及舒適的座姿,採用下嵌式的設計以免除年長者可能因長時間盤腿所帶來的不適。茶屋主座的方位面向合院的水池落瀑是業主挑選的,主座右側留設泡茶所需的工作平台與水槽,隱身於桌面水平之下。

餐廳:門後才是真實生活的所在

石皮牆與樓梯
内玄關(正身)是一個空間的節點(node),左側是通往二層樓的臥房單元及設備空間,廊道的盡頭是一座由鋼構面鋪木地板的鏤空樓梯,樓梯右側牆面是一面由室外內庭轉折進入室內的L形石皮厚牆,自然鑿面、進出的紋理藏著石材的結晶體,一片與一片之間設計成斜切的接口,由一樓延展至二樓,頂天立地暗示著上層空間的存在感,同時也讓公共多間多了一份沈穩的雜揉閒適,樓梯下方的閒置空間是廊道盡頭的端景,展示的是一部業主收藏具有童趣的Honda Monkey 50cc機車。



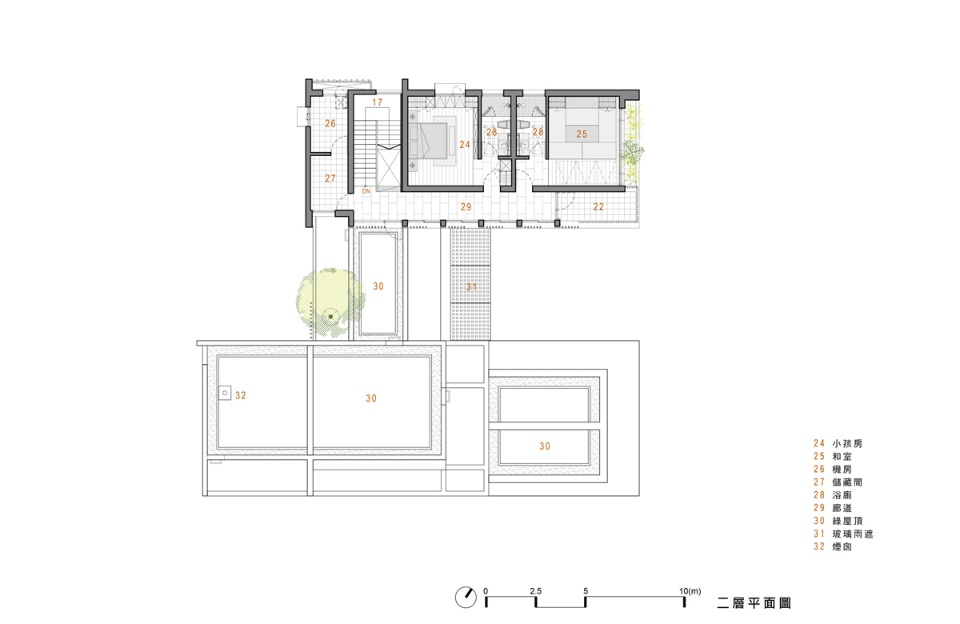
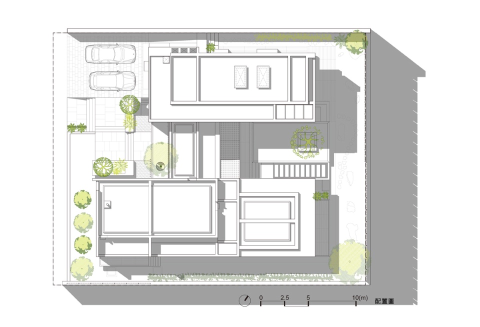
建築圖









作品資訊
作品名稱:山合院
作品位置:新北市新店區
業主:李銘煌
作品類型:私人住宅
建 築
事 務 所:世騰建築設計事務所 / SCH Architects
建 築 師/主 持 人:胡世昭 AIA,LEED AP
參 與 者:福島宗大、周姵余
監 造:林德群建築師事務所
結 構:峻國聯合工程顧問有限公司
水 電:永業機電工程設計
空 調:世騰建築設計
景 觀:綠波環境設計、世騰建築設計
室 內 : 世騰建築設計
施 工
營 造 廠:陸安營造
金 屬:欣鋐金屬
室 內:李仁宗工程行
水 電:傳明水電
空 調:順泓空調工程
景 觀:田美園藝
照 明:世大照明
材 料
建 築:混凝土、STO塗料、花岡石、金屬烤漆板
開 口:鋁門窗、Low-E複層玻璃、金屬門
室 內:矽酸鈣板、薄板磚、板岩磚、木地板、鍍鈦金屬
景 觀:花崗石、麥飯石、塑木地板
基地面積:867㎡
建築面積:260㎡
總樓地板面積:345㎡
設計日期:103年1月至104年4月
工程日期:105年1月至108年2月
攝 影:郭柏均、胡世昭
設計團隊簡介
世騰建築設計事務所
世騰建築設計事務所致力於住宅建築型態的多樣性探索及空間研創,不複製生活,因為相信個體都有屬於自己的生活內容及涵養。透過人及環境的溝通與對話,能夠找到最佳的空間實踐方案
主持建築師 胡世昭
學 歷
1995 逢甲大學 建築學系
2000 美國賓夕凡尼亞大學 建築研究所
MArch [ Design and Theory ]
GSFA, University of Pennsylvania, USA
現 職
2006迄今 世騰建築設計事務所 / SCH Architects 主持人
2009迄今 台北科技大學建築系兼任講師
經 歷
2000-2005 美國Anshen+Allen, Architects (Stantec since 2010)專案設計師