河港城市的傳統歷史與當代文化
在日本岐阜縣大垣市的船町,栄光堂ホールディングス株式会社(EIKODO HOLDINGS)建設了一座新型多用途設施「船町ベース」(船町基地),包含一家咖啡廳和和菓子店。這座城市自江戶時代以來便是一個繁榮的河港,成為人流、物流和文化交流的樞紐。大垣市以其豐富的歷史文化遺產著稱,擁有眾多古老的建築和傳統的手工藝品,吸引了無數遊客。這裡也是松尾芭蕉的著名詩集《奧之細道》(Oku no Hosomichi)的終點。松尾芭蕉(Matsuo Basho)是日本江戶時代的著名俳句詩人,他的詩作展現了自然之美,並且反映了當時社會的風貌和人們的情感。



「船町ベース」(船町基地)的設計初衷是希望能再現過去的熱鬧景象,從一家日式甜點店出發,並擴展至毗鄰的水門川遊歩道四季の路(ミニ奥の細道)。這條長達2.2公里的步道沿著市區內流經的水門川建設,起點為大垣站東側的愛宕神社,途經大垣站通、八幡神社,最終抵達船町的奧之細道結束地。步道設有二十多座橋樑,每座橋樑的欄杆都經過精心設計,讓遊客在欣賞自然景觀的同時,也能感受到歷史文化的熏陶。這樣的設計延續了大垣市的歷史文化,並且為現代生活注入了新的元素。


自然景觀的延續:設計理念與細節
長坂常與他的團隊在設計時,希望能與水門川遊歩道四季の路的自然景觀保持連續性,因此「船町ベース」採取木構造,並且種植了與步道同樣種類的樹木。這樣,訪客可以在步道中散步,然後進入和菓子店,觀賞製作甜豆餡的過程,並聞到蒸糕的香氣。步道兩側的美麗自然景色,以及許多歷史遺跡,例如「こんにゃく屋文七と掘り抜き井戸發祥の地」,再現了天明年間(1781~1789)發明的自噴井戶,讓遊客體驗到昔日的生活智慧。設計團隊將設施視為步道的延伸,包括通過花盆連接的庭院,使場地內外的邊界消失,訪客會自然而然地被吸引進入。


|
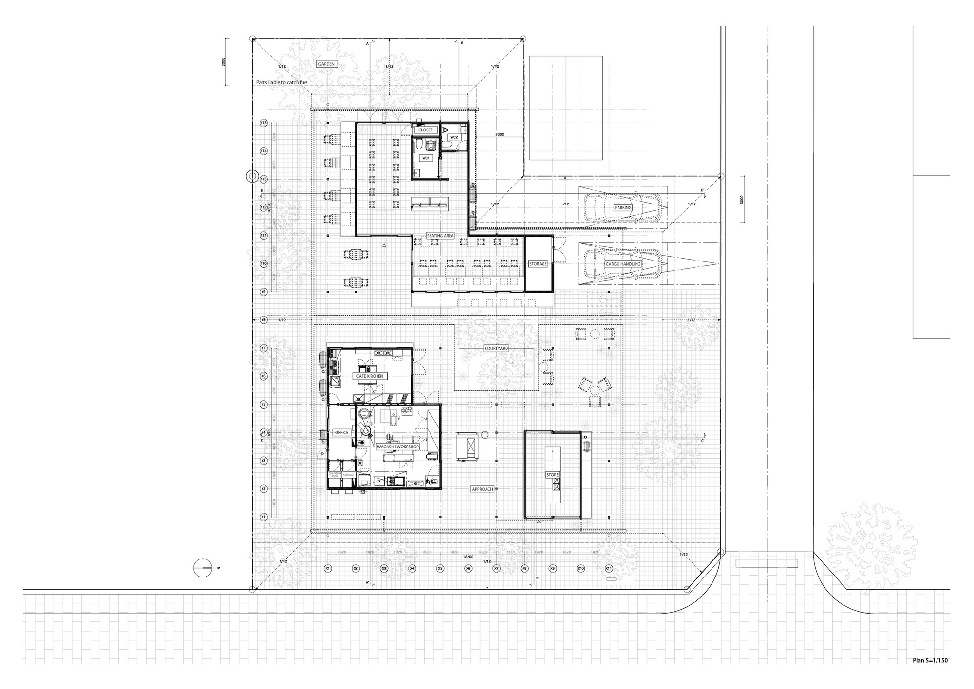
功能與空間的巧妙分配:設施的佈局設計
在復興主要和菓子店Kincho-do的同時,考慮到場地的寬敞和吸引人流的需求,設計團隊在建築內增加了餐廳功能。然而,由於擔心餐廳部分可能相對於和菓子店顯得過於龐大,設計團隊將其劃分為廚房和用餐區,形成三個有大屋頂覆蓋的區域。


內外均使用相同的材料:矽酸鈣板和填充塗料,通常用於戶外排水溝的PVC管經過噴砂處理,並橫跨建築內外。延伸的屋簷創造了內外可互換的空間,使在天氣晴朗時,外部空間與內部一樣舒適,達到了內外不分的奇妙感受。這些設計元素與四季の路的景觀相呼應,讓訪客在享用美食時,也能感受到自然的氛圍。


設計的多功能性:促進社交互動的設施
長坂常及其設計團隊還設計了突出的基礎部分,成為顧客取和菓子的櫃檯、供人休息的長椅,以及製作和菓子所需水源的井。這些設計元素促進了內外空間的互動,使場地不再只是一個建築,而是一個充滿活力的社交場所。這樣的設計提高了空間的功能性,還增強了使用者之間的互動,進一步拉近了人與空間的距離。沿著水門川的步道上,還有愛宕神社前的岐阜町道標,這是文政5年(1822)建成的石製道標,為來往旅人指引方向,並祈求道路平安。


城市與未來:吸引年輕人回流的願景
透過邀請人們享受這個獨特的建築,長坂常希望能夠帶動大垣市的年輕人返鄉定居,同時吸引城市居民搬遷至此生活、工作,並支持城市的未來發展。這既是對建築美學的追求,也是對社會功能和文化傳承的深刻思考,期望通過這種方式為城市注入新的活力。在四季の路上,還有一個特別的景點——「ミニ奥の細道」,這是一條象徵性的步道,重現了松尾芭蕉《奧之細道》全程2,400公里的旅程,並設有20塊俳句碑和相關解說,讓人們在這裡追溯詩人的足跡,體驗他當年的心境。



建築圖




作品資訊
作品名稱:船町ベース|Funamachi Base Store
作品位置:日本大垣市
作品類型:商業建築、 日本建築、室內設計、商業空間、餐飲設施、咖啡館、木構
設計單位:Schemata Architects
主持建築師:長坂常(Jo Nagasaka)
總樓地板面積:326 平方米
竣工:2024年
攝影:Yurika Kono
製造商:FUKUSHIMA GALILEI, Monochrome
營造廠:Giken
專案團隊:Yuko Yamashita
撰稿:Yuko Yamashita