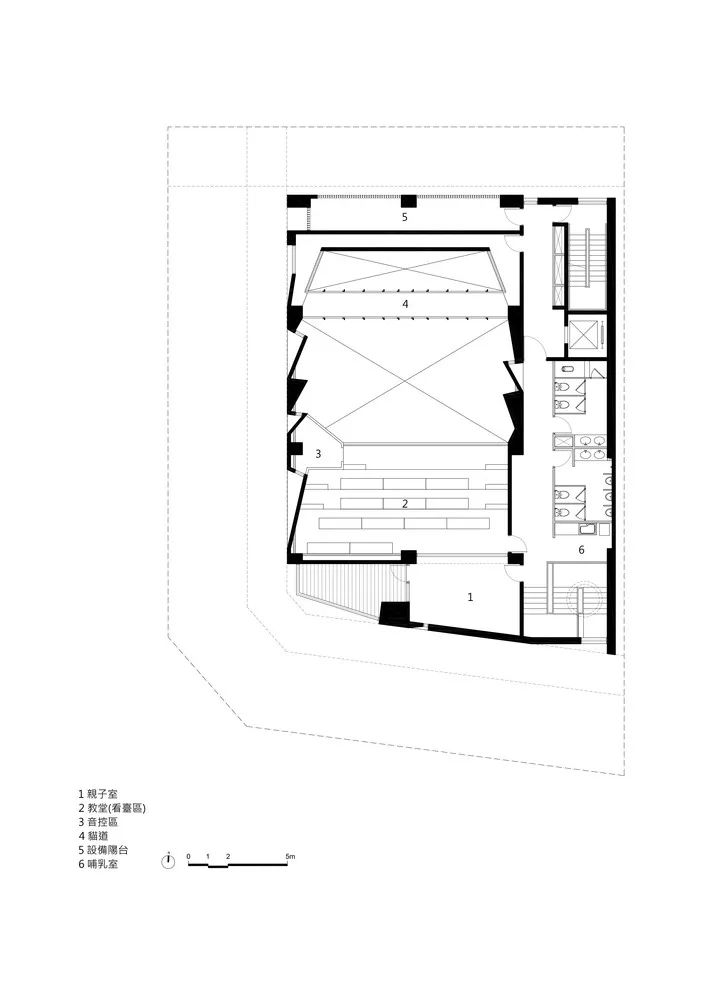
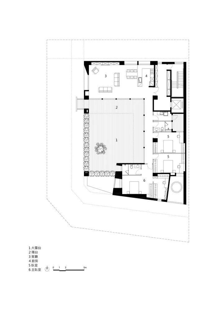
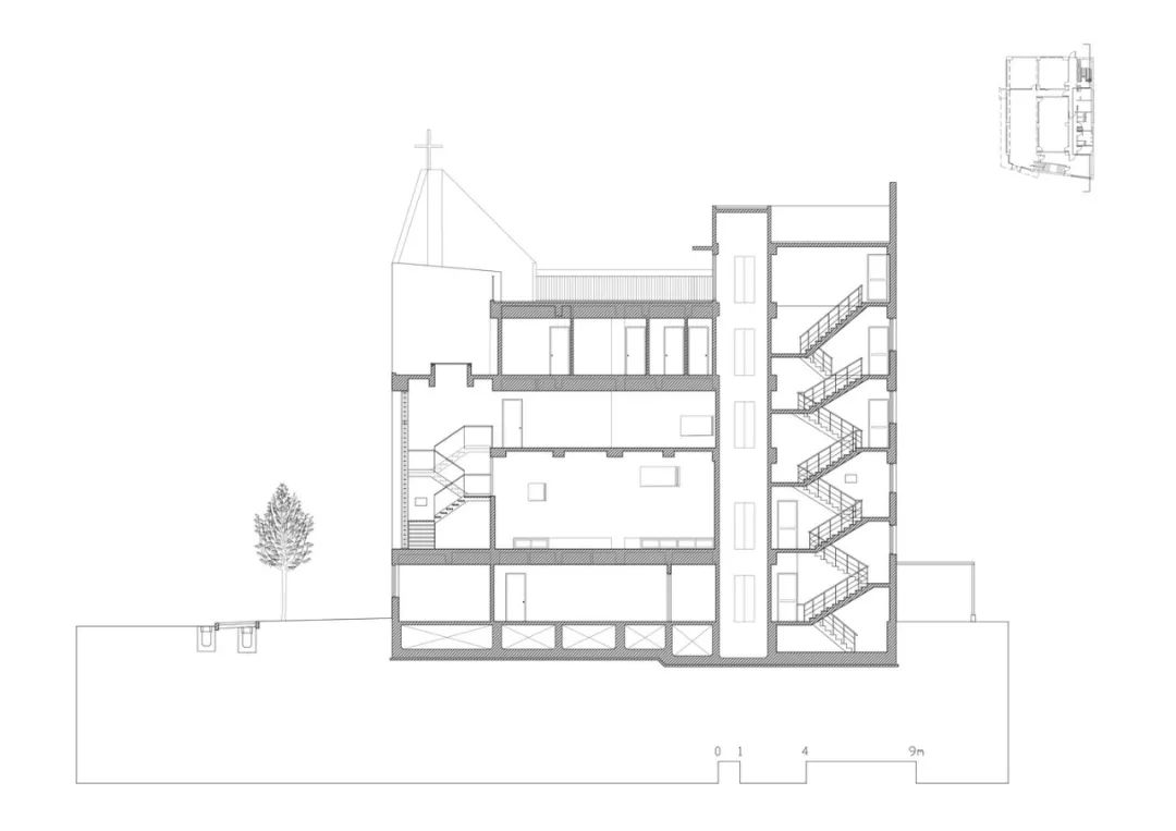
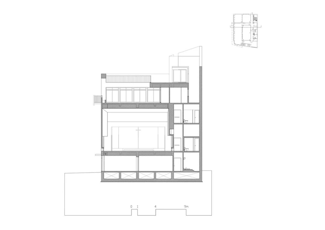
座落於台中水湳經貿園區旁的貿易九村浸信會是一個規模很小的教會,建築物高四層樓,一樓為副堂兼多用途空間以及辦公室和廚房等使用,二樓為大堂,三樓為大堂夾層和親子空間,四樓則為牧師館。








「作外邦人的光」是本教會空間設計概念的發想。基地為面西和面南的角地,西向為大堂的主要立面,以實牆隔絕了大部分的西曬光線,同時以不規則配置、切斜角的有色玻璃小深窗來引進帶有顏色的神祕光線,在大堂內部創造了有如廊香教堂的光影效果。






東向為主樓梯所在的區域,外牆以挑高兩層的垂直彩色玻璃花窗和頂上得天窗來塑造一個向上、喜樂的空間感。





建築圖













作品資訊
作品名稱:貿易九村浸信會
作品位置:台中市北屯區經貿路一段600號
建築師:張景堯建築師事務所+大埕設計股份有限公司
業主:貿易九村浸信會
作品類型:宗教建築
參與人員:張景堯、高喧雅、林於正
建築面積:1350.0 平方米
竣工:2016年
