這座多種用途建築位於越南河內的西湖沿岸地區,設計團隊的任務是設計和完成該建築的架構和外立面,並為低樓層設計咖啡店,其餘樓層則出租使用。




西湖是越南河內市內的靠北邊的一座巨大湖泊,面積約5平方公里,原本是紅河的一段河道瘀塞而成,西湖周遭有許多寺廟景點和高級酒店,這棟建築有個優勢,那就是面朝景觀迷人的西湖;此外,它還以退縮讓景觀配置在前面的街道之間。考量到湖邊街道立面環境的特點,設計著手挖掘建築立面的”動態”,利用建築的後退空間在街道立面序列上做了一個停頓,與前方車流形成強烈的空間互動。






採取建築外部極具戲劇性的支柱,景觀激發了人們的活動方式——從街道一直延伸到人行道,再到花園、庭院,然後到建築內部。同時,這也有助於實現咖啡店營運計劃中設定的目標,目的在於吸引客人進出並使用建築裙樓上的咖啡服務。





基本上,一個木製的弧形拱門結構被”嵌入”在立面上,在建築內部和外部空間之間創造了一個有趣的邊界,天井空間被塑造成多個集群,為不同人群提供隱私和開放的景觀。從建築內部看,這個系統還塑造了一個獨特的”玻璃棱鏡拱門”的外部景觀視圖。設計目的是為了探索建築外殼結構內外之間的新體驗。





咖啡店內部被定位為完全開放的空間。我們用低隔板來劃分座位區,確保視野從建築深處的區域能延伸擴散到前面的景觀。原材料的使用組合有:混凝土、磚、陶瓷、耐候鋼等等,使內部空間帶來一種質朴、友好和自然的存在,以環繞式的綠化植栽和景觀為客人帶來愉悅感。


建築圖

全區配置圖

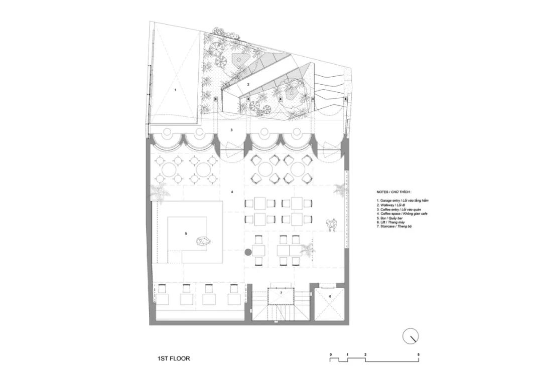
一樓平面圖 Plan

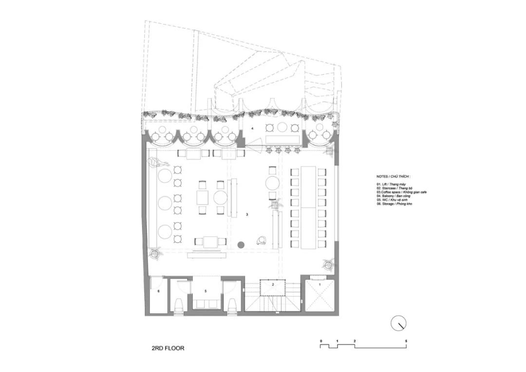
二樓平面圖 Plan
作品資訊
作品名稱:Bonjour Caf
作品位置:129 Nguyễn Đình Thi, Thuỵ Khuê, Tây Hồ, Hà Nội, 越南
作品類型:咖啡館、室內設計
建築設計:Comma Studio
主持建築師:Nguyen Quoc Thanh
設計團隊:Bui Anh Tuan, Nguyen Ngoc Linh, Nguyen Thi Hong Tra
竣工:2020
總樓地板面積:360平方公尺
攝影師:Hoang Le
