雕刻時光的土耳其建築師,Emre Arolat

0
3042

EAA( Emre Arolat Architecture)由Emre Arolat和Gonca Paşolar於2004年成立,最初是在伊斯坦堡的一個小辦公室中,不久便成為了土耳其最大的建築師事務所之一。他們掌握了各種規模和類型的設計,包括眾多的宗教建築,EAA在伊斯坦堡、倫敦紐約營運,使他們的設計能力適應不同的地理和文化。

土耳其建築師Emre Arolat和Gonca Paşolar
土耳其建築師Emre Arolat和Gonca Paşolar

EAA不斷尋找雕刻光線和材料的新方法,儘量減少對環境的影響,並從一開始就藉由製作細部來呈現最終的建築,進而鞏固設計。EAA作品的每一作品都是藝術品,它將智力和藝術的敏感性結合在一起,同時又受到了傳統和文化的熏陶。

Sancaklar Mosque清真寺,土耳其/Emre Arolat

Sancaklar Mosque清真寺,土耳其/Emre Arolat

Sancaklar清真寺位於伊斯坦堡郊區Buyukcekmece,試圖解決設計清真寺的基本問題,藉由與當前基於形式的建築討論劃清界限,關注宗教空間的本質。

Sancaklar Mosque清真寺,土耳其/Emre Arolat
Sancaklar Mosque清真寺,土耳其/Emre Arolat

位於一片草原之中,與周圍的郊區封閉社區由繁忙的高速公路隔開。在清真寺上院環繞公園的高牆,清晰地勾勒出喧囂的外部世界與寧靜的公園氛圍之間的界限。從公園延伸出來的長長的樹冠成為了唯一可以從外面看到的建築元素。建築與地形完全融合在一起,當人們穿過景觀、下山和在牆壁之間進入清真寺時,外部世界被拋在了後面。

Sancaklar Mosque清真寺,土耳其/Emre Arolat
Sancaklar Mosque清真寺,土耳其/Emre Arolat
Sancaklar Mosque清真寺,土耳其/Emre Arolat

清真寺內部,一個簡單的洞穴般的空間,成為一個戲劇性和令人敬畏的地方祈禱和與上帝獨處的場所。齊布拉牆上的裂縫和裂縫增強了祈禱空間的方向性,讓陽光可以滲入祈禱大廳。







該作品不斷地在人為與自然之間製造緊張關係。沿著自然景觀斜坡的天然石質樓梯與跨越6公尺的薄鋼筋混凝土板之間的對比形成了天篷,這有助於增強這種雙重關係。


Mau Religious Complex土耳其/Emre Arolat

馬爾丁是土耳其東南部的一座古城。它有著密集而複雜的城市紋理,由石牆、狹窄的街道和內部庭院組成。在這個充滿詩意的空間裡,來自不同種族和宗教的人們已經共同生活了幾個世紀。



Mardin Artuklu大學的作品簡介是設計一個宗教綜合體,它將馬爾丁的三個宗教(伊斯蘭教、基督教和雅茲迪教)的崇拜空間結合在一起。

建築的力量,當它觸及一個人的靈魂而不屬於嚴格的文化象徵或歷史慣例時,被認為是超越這些問題的媒介。在這個宗教綜合體的設計中,空間試圖以永恆的方式延續精神空間的唯一本質。它讓不同的宗教在不同的空間呈現自己,同時使它們成為日常生活之外的共同經歷的一部分。不同的崇拜空間不是可以相互比較的單一對象,而是一個更大的整體的一部分,是一個永恆的空間。以土色的混凝土、水和庭院為基礎,對空間和空間進行模擬,將空間與古馬爾丁的詩意氛圍連接起來。




Nora清真寺和社區中心阿拉伯聯合大公國/Emre Arolat

Emre Arolat建築師事務所公佈了他們在阿拉伯聯合酋長國阿吉曼的諾拉清真寺和社區中心的設計。佔地10000平方公尺,位於杜拜北部,靠近一座大型高層住宅大樓。它藉由從地球上冒出的貝殼狀平台構成了自己獨特的氛圍和空間環境。




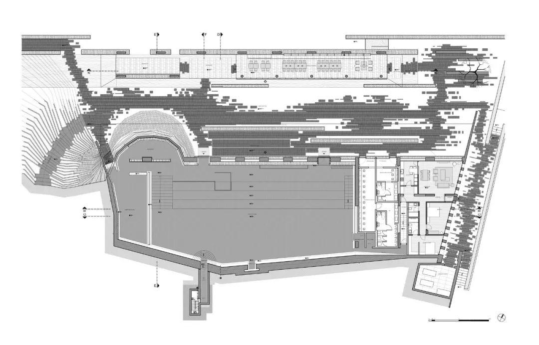
Yalikavak Palmarina土耳其/Emre Arolat

亞利卡瓦克(Yalıkavak)是土耳其西南海岸的瀉湖之一,如今正成為沿土耳其裡維埃拉藍色航行的熱門目的地。與其省級中心博德魯姆(Bodrum)在1980年代隨著旅遊活動的增加而面臨建築業的繁華不同,雅利卡瓦克(Yalikavak)仍處於半島相對平靜,安靜且未受破壞的海灣之中。





更新和擴展現有碼頭綜合體,以供Yalikavak的中產以上階級使用,需要在此特定地區吸引大量投資,因此也會帶來自己的設施。設計的主要動機試圖充分滿足新居民的需求和願望,並與當地的真實品質建立對話,在Yalikavak的建築和社會氛圍中找到歸屬感。這種趨勢可以簡單地描述為「地中海生活方式」。

Leave a reply

Please enter your comment!
Please enter your name here

這個網站採用 Akismet 服務減少垃圾留言。進一步了解 Akismet 如何處理網站訪客的留言資料