巴黎十七區的垂直校園革命與建築節制美學
在巴黎第十七區的心臟地帶,AR Studio d’Architectures建築師事務所完成了「42UP」案,這是在著名的程式設計學校École 42進行的增建工程。École 42 以全天候運作、無教師、無課程且完全免費的獨特教育模式聞名。
面對倍增的空間需求與有限的基地,建築師並未選擇拆除重建,而是採取「建築節制」的策略。他們保留了建於1962年的原有建築,並在其上疊加了四個基座量體與一個高达18米的五層金屬上層結構。這種做法不僅將總樓地板面積從3,600平方米擴充至9,025平方米,更展現了少即是多的設計哲學,同時尊重基地作為巴黎舊防禦工事(Bastion 42)的歷史紋理。




懸浮金屬橋樑與香波堡雙螺旋梯的現代轉譯
整個擴建項目中最引人注目的元素,是一座懸浮在舊建築之上的金屬「建築橋樑」。這個巨大的量體由垂直交通塔支撐,塔內設有靈感借自香波堡(Chambord)的雙螺旋樓梯。
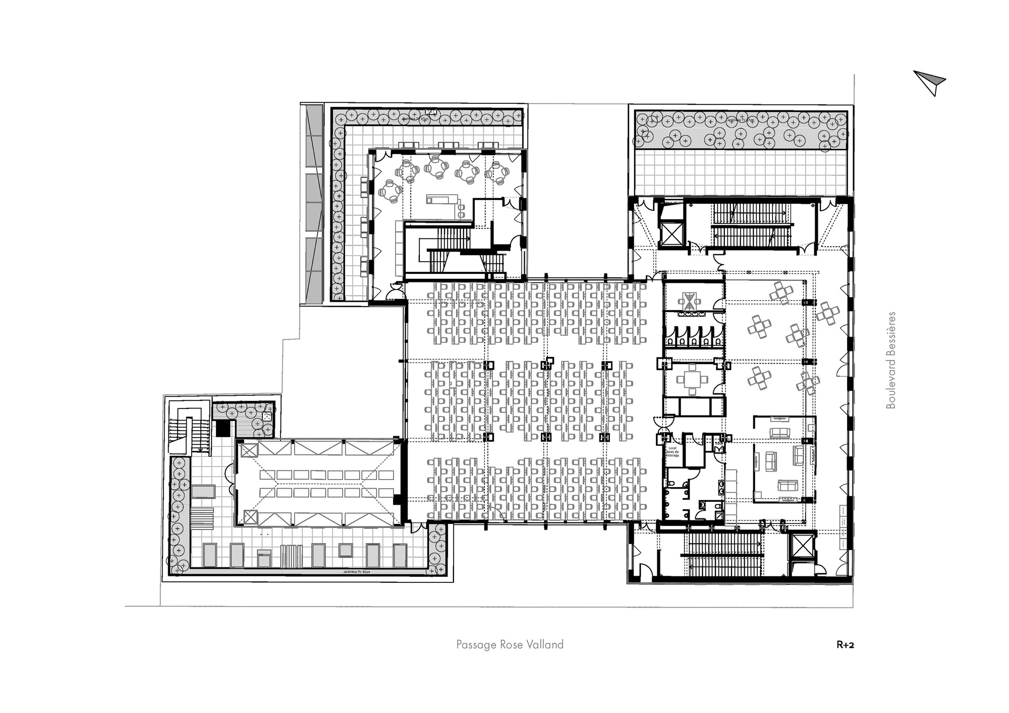
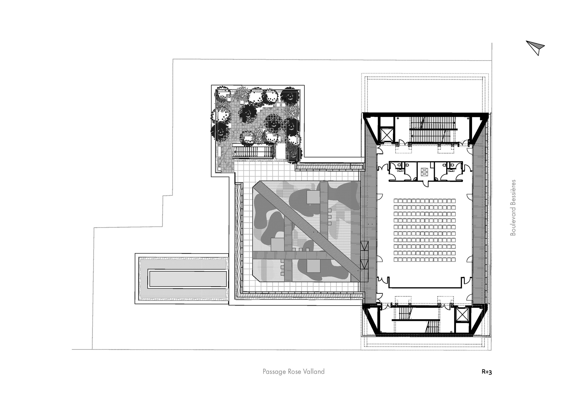
一根長達42米的巨型樑橫跨其中,使得位於樑下的三樓空間完全無柱,創造出一個視野開闊、可俯瞰巴黎市景的壯觀陽台。這種量體遊戲結合了建築的細膩與結構的大膽,更重要的是,施工期間學校仍可持續運作,將學生暫時安置到鄰近的NOC42宿舍,解決了施工期間的營運難題。




白色穿孔金屬蕾絲立面與微氣候調節
新舊建築透過一層白色的沖孔金屬表皮統整,這層表皮與原有建築的黑色立面形成鮮明對比,同時與鄰近的NOC42宿舍在視覺上產生和諧共鳴。
立面設計採用1.17公尺乘1.17公尺的網格,在上層結構轉化為三角形模組,隨著日照角度的變化產生動態的光影浮雕。這層「金屬蕾絲」不僅是視覺裝飾,更具備重要的機能性。對於容納了1,400台高發熱電腦的建築而言,這層微孔外殼提供了必要的遮陽保護,同時將自然光引入室內。立面的透明度隨天氣與時間而變,創造了室內外之間不斷變化的對話,並顯著提升了夏季的室內舒適度。




與NOC42共構的城市生態系統與生活學習整合
42UP並非孤立存在,而是與對街擁有700個床位的NOC42綜合體——「重塑巴黎」(Réinventer Paris)競圖的獲勝項目——形成了一種共生關係。這兩個項目自2015年起便被構想為一個統一的願景,共同組成了一個融入鄰里的真正城市校園。這個相互連結的生態系統代表了一種新型態的城市教育基礎設施,在這裡,生活、學習與休閒空間在城市紋理中無縫交織,打破了傳統校園與社區的界線,為學生提供了全方位的支持環境。





空間效率的極致化與街頭藝術的垂直導航
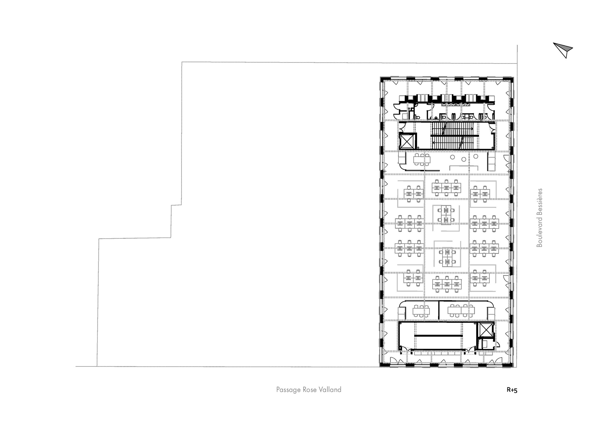
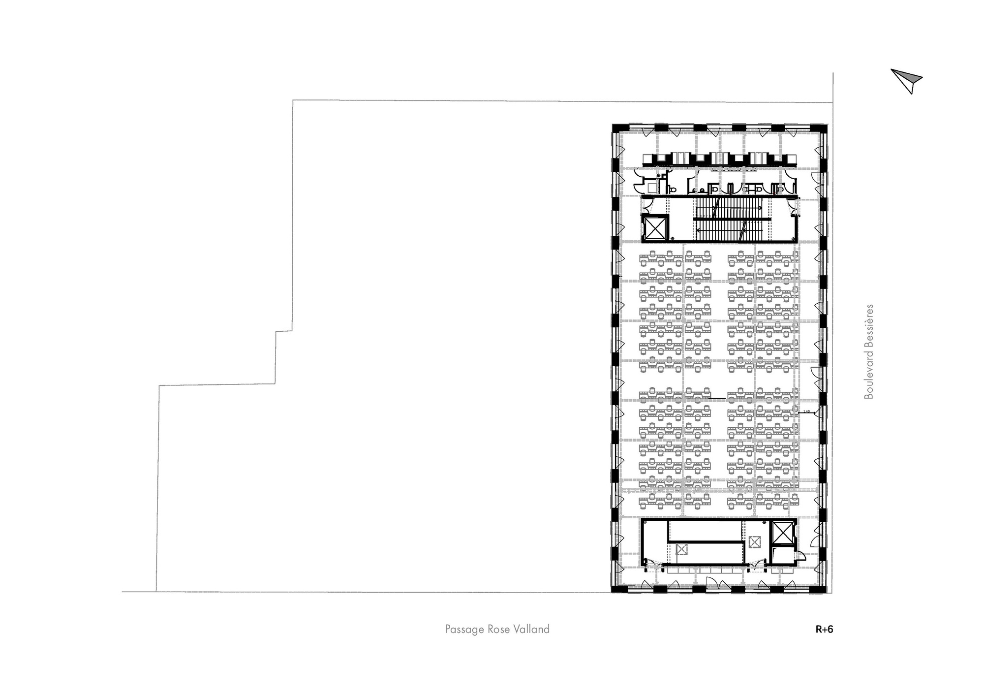
為了對抗教育設施常見的空間閒置問題,建築師透過空間效率與「時空拓撲」(Chronotopy)概念,極大化了建築的使用率。廣闊的開放式樓層取代了封閉的教室,而樓梯後方的壁龕與周邊動線則提供了專注或協作的私密角落。
室內採用木絲吸音板與紡織覆蓋物來解決聲學問題,並透過紅、綠、藍三種鮮明的色彩識別系統,讓使用者在不同樓層間能直覺導航。此外,策展人Nicolas Laugero Lasserre策劃的街頭藝術(Street Art)為四座主要樓梯注入了生命力,將垂直動線轉化為藝術之旅。每個樓梯間展現不同的藝術宇宙,不僅創造了獨特的空間識別,更豐富了學生的日常體驗,將單調的移動過程轉化為發現與靈感的時刻。





























建築圖













作品資訊
作品名稱:42UP School Extension
作品位置:法國巴黎 Paris, France
作品類型:增建、舊建築改造、教育設施、校園建築、法國建築、法國建築師
設計單位:AR Studio d’Architectures
總樓地板面積:9025 平方米
竣工:2025年
攝影:Florent MICHEL_
建築師:Adrien RAOUL, Mélodie BRUILLON
景觀設計:Atelier Moabi
混凝土結構:I+A
外牆工程:VP & Green
消防協調:CSD & Associés
聲學顧問:Néo DB