你曾多少次面臨設計一做文化設施的挑戰?看上去並不容易,但別擔心,許多建築師在職業生涯中都探索過將社區中心與文化相融合的設計。在網路上有許多設計案例,對此一設計要求給出了不同答案,涵蓋了從允許不同空間組態的更靈活的建築,到由內向外吸引市民活動的更開放的建築等多種設計思路。在本文中,你將看到我們收錄的50個文化中心以及它們的平面圖和剖面圖 ,從Zaha Hadid Architects 設計的Heydar Aliyev中心,到Renzo Piano的希臘Stavros Niarchos基金會文化中心,各種設計風格展示了文化設施的多樣性和創新性。這些建築不僅是文化場所,更是社區的核心,體現了現代建築的美學和實用性。
Heydar Aliyev 中心
扎哈哈迪德建築師事務所
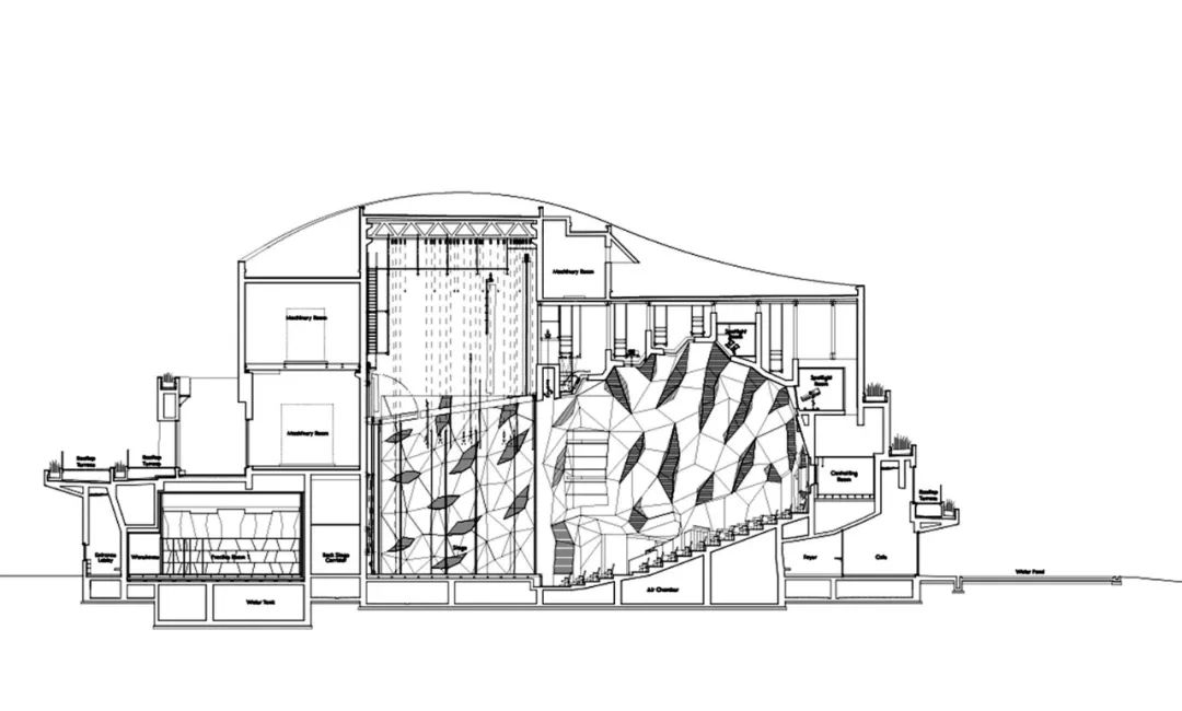
Zaha Hadid,首位獲得普利茲克建築獎的女性建築師,總是以曲線型設計風格驚豔全球。她為亞塞拜然首都巴庫所設計的阿利耶夫文化中心(Heydar Aliyev Center),從遠處望去,這座白色的藝文建築體現出了不可思議的氣勢。這無疑是她建築生涯中的又一代表作。
亞塞拜然在1991年蘇聯解體後獨立,政府決定擺脫前蘇聯式規範化的建築設計風格,進而以極具現代感的設計替首都改造。政府邀請了Zaha Hadid,讓她為首都設計集結博物館、圖書館和會議中心等多元功能的阿利耶夫文化中心。建築表面毫無直線,雪白曲線的造型,流暢而富有動感,連Zaha Hadid本人也認為這是她近期最具代表性的作品。
阿利耶夫文化中心的建築體與廣場合而為一,成為城市紋理中不可分割的一部分。這個中心重新定義了公共空間給予人的感受。那如同心跳般起伏的線條,舞動在廣場上,展現出熱情開放擁抱城市的意象。這座流線型建築從地面向上延伸,曲線形外觀有效分割了各功能區,同時保留了各自的私密性。
巨大的玻璃帷幕牆帶來充足的自然光照,純白的建築表面與陽光互相交織,整個建築看來猶如發光的寶石。一系列坡道連接了室內各個空間,形成連續的交通迴路,呈現出超現實的感覺。Zaha Hadid以自己獨特的「無縫式空間流」景觀,創造出全新的城市空間。整幢建物以歡迎、開放的姿態迎接訪客,讓人們在這座藝術作品中感受到建築與城市融合的無限可能。
© Iwan Baan



運動中的文化之家 Ku.Be
MVRDV + ADEPT




Alserkal大道上的混凝土建築
OMA
位於阿聯酋杜拜阿勒塞爾卡爾大街的Concrete是由OMA設計的新文化中心。這個面積達1250平方米的多功能場館原本是一座倉庫,經過改造後能夠舉辦各類公共活動,包括展覽、表演、講座和時裝秀。設計團隊由合夥人Iyad Alsaka領導,專案建築師為Kaveh Dabiri,Blue Camel Design負責施工和結構設計。
Concrete的設計重點是提供靈活的空間配置,四面8.10米的旋轉滑動牆可以根據活動需求改變空間佈局。為了保持空間的流動性,主要設備被整合到天花板中,牆壁和地板都保持無障礙。兩條線性天窗位於可移動牆上方,可以根據配置帶來細薄的光束或全日光。
建築原有的正面立面被聚碳酸酯包覆和全高可操作的門取代,門開啟時,內外空間融合,激活庭院區域。聚碳酸酯的透明性增強了與外界的連接,讓自然光和戶外活動融入室內。其餘立面則保持原貌,並噴塗了混有玻璃和鏡面骨料的定制混凝土,使其在阿勒塞爾卡爾大街的環境中格外醒目。





希臘 Stavros Niarchos 基金會文化中心
Renzo Piano 倫佐皮亞諾建築工作室




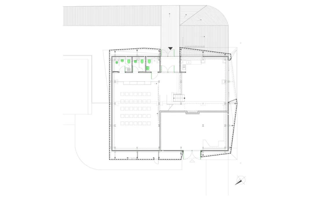
巴塞隆納 Caixa Forum 文化中心
磯崎新
位於巴塞隆納蒙特惠克山坡的卡薩拉蒙納工廠,原建於1911年作為紡織工廠,1976年被指定為國家文化遺產後,成為加泰羅尼亞現代主義建築的重要作品。經過重建,這裡成為「拉卡夏基金會文化中心」,其中庭院設計為主要入口,位於地下層,供公眾使用。
該中心的設計由磯崎新完成,保留了工廠原有的立面,並挖掘地下層以設置主入口、禮堂和多媒體圖書館。通往庭院的馬奎斯德科米利亞斯街,是巴塞隆納重要的街道之一,穿越蒙特惠克貿易展覽中心,連接1992年奧運公園。卡薩拉蒙納對面是1929年巴塞隆納國際博覽會的展館,該展館於1986年在原址重建。
庭院位於街道以下,由幾面石灰岩砌成的牆和同材質的大型浮動地面組成。這些石灰岩牆形成的小型封閉區域,被稱為「秘密花園」,用於戶外展覽。此外,這種石灰岩構成延伸到室內,形成寬敞的門廳,包含所有入口區所需的設施。
抵達主門廳可經樓梯、自動扶梯或電梯,這些機械裝置受到稱為「鐵樹」(Tetsuju)的雕塑結構保護。這個由耐候鋼和玻璃構成的金屬結構,喚起了現代主義加泰羅尼亞,展示了鐵製品技術的應用。




Akiha Ward 文化中心
新居千秋城市和建築師事務所




新瀉市港南區文化中心
新居千秋城市和建築師事務所




Imagina 生態文化中心
TIBÁrquitectos




Arauco 文化中心
elton_léniz




KRONA 知識與文化中心
Mecanoo + CODE: arkitektur




德國的文化之家
KÜHNLEIN Architektur




Mason 文化藝術中心
LMS 建築師事務所




Notre-Dame-de-Grâce 文化中心
Atelier Big City




‘De Factorij’文化中心和圖書館
ebtca architecten &; Archiles architecten




法國文化之家
Atelier 56S




CorpArtes 劇院和文化中心
Renzo Zecchetto Architects




Tecpatán 文化站
Oficina de Diseño y Taller Brigada de Arquitectura
北文化廣場
Oscar Gonzalez Moix
El Tranque 文化中心
BiS Arquitectos
智利藝術文化中心
FURMAN-HUIDOBRO arquitectos asociados
西班牙文化中心和藝術學院
Alberich-Rodríguez Arquitectos

塞維利亞 CaixaForum 文化中心
Vázquez Consuegra




Cobquecura 文化中心
Alberto Campo Baeza


Passy 文化中心
Beckmann N’Thepe




Gabriela Mistral 文化中心
Cristián Fernández Arquitectos + Lateral arquitectura &; diseño




聖保羅藝術廣場
Brasil Arquitetura



Nk’Mip 沙漠文化中心
DIALOG

© DIALOG
Eyüp 文化中心和婚慶大廳
Emre Arolat Architects




El 音樂文化中心
Eduardo de Miguel Arbonés




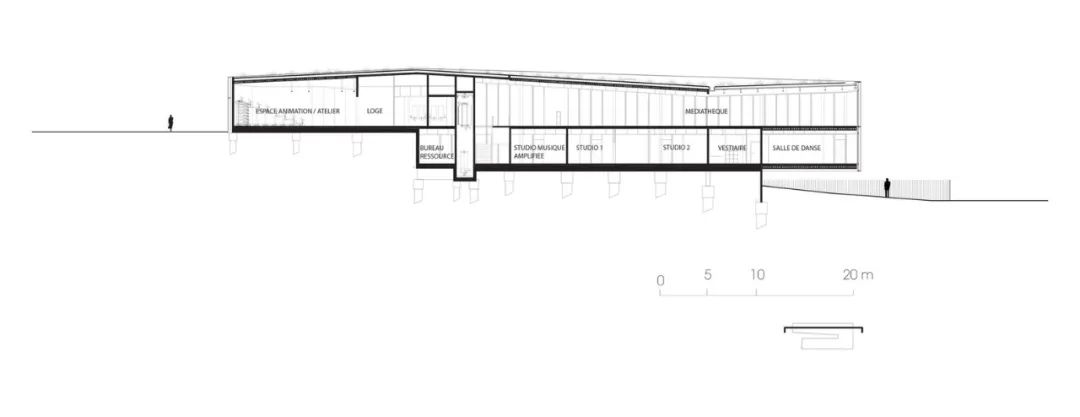
Saint-Germain-lès-Arpajon 文化中心
O-S 建築工作室

© Cyrille Weiner

© Cyrille Weiner


Sluzewski 文化中心
WWAA + 307 Kilo Design



© WWAA + 307 Kilo Design

© WWAA + 307 Kilo Design
Córdoba 文化中心
Castañeda, Cohen, Nanzer, Saal, Salassa, Tissot




Bad Radkersburg 文化中心
Gangoly &; Kristiner Architects




La Gota 文化中心 – Tabaco 博物館
Losada García




Rafaela 文化中心
Airaudo + Caballero + Giménez Rita + Llonch




Važecká 文化體育中心
Architektonické štúdio Atrium




「Le Creste」 文化中心
AREA PROGETTI + UNA2 + Andrea Michelini + Laura Ceccarelli




Auneau 文化中心
Architecture Patrick Mauger




馬德里 Matadero 16號倉庫
ICA Arquitectura
馬德里屠宰場的現代化改造:Naves Matadero文化設施成為現代藝術新舞台
昔日屠宰場的新生:馬德里文化中心的再創造
2007年,馬德里市政府舉辦了一場公開競圖,目的是將昔日的馬德里屠宰場之一的建築轉化為一座現代多功能文化設施「Naves Matadero」。這個舊建築改造計畫由ICA Arquitectura建築師事務所負責,賦予這座具有歷史意義的建築新生命。馬德里這座城市,常常因其豐富的文化遺產和創新精神而聞名,如今,這座新的文化中心更是進一步彰顯了其都市轉型的典範。
這座新文化中心需要具備多樣化的用途,可以用作音樂會場、展覽廳、會議室甚至是時裝秀場。因此,設計中引入了一個靈活的移動系統,使空間能夠根據不同的需求進行變換。這個多用途的展覽廳可以成為馬德里最大的展覽空間,也可以拆分為若干獨立的小型展示空間。這種設計的靈活性,不僅體現了現代建築對多功能性的追求,更展現出設計師對於空間利用的深刻理解。
從屠宰場到藝術殿堂
馬德里屠宰場的歷史可以追溯到上世紀初,其建築風格和構造形式承載了那個時代的記憶。這座建築最為珍貴的一點在於其對城市記憶的象徵意義。雖然初看之下並不引人注目,但它始終是城市遺產的一部分。設計團隊決定保留建築原有的元素,例如曾用來懸掛動物的結構,現今則用於展示藝術品。這樣的設計,不僅保留了歷史的痕跡,還賦予其新的用途,使其在現代都市中煥發新生。
然而,2009年,由於預算削減了一半,設計團隊被迫在建材選擇上進行取捨。最終,他們選擇使用鋼製門作為主要建築元素,而非原本計劃的滑動面板來分隔空間。當這些鋼門打開時,中央的空間與周圍區域相連,實現了高度的靈活性。這種設計不僅解決了空間分隔的難題,還為整個建築帶來了別具一格的現代感。
雙層挑高空間的設計美學
這座文化中心引入了雙層挑高的設計,周圍環繞著大片鋼板門,這種設計與屠宰場保留下來的質樸磚牆形成鮮明對比。高大的空間尺度感不僅提升了整體建築的氣勢,也為展示藝術作品提供了理想的環境。此外,自然光的引入是設計中的一大亮點。這些鋼門不僅用來分隔空間,還可以作為百葉窗或窗戶,以便控制光線進入。這樣的設計使得整個空間在白天擁有充足的自然光照,增添了藝術品展示的效果。對光線和空間的靈活控制,展現了設計者在創造多功能空間時的巧妙構思。無論是舉辦大型活動,還是小型展覽,這座文化中心都能夠輕鬆應對,成為馬德里文化生活的重要一環。
歡迎訪客的新地標
這座由ICA Arquitectura設計的文化中心已成為馬德里都市中的新地標。以開放、歡迎的姿態,迎接著來自世界各地的訪客。這座建築的再生,不僅是對過去歷史的致敬,更是對未來創新的探索。從屠宰場到文化中心的轉變,不僅僅是空間功能的改變,更是對文化和藝術的新詮釋。馬德里這座城市,因其豐富的文化底蘊和現代創新的融合,為這座文化中心賦予了獨特的魅力。透過這座建築,訪客不僅能夠感受到馬德里的歷史痕跡,也能夠體驗到現代設計的非凡創意。這樣的設計,使得馬德里在國際文化舞台上,更加熠熠生輝。
馬德里Naves Matadero文化中心引入了雙層挑高的設計,周圍環繞著大片鋼板門,這種設計與屠宰場保留下來的質樸磚牆形成鮮明對比





Palencia 市民文化中心
EXIT Architects



