瑞典城市耶利瓦勒 (Gällivare)是享譽百年的礦山之城,位於北極圈以北的這座礦城正經歷著獨特轉型的城市。由於礦業的發展,鄰近地區馬爾姆貝里耶 (Malmberget) 被遷移至此,兩座城市中心面臨合併的議題,藉由與市民的對話以及與當地商業部門和其他利益相關方的交流,當地政府提出了打造「世界級北極小鎮」的願景。
由Liljewall 建築師事務所設計的「Kunskapshuset」,以「知識之家」扮演著歡迎的角色,在此願景的實現過程發揮了重要作用,六層樓高的學校建築形成在地地標,建築設計以礦井和自然地形條件為概念,該地區的高中及成人學習中心都設立於此,並且傳承當地的記憶和文化。

© Anders Bobert

© Anders Bobert

© Anders Bobert

© Anders Bobert

© Anders Bobert

©Anna Kristinsdóttir

©Anna Kristinsdóttir
設計重點在如何創造出一個既彈性又引人入勝的教育環境,以應對未來的變化和發展需求,「Kunskapshuset知識之家」獨特外形,藉由其內部和外部醒目的元素展現出來,其非對稱的外型,讓建築的大量體感覺不會那麼沉重,以紅色且動態的立面,創造歷久不衰、震撼人心的特色,建築立面凸顯了當地的設計傳統,為小鎮注入了一種工匠精神。
立面由膠合層積木和配有垂直木柱的玻璃帷幕牆構成,位於內部承重結構外圍。每組木柱都有著不同的形狀和切口,木柱成對設置,形成多樣形態。
當路人經過這所學校,會感覺到一種變幻和韻律,從某個角度看過去,學校呈現堅固結實的樣貌,從別的角度看去,變得十分通透;學生、教職員和訪客可經由一座黃銅飾面的入口,進入學校的核心空間。

© Anders Bobert

© Anders Bobert

© Anders Bobert

©Anna Kristinsdóttir

©Anna Kristinsdóttir

©Anna Kristinsdóttir
© Anders Bobert
經過入口,寬敞的門廳印入眼簾,令人印象深刻的挑高空間,噼啪作響的溫暖壁爐,加上一座專屬於此的獨特樓梯,通往能欣賞到絕美山景的上層空間。樓梯包裹著深色波紋鋼,橡木塊製成的階梯突出其間,樓梯在與地面層地面銜接處變為階梯狀的座位,供學生們休閒聚會。

© Anders Bobert

©Anna Kristinsdóttir

© Anders Bobert

©Anna Kristinsdóttir
這裡的大部分固定傢俱和一些可移動的傢俱都是為知識之家定製的。例如,一組定製座椅,它的設計靈感源自薩米藝術圖樣,而整個學校的設計也基於此。由膠合層積木製成的結實長凳具有重要的象徵意義,與建築的整體特色相呼應。三位精心選出的薩米藝術家也參與到作品的設計過程中,各自代表了薩米族文化不同的趣味方向。
薩米藝術家分別是畫家 Anders Sunna 、玻璃藝術家 Monica Edmondsson 以及紡織藝術家 Britta Marakatt Labba 。其中的一件作品是融入外立面、延伸超過21公尺、印有環形薩米圖案的大型混凝土澆築物,另一件是入口大廳的採光井。重要的是,這些藝術作品最終與建築完美交融,而非淪為建築的附屬品。

©Liljewall

©Liljewall
>>相關資訊
作品名稱:Kunskapshuset Gällivare
作品位置:Gällivare, 瑞典
業主:Gällivare kommun (Gällivare municipality)
建築師:Liljewall
建築師:Veronica Sundqvist
主持建築師:Harald Gamrell
主持設計師:Lars Olausson
室內設計師:Jonas Hermansson
專案經理:Johan Brendelökken
市政工程師:Johan Lindkvist
完成年份:2020
總樓地板面積:23000.0 平方公尺
工程師:Johan Lindqvist, civil engineer, Liljewall
景觀設計:Marianne Hansson
主顧問:MAF Arkitektkontor
營造廠:WSP Byggprojektering
電力設計、暖通設計、節能設計、環境建設:WSP Systems
聲學設計:Tyréns
防火顧問:Brandskyddslaget
薩米藝術家:Monica Edmondson, Britta Marakatt-Labba, Anders Sunna
攝影師:Anders Bobert,Anna Kristinsdóttir

©Anna Kristinsdóttir

©Anna Kristinsdóttir

© Anders Bobert

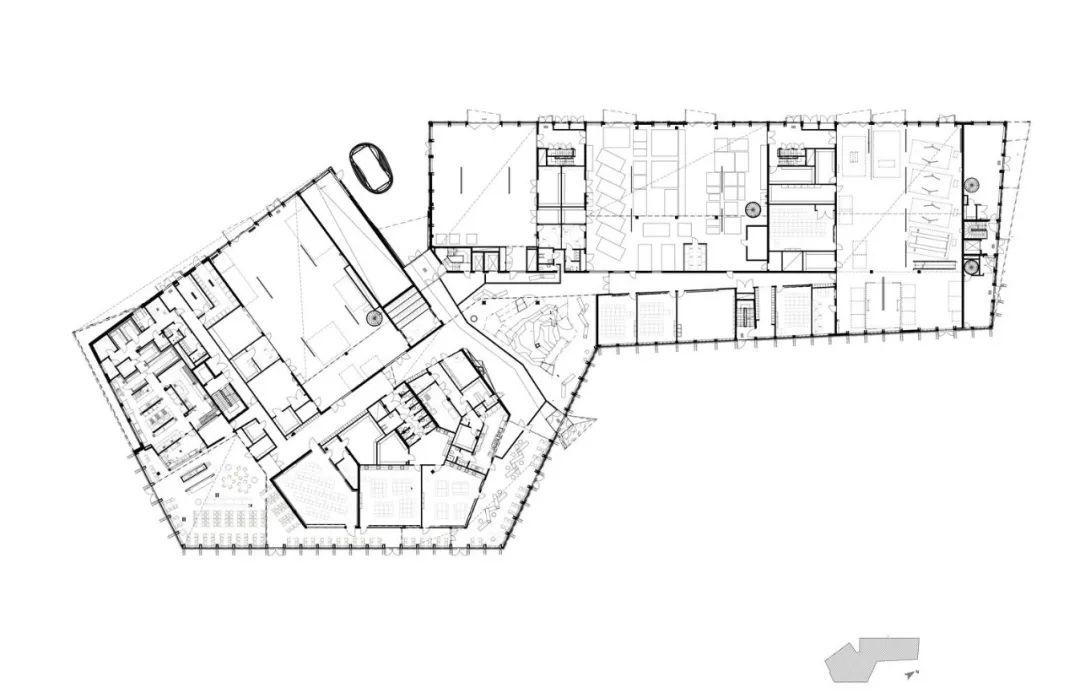
地面層平面圖

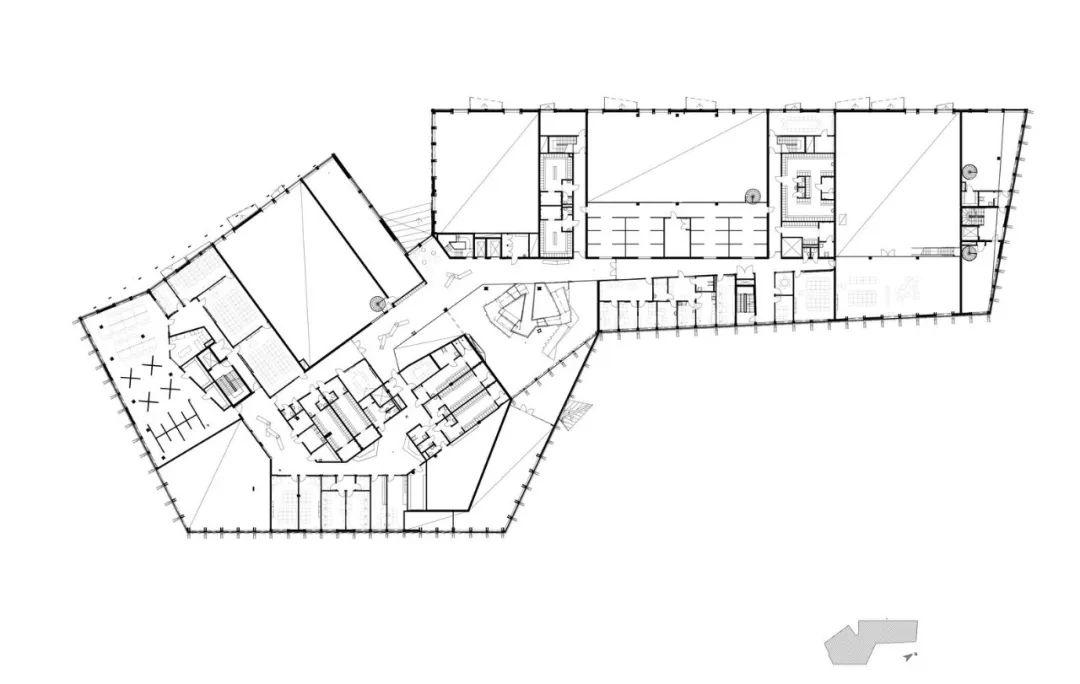
二樓平面圖

三樓平面圖

四樓平面圖

五樓平面圖

立面圖

立面圖

剖面圖

草圖

草圖

草圖

草圖
