高密度校園中的立體化策略與文保共生
南京師範大學附屬中學曉莊校區(面臨著典型的高密度城市校園挑戰:在約6.67萬平方米的有限用地上,需容納總建築面積近9.5萬平方米的量體,並配置42個班級。面對如此緊湊的空間需求,非常建築(Atelier FCJZ)採取了極具巧思的總體規劃策略。
設計團隊並未將基地視為一張白紙,而是尊重新存的歷史紋理,以基地中心的市級文保建築「民國空軍第二通訊台舊址」及周邊保留的大樹作為景觀核心。南側規劃為教學辦公區,北側則為生活運動區,這種佈局在繁忙校園中留出了一方歷史與自然共存的呼吸空間。
為了極大化土地利用效率,北區西側的400米操場被大膽地架空抬高。這一舉措釋放了巨大的地面層空間:臨路側設置了家長接送停車區,有效緩解了校門口的交通擁堵;中部則嵌入了半下沉式的游泳館、訓練館、籃球館及風雨跑道;東側則配置禮堂與食堂。立體化的空間堆疊,不僅滿足了多樣化的功能需求,更讓師生在課間登上操場時,能享有在擁擠城市中難得的遠眺視野與放鬆時刻。



圍合與穿透:Z字型教學組團的流動空間
南區的教學組團佈局,巧妙地圍繞著文保建築展開。建築體量並非單調排列,而是透過Z字型的彎折,圍塑出五個半開放式的庭院。這些庭院並非封閉孤立,而是透過底層的大量架空設計,讓師生得以自由穿行其中。這種處理手法打破了建築內外的界線,將景觀綠地引入架空層,與多處下沉的半室外活動空間相互滲透,為戶外教學與非正式交流提供了豐富的場所。
各建築入口之間形成了彼此互動的視線關係,增強了校園的社區感。此外,建築間在不同標高上設置了開放平台與大跨連廊,將地面的公共性向上延伸至各層教學空間,創造出立體、流動且充滿活力的學習地景。



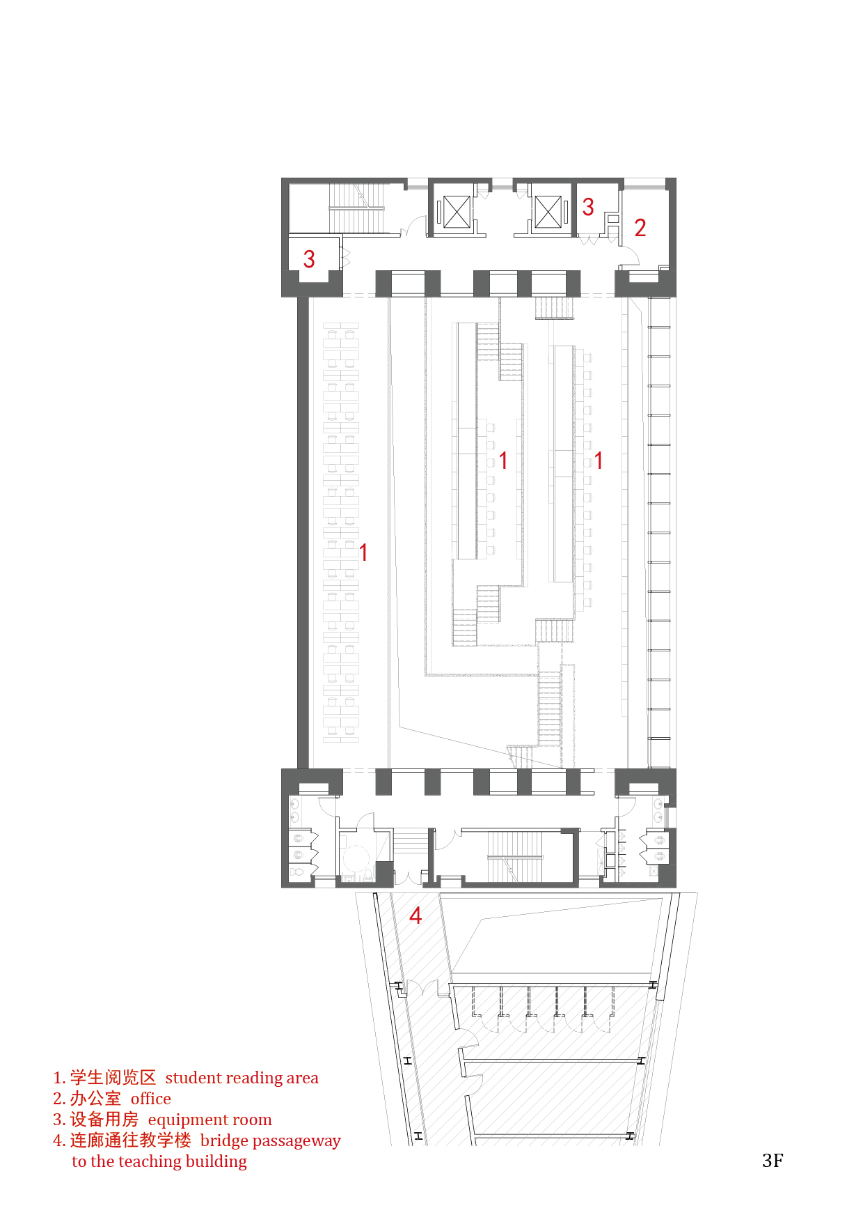
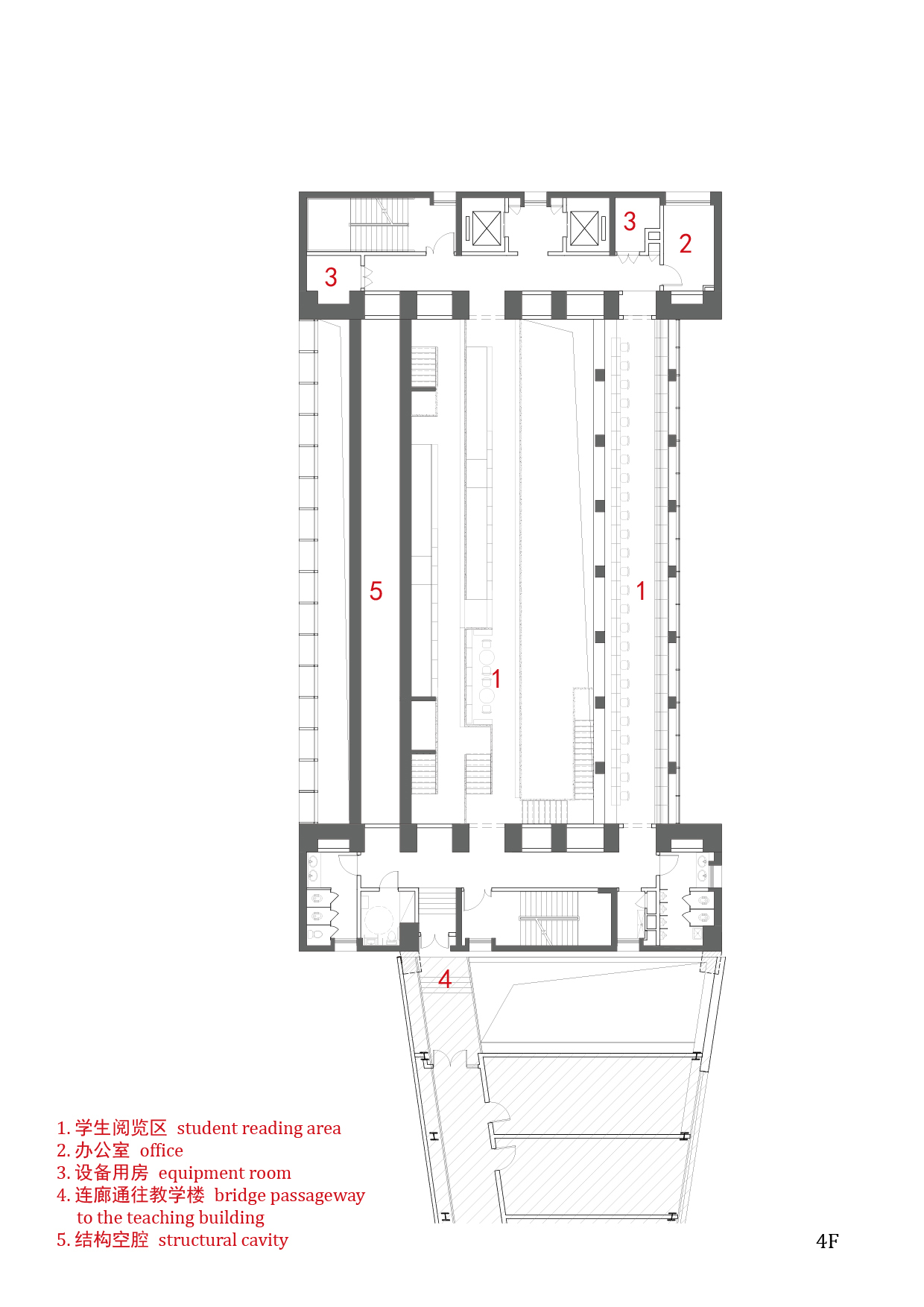
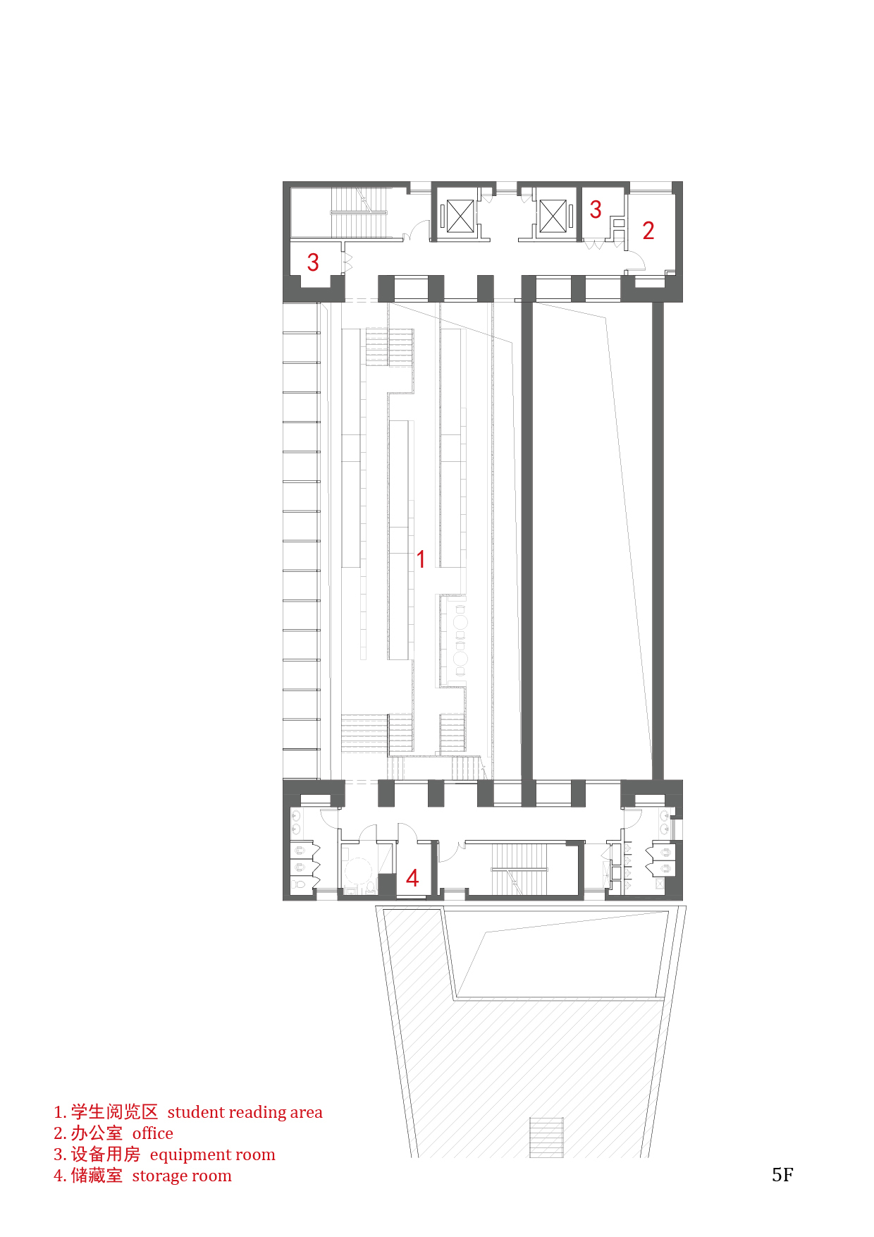
打破樓層界線:圖書館的空間交錯與光影漫遊
位於校園中心文保建築廣場東側的圖書館,規模約3800平方米,是「開放式學校」設計理念的集大成者。設計團隊大膽打破了傳統圖書館層層疊疊的樓板限制,在共享中庭內,將五處大跨度的「管狀」與「階梯狀」藏閱空間進行交錯穿插。這兩種截然不同的空間形態,分別對應了「半封閉」與「開放」兩種閱讀模式,滿足了師生多樣化的學習需求。
開放的階梯閱覽區透過一條連續的「漫遊路徑」串聯起來,從首層門廳開始,依序連接新書閱覽區、服務台、閱讀看台及多個不同標高的學生閱覽平台,最終延伸至頂層的電子閱覽室。這條路徑上均設有坡道,實現了平台間的無障礙連通,讓知識的探索如同在山徑中漫步般自然流暢。
頂部的天窗為深邃的中庭引入了自然光線,光線經過多次反射後漸次照亮內部,營造出富於變化的光影體驗,讓閱讀成為一種充滿詩意的精神享受。



結構即空間:清水混凝土與一體化設計的極致追求
圖書館的空間張力,很大程度上是來自獨特的結構形式與材料表達。半封閉的管狀閱覽空間與階梯狀空間,均採用大跨度的斜向箱型與矩形截面梁結構,如同橋樑般架設在中庭兩端的核心筒上。這種結構設計不僅釋放了地面空間,更讓中庭得以設置大面積的斜高窗,將室外的綠意與大樹身影映入室內,模糊了建築與自然的邊界。
管狀閱覽室利用通長的條窗,建立了與中庭的視覺聯繫,讓身處其中的師生既能專注閱讀,又能感知外部環境的變化。在材料運用上,圖書館內外大量使用了光面竹膠板模板澆築的清水混凝土。這種材料既是結構本身,也直接定義了空間的質感。光滑細膩的混凝土表面,與溫潤的實木地板、欄板及書架形成對比與調和,平衡了空間的雕塑感與親切感。
為了保證清水混凝土表面的完整性,設計團隊在設備整合上下足了功夫。裝置管道被巧妙地排佈在大跨結構間的梁腔內,噴淋管與風管則隱藏在架空地面下。空調出風口更是被整合在固定書架、桌面或欄板等家具設施中,實現了建築、結構、裝置與裝修的高度一體化。這種極致的整合設計,依賴於剖面的反覆推敲以及全專業BIM模型的精準協調,最終呈現出一個純粹、有力且充滿細節的建築作品。














建築圖
















作品資訊
作品名稱: 南京師範大學附屬中學曉莊校區
作品位置: 中國南京 Nanjing, China
作品類型: 圖書館、校園建築、教育設施、學校、中國、中國建築、中國建築師
設計單位: 非常建築
基地面積: 67189.57 平方米
總樓地板面積: 80581 平方米(新建)、14142 平方米(改造)
主持建築師: 張永和、魯力佳
規劃團隊: 梁小寧、黃舒怡、王玥
建築團隊: 黃舒怡、王文志、王玉山、柳超、張鶴、何澤林、焦慧敏、湯豔妮
室內團隊: 王文志、黃舒怡
景觀團隊: 師琦
施工圖設計: 江蘇省建築設計研究院股份有限公司
建築高度: 23.9 m(多層部分)、49.6m(高層部分)
營造廠: 江蘇南通二建集團(北區)、通州建總集團(南區)