嚴格法規下的都市類型學與建築師的無聲抵抗
位於越南首都河內的繁忙都會區,B.RED House 身處於一個受到嚴格都市計畫法規箝制的開發地塊,建築師的自我表達空間,往往在維持整體市容統一性的強制命令下顯得左支右絀。這種連續建築量體在外觀上的高度雷同,無可避免地滋生出一種近乎單調的秩序感,彷彿所有住宅都被迫共用同一套形式語彙,在車水馬龍的街道旁默不作聲。
在如此高密度的城市紋理中,追求個體居住空間的獨特性變得極具挑戰,每一棟建築都必須在既定的都市類型學框架內,艱難地維繫著自身的內部邏輯與生活哲學,試圖在千篇一律的立面背後,尋找那稍縱即逝的自由靈光,這不僅是對於法規的順從,更是對建築靈魂的拷問,如何在集體的均質化浪潮中保有私密的異質性,成為當代越南建築師必須直面的課題。




解構2000年代透天街屋的僵化機能細胞
回溯B.RED House的原始模型,是在當地極為典型的街屋形式,空間組織圍繞著一座中央樓梯展開,將平面縱向切割為前後兩個主要的機能區塊,這種配置讓人聯想到2000年代初期、越南經濟起飛時大量複製的透天厝類型。當時鋼筋混凝土構造技術被廣泛採用,雖然統一的樓層高度確保了施工的便利性與機能的清晰度,卻也埋下了空間貧乏的種子。
由此產生的封閉式「機能單元」,往往阻斷了家庭成員間的互動視線,降低了空間使用的彈性,並嚴重侷限了日常生活個性化的可能,讓居住者彷彿被困在一個個標準化的水泥盒子裡,只能在此消磨時光。這種被當地人稱為「管形房屋」的結構,雖然高效地解決了人口稠密的居住需求,卻也在無形中割裂了家庭生活的有機連結,留下了現代化進程中的空間遺憾。





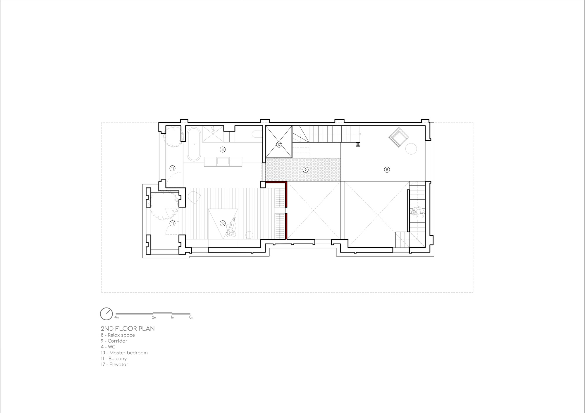
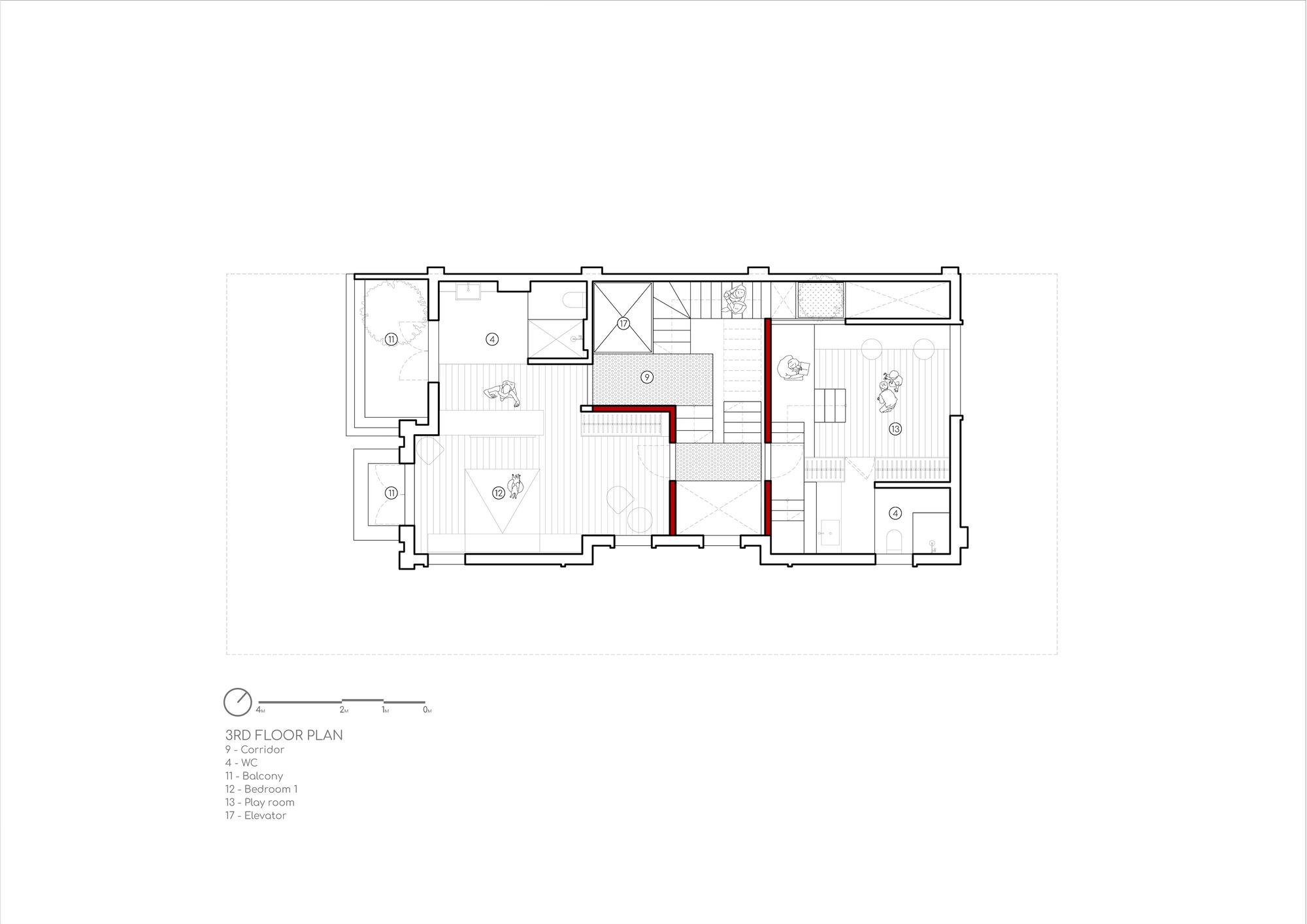
內部空間的再生手術:錯層系統與動態流動
設計團隊TOOB STUDIO將B.RED House構想為一場從內部引發的建築生命再生實驗,這是一次靜謐而果決的介入,在不更動外部都市紋理與立面表情的前提下,對內部進行大刀闊斧的重組。設計師透過一套變化的樓板高程系統,重新架構了室內空間的骨架,創造出層次豐富的機能過渡區。
內部的垂直動線被轉化為一個充滿動態感的架構,靈活地串聯起錯落有致的樓板平面,進而建立起空間的連續性,並在住宅內部引入了煥然一新視覺流動感。這種「內在革命」打破了傳統街屋的沉悶格局,讓光線與空氣得以在錯層之間自由穿梭,賦予老舊軀殼新的呼吸節奏,猶如在封閉的血管中植入了新的循環系統,讓僵硬的建築體重新獲得了有機生長的契機。




物質性的詩意對話:光影、紅磚與心靈庇護
住宅內部的物質性對話,展現出一種粗獷而溫潤的質感,燒製紅磚、冷冽鋼材、溫潤木構與清水混凝土的原始表面,在光影的調節下交織出一首無聲的交響詩。自然光線隨著時間推移在粗糙與光滑的介面上遊走,將家庭生活場域轉化為一個動態平衡的場域。
在這裡,材料的觸感與內在的寧靜並存,紅磚的色澤呼應了越南傳統建築的記憶,而現代材料的介入則標示著當代生活的介入,兩者在光影婆娑中達成了微妙的和解,為居住者在喧囂的都市叢林中,構築了一方得以安頓身心的精神庇護所,讓家成為心靈的錨點。建築師不僅僅是在堆砌材料,更是在編織一種關於時間的感知,讓居住者在觸摸這些真實紋理的瞬間,能從城市的焦慮中抽離,重獲內心的平靜。




















建築圖






作品資訊
作品名稱:B.RED House
作品位置:越南河內 Hanoi
作品類型:住宅、私人住宅、越南建築、越南建築師、室內設計
設計單位:TOOB STUDIO
竣工:2025年
攝影:Triệu Chiến
營造廠:Splus