皇居護城河畔的歷史對話:打破都市均質化的建築反思
坐落於東京都千代田區的一番町,此地緊鄰著昔日江戶城(Edo Castle)所在的皇居,空氣中瀰漫著濃厚的歷史底蘊與權力氣息。然而,放眼望去,當代租賃辦公大樓往往陷入一種令人窒息的均質化泥淖,封閉且單調的玻璃帷幕將企業與街道硬生生地阻隔開來,無法反映內部進駐單位的多元活力,更遑論與周遭社區建立有機連結。
三菱地所設計(Mitsubishi Jisho Design Inc.)試圖打破這種都市冷漠,透過「Front Place千代田一番町」辦公大樓,提出連結人與環境的全新解方。設計團隊敏銳地意識到,建築不應只是孤立的量體,而該是城市對話的介面,必須在適應日益分歧的工作價值觀之際,重新縫合被現代化切斷的地緣關係,讓建築物成為街區新地標。



堆疊石垣的立面美學:標準化單元演繹豐富表情
立面設計靈感汲取自鄰近皇居護城河遺址那歷經風霜的石垣構造,將「堆疊石塊」的概念轉化為現代建築語彙。建築師巧妙運用標準化鋁製窗框與預鑄混凝土板,組構出四種不同形式的U型單元,透過層層堆疊的方式,演繹出彷彿手工砌築般的豐富表情。
錯落有致的凸窗設計,在視覺上打破了傳統辦公大樓垂直線條的單調乏味,賦予建築某種如同生物般的呼吸感。在兼顧經濟效益與設計表現力的前提下,這棟建築向外展現了內部租戶多樣化的活動樣貌,讓每一扇窗都成為展示企業文化的微型櫥窗,進而在街道尺度上創造出充滿活力的視覺節奏,猶如一首凝固的都市樂章。



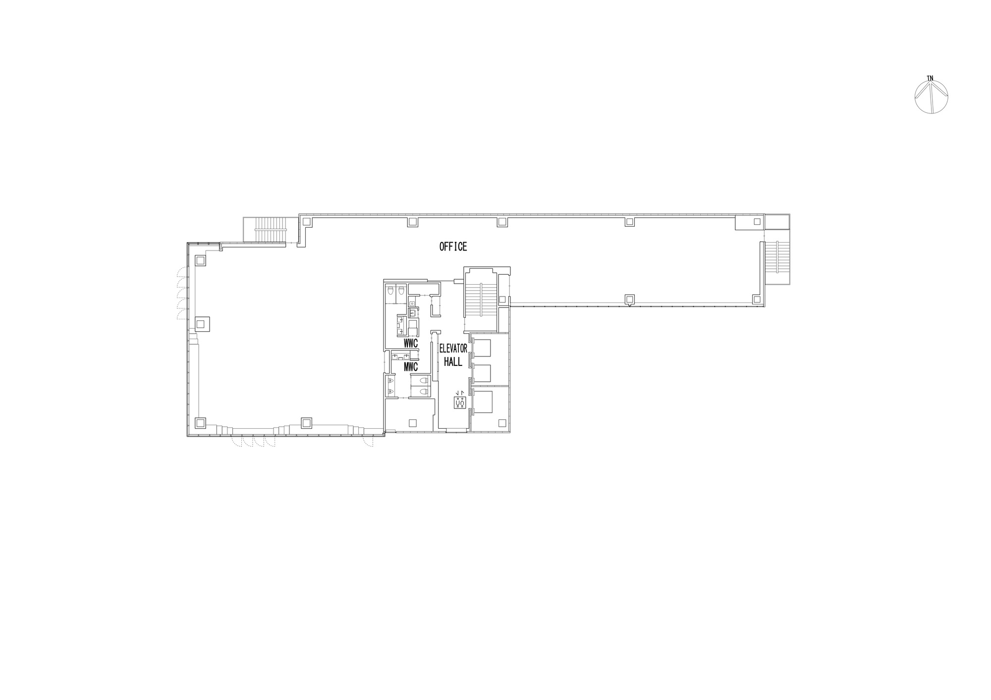
凸窗空間的機能再定義:法規優勢與靈活辦公的雙贏策略
在立面上跳躍的凸窗,在室內空間中扮演著扭轉傳統辦公佈局的關鍵角色。利用建築法規中關於樓地板面積計算的豁免條款,這些向外延伸的空間有效地增加了實際可用的工作場域,為業主創造了實質的經濟優勢。
重要的是,設計師將這些窗邊區域重新定義為活動核心,依據樓層配置不同高度的檯面,從適合站立討論的吧台高度到沈思辦公的書桌高度,應有盡有。以設計手法成功活化了往往被閒置的窗邊地帶,鼓勵使用者依據當下需求調整工作模式,無論是腦力激盪還是獨自專注,都能在光影與景觀的陪伴下進行,徹底釋放了辦公家具配置的想像力與自由度。



開放式街區客廳:模糊公私邊界的都市介面
善用基地既有的傾斜地形特質,設計團隊在入口處規劃了順應高低差的長椅與露台,創造出具備親和力的停留空間。位於地面層的咖啡廳採取全開放式設計,當落地窗框完全收起時,室內空間便能與半戶外的穿堂以及街道無縫接軌。
模糊公私領域界線的方式,做為建築面對城市的慷慨姿態,將原本封閉的辦公門廳轉化為歡迎鄰近居民、上班族與咖啡客駐足交流的城市客廳。透過物理空間的開放,建築物不再是拒人於千里之外的堡壘,而是促進人際互動的催化劑,讓匆忙的都市步調在此稍作停歇,重拾人與人之間久違的溫暖連結與鄰里情誼。







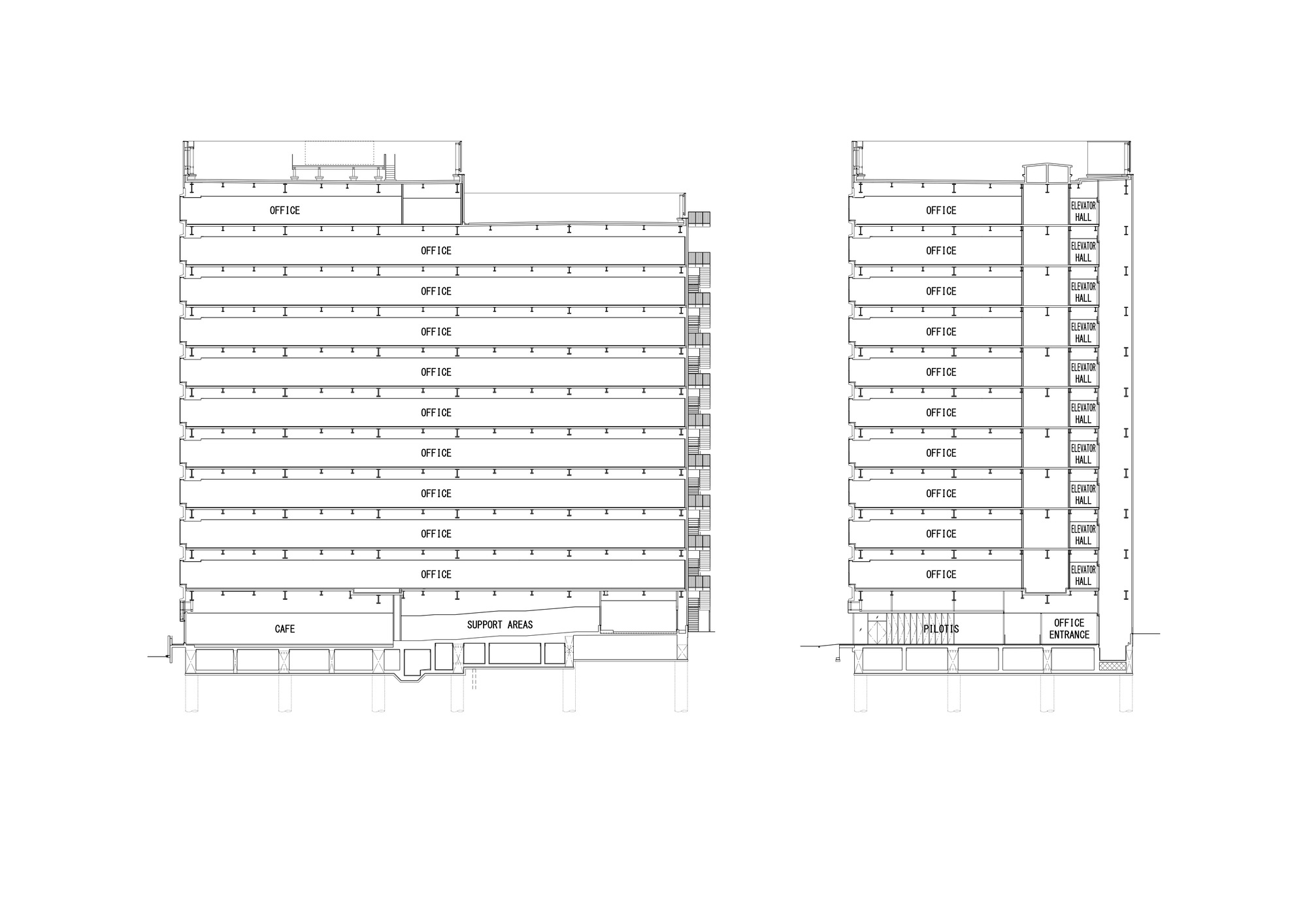
科技與人文的雙重永續:日本首座WELL Core v2認證
在看不見的系統層面,本案同樣展現了對環境與使用者的深切關懷。全棟辦公樓層皆配備了先進的輻射冷卻空調系統與可開啟的自然通風窗,大幅提升了室內空氣品質與舒適度。結合DALI(Digital Addressable Lighting Interface)智慧照明控制系統,這棟辦公大樓成功將年度一次能源消耗量削減超過40%,達到BEI值0.58的卓越績效,相當於BELS五星級與ZEB導向(ZEB-oriented)的高標準。此外,公共區域引入了WELL健康建築概念,透過各樓層鮮明的色彩計畫與鼓勵走樓梯的標示設計,將「堆疊石塊」的語彙貫穿全棟。這些努力使其成為日本首座獲得WELL Core v2預認證的租賃辦公大樓,在後疫情時代為健康職場樹立了難以跨越的標竿。


多元產業的共生樞紐:中型商辦的未來進行式
憑藉著卓越的設計品質與環境績效,這棟建築吸引了光譜極為寬廣的租戶進駐。除了長期深耕此地的在地企業外,更不乏重視設計美學與ESG價值的跨國外商、數位創意公司以及高級珠寶品牌。這些來自不同領域的專業人士,在此共同構築了一個微型的產業生態系,彼此激盪出創新的火花。
Front Place千代田一番町不僅是一棟硬體設施完善的辦公大樓,更是串聯多元產業與專業的全新樞紐。證明了中型租賃商辦只要在規劃上注入巧思與人文關懷,同樣能成為驅動都市更新、引領工作生活型態變革的強大引擎,為未來的城市發展提供了一個值得參照的理想範本。







建築圖





作品資訊
作品名稱:Front Place Chiyoda Ichibancho
作品位置:日本東京 Tokyo, Japan
作品類型:預鑄、辦公室、辦公大樓、辦公空間、日本建築、日本建築師
設計單位:三菱地所設計 Mitsubishi Jisho Design Inc.
總樓地板面積:678 平方米
竣工:2024年
攝影:Katsuhisa Kida / FOTOTECA