城中村裡的縫隙求生:都市化進程中的記憶保存與空間微更新
在中國大陸快速推進的城市化浪潮中,「城中村」往往被視為發展過程中的過渡性產物,甚至是亟待整頓的都市瘡疤。然而,這些在高樓大廈夾縫中生存的聚落,實則承載著城市最原本的肌理與常民生活的集體記憶。
近年來,隨著對於「文化自信」的重新審視以及「鄉愁」意識的抬頭,一種區別於大規模拆除重建、源自民間自發性的「微更新」模式正逐漸興起。這種更新模式不再單純追求光鮮亮麗的外表,而是試圖在既有的歷史脈絡中,尋找能夠安頓現代人身心、並與過往歲月建立連結的「場所感」。
位於惠州橋東老城的「學背之家」便是在此背景下誕生的典型案例,它不僅是對物理空間的修補,更是一場在喧囂都市中重構精神「原鄉」的建築實驗,試圖在現代化的洪流中,為流離的都市靈魂保留一處得以棲息的港灣,展現出對於在地紋理的極度尊重與深情凝視。



四十四平方米的極限挑戰:在P字形畸零地中尋找建築的各種可能
這塊基地的條件可謂嚴苛至極,位於不同年代建築層層包圍的深巷之中,是父輩分家析產後遺留下的畸零地。經過精確測算,在剔除必須保留的老牆基座後,實際可用的淨面積僅剩餘44平方米。
地塊呈現不規則的「P」字形,東、南兩側必須與鄰居共用山牆,西側則緊鄰一道僅有40公分寬、兩端被封死的「縫隙空間」。南側巷弄狹窄,加上鄰居房角突出的影響,將唯一的出入口壓縮得極為侷促,北側更受到低矮鐵皮房的遮擋。
這種四面楚歌的封閉格局,對於採光、通風、視野開展以及施工動線安排,都構成了巨大的挑戰。然而,正是這樣的限制激發了設計團隊的鬥志,他們必須像外科醫生般精準地介入,在方寸之間爭取每一寸空間,將原本看似無解的死局,轉化為充滿巧思的空間佈局,展現了在極限條件下進行建築創作的深厚功力與靈活應變。




從物理邊界到情感載體:夯土老牆作為家族記憶的地理原點
儘管基地物質條件匱乏,但這片土地對於業主黎氏兄妹而言,卻擁有無可取代的情感價值。這裡是家族記憶的地理原點,也是每年清明祭祖時,族人回到惠州的精神歸宿。場地上殘留的那道40公分厚的夯土老牆,雖然歷經風雨早已殘破不堪,卻是時間與歷史最直接的見證物。
在設計師眼中,這道牆不僅是物理上的邊界,更是情感的載體,是連線過去與未來的關鍵媒介。區別於宗祠家廟等純粹的祭祀空間,這類繼承性祖宅將精神性與日常生活並置,既指向對先人的緬懷,也承載著當下的生活起居。因此,設計的起點便在於如何識別並轉化這些限制中的潛力,將這處坍塌的祖宅,轉化為既能滿足居住功能,又能回應家族情感與文化認同的「日常棲居之所」,讓建築成為連結血緣與地緣的紐帶。





時間剖碎與共時性纏繞:新舊結構在歷史紋理中的對話與共生
面對基地上珍貴的歷史遺存,設計團隊採取了極為審慎的態度。他們並未選擇將老牆完全拆除,而是將其視為場地的「基座」,讓新建的清水混凝土結構小心翼翼地嵌入其中,而非簡單地並置。這種新舊結構之間的關係,被設計師形容為一種「共時性的纏繞」。
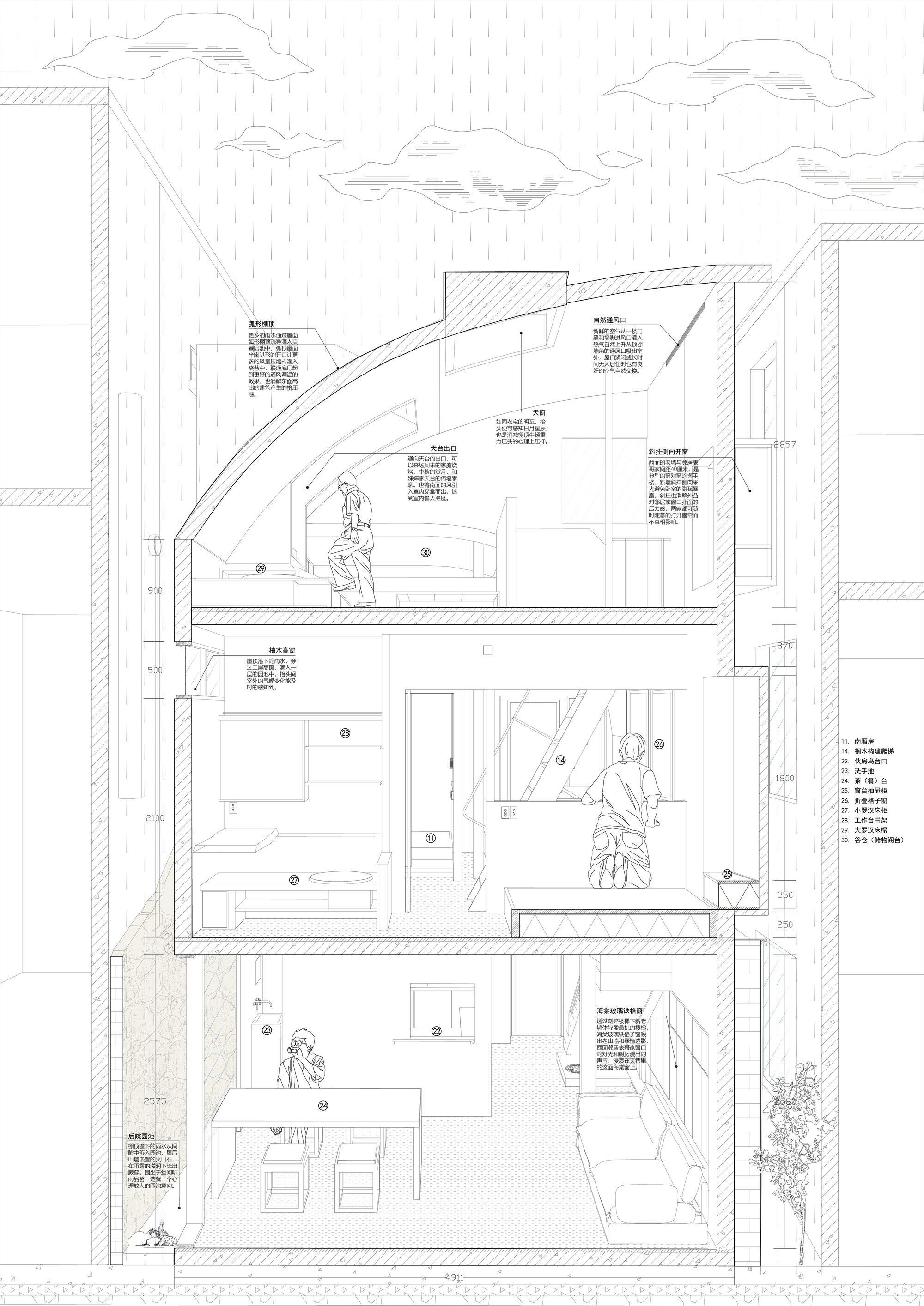
為了引入光線與視線,團隊在保留的老牆垣上進行了謹慎的剖斷與「掏洞」操作。這些大小、形狀各異的洞口,不僅引入了自然光,使其成為刻畫時間的畫筆,在室內投下流動的光影;更引導了視線,形成一系列精心框取的「微景」,將外部的綠意與天空引入室內。透過這種手法,老牆從一個封閉的防禦性邊界,轉變為一個具有滲透性的媒介,連線了內與外、古與今,讓居住者在日常生活中隨時能感受到歷史的溫度與時間的流動。




呼吸建構與被動式設計:在嶺南濕熱氣候中實踐綠建築智慧
針對嶺南地區悶熱潮濕的氣候特徵,良好的通風成為舒適居住的關鍵。倉北文旅團隊摒棄了全靠機械空調的思維,轉而設計了一套精細的「被動式通風」策略,稱之為「呼吸建構」。首先,利用建築南北向的開口組織穿堂風;其次,在一樓地腳設定隱蔽的進氣格柵,並在三樓屋頂預留排氣風口。這項設計利用熱空氣上升的原理,創造出「煙囪效應」,即使在無風或門窗緊閉的狀態下,也能形成持續的氣流循環,將室內的濁熱空氣排出,引入底部的涼爽空氣。
在門窗系統的選擇上,建築師刻意避用了氣密性極高的現代鋁合金窗,轉而採用傳統榫卯工藝的柚木門窗。木窗微弱的縫隙恰好允許微風滲透,避免了小空間完全密閉後的悶塞感,同時也帶來了更溫潤的觸覺體驗,展現了對地域氣候的深刻理解與回應。




弧形屋頂的空間詩學:消解壓迫感與引導視線的雙重策略
為了化解周邊建築高牆帶來的壓迫感,屋頂被設計成一道舒緩優雅的弧形。這道弧線不僅在視覺上柔化了混凝土四方盒子的僵直感,賦予建築輕盈的意象,更在空間體驗上發揮了重要作用。向外張弓的天弧頂,在視覺上拉高了空間感,消解了內部的侷促;當人置身於三層弧頂之下,坐臥在特意設定的羅漢床榻上時,視線會隨著弧面自然的延伸而顯得更為深遠。
立足於外部陽台,這道出挑的屋簷又實現了「棚下看雨」的詩意情境。這種設計手法,將建築構件的功能性與審美性緊密結合,不僅解決了物理環境的限制,更提升了居住者的精神享受,讓建築成為一個可以安放心靈、觀照自然的容器,展現出設計師對於空間氛圍的精準掌控。





身體感知的儀式性攀爬:窄梯與中心柱構築的垂直聚落
在內部空間的組織上,所有開口與家具的佈置均依據人體的尺度與行為模式進行錨定。通往三層耕讀空間的樓梯設計尤為獨特,其坡度與僅65公分的寬度,刻意回歸了老城窄梯的尺度,使用者必須「手抓護欄,一人上下」。這種受限的、具有明確身體性的攀爬過程,與現代商品住宅中寬大流暢的樓梯形成了鮮明對比,將移動轉化為一種儀式性的體驗。
在空間意念上,從一層貫穿至上的柱子,到三層的羅漢床榻,以其強烈的包裹性和朝向天空、教堂的視野,成為了一個精神性的「中心」。它如同一個錨點,將家族的聚集、冥思、眺望等活動固定下來,與一般商品房中均質、無中心的客廳形成了本質區別,強調了家作為聚合場所的神聖性。


微縮園池與空間留白:方寸之地中的前庭後院意象
傳統民居中的閣樓或穀倉,象徵著「積攢」與「傳承」。學背之家的夾層設計,正是為了保留「儲存」這一家居核心功能的空間屬性,暗示著這個家具有容納時間與記憶的能力。而在寸土寸金的一樓,設計團隊並未試圖將空間填滿,而是塑造了一個具有「前庭後院」感的微縮園池。在這裡,設計師選擇了「留白」,讓光線、微風、雨水和綠植能夠在此自然生長。
這種處理手法,不僅為室內引入了生機與自然景觀,更在心理上擴展了空間的邊界,讓居住者在方寸之地也能感受到自然的律動。清水混凝土的質感搭配回收老木板轉印的木紋,營造出一種質樸而溫暖的氛圍,回應了反裝飾主義的原則,也讓建築更和諧地融入嶺南的環境之中,展現出大巧若拙的美學境界。


建築師角色的多重演繹:從設計者到施工管理者的全方位實踐
學背之家的營造過程歷時近五年,充滿了各種預料之外的挑戰。從小規模、高定製化建案在追求效率的工業化體系中遭遇的困境,到地基挖掘時遇到的橡膠泥層技術難題,乃至於雨季延誤與工人更替,每一個環節都考驗著團隊的毅力。在這種情況下,黃貽民不得不超越傳統建築師的角色,身兼施工管理者、鄰里協調員甚至是工藝指導者。由於極少有工人願意承接這樣規模小卻工藝複雜的活計,建築師往往需要依靠江湖道義與人情關懷來拉攏工班。這段漫長的營造歷程,不僅是一次物質空間的建設,更是一次關於建築倫理與工匠精神的實踐,證明了在當代建築實務中,建築師必須具備解決實際問題的綜合能力,以及對完美品質的堅持與執著。



建築圖










作品資訊
作品名稱:學背之家
作品位置:中國惠州 Huizhou, China
作品類型:住宅、私人住宅、獨立住宅
業主:黎氏兄妹
設計單位:倉北文旅·共和營造建築工作室
總樓地板面積:116 平方米
竣工:2025年
攝影:王策
主持建築師:黃貽民
設計團隊:黃貽民、王悅、楊耀州
營造廠:倉北文旅·共和營造建築工作室