位於巴塞隆納的 Escola La Mar Bella 是將既有小學的校舍進行改造及增建,將其可用樓地板面積倍增,三個相互連接的量體定義了一個總面積為5400平方公尺的綜合體,既有校舍建於1950年代,由SUMO arquitectes進行深度整修,並增加了兩個新的量體。兩個長形的量體以L型配置,圍塑出學校的中庭開放空間,包含了教室、食堂、廚房和行政辦公區;第三個量體有四個街道立面,面向廣場,藉由跨越公共空間上的橋梁與綜合體相連,設有體育館、更衣室、和圖書館,即使是學校關閉時,這些空間可以讓社區居民共同使用。



空間及材料彈性運用
空間配置採取靈活多樣性規劃,以促進新的教學計畫實施,寬敞的動線空間成為教室的延伸,學生們可以小組方式進行學習;新的量體屋頂成為露天休閒空間的延伸,這樣的空間對於設在城市的學校是相當寶貴的;以材料達到自明性,簡單的解決提案、耐用和耐候的結構,以及非常低的維護成本,採用混凝土、木材和遮陽廉作為統一建築群語彙的主要材料。

節能綠建築學校
校園設計是根據歐盟近零能耗建築nZEB (nearly Zero-Energy Building)標準進行規劃,這是一所節能綠建築學校,具有低熱傳導性的外殼結構,特別注重遮陽,並具有高性能的自然通風,用低環境衝擊的材料建造,並且在屋頂設有50千瓦的太陽能板,為室外操場空間遮陽,整個建築群的能源認證為A級。












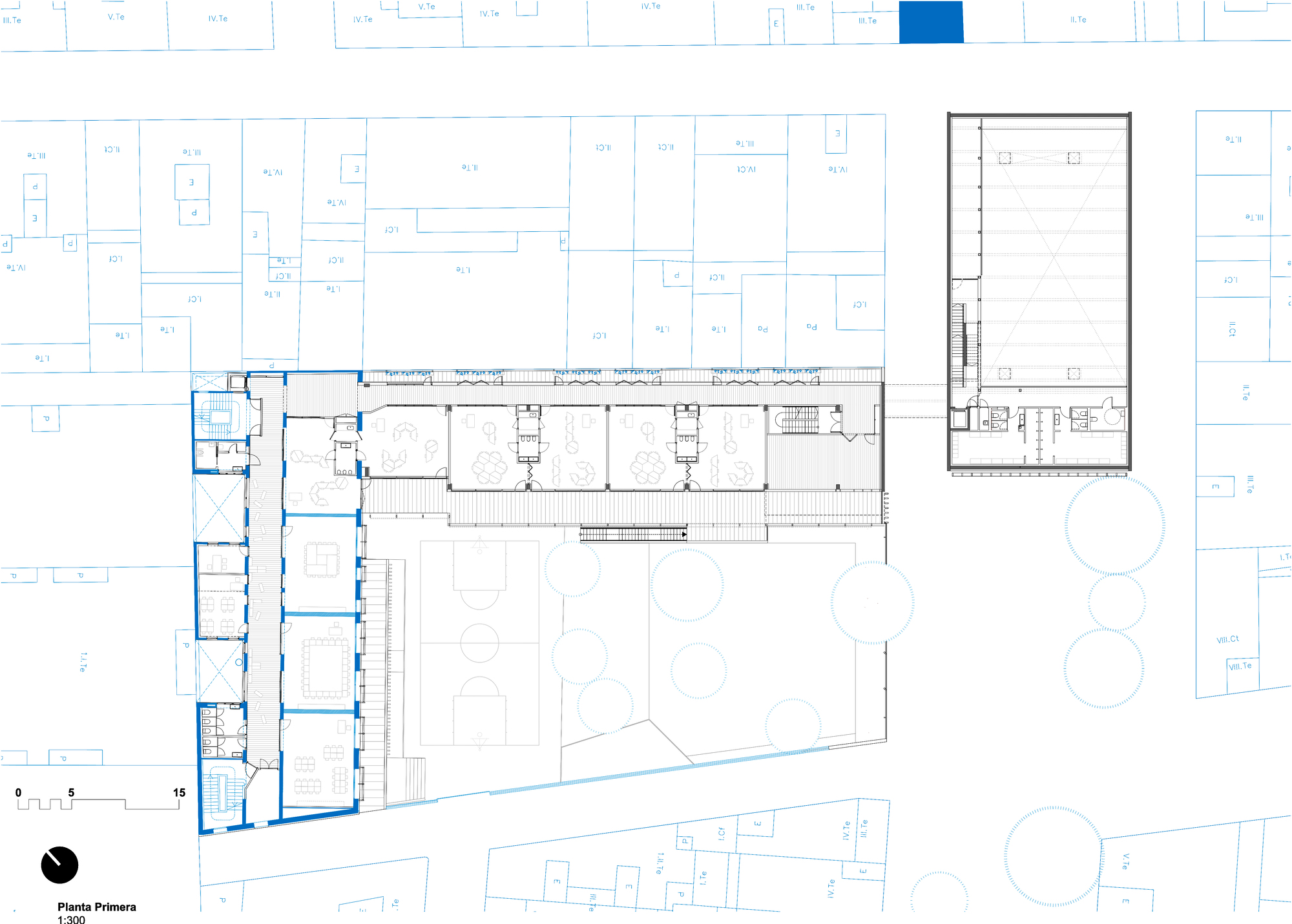
建築圖













作品資訊
作品名稱:Escola La Mar Bella 學校
作品位置:西班牙巴塞隆納
業主:CEB Consorci d’Enseyament de Barcelona
作品類型:學校建築
建築師:SUMO arquitectes
主持建築師: Marc Camallonga, Jordi Pagès, Pasqual Bendicho
工程: AIA Instal.lacions Arquitectòniques
營造廠:Natursystem / Eurocatalana
結構顧問:Manuel Arguijo
監造:Joel Vives
總樓地板面積: 5400 m²
竣工: 2021
攝影:Aitor Estévez Olaizola
