巴塞隆納榮耀廣場的戰略樞紐與都市縫合
巴塞隆納(Barcelona)的榮耀廣場(Plaça de les Glòries Catalanes)在城市紋理中佔據著舉足輕重的戰略地位,它是格蘭大道(Gran Via)、對角線大道(Avinguda Diagonal)與梅里迪亞納大道(Avinguda Meridiana)這三條城市動脈的交匯點。
這些幹道各自承載著不同的都市機能:格蘭大道連結東部海岸線並推動減少車流的移動模式;對角線大道構建了擴展區(Eixample)的骨架,串聯海洋與城市高地;梅里迪亞納大道則在抵達榮耀廣場時經歷了空間性質的轉變。
此外,歷史悠久的里貝斯路(Ribes Road)作為市民軸線介入其中,強化了行人與自行車的流動性,將周邊鄰里設施與克洛特街(Clot Street)無縫接軌。
Illa Glòries 社會住宅正坐落於此複雜且充滿活力的都市脈絡之中,位於由 Consell de Cent、Castillejos、Bolívia 與 Independència 街道定義的「超級街區」(Superilla)範圍內,試圖透過建築手段縫合都市的斷裂面。



巴塞隆納最大規模社宅計畫與包容性願景
受到《城市改善特別計畫》(Special Plan for Urban Improvement, PEMU)的規範,Illa Glòries 綜合體由四棟建築(A、B、C、D棟)組成,共計提供238戶住宅,這不僅是巴塞隆納近年來最大規模的社會住宅推廣案,更是該市推動包容、永續與連結型都市模式的關鍵一步。
其中,由 Pau Vidal 與 Vivas Arquitectos 設計的C棟包含67個居住單元,其設計核心在於類型學的靈活性(Typological Flexibility)、環境永續性與社會凝聚力。建築師並未將其視為單純的居住容器,而是作為修復社會連結與提升居住權益的積極載體,試圖在緊湊的都市環境中,為多元族群提供高品質且負擔得起的棲身之所。



雙向通風佈局與適應環境的量體策略
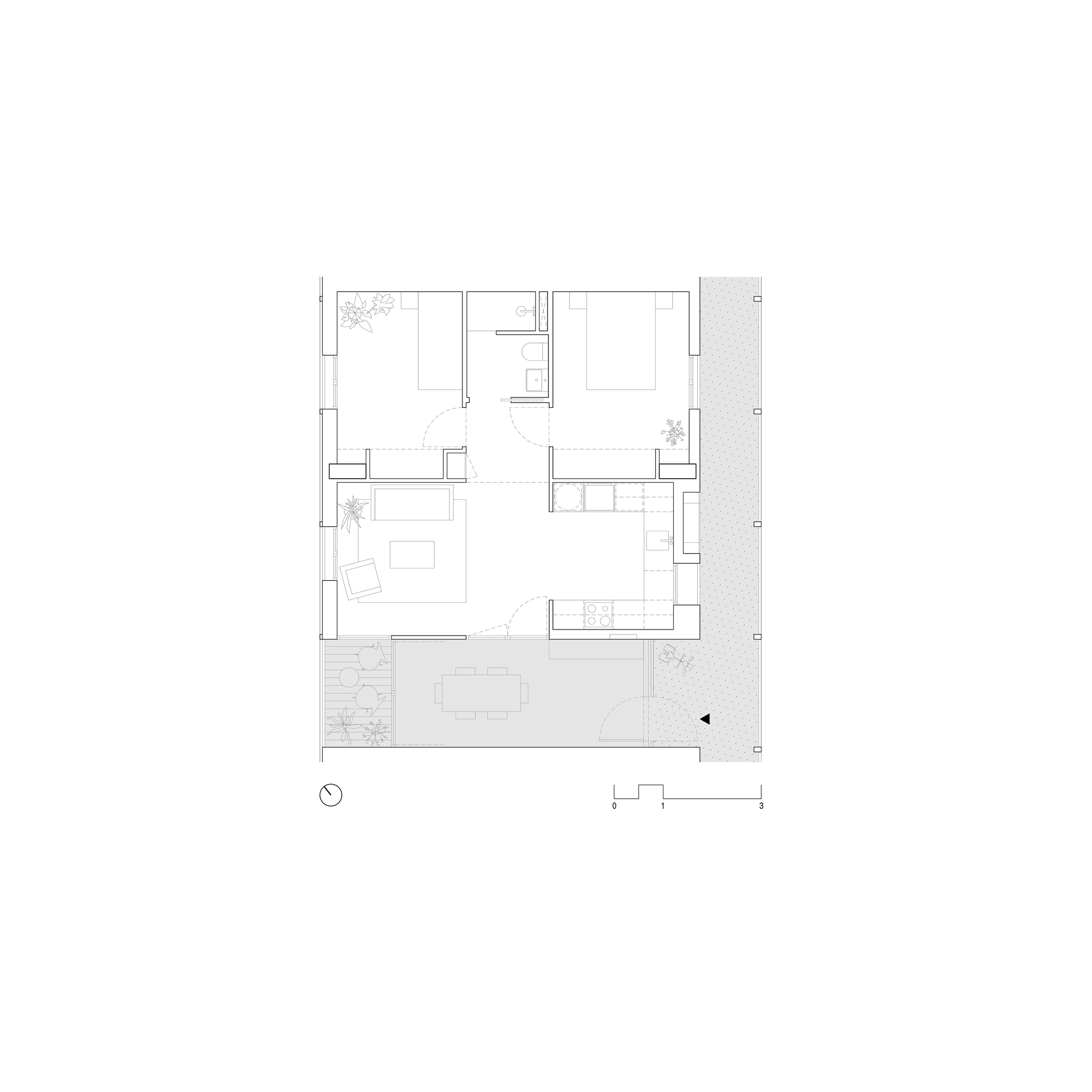
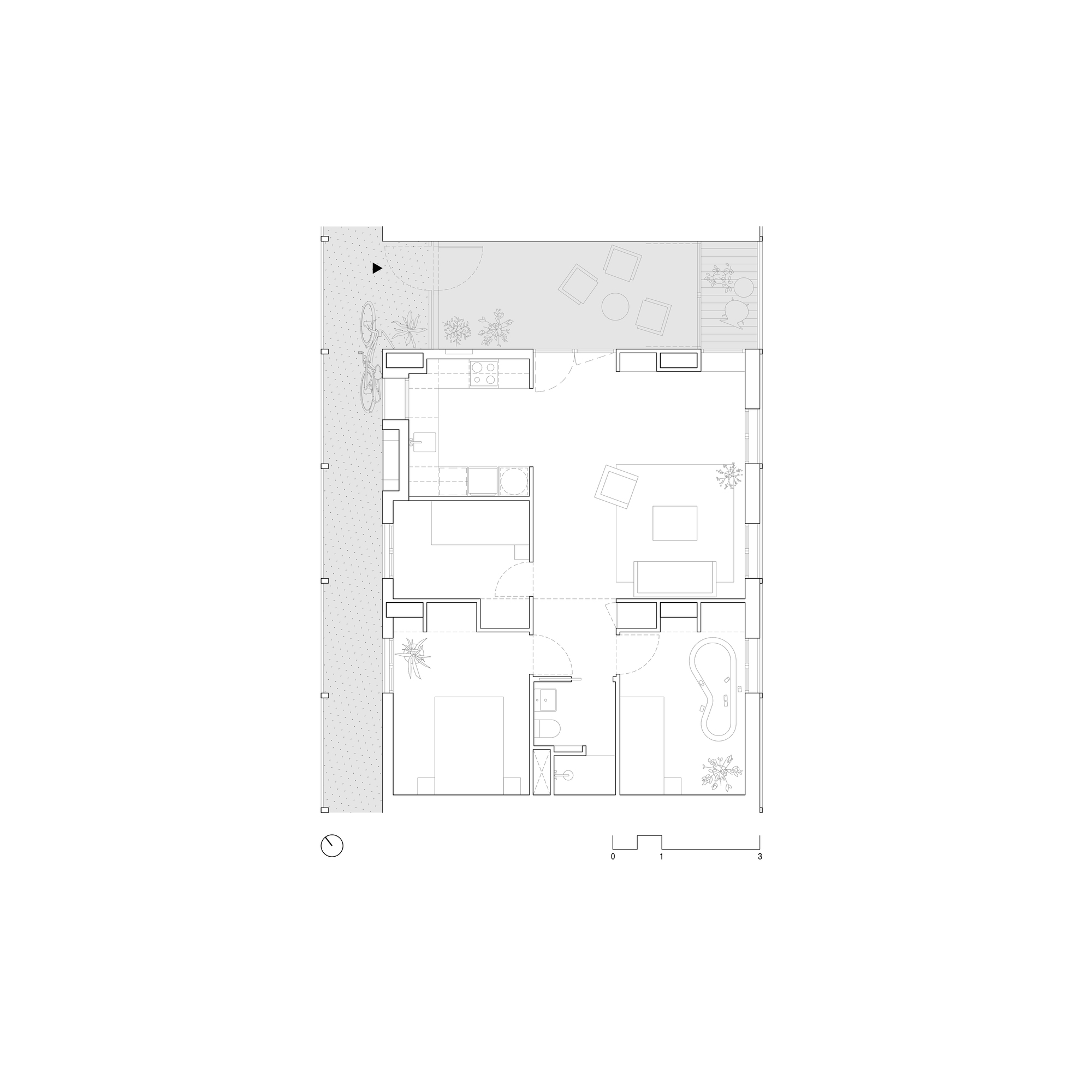
C棟的住宅單元採用了雙向通風的類型學設計,居民需通過連接內部中庭的外部走廊進入家門。這種佈局不僅顯著改善了室內的交叉通風與日照獲取,更賦予建築適應不同高度與周邊環境條件的能力。設計團隊敏銳地觀察到基地條件的變化,
從五樓開始,由於相鄰B棟量體的退縮,建築師策略性地將住宅重新導向南方,並將走廊移至北向立面。這一調整優化了景觀視野與日照條件,展現了建築在垂直向度上對微氣候與都市景觀的靈活回應,確保每一戶都能享受到最佳的居住品質。


強化社區維度的過渡空間與滲透性設計
為了強化社區空間使用性,建築設計特別強調寬敞的共用區域與連接走廊。這些空間不僅是單純的動線元素,更是私人住宅與公共空間之間的過渡地帶。
走廊的設計讓回家的過程變得更加平緩且充滿儀式感,無形中增加了鄰居間相遇與互動的機會,從而培養出深厚的社區意識。為了提升內部中庭的自然採光與通風效果,建築量體被策略性地打斷,插入了露台與通廊。
立面上的垂直切口與可移動的木作構件,賦予了整體建築極佳的滲透性,讓光線與空氣得以在建築內部自由流動,打破了傳統集合住宅封閉沈悶的印象。



可居住的門檻與氣候調節的智慧介面
這些被構想為中介空間的進入走廊,重新詮釋了集體樓層的概念,使其具有多層獨戶住宅的特質。位於居住空間與街道之間的連結性,這些走廊提供了功能性、社會性與氣候性的多重效益。
它們如同熱與光的過濾器,隨著季節循環進行調節:夏季時開放通風,輔助自然冷卻;冬季時關閉,利用溫室效應捕捉熱能,在不依賴機械系統的情況下提升熱舒適度。此外,這些走廊將居住的使用範圍延伸至室外,豐富了家的空間品質。這個可居住的門檻將單純的通行轉化為具備氣候效率與社會活力的體驗,在集體結構的框架下強化了家庭的自主性。

工業化營建技術與近零能耗的永續實踐
在構造與材料方面,該項工程選擇了高預鑄化的乾式立面系統,以極小化施工過程中的環境衝擊。結構系統採用鋼筋混凝土板與柱解決。建築包含一層地下停車場、地面層以及九層標準樓層(每層七戶),加上格蘭大道側額外的兩層,總高度達到十一層。
為了達成高標準的能源效率,設計整合了再生能源系統,如屋頂的集中式空氣熱能與太陽能光電板。這些主動式與被動式策略的結合,確保了建築運作接近近零能耗建築(Nearly Zero Energy Consumption, NZEB)的標準,展現了對未來世代負責的永續建築態度。從構圖角度來看,建築以水平帶狀結構——地面層、走廊、公共空間、簷口——與內部空隙的垂直性形成對比,與周邊建築群產生了形式上的對話。
建築圖








作品資訊
作品名稱:67-Unit Social Housing Building in Illa Glòries
作品位置:西班牙 Barcelona, Spain
作品類型:預鑄、住宅、社會住宅、集合住宅、西班牙、西班牙建築、西班牙建築師
設計單位:Pau Vidal, Vivas Arquitectos
總樓地板面積:9490 平方米
竣工:2024年
主持建築師:César Vivas Millaruelo, Cristian Vivas Millaruelo, Pau Vidal
結構工程:Bernuz Fernandez Arquitectes
機電工程:Eletresjota Tècnics Associats
聲學顧問:Àurea Acústica
永續顧問:Societat Orgànica
工料測量:Joan March Raurell
專案管理:Jaume Aballí