佩薩克教育新貌:Cap de Bos 校園應勢擴張
在法國西南部葡萄酒聞名遐邇的波爾多都會區邊陲,佩薩克(Pessac)市正經歷著一波顯著的人口增長浪潮。此趨勢直接催生了對基礎教育設施的迫切需求。Cap de Bos 校園的擴建與翻新工程,便是此背景下的重要舉措,由深耕地方的 BPM Architectes (BPM建築事務所) 擔綱總體規劃。新校園預計容納高達450名學子,設計團隊不僅著眼於空間量的擴充,更致力於創造一個機能完善、鼓勵探索,並且對所有使用者都友善包容的新世代學習環境。



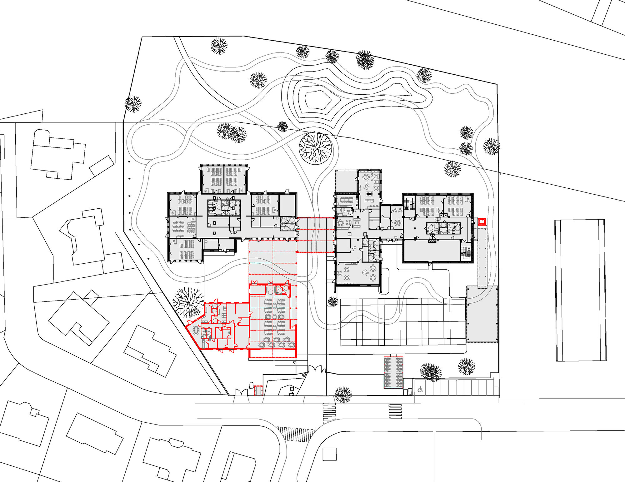
林間校園新佈局:三棟樓宇巧串連
Cap de Bos 校園座落於一片蒼翠的林地邊緣,毗鄰寧靜的住宅區,先天環境條件優越。法國建築師事務所 BPM Architectes 的設計方案巧妙地將整體配置劃分為三棟主要的建築量體,其中包含兩棟既有建築的細緻翻修改善,以及一棟全新構築的教育空間。這三者之間,透過一道富有特色的中央覆蓋式廊道緊密相連,形成流暢的動線。配置方式不僅尊重了原有的地景紋理,更為校園生活創造了多層次的空間體驗,使得建築群宛如從林木間自然生長出來一般,與周遭環境構成美妙的對話。


剪力桁架下的活力核心:中央廊道串起校園日常
作為校園建築群的心臟地帶,那道中央有頂蓋廊道無疑是設計上的一大亮點。屋頂採用了別具一格的剪力桁架結構,不僅在視覺上創造了向上延伸的開闊感,同時也強化了空間的通透性與採光效果。這條廊道絕非僅是單純的通道,它扮演著串聯校園各項關鍵機能的樞紐角色:從迎接訪客的接待區、處理校務的行政辦公室,到滋養心靈的圖書館、舉辦活動的多功能室,乃至課後輔導空間與供應餐食的食堂,均由此處便捷通達,成為師生交流互動、校園生活洋溢活力的動脈。



築構在地新識別:自然原色譜寫立面協奏
此次 Cap de Bos 校園的改造工程,一大重點在於建立清晰可辨的建築新風貌,同時確保與周遭豐饒的自然環境維持緊密連結。建築師在立面處理上煞費苦心,選用了帶有細緻紋理的波紋金屬包板,以及採用石灰基塗料的外牆外隔溫系統。這些材料的色彩選擇,皆以沉穩內斂的大地色系為主調,如赭石、淺褐等,力求使建築能低調地融入背景的林木綠意之中,避免突兀的視覺衝擊,宛如一幅描繪大地紋理的細膩畫作。



溫馨尺度新詮釋:纖維水泥板講述鄰里情懷
新建的校舍量體,特別在屋頂設計上著墨,採用了帶有溫和起伏的斜屋頂,並覆以耐久性與經濟性兼具的波浪纖維水泥板。這種選材與造型,巧妙地引入了一種住宅建築常見的親切語彙,使其能夠自然地呼應周邊住宅區的整體風格調性。對於年幼的學童而言,這樣的設計提供了一種視覺上的安定感與熟悉度,降低了大型校園可能帶來的陌生與疏離,讓學習環境更添幾分如家一般的溫馨感受,這是教育建築中極富人文關懷的體現。


戶外場域巧思:都市廣場與綠茵樂園的二重奏
校園的戶外空間規劃,展現了設計團隊對於環境脈絡的細膩洞察與周全考量。在校園東南側,一個以硬質鋪面為主的「礦物感」都市型庭院被精心規劃出來,它不僅是校園連接外部都市紋理的介面,也提供了集會、活動的開放場所。與此形成對比的是,西側則開闢了一片更為開闊的綠色遊戲區,此區更進一步向鄰接的帶狀林地延伸,形成一條生態廊道,為學子們提供了豐富的生物多樣性觀察機會、夏日裡的天然遮蔭,以及親近自然的探索空間,無疑是對抗都市熱島效應的一帖良方。



永續工法實踐:舊建物節能升級的環境承諾
Cap de Bos 校園的翻新增建工程,自始至終貫徹了堅定的環境友善理念,這不僅反映在建材的選擇上,更體現在具體的施工方法中,力求達到永續發展的目標。針對既有的建築物,設計團隊採取了外牆加設保溫層(external insulation)的策略,並以經高壓蒸養處理、具備優異耐久性的木質壁板(autoclaved wood siding)作為飾面。此舉不僅顯著提升了舊建築的能源使用效率,減少了冷暖氣的耗損,溫潤的木質外觀亦能更好地融入周遭的自然景觀,猶如為老建築披上了一件既保暖又美觀的綠色新衣。


木構食堂領航綠標竿:低碳構築譜寫整體詩篇
新建的學生食堂建築,是本次工程在永續實踐上的另一指標。完全採用了木構方式興建,此舉大幅降低了建材生產與運輸過程中的碳排放。更值得一提的是,此食堂達成了法國嚴格的 E3C1 能源與碳排放標準,並且獲得了 Biosourced Level 1 的生物基材料認證,充分展現了低碳建築的決心。與食堂相鄰的廚房(或稱為備餐辦公室),外牆亦選用了與舊建築翻新部分相同的木質壁板,確保了整體視覺風格的連貫性,將所有建築元素統一在溫暖、自然的調性之中,使 Cap de Bos 校園蛻變為一處環境意識濃厚、深植在地紋理,且完美適應當代教育需求的典範設施。



作品資訊
作品名稱:School Group Cap de Bos
作品位置:法國 7 Rue du Comté 5, 33600 Pessac, France
作品類型:木構、校園建築、教育設施、法國建築、法國建築師
設計單位:BPM Architectes
總樓地板面積:2800 平方米
竣工:2024年
攝影:11h45
專案總監:Delphine Pirrovani
專案經理:Loic Cranley
專案管理協助:Kapea
結構工程:CETAB
景觀設計:Catherine Cloup
聲學顧問:Pi acoustique
營造廠:Etchart Construction