愛與記憶為磚瓦!墨西哥古城「魯本之家」:Intersticial Arquitectura獻上溫柔修復之作,為紀念早逝平權運動者,將歷史宅邸轉化為LGBTQ+社群的日間庇護所,透過謙遜介入與光線引導,構築無需言語即可療癒與安然存在的歸屬場域

0
394

時間的低語:記憶磚瓦砌成的溫柔堡壘

墨西哥心臟地帶,同時也是經濟重鎮的巴伊奧(Bajío)地區,座落著歷史名城克雷塔羅(Santiago de Querétaro)。有些宅邸源於繼承,有些來自交易,然而極少數的建築,卻是藉由深厚的情感與思念拔地而起,魯本之家(Casa de Rubén)便是如此一處所在。

此處並非冰冷的紀念碑,也不是凝固在壁面上的說教,它是一個為LGBTQ+社群打造的日間社群中心,更是為了紀念青年運動家魯本・薩拉查(Rubén Salazar)而生。他畢生為消弭歧視與促進包容而奮鬥,如今,這份精神轉化為一處有生命的庇護所。短暫的停歇、溫暖的陪伴與耐心的傾聽,重要性絲毫不亞於遮風避雨的屋瓦,成為一座因愛而生的情感方舟,悄然佇立。

歸屬的追尋:構築超越藍圖的心靈庇護所

從計畫伊始,推動者們便深切體認到,任務的核心並非僅僅是設計一幢物理上的建築,而是要支撐起一種至關重要的可能性──那是一種讓人感覺安穩、尋得歸屬、無須解釋便能自我療癒的機會。這份期盼,遠非工程藍圖所能涵蓋,它需要的是真誠的臨在、細膩的感知與堅實的承諾。

這處位於克雷塔羅歷史中心的宅邸,本身便承載著層層疊疊的寂靜與故事,每一面牆都彷彿在訴說過往。因此,修復的過程並非大刀闊斧地強加新貌,而是選擇溫柔地陪伴、仔細地聆聽,並尊重既有的歲月痕跡。這是一項潛移默化的工程,旨在為酷兒社群提供一個能夠卸下心防、坦然「存在」的空間,讓心靈得以在此找到慰藉與力量。

光影的對話:與歷史紋理共生的建築哲學

魯本之家的建築實踐,本身就是一場與時間的深度對談。修復工作並非意圖遮掩光陰流轉的軌跡,相反地,是讓那些被歲月磨損的痕跡,成為空間敘事的一部分,使其洗盡鉛華,卻更顯真實。

建築師選擇創造寬大的開口,慷慨地迎接自然光線,讓空氣得以在室內外暢行無阻、自由吐納。過去被隔絕的空間被重新打通,曾經被抹除的記憶被再次看見,每一個設計動作都流露著「陪伴而非引導,開放而非控制,守護而非圈禁」的細膩思維。

Intersticial Arquitectura 建築師事務所的介入顯得格外謙遜,他們將建築視為一種工具,用以轉譯業主那份高尚且深具慈善精神的初衷,將抽象的關懷具象化為觸手可及、誠實無華的療癒場域。

慈善的錨點:從願景到真實空間的轉化

這項計畫的順利落成,歸功於一位懷抱著崇高慈善視野的業主,他的信念成為一切的起點:為克雷塔羅及其周邊地區的LGBTQ+社群,提供一處有尊嚴的支持、連結與療癒之所。正是這份堅定不移的信念,為後續的建築工作提供了穩固的價值錨點。

建築的角色,在此退居為實現此一願景的媒介。透過一次恰如其分的介入,不同的房間、工作坊、天井與露台被巧妙地串連起來,共同營造出一種寧靜祥和、毫無壓迫感的氛圍。空間的佈局鼓勵互動,卻不強迫社交;光線的引入帶來溫暖,卻不造成刺眼的侵擾。此處的建築語言是內斂的,它不誇耀自身的設計,而是讓使用者在不知不覺中感受到被接納與支持。

存在的真諦:當建築化為日常的呼吸

今日的魯本之家,人們感受到的並非鋒芒畢露的建築語彙,而是與生活融為一體的日常吐息。建築本身彷彿退隱了,轉化為一種背景,一種氛圍,一種每日都在發生的溫柔姿態。它化身為一座引人駐足的天井,一道無需請求便灑落滿室的陽光,一個對所有來者全然敞開、從不詰問身分的空間。

在這裡,沒有批判的眼光,沒有行為的要求,也沒有無謂的干擾;在這裡,人們可以純粹地「是」自己。而正是這種集體的、充滿情感的、活在當下的「存在」狀態,賦予了這處宅邸超越物理維度的深遠意義。它不僅僅是魯本的家,更是每一個需要庇護與理解的心靈,共同擁有的家。


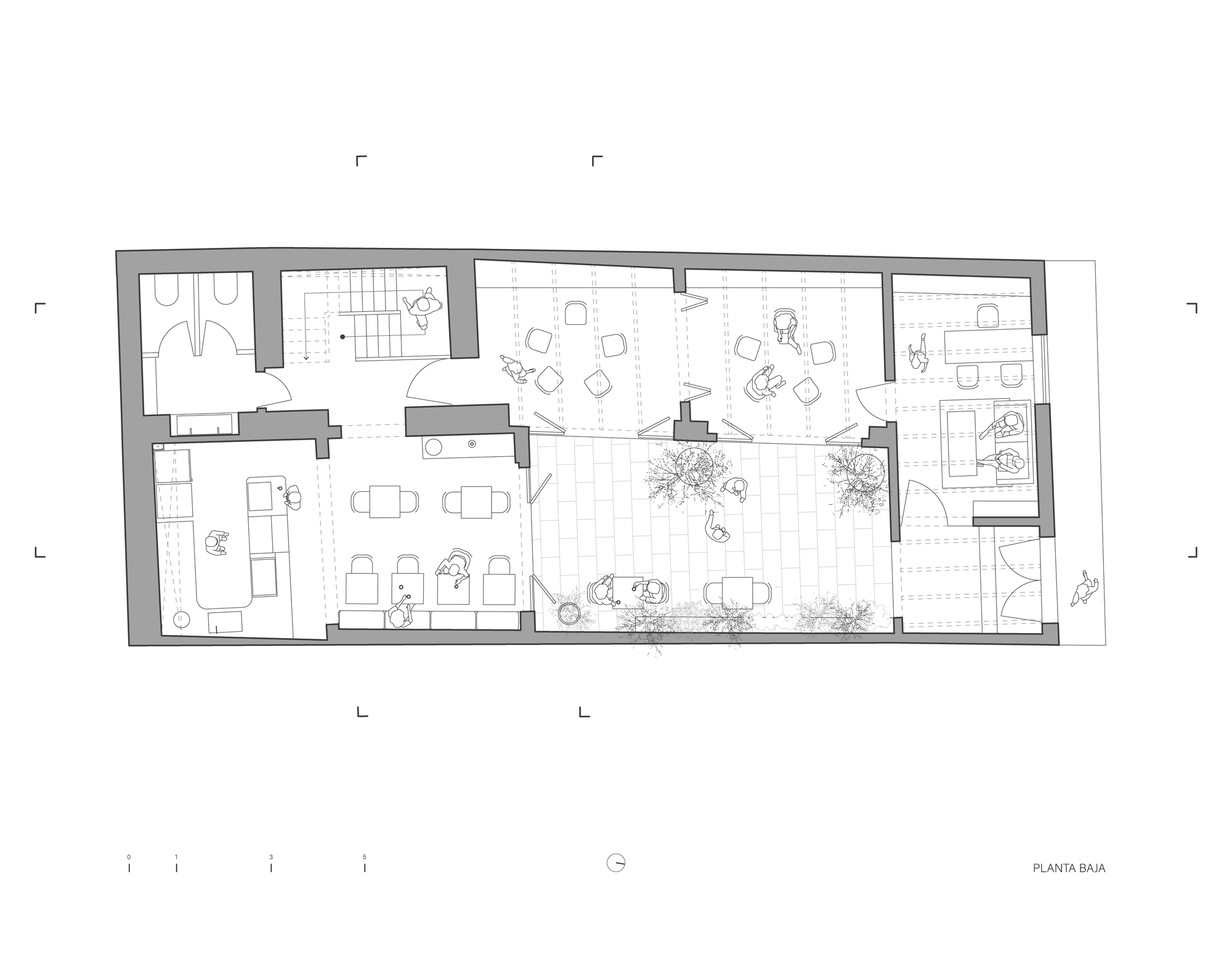
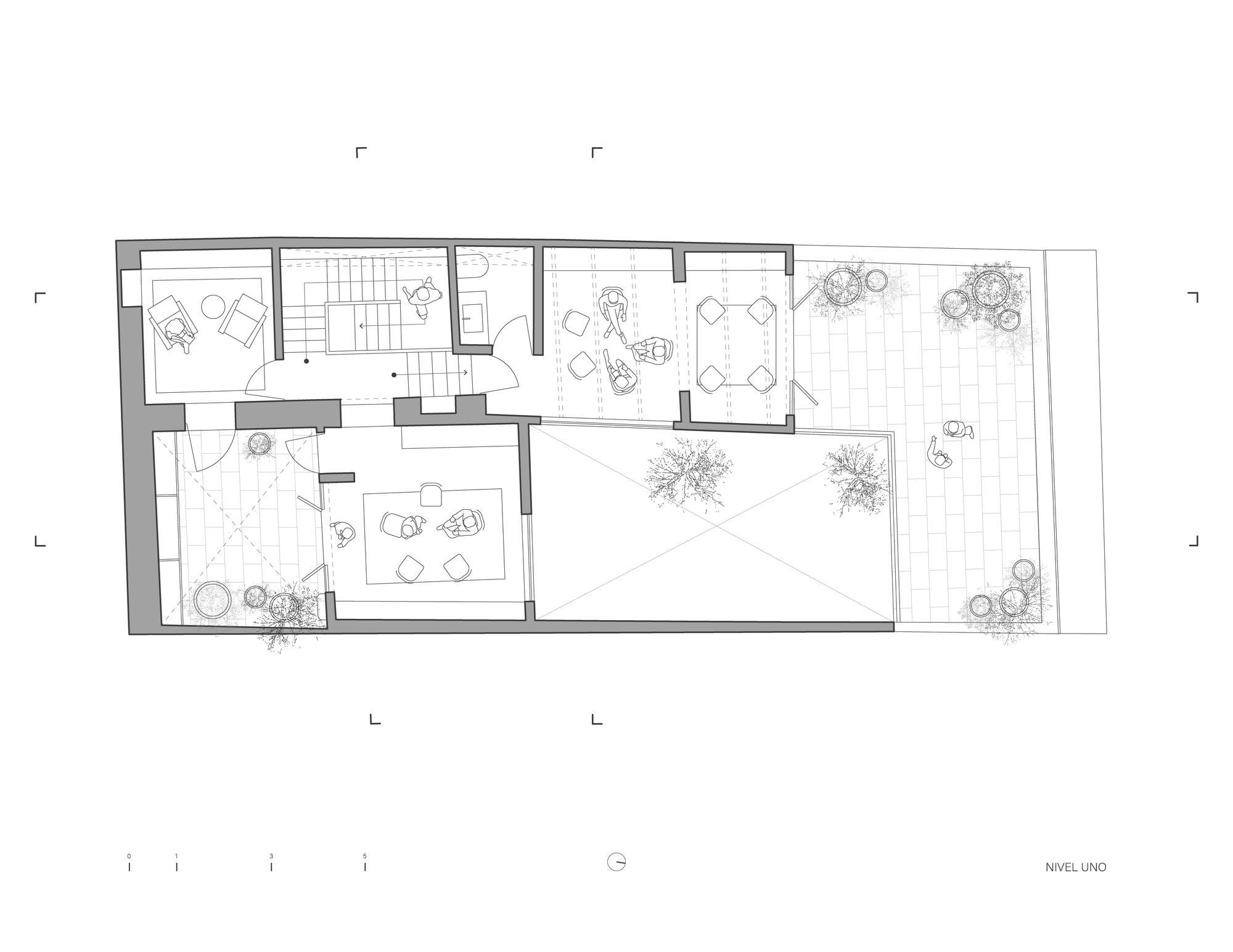
建築圖


作品資訊

作品名稱:LGBTQ+ Community Center and House Rubén
作品位置:墨西哥 Santiago de Querétaro, Mexico
作品類型:活動中心、舊建築改造舊建築再利用
設計單位:Intersticial Arquitectura
總樓地板面積:245 平方米
竣工:2024年
製造商:Ciento.12, Helvex, Nanocal
主持建築師:Rodolfo Unda Cortés
專案團隊:Bosco Tamayo Chapa, Ana Paula Vega Gutierrez, Jimena Amieva Alvarez, Jimena Borbón de la Torre
營造廠:Davis de Anda Construcción
景觀設計:Matorral
燈光工程顧問:Tecnnolite
其他工程顧問:Bticino

Leave a reply

Please enter your comment!
Please enter your name here

這個網站採用 Akismet 服務減少垃圾留言。進一步了解 Akismet 如何處理網站訪客的留言資料