波哥大猶太桂冠:四十年磨一劍的教育聖殿
在哥倫比亞的心臟地帶波哥大(Bogotá),當地猶太社群醞釀了四十年之久,終於啟動了一項石破天驚的宏偉工程——對已有七十年歷史的希伯來學院(Colegio Colombo Hebreo)進行全面改造。此舉不僅是該社群近半世紀以來最雄心勃勃的建設計畫,更是一次高瞻遠矚的未來投資。
由於計畫資金來自出售近三分之一校地,迫使整個設計團隊必須釜底抽薪,對校園的空間佈局進行一次徹底的解構與重塑。這項決策背後,蘊藏著破釜沉舟的決心,目標是為未來五十年的教育發展,奠定一塊無可動搖的基石,可謂一次意義非凡的脫胎換骨。




秩序的重建:告別七十年雜亂的總體規劃
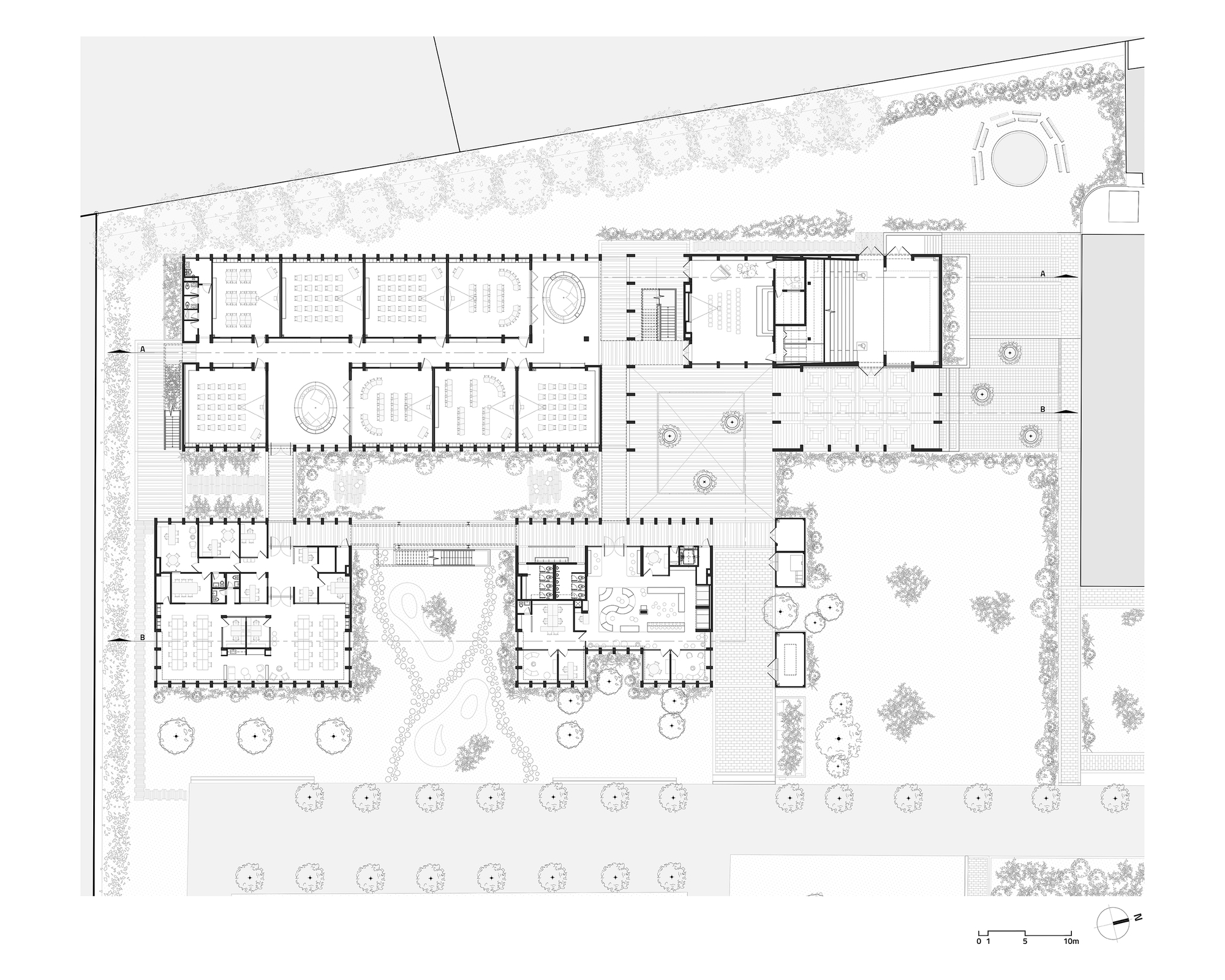
審視舊校區配置,其七十年的發展歷程猶如一部缺乏總體規劃的即興之作。建築物與教室沿著一條中央路徑隨意排列,呈現出一種有機卻分崩離析的狀態。儘管擁有寬廣的綠地,各個建築量體之間卻缺乏關聯,使得不同區域間的關係疏離而破碎。
由建築師團隊Aarón Cohen、Angélica Mejía、Camilo Sellamén、Camilo Fuentes與Joel Amón擘劃的新藍圖,則以雷霆萬鈞之勢,從根本上重組了校園秩序。新的規劃確立了三大清晰的機能區域:學術、體育與服務,並讓它們圍繞著中央綠地整合,將昔日功能單一的中央路徑,升格為一條聯繫各區的壯麗漫遊步道。



建築的箴言:書之民族的價值轉譯
全新的建築設計,矢志成為猶太核心價值觀的無聲宣言。猶太民族素有「書之民族」(People of the Book)的美譽,這份對知識的尊崇,理應在其最重要的教育機構中得到體現。因此,建築師們選擇了一種內斂、不事張揚且雋永的建築語彙,透過重複性的結構韻律,作為堅毅、韌性與勤勉精神的象徵。在材料的運用上,則奉行極簡主義,僅以混凝土、鋼鐵和玻璃三者為主體,讓這些冰冷的工業材料與周遭的自然景觀並置、對話,藉此寄寓了對我們身處世界及對自身謙遜尊重的價值觀,從而創造出超越傳統教室、引人反思與學習的深邃空間。





精神的中樞:連結天地的中庭聖殿
整個校園的機能被妥善分配於四棟可明確辨識的建築物之中,這些量體再藉由輕型結構體串接,最終匯聚於中央廣場與中庭。中庭是所有新建物中最具象徵意義的靈魂空間,它莊嚴地承載了社群對於歷史與傳統的敬意。這是一個奇特的場域,一個看似無事發生卻又包羅萬象的地方,它引導人們在進入知識學習的世界前,先行反思俗世與精神領域的連結。其驚人的雙倍挑高尺度,相較於周邊的建築顯得格外突出,卻也因此提供了必要的儀式感與崇高氛圍,無形中提升了學術在民族傳承與文化遺產保存中的至高地位,堪稱點睛之筆。






知識的搖籃:現代教育的多元場域
透過橋樑、廊道、廣場、庭院及綠化區域的巧妙串連,這四棟主建築形成了一個功能多元的知識網絡。內部空間規劃涵蓋了傳統的教室、靈活運用的多功能空間、行政辦公室、館藏豐富的圖書館,以及因應現代科技教育需求的各類實驗室。特別值得注意的是,設計中納入了先進的創客空間(Makerspace, STEM),以及培養美感的藝術教室與音樂教室。這些設施共同構成一個完整的教育生態系統,從科學探索到人文素養,從獨立研究到協同創作,為學子們的全面發展提供了豐沛的土壤,無疑是百年樹人的具體實踐。





文化的豐碑:構築社群的共同記憶
此更新計畫的成功,其意義遠不止於校園硬體的物理翻新,更在於創造了一個能有效促進學習、強化社群連結,並鞏固猶太文化遺產的實質場域。在這裡,建築不再只是冰冷的遮蔽物,而是歷史與願景的載體。校園的每個角落,從宏偉的中庭到靜謐的庭院,都細微地反映著這個社群的過往與期盼。它不單單是一所學校的重建,更是為波哥大的猶太民族構築了一座看得見、摸得著的精神堡壘,一個能夠承先啟後、將文化薪火代代相傳的永續家園。





建築圖








作品資訊
作品名稱:Colombo Hebrew College
作品位置:Bogotá, Colombia
作品類型:校園建築、教育設施、哥倫比亞建築、哥倫比亞
設計單位:Aarón Cohen + Angélica Mejía + Camilo Sellamén + Camilo Fuentes + Joel Amón
總樓地板面積:4294 平方米
竣工:2024年
攝影:Alejandro Arango
主持建築師:Aarón Cohen
主持團隊:Angelica Mejía
設計團隊:Camilo Sellamén, Camilo Fuentes, Joel Amón
營造廠:SRC Ingenieros Civiles S.A.
結構工程:SRC Ingenieros Civiles S.A.
照明設計:Maria Teresa Sierra
機電顧問:Hidrosan JBS
電氣工程:Powel Ingenieria y Servicios S.A.S.
機械工程:Capitalaires Ingenieria y Confort
服務設施工程:Alfonso Uribe & Cia S.A.
聲學顧問:Aqstica S.A.S.
景觀設計:Inforest Consultores Ambientales S.A.S.
環境永續顧問:Andrés García Ingeniería Bioclimática y Sostenible
平面視覺設計:Sofía López