聖水洞工業地景中的商業空間博弈與反叛
首爾的聖水洞(Seongsu-dong),昔日是製鞋廠與鐵工廠林立的工業地帶,如今搖身一變成為韓國年輕世代趨之若鶩的潮流聖地,宛如紐約布魯克林區的翻版。在這樣一處地價與租金連年飆漲的商業一級戰區,每一寸樓地板面積都意味著營收的潛力。傳統商業空間規劃往往錙銖必較,務求將商品陳列密度極大化,將動線壓縮至極限。
然而,韓國建築師事務所 ATELIER KHJ在規劃 쿠어(Coor) 聖水洞旗艦店時,卻選擇一條人跡罕至的道路,毅然決然地挑戰資本主義下的空間鐵律,突顯出令人側目的商業膽識。這不僅是建築設計的抉擇,更是一場關於品牌價值與空間體驗的豪賭,試圖在過度擁擠的消費市場中,開闢出一片屬於精神層次的留白。





揮動減法的手術刀重塑建築垂直向度的靈魂
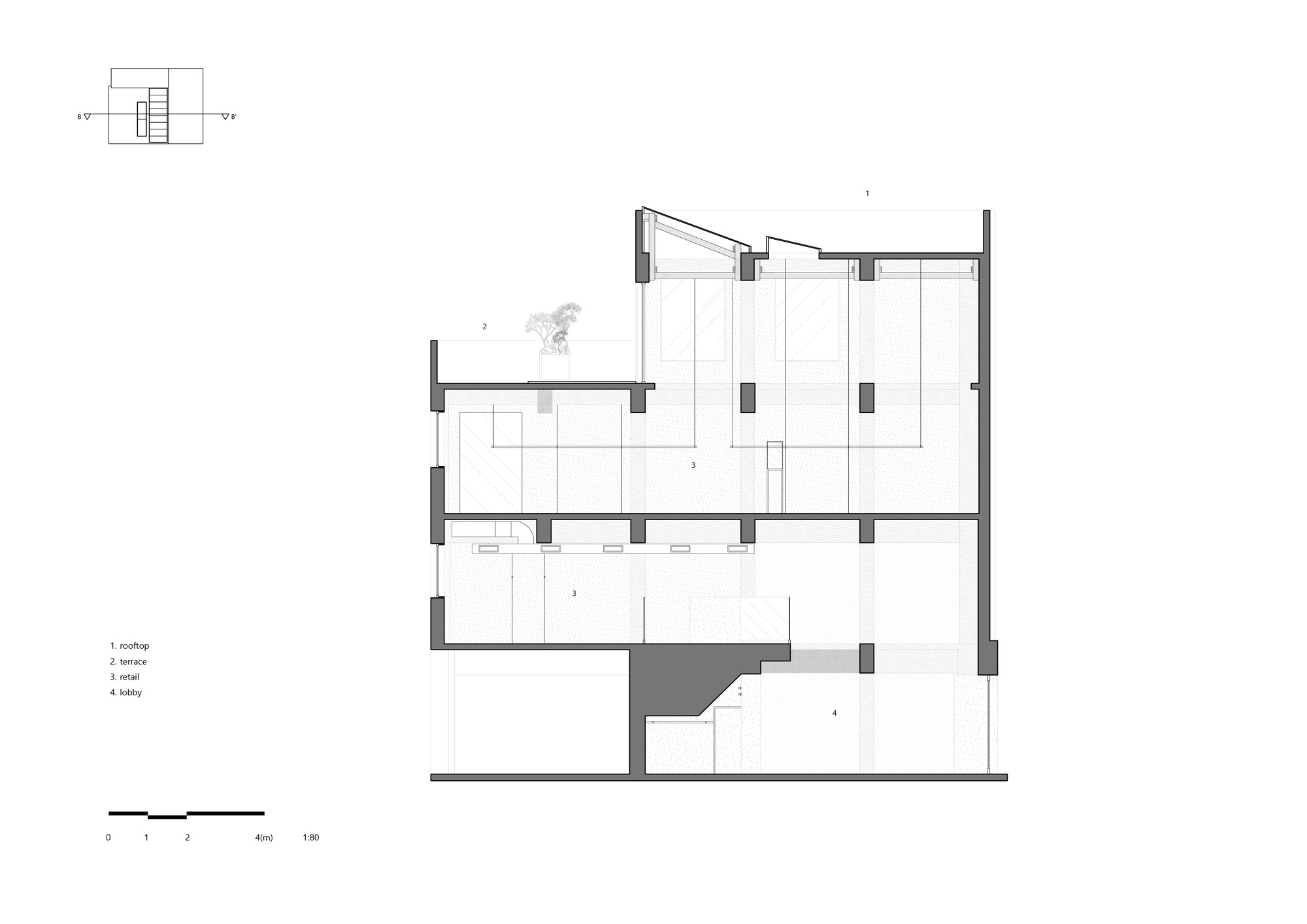
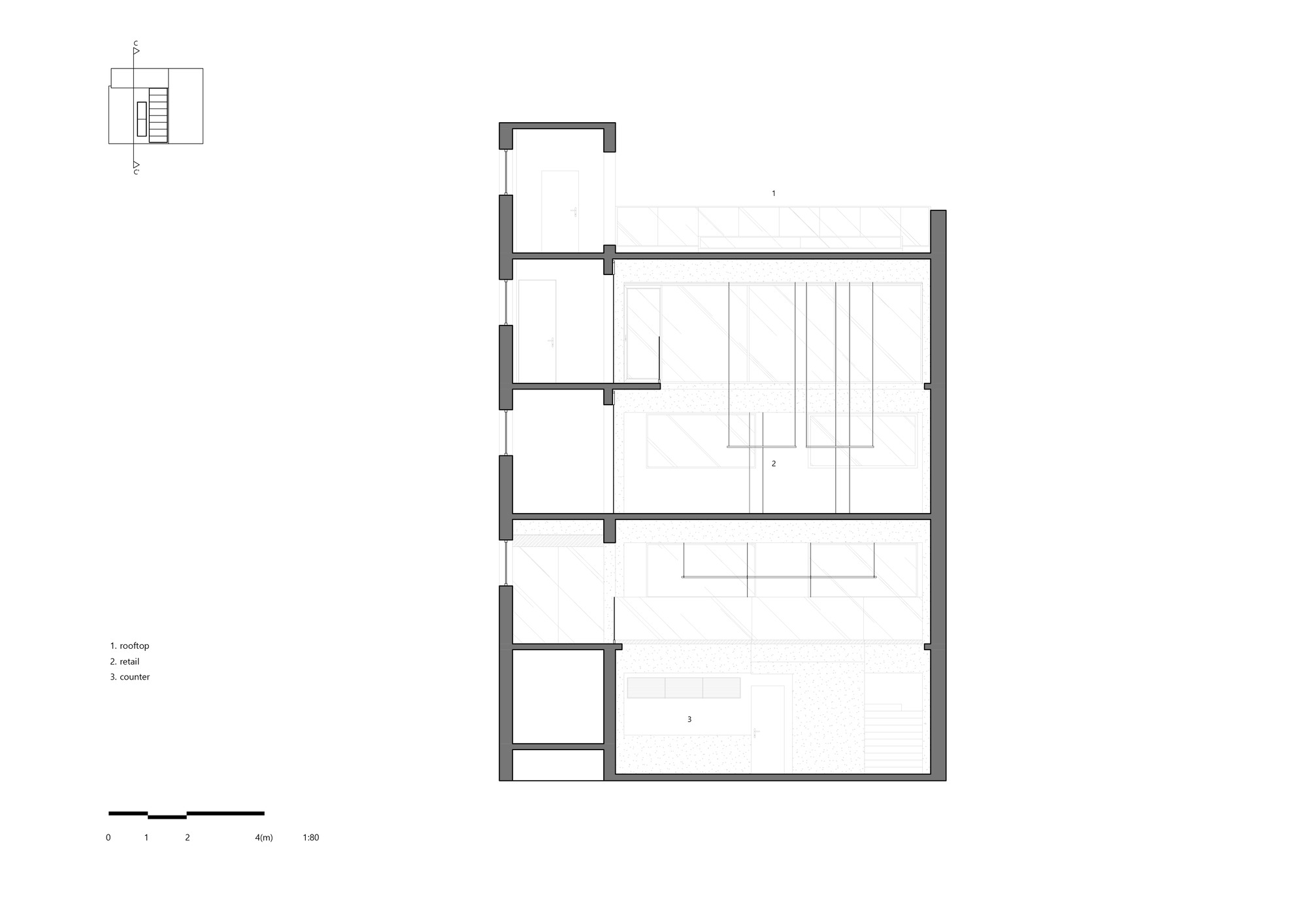
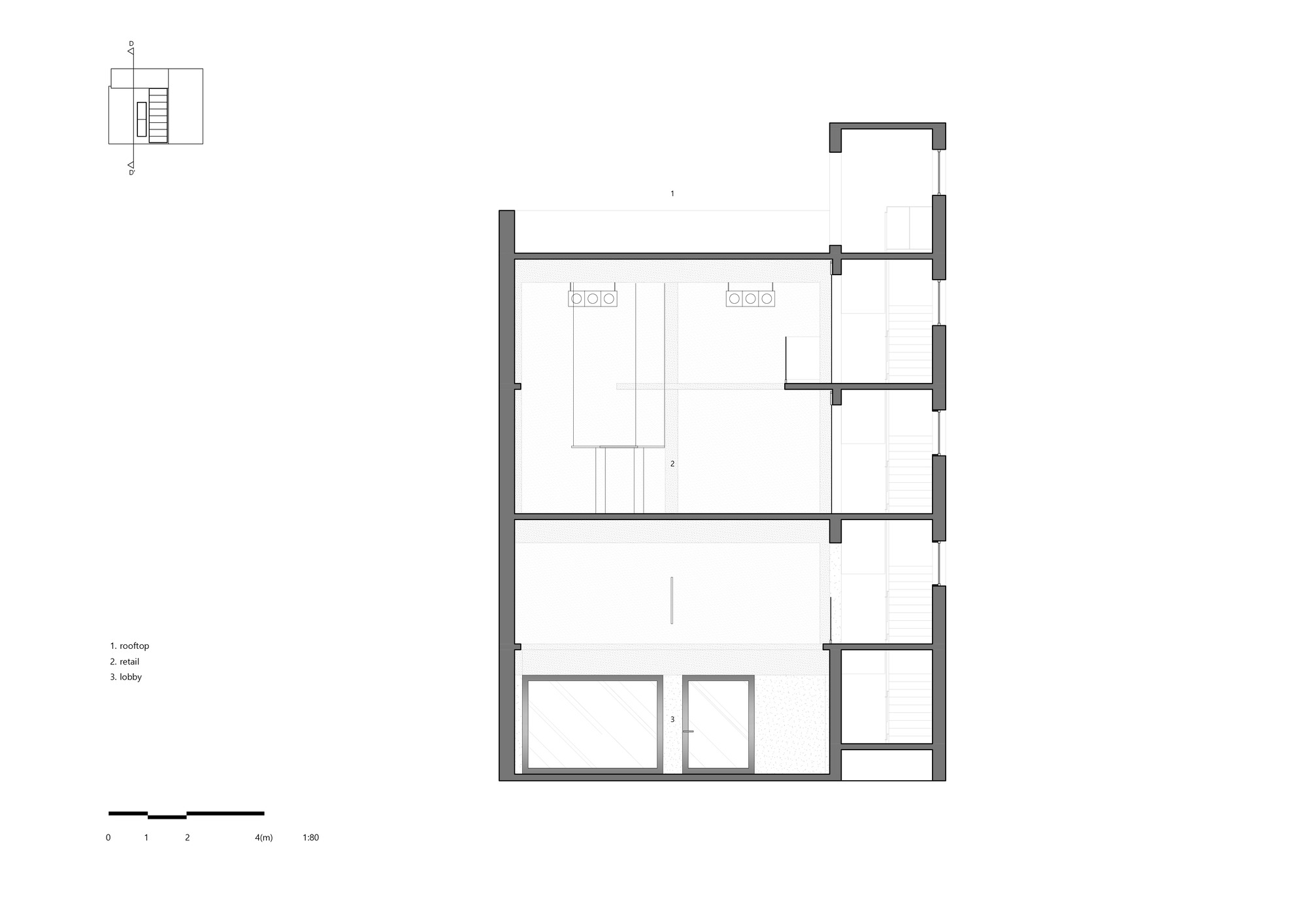
面對這棟舊建築改造,設計團隊並未選擇填滿,而是進行大膽的外科手術。他們移除半數的二樓樓板以及三分之二的四樓樓板,將原本侷促的四層樓結構,轉化為擁有挑高氣勢的雙層空間。
這種近乎奢侈的「減法」,在寸土寸金的首爾市區顯得特立獨行。透過犧牲樓地板面積,換來的是空間的呼吸感與視覺的通透性。陽光不再被樓層阻隔,而是能長驅直入地灑落深處,空氣也得以在樓層間自由對流。從空間策略不難看出設計者試圖打破水平樓層的藩籬,重新界定垂直向度的連結關係,讓建築物的內部結構產生戲劇性的質變,使原本封閉的盒子瞬間轉化為有機的生命體。




精密計算下的感官誘導與無意識的登高體驗
如何在減少樓層面積的同時,誘發訪客持續向上探索的慾望?這成為設計過程中的核心命題。ATELIER KHJ經過縝密思考,提出細膩的解決方案。
首先,透過直覺性的動線規劃,傳遞某種空間的舒適感;其次,針對樓梯的高度與寬度進行反覆推敲,找出最符合人體工學的舒適尺度。當訪客踏入這棟建築物,便會不由自主地被這些隱形的設計引導,在不知不覺中拾級而上,非強迫式的推銷動線,其實是精心編排的空間敘事,讓來店者的步伐移動成為愉悅的感官享受,使人在登高的過程中忘卻重力的負擔,沉浸於建築師所營造的氛圍之中,將攀登轉化為一種類似漫遊的優雅姿態。





懸浮於新舊交織紋理中的時尚與空間消費論
當樓板被局部移除後,舊建築原有的樑柱結構赤裸地暴露出來,歲月在混凝土上留下之粗獷紋理,與現代時尚精緻的服飾形成強烈對比。一樓與二樓的界線變得模糊,光線與視線在挑空的場域中交織。衣架上的服飾彷彿懸浮在半空中,與上方清晰可見的樓板殘跡相互呼應,構築出一幅超現實的畫面。
人們在這個新舊並存的場域中穿梭交會,體驗者所感受到的已非單純商品的買賣,更是一種對於「空間」本身的消費。這裡創造出獨立於喧囂都市之外的小世界,讓消費者在購物的同時,也能細細品味建築重獲新生的獨特韻味,將商業行為昇華為一場美學的巡禮。








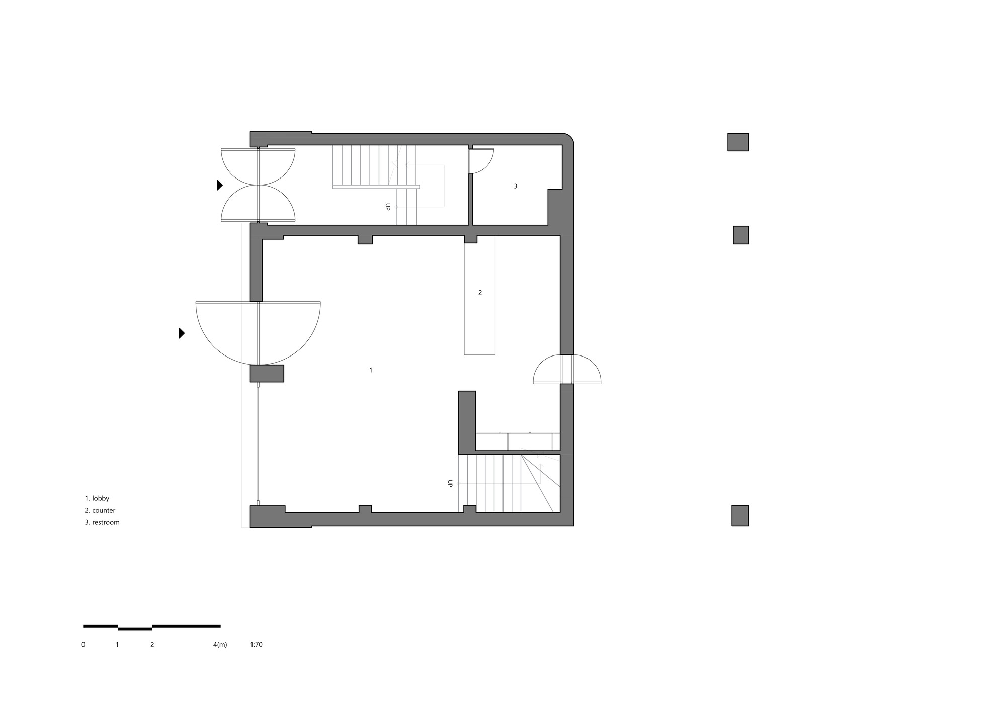
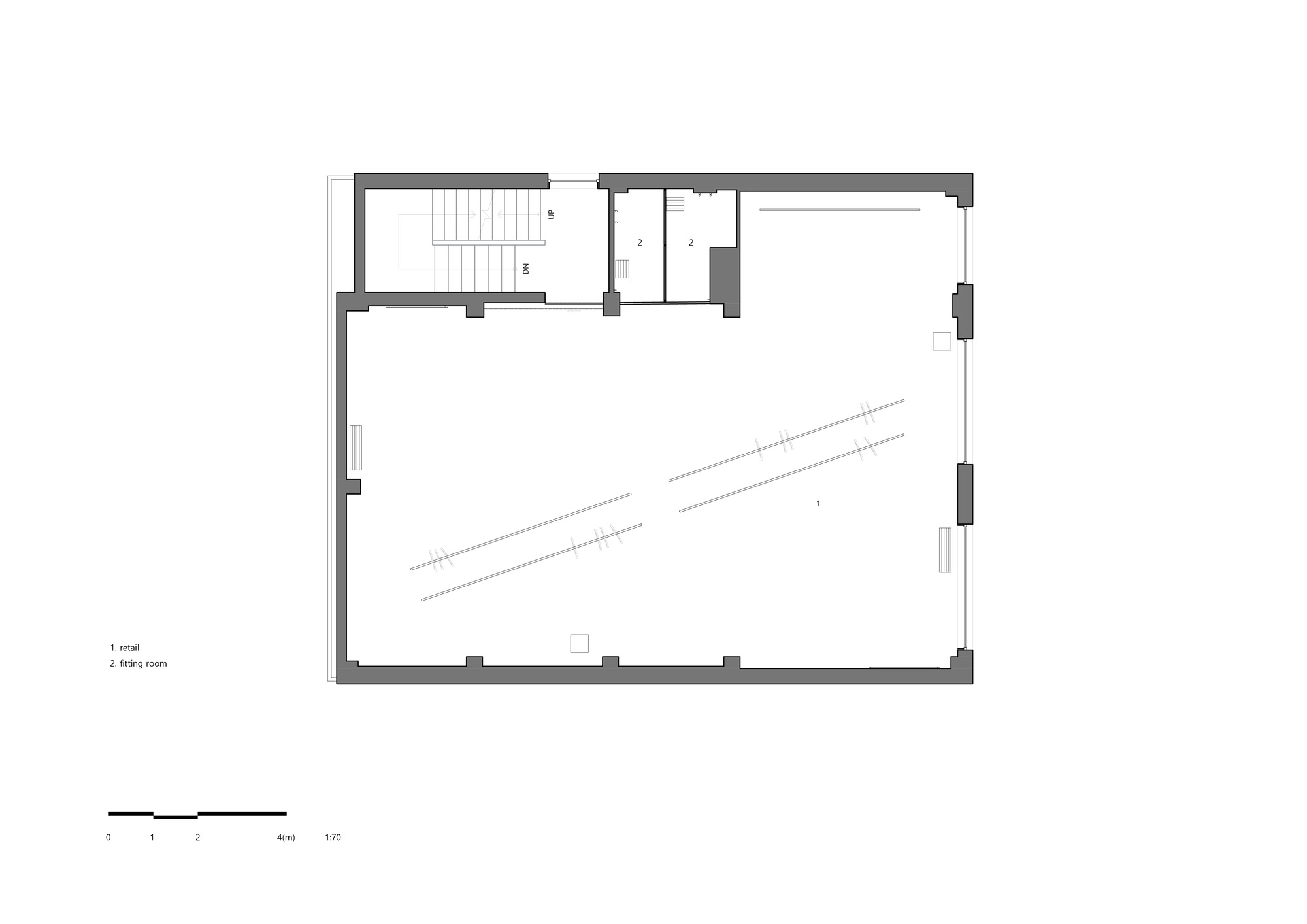
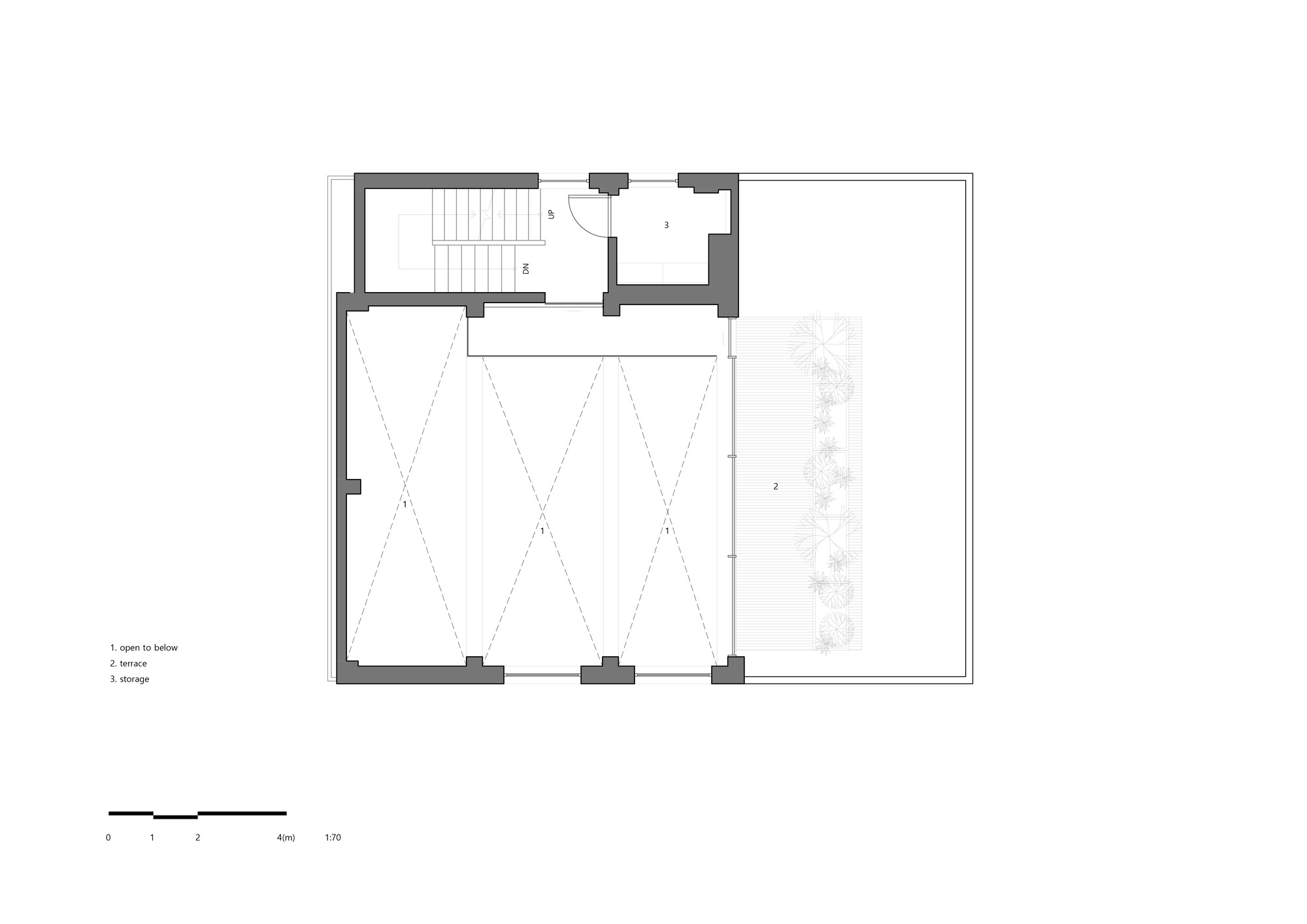
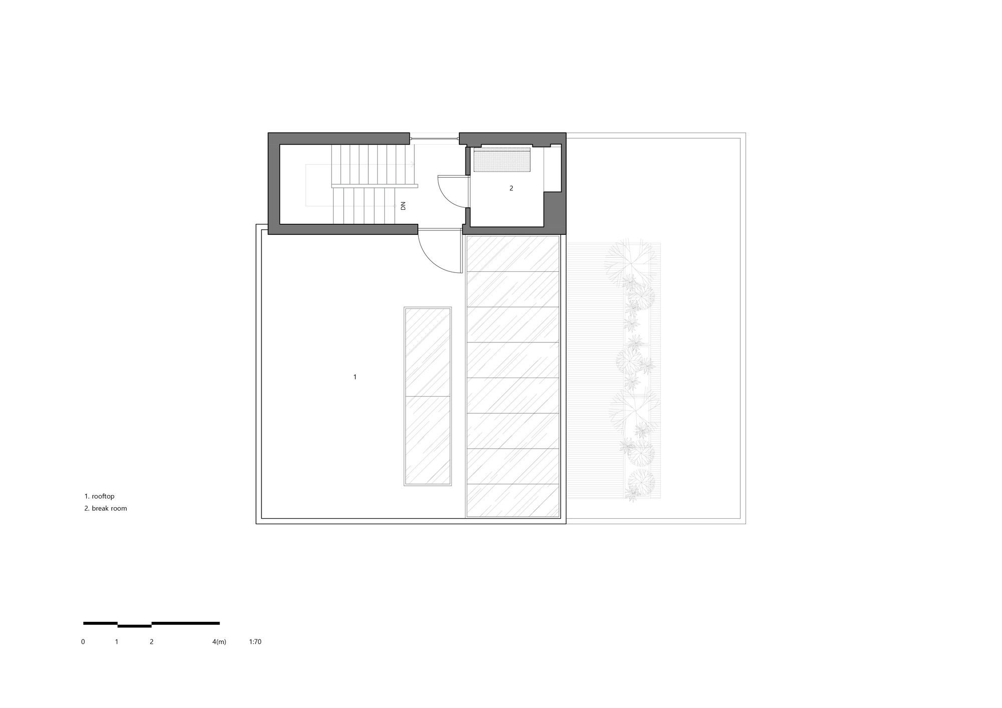
建築圖










作品資訊
作品名稱:Coor Seongsu Flagship Store
作品位置:韓國首爾 Seoul, South Korea
作品類型:舊建築改造、舊建築再利用、商業空間、室內設計、南韓建築
設計單位:ATELIER KHJ
總樓地板面積:521 平方米
竣工:2023年
攝影:Sun Kim(ATELIER KHJ)
主持建築師:Hyunjong Kim
專案團隊:Chaewon Kang, Jihyeong Lee