躍然於安地斯山脈稜線的教育新星
哥倫比亞(Colombia)中西部咖啡軸心帶的佩雷拉(Pereira),因安地斯山脈與深邃峽谷交錯,形塑出峰巒疊嶂的特殊都市紋理。人口急遽攀升的南側邊緣地帶,亟需嶄新公共設施注入活水。哥倫比亞建築師事務所 Campuzano Arquitectos 選址於高聳山脊,南面俯瞰壯闊峽谷,北側緊密銜接既有老舊社區。受限於極端封閉的幾何形狀腹地,促使主量體必須順應陡峭地形輪廓,猶如巍峨巨艦穩穩停泊於錯落聚落之中,順勢界定出主幹道與校園之間的清晰邊界,替新興城區立下視覺座標,更帶出拉丁美洲城鄉發展的龐大動能。






順應崎嶇地形的立體化聚落空間
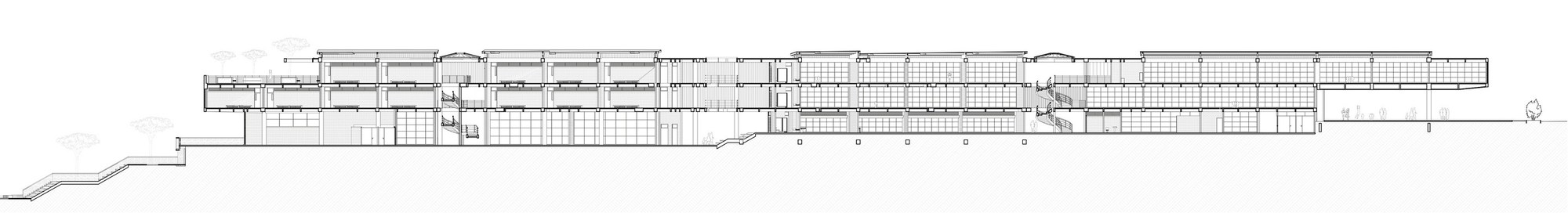
受限於零碎腹地,3層樓高的主體構造橫向貫穿東西兩端。教室精準座落於南北座向,學子能遠眺市中心繁華天際線,亦可近觀都會邊界的自然起伏。巨大主量體宛如堅實盾牌,溫柔守護內部免受外界喧囂干擾。受保護的腹地內,散落數處獨立區塊,涵蓋大禮堂、運動場、主庭院及環繞專屬天井的附設幼兒園。各樓層仰賴戶外坡道與橋樑串接至禮堂屋頂,同時化作開闊的首要集會廣場。立體化的動線交織出充滿活力的校園網絡,讓人在層層遞進間,輕易看出整體空間配置的豐富層次感。







揉合傳統竹工藝與現代混凝土的材質交響
建材選擇精準反映深厚的地域文化底蘊。哥倫比亞盛產被譽為植物鋼鐵的瓜多竹(Guadua),建築團隊將當地傳統建築常用的結構元素,轉化為薩馬利亞教育機構(Educational Institute La Samaria)立面的遮陽隔柵。整齊排列的竹材有效抵禦烈日高溫,其溫潤色澤與自然震動頻率,與工業化的紅磚及冰冷清水混凝土產生強烈視覺對比。如同建築大師路易·康(Louis Kahn)曾言:「磚塊總想成為某種偉大之物」,天然材質與人造構造的跨時代對話,強烈突顯出熱帶建築特有的風土韻味。







駕馭熱帶微風的零耗能綠色智慧
面對溫和卻多變的赤道高山氣候,建築師事務所全面導入被動式節能設計。 捨棄耗能的人工空調系統,全面仰賴自然通風來調節各區域的熱舒適度。新鮮氣流自竹製百葉立面長驅直入,配合屋頂特殊構造形成高效的交叉對流,迅速帶走室內悶熱。依循天地運行法則的綠建築策略,不單單達成極為可觀的能源節約效益,更向年輕世代傳遞尊重自然環境的嚴肅課題。採光與氣流的絕佳配合,讓學童能在最天然的環境中專注學習,強烈呼應當代追求淨零碳排的國際趨勢。









弭平階級藩籬的開放式公民客廳
教育設施不應是封閉的象牙塔,而需作為翻轉拉丁美洲社會階級的關鍵樞紐。校舍1樓配置圖書館、多功能禮堂、網路教室、實驗室與美術室等豐沛公共資源,每逢週末便敞開大門,熱情迎接周邊居民入內使用。將校園邊角轉化為有頂棚的市民廣場,鼓勵校方與鄰里展開密切交流。薩馬利亞教育機構打破傳統校園高牆,化身為服務全體大眾的多元公共設施。透過共享知識與空間資源,實質協助弱勢群體建構更加平權的社會結構,充分彰顯出公共建築推動社會實踐的強大力量。

































建築圖

















作品資訊
作品名稱:Educational Institute La Samaria
作品位置:哥倫比亞 Pereira, Colombia
作品類型:教育設施、校園建築、哥倫比亞、哥倫比亞建築、哥倫比亞建築師
設計單位:Campuzano Arquitectos
竣工:2012年
攝影:Gabriel Campuzano
建材商:Alfa, Cemex, Concisa, Formesan
專案團隊:Juliana Zuluaga, Julio Angulo, Oscar Ruiz, Diana Galvis, Alejandro Rodriguez
結構設計:Devaldenebro Ingenieros
永續發展顧問:Jorge Ramirez
設計團隊:Gabriel Campuzano Otero, Carlos Campuzano Otero, Carlos Campuzano Castello