承先啟後的校園擘劃
歐洲大學(Universidad Europea)啟動一項意義深遠的計畫,旨在西班牙瓦倫西亞建立新的城區校園。選址的考量超越了單純的地理擴張,而是尋求一處能精準反映機構價值觀、原則與目標的場域。這所高等學府的願景清晰:致力培養獻身未來的專業人士,同時堅定守護並傳承前人積累的寶貴遺產與知識。此舉顯現高等教育機構在都市發展中,日益重視適應性再利用(Adaptive Reuse)策略,將歷史底蘊轉化為品牌資產。



歷史交匯點的選址智慧
雀屏中選的地點,是前聖胡安·包蒂斯塔療養院(San Juan Bautista Asylum),一座建於1873年、具有新古典主義風格的建築。其豐厚的歷史與建築遺產,提供了巨大的修復潛力。院區地理位置極具戰略性,座落於瓦倫西亞市區,正對瓦倫西亞現代藝術學院(IVAM),緊鄰已轉型為巨型城市公園的前圖里亞河床(Turia Riverbed)。如此得天獨厚的條件,使之自然融入都市紋理,成為連結舊城區與當代生活的關鍵樞紐,宛如歷史與現代的交會。



轉化為21世紀的學術熔爐
建築計畫的核心任務,是將這座昔日的收容所,徹底轉型為一座面向21世紀的教育中心。這項工程不單是修復歷史空間,更在於創造一個匯聚、創新與學術成長的嶄新環境。校園規劃容納近兩千名學生,其中許多是國際學子,目標是在城市心臟地帶,打造一個促進學術創新的熔爐。不僅活化古蹟,更為瓦倫西亞的舊城區注入了強勁的知識經濟動能,堪稱老區再造的典範。



向歷史致敬的修復倫理
尊重既有建築,是貫穿全案的核心準則。聖胡安·包蒂斯塔療養院的修復工作,始終將遺產保護置於首位。團隊投入大量心力,恢復了諸多珍貴的原始元素,例如色彩斑斕、工藝繁複的諾拉馬賽克(Nolla mosaics)、古老的石材地板、莊嚴的禮拜堂以及經典的迴廊結構。建築師在原始材料與新式建材間尋求微妙的平衡,巧妙導入當代解決方案,同時堅定地保持了建築物原有的精神與本質,避免了粗暴的拼貼。



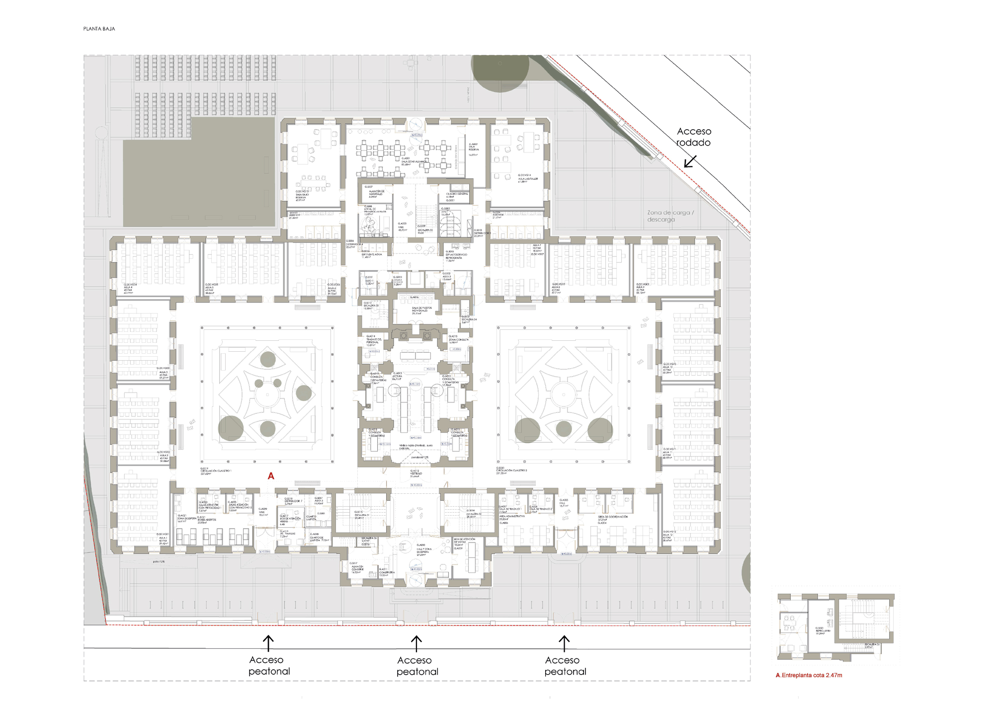
機能優先的空間佈局
建築設計精準回應學術機構的需求,將空間的多功能性、高效率與實用性列為優先考量。整體的平面配置促進了學術課程的清晰組織,展現了均衡的配置方案。建築物結構圍繞著兩個帶有迴廊的側翼展開,教室與辦公室便配置於此,確保了教學與行政的區隔。中央主體則容納了公共區域,被構思為師生交流與協作的觸媒空間。面對主立面的區域,則保留給行政管理單位使用,形成清晰的公私動線。



光影交織的學習場域
為了提升學習品質,教室採用了「雙重立面」(Dual Aspect)設計,使之得以同時連接外部花園與內部迴廊,從而獲取豐沛的自然光線與通風。不僅節能,更創造了舒適的教學環境。迴廊的功能超越了單純的通道,轉化為重要的循環區域與會面點,積極促進學生與教職員間的非正式互動。以流動的空間佈局,營造出一種充滿活力與參與感的學術氛圍,使歷史建築的公共性得以重生。



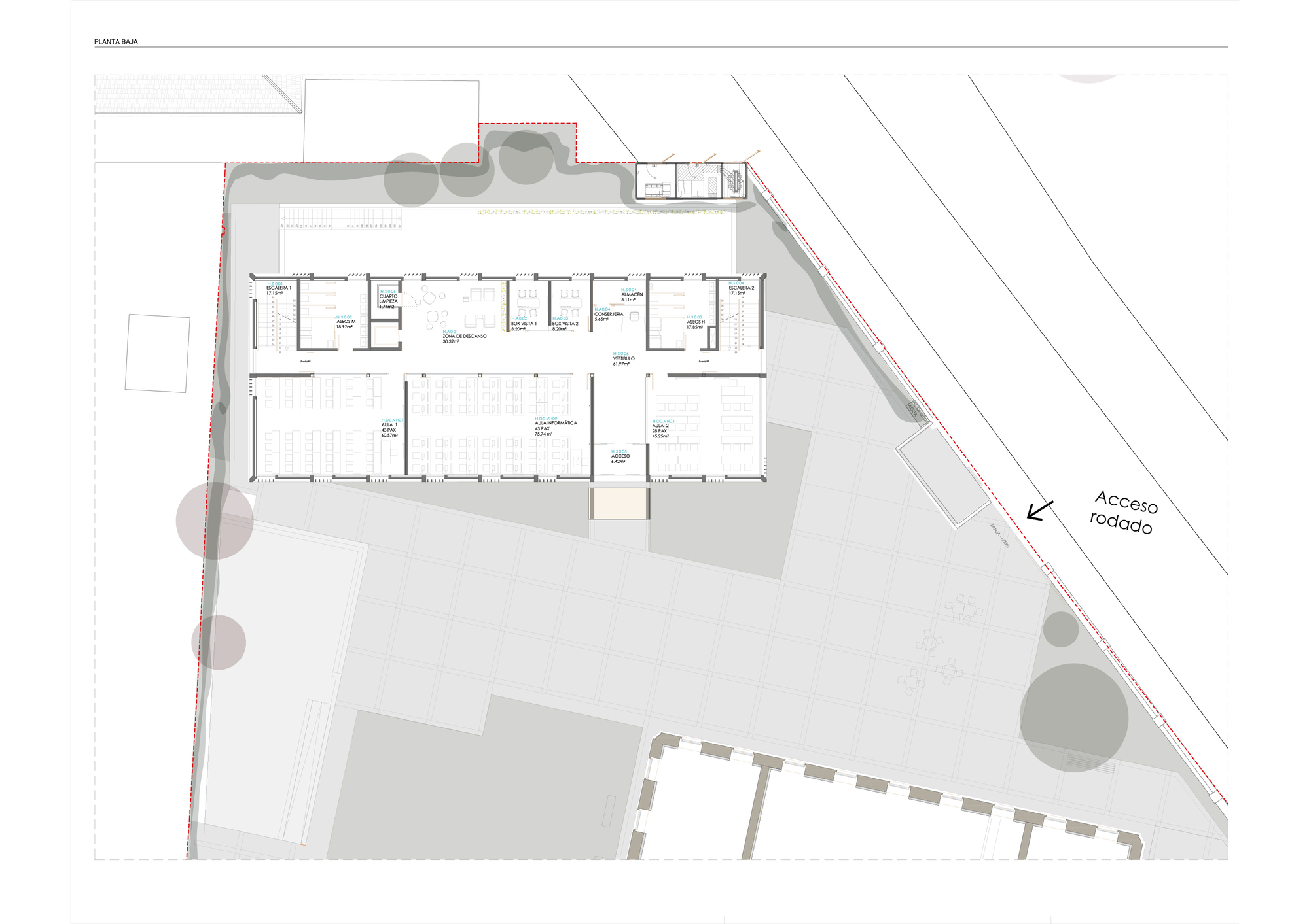
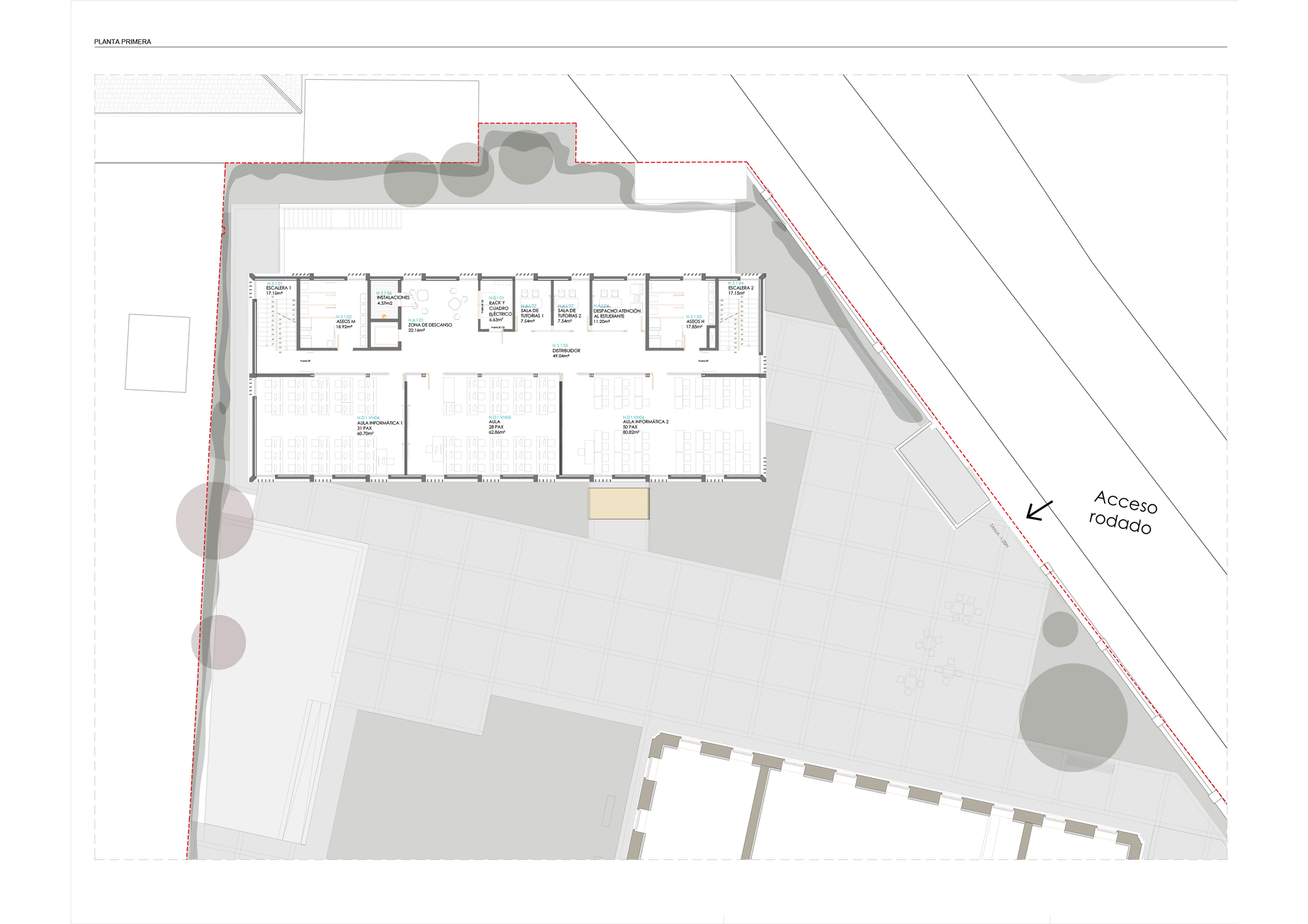
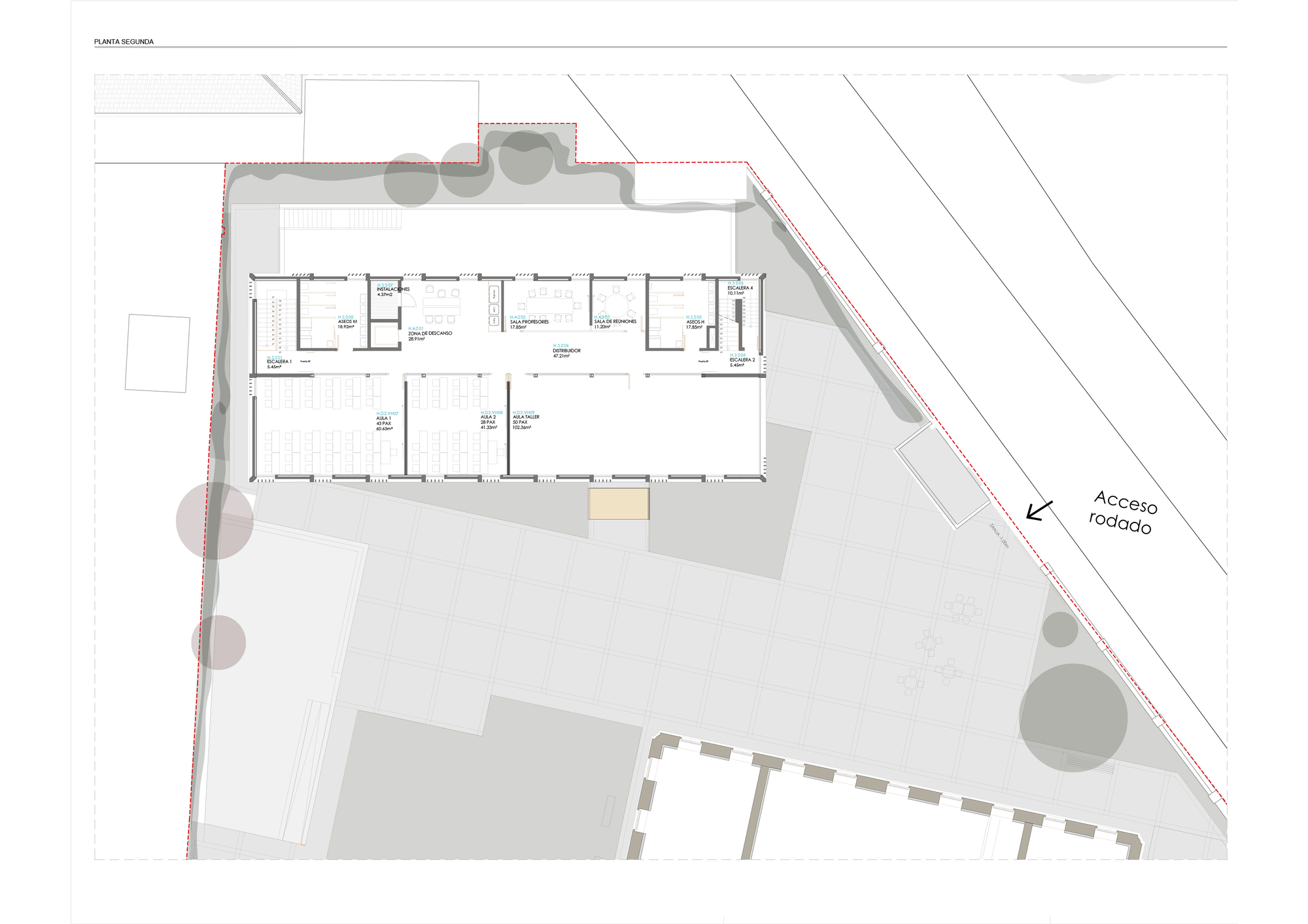
新舊共融的當代語彙
除了修復歷史建築本體,此計畫亦包含在基地西側,增建一座全新的附屬建築。這幢擴建的量體,刻意與既有的建築群保持著和諧的對話。無論在材料的選擇、色彩的調配,乃至於立面的構成節奏上,新建築均對舊建築表示了深刻的尊重。最終,它呈現為一個富有當代感的量體,卻又毫無違和地融入受保護的歷史建築群中,絲毫未損及古蹟的建築完整性。此案已成為瓦倫西亞市中心文化遺產再造的卓越基準。
建築圖



















作品資訊
作品名稱:European University | Turia Campus
作品位置:西班牙 Valencia, Spain
作品類型:西班牙建築師、西班牙建築、校園建築、教育設施、舊建築再利用、舊建築改造、木構
業主:Universidad Europea
設計單位:Ramón Esteve Estudio
增建面積:1753 m²
修復面積:5406 m²
竣工:2024年
攝影:Alfonso Calza
主持建築師:Ramón Esteve
專案團隊:Anna Boscá, Beatriz Gascón, Guillermo Sahuquillo, Beatriz Martín, Teresa Piá
工程顧問:Leing Ingeniería
景觀設計:GM Paisajistas
營造廠:Kalam, Vialterra
建築工程師:Emilio Pérez, Sergio Cremades
木構:Lemara