丹麥菲爾索湖的歷史變遷:從湖泊到農田,再回歸自然
位於丹麥西海岸亨訥 (Henne) 附近的菲爾索湖 (Filsø),曾是丹麥最大的湖泊之一。然而,從1852年到1951年間,為了發展農業,這片湖區,被排乾並轉為農地。直到2011年,Aage V. Jensen 自然基金會 (Aage V. Jensen’s Nature Foundation) 買下了這塊土地,決定將其恢復為原始的湖泊狀態,為當地居民和遊客,提供一個親近自然的場所。菲爾索湖的歷史變遷,見證了人類活動對自然環境的影響,也展現了人們對於生態保育的重視。



「景觀中的場所」計畫:重塑人與自然的連結
菲爾索湖遊客中心 (Filsø Ellipsen),是「Realdania 基金會」 (Realdania Foundation) 發起的「景觀中的場所」(Places in the Landscape) 計畫的一部分。這項計畫,是「地方至上」(The Place Counts) 活動的一部分。遊客中心的實現,是 Realdania、丹麥自然局 (The Danish Nature Agency) 和 Aage V. Jensen 自然基金會 (Aage V. Jensen’s Nature Foundation) 合作的成果,該基金會還資助了學校建築/教育設施。菲爾索湖遊客中心將成為該地區眾多自然路線的中心樞紐,同時也是遊客前往菲爾索湖的起點。




Schønherr的設計:與環境對話
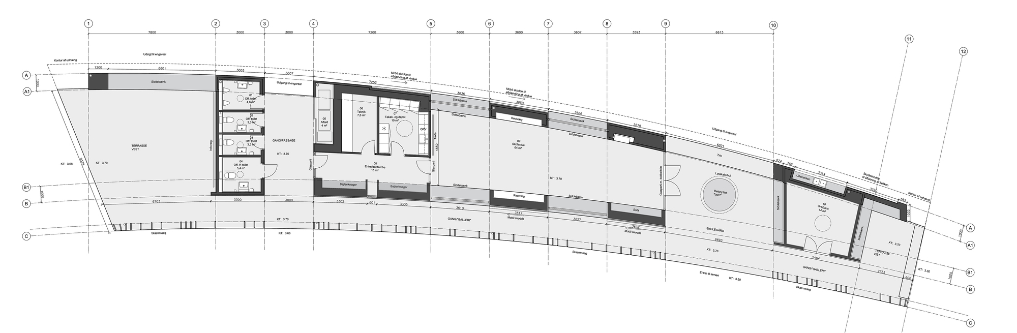
Schønherr 事務所負責了菲爾索湖遊客中心的整體規劃與設計。遊客中心包含一條蜿蜒的引道、教育設施 、一座景觀橋 以及遊客停車場。引道 引領著遊客,穿越壯麗且受到保護的景觀,抵達停車場和大型橢圓形橋面。這座橋,不僅連接了道路與建築,更將人們的視線,引向廣闊的湖面。



橢圓形橋面的設計:流動的空間體驗
橢圓形橋面是遊客中心 的一大亮點。從橋上,遊客可以近距離地體驗菲爾索湖 (Filsø) 遼闊的景觀。Schønherr 事務所透過這個設計,讓遊客在移動的過程中,與水面和周遭的自然環境,產生更親密的互動。橢圓形的形狀,強調了從抵達到離開,穿越該區域的連續運動。橋上設有座椅,供遊客休憩,欣賞湖光山色。



與自然呼應的量體與材質
作為橢圓形的延伸,並與湖泊形成對比的學校建築 ,遵循了遊客中心 的弧形結構,成為整體的一部分,也呼應了地景中的流動感。建築的垂直格柵 ,如同鏡子般,映照著周圍的森林景觀,讓建築物,彷彿隱身於自然之中。



教育設施的規劃:室內與戶外的學習空間
遊客抵達後,首先會看到一個有遮蔽的資訊區,並可在此眺望菲爾索湖的景色。建築物內部,設有洗手間、機房、廚房和教室。教室設有大面積的窗戶、壁爐,以及可供儲物和休息的壁龕。從教室可以直接通往戶外的教學區和設備儲藏區。校園有兩個出口,分別朝向北方和南方,朝北的出口,還設有一個戶外廚房 。






生態復育的成果:見證自然的生命力
自計畫啟動以來,菲爾索湖遊客中心獲得巨大的成功,第一年便吸引了超過10萬名遊客,對於這樣一個小型的市鎮來說,這是一個非常可觀的數字。同時,菲爾索湖的自然復育,也取得了同樣的成功,記錄到的鳥類有242種,魚類有14種,不同的水生植物有62種,與2012年之前的單一作物景觀相比,有了顯著的改善,可說是美不勝收。




作品資訊
作品名稱:Filsø Visitor’s Center|Filsø Ellipsen
作品位置:丹麥 6854, Henne, Denmark
作品類型:景觀設計、景觀建築、木構、文化設施、遊客中心、丹麥建築、丹麥建築師
設計單位:Schønherr
基地面積:4960 平方米
竣工:2018年
攝影:Carsten Ingemann, John Colin Seymour, Schønherr, Martin Schubert
製造商:iGuzzini, Annebergs Limtræ A/S, KG Beton, Krone Vinduer A/S
主要承包商:Otto Christensen A/S
專案負責人:Rasmus Stougaard
設計負責人:Rikke Juul Gram
專案經理:Rasmus Holm
工程公司:Fuldendt
業主顧問:Niras
修復顧問:Natur Rådgivningen v. Niels Riis
業主:Naturstyrelsen, Aage V. Jensens Natur Fond
貢獻者:Realdania Byg A/S