芬蘭赫爾辛基藝術大學(Uniarts,University of the Arts,Helsinki)的美術學院以嶄新姿態出現在校園中,為學生和教職員工提供了一處可以在其上創作的獨特教學空間,設計對既有結構進行了富有想像力的整合,並向索爾奈寧(Sörnäinen)這片位於赫爾辛基東北部繁榮區域歷史致敬,索爾奈寧是一個後工業化的區域,新興的城市生活正興盛地演繹其間。
促進和激發創意的建築空間
美術學院新教學大樓由芬蘭建築師事務所JKMM Architects設計,建築的獨創性為美術、燈光、音響設計以及表演藝術的學生提供了寬敞、有力、光線充足、定義清晰的空間。這樣開放而易於調整的空間,使它能夠用於創造和體驗多樣媒介、各種藝術形式和不同尺度的作品。建築的存在是為了促進和激發創意,而不是成為限制。



赫爾辛基藝術大學的設計直接回應著未來創新者的需求,為這些當代暢想家提供了寬敞空間和最新的設備設施。建築的原始表面以及富有「探險」體驗感的空間,新興藝術家們採取與建築對話及富有想像力的創造,最終可以把它變成自己的建築。

適應性再利用
赫爾辛基藝術大學的美術學院與戲劇學院均位於赫爾辛基市中心的東部海濱,它們都是對原有校園建築的改造計畫,這兩所學院藉由位於基地中心的一座原有現代主義筒倉彼此連接,在筒倉內部,原有混凝土結構是裸露毫無飾面遮蔽,使這個連接體充滿活力。


戲劇學院所在的建築之前是一個肥皂工廠,設計團隊對其進行部分改造給舞蹈和戲劇系學生們使用。JKMM 同時也將鄰近的電氣設施改造成為美術學院學生的宿舍樓,它能直接通往美術學院新建部分。




採取此一系列改造,赫爾辛基藝術大學擁有了獨特、獨立,且屬於新時代的新層次。美術學院被親切地命名為「Mylly」(芬蘭語中的 「磨坊」),讓人聯想到它之前的機能。建築在改造設計後所表現出的精簡且樸素的美,以及在磚立面上選擇的內凹窗戶,展現了對工業遺產的傳承。





「磨坊」之內
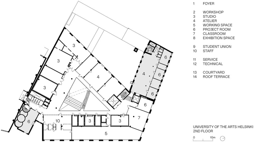
這座五層高大樓總樓地板面積約 1.3 萬平方公尺,擁有一個頂部採光的中庭。中庭裡有一個引人注目的鋼樓梯,成為不同樓層間斜向的空間聯繫,形成了「磨坊」中央動態而公共的內核,學生們在工作室和學習空間中來回移動。一層有一個可供公眾參觀的藝廊空間,屋頂上有一個大型的戶外平台,可用於製作和展示藝術作品,也可眺望城市景觀。









我們的整體設計理念是創造一處具有凝聚力,能被靈活使用,同時也是牢牢紮根於其城市環境的建築。對我們而言,最重要的是新空間不以任何方式限制其牆內的創造,能激發學生更大膽、更富有想像力地突破他們在建築內可以實現的邊界。事實上只有當這些藝術專業的學生們佔領了這些空間,並使其成為他們自己的空間時,建築才算完整_JKMM 聯合創辦人 Asmo Jaaksi







為了使該建築面向未來的需求,以便為幾代人服務,設計團隊仔細考慮了其承重結構及其使用壽命。精簡的承重外牆和理性的板柱框架,能適應在未來建築用途的變化。清水混凝土、鋼材表面以及整體材料的選擇,也是為了能長期使用和便於維護。





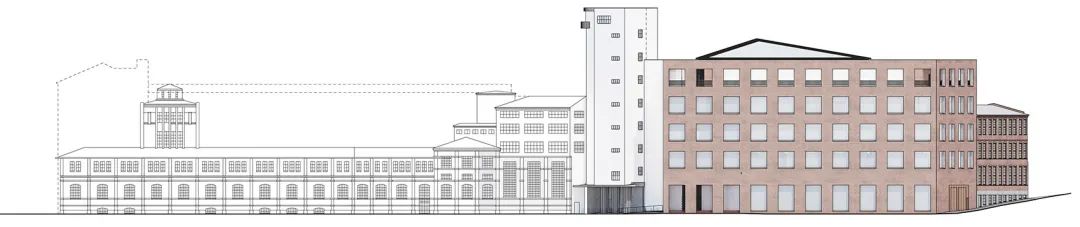
建築圖











作品資訊
作品名稱:赫爾辛基藝術大學University of the Arts Helsinki
作品位置:芬蘭赫爾辛基
作品類型:校園建築
事務所:JKMM Architects
竣工:2021
總樓地板面積:13000.0 平方公尺
新建面積:11000 平方公尺
保留面積:2000 平方公尺
主持建築師:Asmo Jaaksi, architect SAFA
專案經理:Teemu Toivio, architect SAFA
專案建築師:Jussi Vepsäläinen, Katja Savolainen, architects SAFA
設計團隊:Reetta Aarnio, Jussi Eskelinen, Matus Pajor, architects SAFA
攝影師:Tuomas Uusheimo, Marc Goodwin, Hannu Rytky, Mika Huisman, Asmo Jaaksi, Niclas Mäkelä
