會呼吸的建築革新
標誌性的Maison New Farm(新農莊之家)堪稱「活的、會呼吸建築」之縮影。此建案的誕生,來自於一項企圖為澳洲布里斯本(Brisbane)近郊「New Farm」區域帶來全新變革的宏願。設計概要明確鎖定軟性曲線、板模清水混凝土以及對景觀綠化的極致重視。
由澳洲開發商 Graya 與 Joe Adsett Architects 聯手,核心焦點是創造一座有生命的建築藝術品,為 New Farm 的街道景觀挹注顯著的美學價值。Maison New Farm 的定位,不僅是為住戶提供無與倫比的內部奢華,更要求建築物本身必須以優雅的姿態「回饋」所在的社區環境。





柔化天際的弧形花台
Maison New Farm 的設計願景,從攝人心魄的影像中不言而喻。所座落的區域,周遭不乏線條生硬的粗獷主義建築,新建築的出現,猶如一股清流。建築師採用了訂製的弧形花台,這種工法運用在住宅案應屬開創先河。花台以柔和的姿態,瞬間軟化了周邊環境的剛硬線條。細看之下,花台表面更帶有精緻的木紋板模質感,進一步提升了立面的豐富層次。相較於同區其他建案,開發商在Maison 蒼翠繁茂的景觀設計上,投入了非比尋常的时间與心血。




永續景觀的長期佈局
景觀設計既是此開發案的關鍵特徵,亦是強大的銷售賣點。開發商 Graya 深知維持綠建築的挑戰性與高昂成本,若執行不當恐成負擔。為確保景觀的長期可行性,團隊精心挑選了一系列耐旱植物(drought-tolerant plants),以應對澳洲的氣候。同時,導入先進的灰水網狀灌溉系統(grey-water reticulation system),將建築物的中水道回收利用,大幅降低了用水量。此舉不僅是永續經營的關鍵,更是在不犧牲內外美學設計的前提下,找到了兼顧長期效益與環境責任的最佳平衡點。



新舊並置的設計堅持
此案最引人注目的,是它在新舊建築間創造的強烈並置效果,生動地見證了布里斯本這座城市在建築設計上的長足進步。這種對卓越設計的堅持,貫穿了整棟建築。在Maison 內部,每一戶被譽為「空中別墅」的豪華住宅中,皆配備了符合頂級開發案水準、精心策劃的高端配件與裝置。從外觀的震撼到內部的精緻,Maison 呈現了表裡如一的頂級工藝水準,重新定義了布里斯本的豪宅市場標準。




昇華街景的頂樓視野
此外,住戶們還能獨享一個功能齊全的頂樓社區空間與泳池,在此可將城市天際線和布里斯本河的壯麗景色盡收眼底。Maison 的實踐證明了一項重要論點:集合住宅無須墨守成規。開發案的預算,絕非只能砸在內部的裝潢。有時候,將時間與心力投注於建築立面的營造,使其昇華為提升整個街區景觀的藝術品,這種回報遠超乎想像。這是開發商對於都市責任的具體承諾。



鎖定高端市場的開發哲學
開發商 Graya 的理念清晰而堅定:他們對於那些千篇一律的開發案毫無興趣,更拒絕採用純粹為了塞進最多戶數而犧牲品質的策略。設計團隊的目標是交付具指標性的建築作品,以美學高度對城市做出貢獻。Graya 洞察到,目前的高端集合住宅市場仍存在缺口,特別是針對自住型業主的設計導向產品。他們期盼在未來幾年,能執行更多此類型的標竿建案,持續引領市場風向。





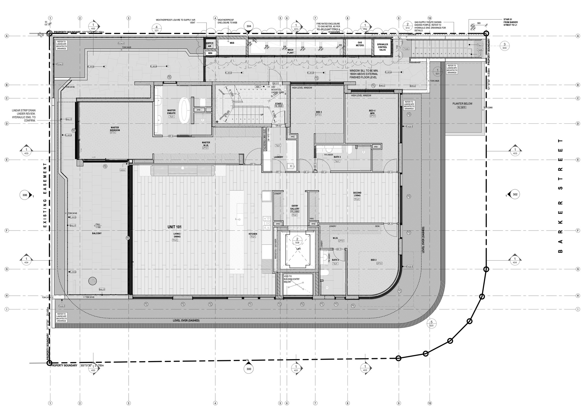
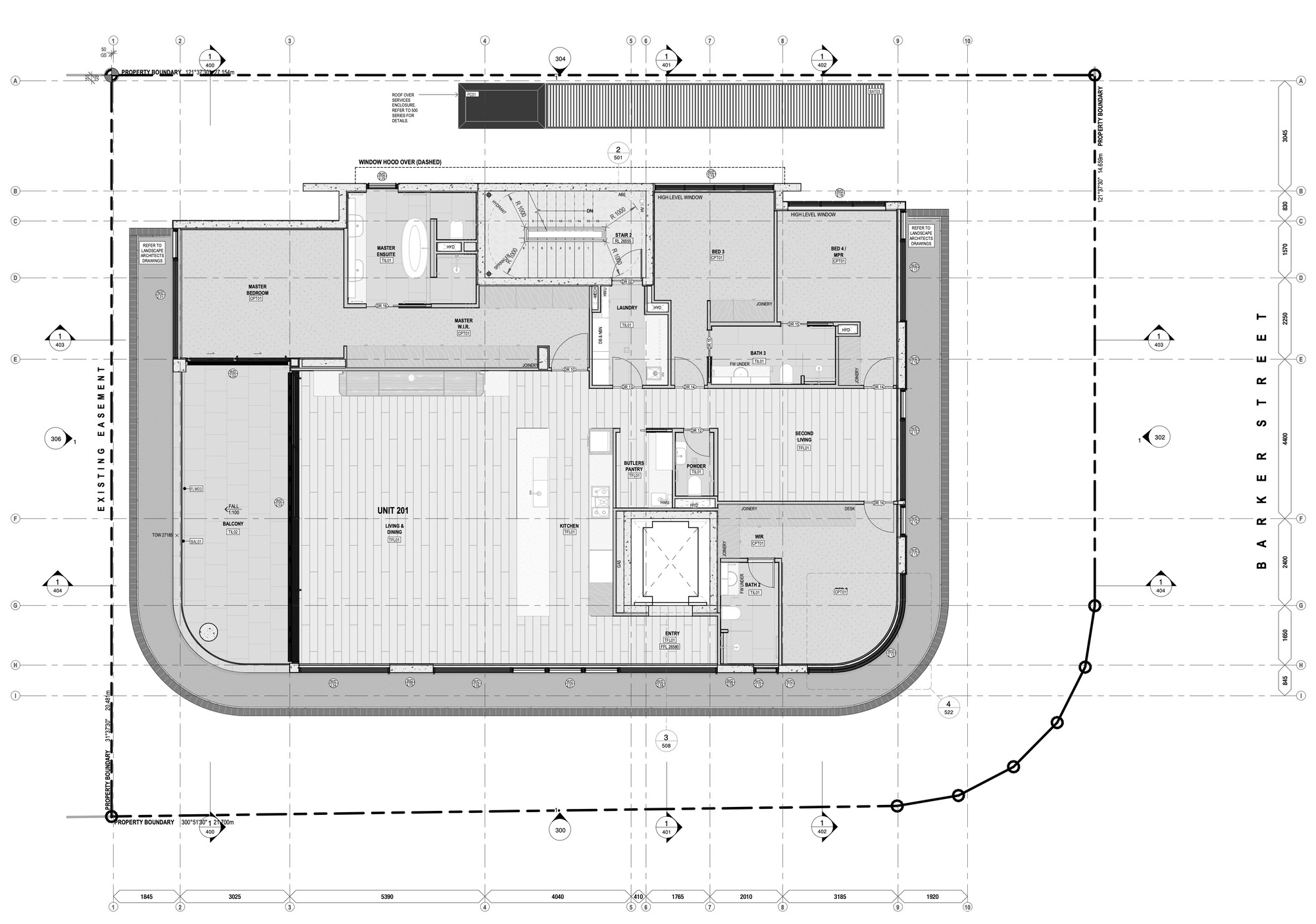
建築圖





作品資訊
作品名稱:Maison New Farm Multi-residential Complex
作品位置:澳洲 New Farm, Australia
作品類型:公寓、住宅、集合住宅、澳洲建築、澳洲建築師
業主:Frank Developments
設計單位:Graya, Joe Adsett Architects
總樓地板面積:2100 平方米
竣工:2021年
攝影:David Chatfield
專案經理:Andrew Gray
工程顧問:Westerra Partners
景觀設計:Form Landscape Architects
工料測量:GRC
家具:Space Furniture
景觀施工:Andrew Spencer Landscaping
泳池:Plungie Pools
照明設計:ACOT Electrical
電梯:DAN Q
都市計畫:Property Projects Australia
抹灰工程:FineCoat
現場經理:Rob Gray