對印度女建築師Samira Rathod而言,每件設計都是在回應某些實際或形而上學的元素,這些元素有的有形,有的卻是無形。
在當今社會發展中,永續發展是必要的概念,可以用許多種形式呈現出,本作品就是在回應前述理念並且以實體呈現,Samira Rathod親切地稱其為「混凝土實驗住宅(House of Concrete Experiments)」。



業主的觀點影響建築成敗
在選擇用新興材料建造自己的家時,大多數人都會十分猶豫,然而本作品業主卻不同,業主畢業自麻省理工學院(MIT),擁有善於思考、積極進取的頭腦,對創新持積極的態度,並且深諳失敗只是通往成功的諸多過程之一,業主明白環境與對環境的關注才是設計的首要理念,任何新事物的成本都不是以其直接結果來量化的,而是需要以長遠的眼光看待它在未來幾年中的變化,這就是建築的藝術,而建築則是藝術的最高形式。


建築師Samira Rathod有幸與這位業主合作了兩次,本作品是該業主委託設計的第二棟住宅,住宅位於印度孟買附近海濱的Alibaug小鎮,Zirad的Deotalai山麓,環繞在景觀優美的芒果園中。

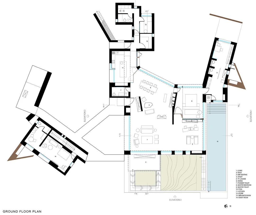
住宅設計概念與平面規劃
設計之初,建築師就決定將住宅量體規劃環繞著樹木周圍,而不移植任何樹木,這種理念造就了蜿蜒且分散的平面形式。

基地的既有大土坑位於住宅的邊緣,後來改造為下沉式庭院,此外,建築師還在下沉庭院中種植了樹木,目的在於將綠色景觀引入室內。
以開放式的工作室作為構想,整個住宅中僅設有一間為業主夫婦準備的臥室。兩間客房上下堆疊,位於一棟獨立的建築中,作為主屋的附屬建築,由開放的庭院分隔開來。





牆體與建築結構
牆體與結構並沒有按照規整的柱網配置,而是呈現出雕塑般的姿態。整體來看,住宅內部是一個大型的無柱空間,平整流暢的清水混凝土天花板貫穿整個空間,空間中沒有設置任何可能打斷空間節奏的內牆。
三個巨大的傾斜懸臂式雨庇打破了結構穩定性的概念,雨庇結構經過精心的設計,不僅能為周圍的戶外活動提供陰涼,同時也豐富了建築的平面形式。


印度綠建築
住宅的牆體厚度從45公分到100公分不等,建築師藉著充足的厚牆,在牆體內部設置儲藏空間,整棟建築採取防水凹窗以及牆體內的熱通道進行被動式降溫。
主動式降溫系統的設計靈感來自於古老的建築冷卻方法,該系統利用了牆體的厚度,採取牆體中的凹槽將冷空氣輸送到房間中,並在這個開放的大量體中循環,同時也發揮了冷卻混凝土牆體的作用。







由書房看游泳池

材料採用混凝土,回收材料與實驗
設計忠於一種材料,即現場澆置混凝土。主屋清水混凝土厚牆混合了回收自基地上的廢料碎片來澆灌,目的在於節省建造材料,同時在牆面打磨完成後渲染出一定程度的粗糙質感。這些碎片包括碎石以及破碎的磚塊,有時,大塊的廢石嵌在牆上,呈現出一種近乎遺蹟的美感。

每一面牆的觸感都是特別的,豐富紋理由不同混凝土實驗而成,這些實驗包括:採用碎屑澆置混凝土、多孔疏水混凝土,以及在混凝土成型後用顏料進行飾面處理。

含有客房的獨立建築量體採用了粉紅色混凝土澆置,在混凝土中加入磚粉,最終形成紅潤色彩。
地板用回收廢石製作而成,澆置在混凝土中的廢石經過打磨形成磨石子地板,黑色、白色、粉色的石頭以及瓷磚碎片在地面不同區域以不同的形式呈現出來,將地板變身為一件大型藝術品。
在整件作品中,光線被視作一種非常重要的建築材料,豐富的天窗造就了有趣的光影遊戲。



此私人住宅在規劃、建造、結構設計、材料使用、光影運用,以及機能方面,都可謂是一場真正的「實驗」。無論是建築還是室內細部上都融入了建築師的巧思,這些巧思使原本壓倒性的空間變得非常親密、宜居。混凝土實驗住宅不是一棟為了拍照打開而設計的房子,這裡的空間需要人們親自去觸摸、感受、體驗。



建築圖




作品資訊
作品名稱:House of Concrete Experiments
作品位置:印度Alibaug
作品類型:住宅、私人住宅
事務所:Samira Rathod Design Atelier
竣工:2022年
總樓地板面積:5000 sq.ft
主持建築師:Samira Rathod
專案經理:Jay Shah
攝影:Niveditaa Gupta
Samira Rathod介紹
Samira Rathod於1986年畢業於孟買的Sir. J.J.建築學院(Sir. J. J. College of Architecture),不久後於1988年在伊利諾伊大學厄巴納-香檳分校完(University of Illinois, Urbana – Champaign)取得建築碩士學位。在美國期間,她在加州的Don Wald and Associates公司下參與了幾個計畫,包括Clint Eastwood的私人住宅。回到印度後,她與Ratan Batliboi一起工作了幾年,然後於1995年成立了自己的事務所RLC。
1996年,Samira Rathod因為舉辦個人家具展「Liasons de Formes」而受到人們關注,此後在2000年,她成立了自己的個人工作室Samira Rathod Design Atelier,該工作室多年來一直在發展。在2003年之前,她一直在Transforme Designs旗下從事家具設計。
Samira Rathod對寫作、理論化和討論建築的熱情使她成為《SPADE》的編輯、以及《SPADE INDIA RESEARCH CELL》的創始人和主管,該組織坦率地審議、調查和研究印度設計的狀況和影響。Samira Rathod相信要在今天的年輕人中培養人才和強烈的設計感。Samira Rathod是孟買Kamla Raheja建築學院(Kamla Raheja Institue of Architecture)的兼任講師,並經常受邀成為全國各地和國外的評審委員。
