令和6年度(2024年、民國113年)日本二級建築士設計製圖考試題目是「鋼筋混凝土結構 觀光民宿」,要求考生繪製平面圖、立面圖、剖面圖、部分大樣圖和面積表等,並遵守相關法規和設計規範。考試閱卷重點包括民宿功能設計、防災功能、法規與外部設計以及圖面整合性。
請自行下載:令和6年度 2級建築士 設計製圖考試(建築設計考試) 參考標準答案
日本「株式会社 総合資格」(總部位於東京都新宿區,代表取締役:岸和子),對於2024年12月5日(星期四)由公益財團法人建築技術教育普及中心公佈的「令和6年度 2級建築士 設計製圖考試(建築設計考試)」結果進行了詳細分析,並分享以下報告內容。
令和6年度 2級建築士 設計製圖考試結果
考生總數:9,947人(去年9,988人)
合格人數:4,680人(去年4,985人)
合格率:47.0%(去年49.9%)
評分結果分為以下四個等級:
I級(47.0%): 符合「知識及技能」標準,為合格者。
II級(4.7%): 「知識及技能」不足。
III級(37.1%): 「知識及技能」顯著不足。
IV級(11.1%): 不符合設計條件或要求圖書的重大條件。
「知識及技能」定義:指具備2級建築士應有的基本且綜合的建築設計知識與技能。
總評
考試結果概況
2024年12月5日公佈的結果顯示,令和6年度的合格率從去年49.9%下降至47.0%。考生與合格人數分別減少了41人和305人。合格者的「I級」評分比例有所降低,而「IV級」失格的主要原因包括:
圖面未完成或存在失格問題。
設計條件違規,如房間配置、形狀不符合要求、防災功能缺失等。
評估重點
1. 關於民宿功能的設計要求
- 櫃臺、觀光服務與管理室的配置是否合理?
- 咖啡空間與室外廣場的銜接是否合適?
- 客房與交流空間的配置是否符合需求?
2. 防災功能的要求
- 室外廣場與南側公園能否一體化利用?
- 蓄電池搬運是否考慮充分?
3. 法規與外部設計的評估
- 如何處理鄰地「防火有效公園」的延燒部分?
- 符合避難路線與空地條件的設計。
4. 圖面整合性
- 架構形式與陽台設計是否統一?
合格者分析
- 學歷背景:「學歷資格」考生比例創新高,達87.4%。
- 年齡分佈:「24歲以下」考生占比58.5%。
- 職業類型:「學生與研究生」占比21.4%。
自令和2年建築士法修訂後,受試資格放寬,高中和專科學校畢業生也可報考,年輕合格者比例大幅提高。
未來建議:令和7年度應試準備
1. 基本設計能力的鞏固: 專注於木造住宅課題,掌握設計規範與條件應用。
2. 時間管理與圖面完成度: 強化繪圖速度與準確性。
3. 培養自檢能力: 建立條件審核與修正的習慣。
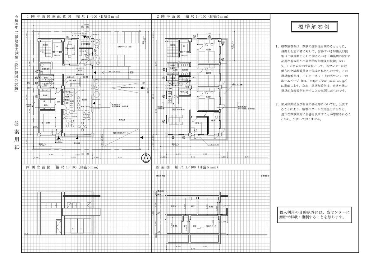
令和6年二級建築士試驗「設計製圖的試驗」課題概要
題目:観光客向けのゲストハウス (簡易宿所) (鉄筋コンクリート造)| 給觀光客住民宿(簡易宿所)(鋼筋混凝土結構)
請自行下載:令和6年度 2級建築士 設計製圖考試(建築設計考試) 參考標準答案
要求書圖
1. 一樓層平面圖兼配置圖[比例尺1/100]
2. 各層平面圖[比例尺1/100]
3. 立面圖[比例尺1/100]
4. 剖面圖[比例尺1/100]
5. 部分大樣圖(剖面)[比例尺1/20]
6. 面積表
7. 計劃要點等
附註:
1. 各層平面圖的內容將根據試題中提示的設計條件進行指定。
2. 答案用紙上的方格紙設置如下:一個刻度為5毫米(部分大樣圖中的方格為10毫米)。
注意事項
在進行「設計製圖考試」之前,請務必仔細閱讀試驗問題的內容。
如果解答未能充分滿足建築基準法等相關法令、要求圖書、或主要要求室的設計條件與規劃,將被視為「設計條件及要求圖書的重大不適合」。
以上要求及注意事項旨在確保考生能根據規範作出準確且高完成度的解答,並順利通過考試。


請自行下載:令和6年度 2級建築士 設計製圖考試(建築設計考試) 參考標準答案
令和6年度 2級建築士 設計製圖考試(建築設計考試) 參考標準答案


日本關於(建築師)建築士的定義
根據日本《建築士法》第2條,建築士指於一年一度的建築士考試取得合格成績,並在國土交通大臣或都道府縣知事處登記,從事建築設計、施工監管等之人士。日本的建築士主要分為一級建築士、二級建築士及木造建築士,簡要如下:
| (1) | 一級建築士:在國土交通大臣處登記,可從事所有類型的建築物的設計、施工監管、鑑定、調查等之職業,包括構造設計一級建築士及設備設計一級建築士。 |
| (2) | 二級建築士:在都道府縣知事處登記,可從事總面積300㎡以下的建築物的設計、施工監管、鑑定、調查等之職業; |
| (3) | 木造建築士:在都道府縣知事處登記,可從事總面積300㎡以下、2層或以下的木造建築物的設計、施工監管、鑑定、調查等之職業; |
建築士法(昭和二十五年法律第二百二号)出處
第二条 この法律で「建築士」とは、一級建築士、二級建築士及び木造建築士をいう。
2この法律で「一級建築士」とは、国土交通大臣の免許を受け、一級建築士の名称を用いて、建築物に関し、設計、工事監理その他の業務を行う者をいう。
3この法律で「二級建築士」とは、都道府県知事の免許を受け、二級建築士の名称を用いて、建築物に関し、設計、工事監理その他の業務を行う者をいう。
4この法律で「木造建築士」とは、都道府県知事の免許を受け、木造建築士の名称を用いて、木造の建築物に関し、設計、工事監理その他の業務を行う者をいう。
5この法律で「建築設備士」とは、建築設備に関する知識及び技能につき国土交通大臣が定める資格を有する者をいう。
6この法律で「設計図書」とは建築物の建築工事の実施のために必要な図面(現寸図その他これに類するものを除く。)及び仕様書を、「設計」とはその者の責任において設計図書を作成することをいう。
7この法律で「構造設計」とは基礎伏図、構造計算書その他の建築物の構造に関する設計図書で国土交通省令で定めるもの(以下「構造設計図書」という。)の設計を、「設備設計」とは建築設備(建築基準法(昭和二十五年法律第二百一号)第二条第三号に規定する建築設備をいう。以下同じ。)の各階平面図及び構造詳細図その他の建築設備に関する設計図書で国土交通省令で定めるもの(以下「設備設計図書」という。)の設計をいう。
8この法律で「工事監理」とは、その者の責任において、工事を設計図書と照合し、それが設計図書のとおりに実施されているかいないかを確認することをいう。
9この法律で「大規模の修繕」又は「大規模の模様替」とは、それぞれ建築基準法第二条第十四号又は第十五号に規定するものをいう。
10この法律で「延べ面積」、「高さ」、「軒の高さ」又は「階数」とは、それぞれ建築基準法第九十二条の規定により定められた算定方法によるものをいう。
建築士事務所的定義
根據日本《建築士法》第23條,建築士或僱傭建築士之人士,根據他人的要求提供以下服務,並取得服務報酬的,將根據可建築設計、施工監管的建築物的規模、構造及用途,分為「一級建築士事務所」、「二級建築士事務所」或「木造建築士事務所」:
| (1) | 建築設計; |
| (2) | 建築物的施工監管; |
| (3) | 與建築物施工合同相關的事務; |
| (4) | 建築物施工的監督指導; |
| (5) | 與建築物相關的調查、鑑定; |
| (6) | 建築物相關法律所涉及之手續的代理代辦。 |
(木造建築師或僅僱用木造建築師的單位,業務範圍限於木造建築物的相關業務,下同,以下統稱為「設計等業務」)必須設立一級建築師事務所、二級建築師事務所或木造建築師事務所,並取得都道府縣知事的註冊許可。
