斜坡盡頭,一塊等待了十年的土地
B日本千葉縣木更津市(Kisarazu)的郊外,有一片依循雛壇地形層層分割開發的獨棟住宅團地。在排列整齊的住宅盡頭,一塊面積達1,727.78平方公尺、背靠山坡的土地默默存在。
業主G先生在10多年前取得此地,此後每逢週末必從東京驅車南下,親手翻整菜圃、修剪庭木,在斜坡上燃起篝火,就著野餐毯坐到夕陽西斜,帶著泥土的氣息與柴煙的餘溫返回城市。
對許多都市人而言,在城市之外擁有一片可以生火取暖、與土地共處的角落,早已成為遙不可及的想像;而業主卻以一週又一週不間斷的行動,把這份想像活成了日常習慣。









以建築史為媒介的對話式設計歷程
事務所 kurosawa kawara-ten 的設計師髙島和廣(Kazuhiro Takashima)、池田京史(Kyoshi Ikeda)與西山依里(Yori Nishiyama)接手此案後,沒有急著端出方案,而是先為業主安排了一系列涵蓋建築史與美學風格的專題講座。從包浩斯(Bauhaus)的機能主義到日本民家的材料智慧,從現代主義的空間流動到戰後郊外住宅的發展脈絡,設計師選擇用知識搭橋,讓業主在廣闊的建築座標中找到自己真正嚮往的形貌。
在反覆對話中,兩種看似矛盾的欲求逐漸清晰浮現:業主渴望在寬敞通透的起居空間中飽覽風景,卻又不願讓建築的大量體壓縮掉一手栽培多年的農圃與花草。設計的課題,就在這組張力之間正式展開。






懸挑二樓,讓建築輕盈飄浮於田園之上
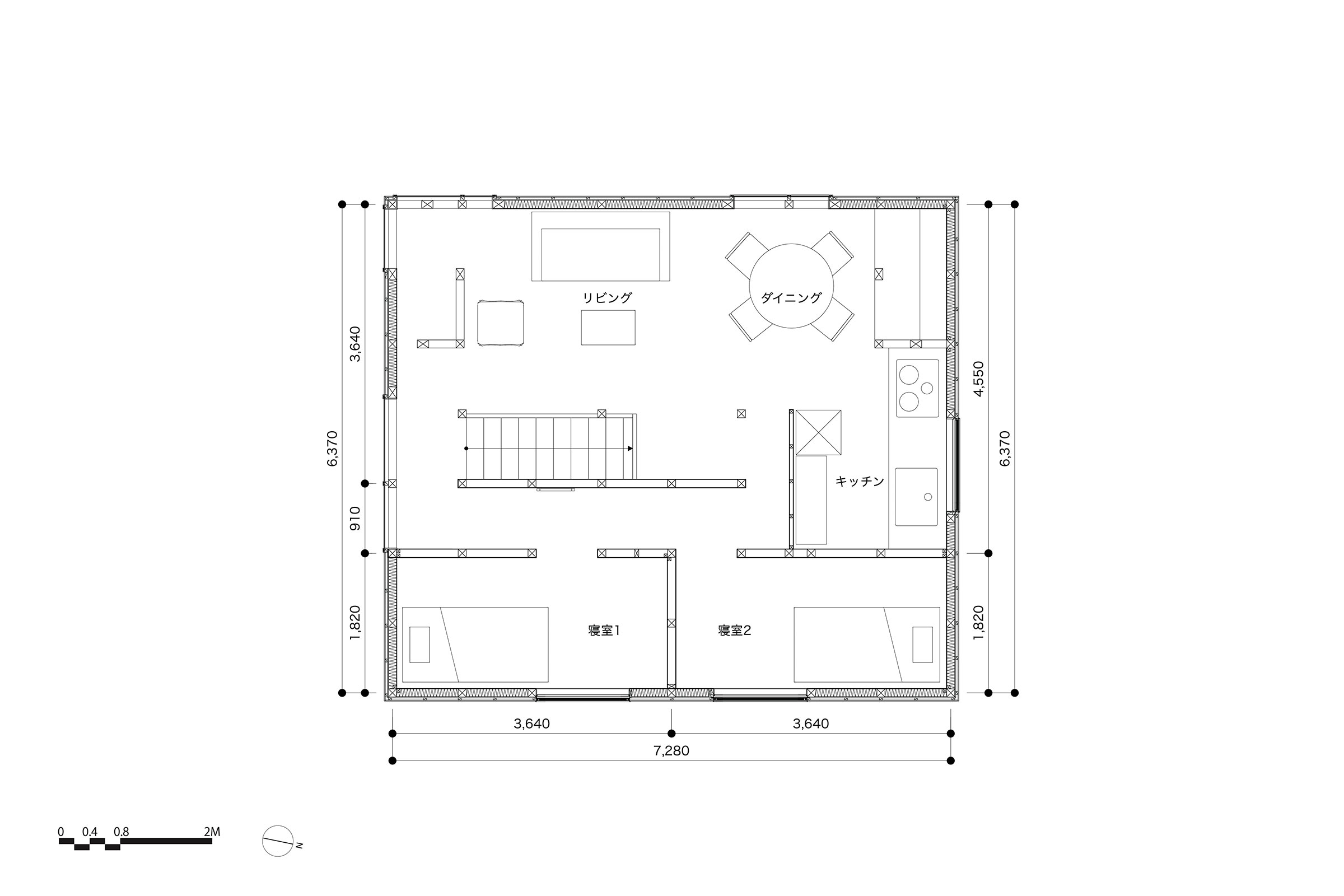
為在保留斜坡樹木與平地農圃的前提下實現通透的景觀視野,設計師採取了一個大膽而清晰的結構策略:將一樓平面壓縮至最小,二樓則向四周大幅懸挑出去,形成視覺上輕盈漂浮的量體。懸挑構成意味著建築的主要重量集中於少數柱腳,地面的草木與耕作空間因此得以完整保留,農圃不必妥協,樹木也不必退讓。
屋頂則進一步規劃了兼具閣樓與設備間功能的塔屋,讓居者可以越過木更津市街,遠眺東京灣與東京灣跨海大橋的壯闊海景。在極為有限的建築面積之內,空間向上延伸、向外眺望的企圖,遠遠超越了數字所能描述的尺度。






桁架、面材與斜撐的多重結構智慧
二樓四面懸挑的構成,對木造結構提出了嚴峻的力學挑戰。面向山坡那一側需要大面開口以引入景觀,設計師以桁架(truss)系統補強,在確保剛性的同時維持視覺的通透性;其餘三面鋪設高倍率結構面材,以剪力牆形式分擔整體的水平力與耐震需求。用以支撐懸挑部分的木構斜撐材因此延伸入室內,卻並非單純的結構暴露,而是與廚房層架及吊床角落整合,成為空間中兼具機能與趣味的視覺元素。
在木造在來軸組工法的框架下,結構邏輯與生活場景達到一種難得的自然契合,讓居者在日常使用中便能感受到力的存在與流動。






杉木與鍍鋁鋅鋼板,寫給歲月的低維護備忘錄
外裝材料的選擇同樣反映出設計師對業主生命週期的長遠考量。一樓採用杉木羽目板作為外牆面材,質樸的木紋與周遭山坡植被相互呼應,帶出一種從土地中自然生長出來的視覺語感。
日本杉木在傳統民家與農舍中本就是外裝常用材,耐候且易於在地取材,在此選用亦呼應了千葉縣森林組合的協力背景。二樓以上改以鍍鋁鋅鋼板收整,此種材料耐候性佳、不易鏽蝕,即使業主年歲漸長,仍可將保養負擔維持在極低水準。木材的溫潤與金屬的冷靜在立面上並置,形成跨越材質年代的對話,也讓整棟建築在輕盈形體之外,多了一層時間積累後的沉靜厚度。




郊外的失落記憶與重新發現的可能
戰後日本以田園都市為理想藍圖,在各大城市周邊大規模推進郊外住宅開發,雛壇分割的敷地一度被視為都市人的夢想棲居。然而世代更迭之間,土地被不斷細分,庭木逐一砍除,取而代之的是整齊的混凝土圍牆、石礫地坪與遮雨棚式車庫,自然氣息被逐步驅趕至生活的邊緣。
「G先生之家」的業主卻以十年如一日的方式,以鍬翻土、以火取暖,用最素樸的勞動維繫人與土地之間的情感聯結,恰恰是對郊外失落史的反向回應。在這樣的脈絡下,一棟面積精省的週末住宅,承載了遠超過居住功能的文化意義。






「過日子」而非「住房子」的郊外新想像
設計師談及此案時,以日文的「暮らす(生活)」與「過ごす(度過時光)」兩種動詞劃分出關鍵差異:前者以生產效率為軸心,後者以感受節奏為重心。在土地的氣味、草葉的觸感、風的走向與火焰的搖曳之間,人重新回到感官的維度,找到一種在都市生活中日益稀缺的豐盛質地。能以閒適的步調感受泥土、草木、風與火,或許是當代生活中最奢侈也最真實的享受。
「G先生之家」面積不大,卻以謙遜的姿態與精準的結構策略,為郊外團地的生活型態提供了一個具示範意義的案例——說明了郊外不只是退而求其次的居所,在適當的設計介入下,完全可以是一處讓人活得有滋有味的所在。







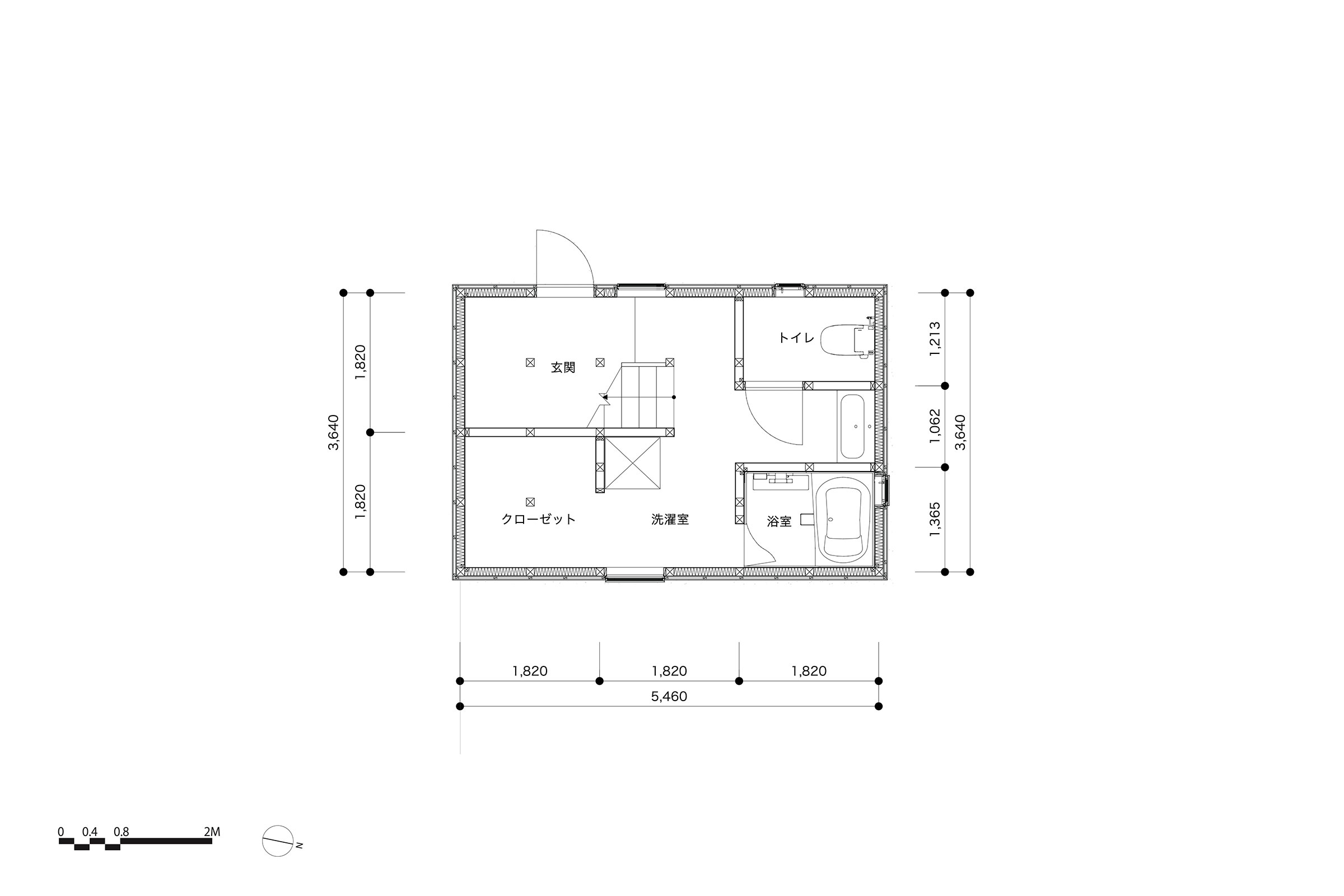
建築圖







