通往祖魯王國的文化門戶
在南非的港都德班(Durban),一座全新的地標性建築應運而生,它就是納爾遜・曼德拉郵輪碼頭(Nelson Mandela Cruise Terminal),由南非建築師事務所 Elphick Proome 與 Vusa Collaborative 聯手設計,將之定位為通往「祖魯王國」的現代門戶,用以迎接前來探索這片土地傳統文化的全球旅客。
建築以強而有力的造型在港口與城市之間立下鮮明標記,即便身旁巨型郵輪宛如龐然巨獸,它仍舊憑藉濃厚的非洲意象突顯存在感。設計語彙大量取材自祖魯族的傳統工藝,將大地色調、充滿生命力的紋理,以及標誌性的三角圖騰,化為當代建築的表皮語言。



挑戰全球慣例的非洲色彩
此一碼頭的設計,最引人注目的,莫過於它對色彩的大膽運用。受到祖魯藝術的啟發,建築師選用了極具地方脈絡與識別度的非洲色系,這不僅讓建築本身充滿視覺張力,更形成一種強烈的宣言,公然挑戰了全球絕大多數交通建築所遵循的、那種約定俗成的中性化、標準化「處理」手法。
根植於在地的設計策略,使碼頭本身就成為一趟文化之旅的起點,在旅客尚未踏上南非的土地之前,便已透過建築,預先感受到了非洲大陸的熱情與奔放,可謂別出心裁。



巨量人流與彈性空間的雙重解方
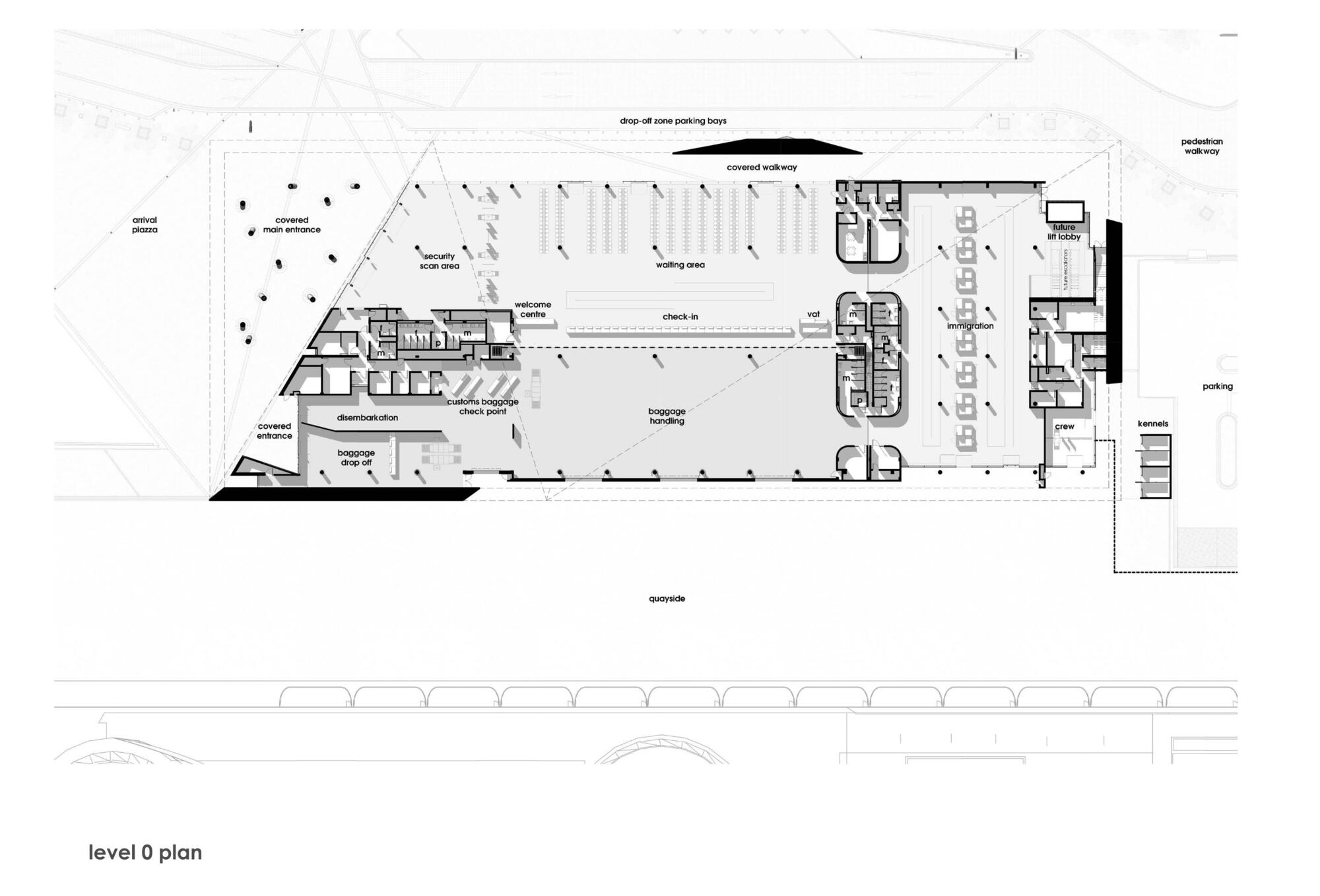
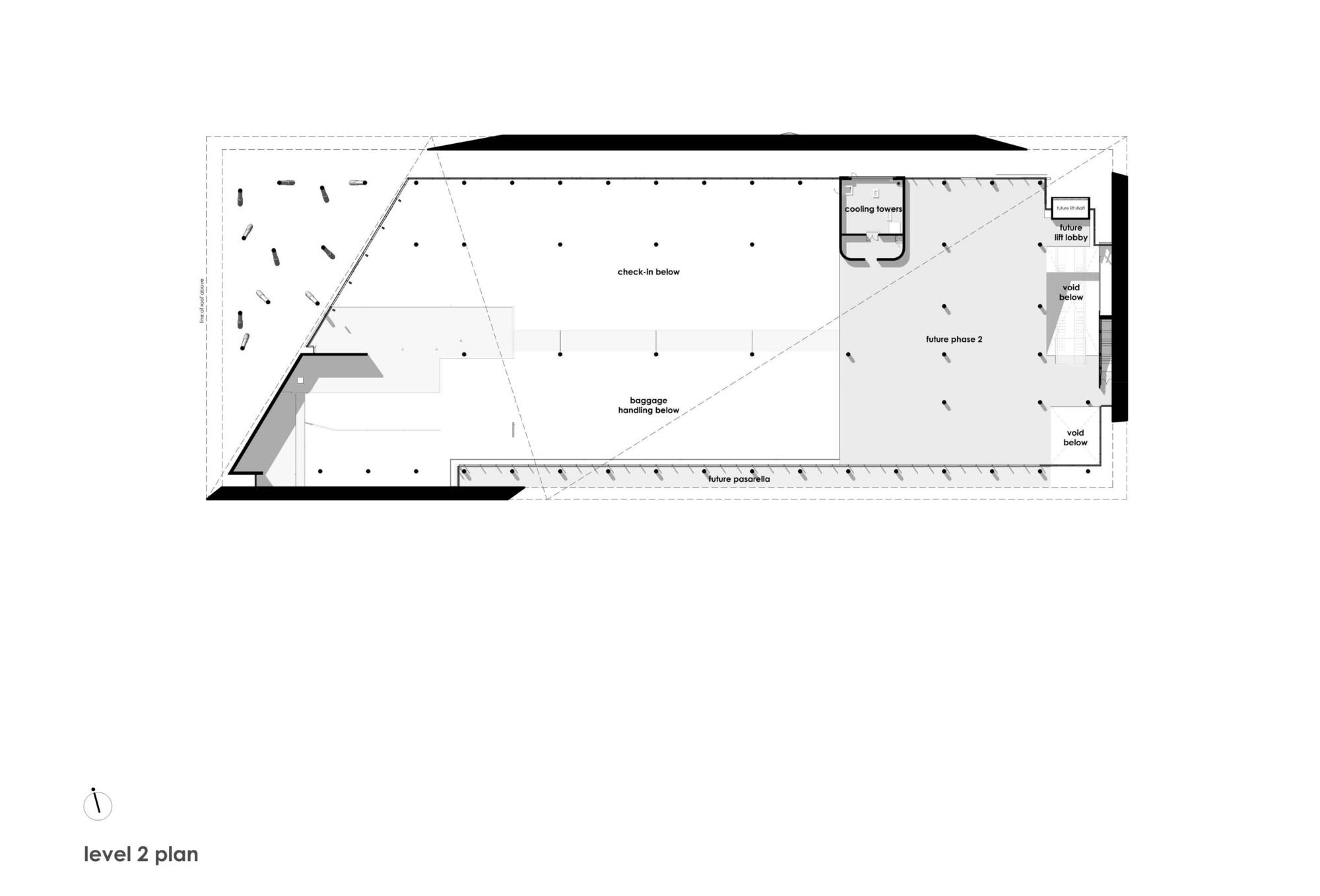
郵輪碼頭的營運特性,是在極短的時間範圍內,需要疏導極為龐大的人流。為此,清晰易讀的單層平面規劃,成為設計的根本。每日高達六千人次的旅客進出,對動線的流暢度與效率提出了極高的要求,從車輛動線、旅客下客區到行李處理,每一個環節都經過縝密的計算。與此同時,設計還前瞻性地考慮到資產的活化問題。在郵輪不行駛的五個月淡季期間,碼頭內部一道巨大的隔牆能夠完全滑開,使整個空間搖身一變,成為一座多功能的會議中心,展現了卓越的經營彈性。



結構力學成就的建築詩篇
從本質上看,此案是一座擁有超大跨距的巨型棚式建築,其結構的完整性,需要一套非比尋常的解決方案。建築師創造性地採用了一致的1.2公尺深的鋼構系統,作為主要的結構區域,外部則覆蓋著壓製成型的鋁板。這項技術不僅應用於垂直牆面,也延伸至微斜的水平屋面,更關鍵的是,它促成了一道極長的北向懸臂結構。這道令人嘆為觀止的懸臂,僅由單一的支撐點錨定,不僅展現了高超的結構力學計算,也為建築帶來了輕盈飄逸的戲劇性效果。




非洲式格網下的戲劇性張力
為了支撐廣闊的頂篷,並與寬敞的戶外廣場相接,結構柱的佈局也跳脫了傳統的棋盤式格網。設計團隊以一種隨機排列的「非洲式格網」來設置柱位,呼應了整體設計的文化主題,更增添空間趣味與不確定性。棱角分明的建築主體,在幾個關鍵的策略性位置,才輕巧地與地面連接,此種設計手法,是為了極大化地突顯懸臂結構的視覺張力與漂浮感,讓整棟建築物彷彿隨時準備好要迎風啟航,充滿動態的美感,令人過目難忘。



多重危機下的營建管理典範
建築誕生過程本身就是一則充滿挑戰的傳奇。它的建造期,正值新冠肺炎疫情最嚴峻的時刻,整個團隊必須在極度艱困與複雜的環境下作業,全球性的物料採購短缺,更讓工程雪上加霜。此外,作為一個在國家特許土地上的私人開發案,建設融資也面臨嚴重的衝擊。不僅如此,南非政府對於扶植新興承包商的平權法案要求,也增加了施工管理的複雜度。儘管困難重重,此案最終仍在嚴格的時程與預算控制下,順利於2022年郵輪季前開幕。


溫柔調度的迎送儀式
建築師對於旅客體驗的細膩關照,體現在屋頂形式的巧妙設計上。微緩摺疊的屋頂,像一隻溫柔的手,引導著空間的流動與人們的視線。當旅客準備離境時,屋頂的形態會將他們的目光,自然而然地導向碼頭邊的巨輪與遠方的大海。反之,當旅客抵達時,精心安排的開窗,則框取了城市的天際線與歷史城區的景致,彷彿一幅迎賓畫卷在眼前展開。經過精心編排的體驗序列,具體化了「門戶」的抽象概念,更內在地彰顯了此一碼頭作為東道主的歡迎精神。
建築圖





作品資訊
作品名稱:德班納爾遜・曼德拉郵輪碼頭 Nelson Mandela Cruise Terminal
作品位置:南非 Durban
作品類型:交通設施、公共建築
設計單位:Elphick Proome Architecture, Vusa Collaborative
總樓地板面積:6400 平方米
竣工:2021年
攝影:Karl Beath Photography, Maxine Elphick Photography
主要建材:Lafarge, Marley Eternit, Marmoran
主持建築師:George Elphick, Greg Gordge
專案團隊:Elphick Proome Architecture
室內設計:Novospace
都市計畫:GAPP
專案管理:Turner & Townsend
工料測量:Turner & Townsend
土木工程:ARUP
機電工程:ARUP
營造廠:Stefanutti Stocks Building KZN