自19世紀末,位於上海南京西路以南,石門一路以西區域的張園便被稱為「滬上第一名園」,是中國清朝末年上海最大的市民公共活動場所,被稱為「近代中國第一公共空間」,推動了中國的都市生活及上海的海派文化。2022年,在張園修繕後重新開幕之際,藍瓶咖啡(Blue Bottle Coffee)邀請如恩在石庫門老宅中,打造出一個以咖啡為對話媒介、融合滬上生活方式的當代社群空間。

如恩設計捕捉城市脈絡與紋理
張園滿載著這座城市的集體記憶。如同木心筆下所描繪的景象:「傍晚日光西射,建築物構成陰帶,屋裡的人都螃蜞出洞那樣地坐臥在弄堂裡」。上海的里弄,阡陌縱橫。而生活在其間的人們,總是能在這享受片刻閒暇。如恩設計希望捕捉城市的脈絡與紋理,為當地居民與往來旅客編織一段敘事之旅。




出於歷史保護的原則,建築立面與天井的原有磚牆和門窗均得到了保留,延伸至室內,成為了設計師創作的語境及畫布。如恩回溯建築的本源,在室內建入了一個原始的屋舍。這個簡易的「庇護所」作為動線的交匯之處、空間的視覺焦點,是咖啡師精心調製飲品的吧檯區域。





屋舍與建築磚牆之間的帶狀空間,宛如一條室內里弄,將主空間與天井連接起來。在其間,放置三兩長椅,幾件小桌,倚窗而坐,彷彿回到舊日上海的石庫門生活。





倚窗而坐,娓娓而談
為了與既有建築的歷史紋理形成對比,如恩對屋舍的結構與構造節點進行了反覆的研究與推敲,使其儘可能的輕盈。屋架通體採用和紋不鏽鋼,屋頂則是由沖孔彎折鋼板製成。這些材料微妙且模糊地反映了周圍的環境。


里弄居民的「公共空間」啟發如恩設計
在過去的上海,居民會在建築立面搭建簡易構架,將私人空間延伸至里弄之間形成私人擁有的「公共空間」與鄰里相接,如恩設計受到居民自發的營造行為啟發,將建築中原有的結構柱以金屬桿件稍作連接,實現了燈軌、邊桌、長椅和展示陳列等機能。
店內除了品牌傢俱以外,還精心添置了的傳統老傢俱。歲月留下的痕跡,也為這間新舊交融的藍瓶咖啡帶來了一份暖意。







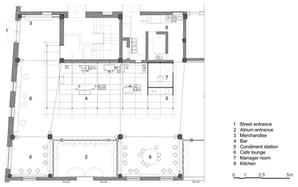
建築圖



作品資訊
作品名稱:廬 · 藍瓶咖啡張園店
作品位置:中國上海市靜安區茂名北路240號W5-1A
作品類型:室內設計、咖啡廳、餐飲空間、舊建築改造、舊建築再利用
竣工:2022年11月
業主:藍瓶咖啡
總樓地板面積: 175平方公尺
主持建築師:郭錫恩、胡如珊
主持協理: 李秋橙
設計團隊:張佳馨,陳僖,鄒佩錚,周上雲,吳震海,洪明月
室內設計:如恩設計研究室
軟裝設計及採購:設計共和
施工總包:上海藍頂裝飾工程有限公司
