回應義大利建築大師阿爾多.羅西(Aldo Rossi)「建築是社區記憶載體」的理念,odd設計事務所遠離塵囂的河北金山嶺阿那亞,於山谷小鎮街角悉心規劃了「燃炙屋」日式烤肉店與「山谷豆腐工坊」。這兩處緊鄰的社區建築,分別運用水洗石、老木板及大面窗、木格柵等語彙,回應山野環境,串起自然、食物與人文的連結,為尋求精神出口的都市人,提供充滿溫暖煙火氣與手作趣味的敘事場景。

山野交界的精神出口
相較於秦皇島阿那亞(Aranya)人聲鼎沸的景象,坐落於河北承德,介於城市邊緣與蒼茫山野之間的金山嶺阿那亞,更像是一處為現代都市人預備的心靈庇護所與精神出口。此地遠離塵囂,提供了一種截然不同的生活步調。就在這片靜謐山谷小鎮的尋常街角,odd 設計事務所受託規劃了兩棟引人注目的社區建築——「燃炙屋」與「山谷豆腐工坊」。它們不僅僅是餐飲空間,更是設計團隊企圖串聯起周遭豐沛自然、在地食物風味以及濃厚人文底蘊的觸媒,為這片新興社區注入活水。
建築不是孤立的存在,而是社區記憶的載體(Architecture is not an isolated existence, but a vessel of community memory.)
_阿爾多·羅西 Aldo Rossi

承載社區文化的容器
建築大師阿爾多.羅西(Aldo Rossi)曾言:「建築不是孤立的存在,而是社區記憶的載體。」odd設計事務所深諳此道。他們認為,現代社區所渴求的,早已超越單純的植栽綠化;人們更需要的是一種可以深度參與、互動的生態系統。
設計必須讓自然真正成為芳鄰,讓文化滲透為日常,使空間本身成為自然與文化積極的參與者與塑造者。儘管「燃炙屋」與「山谷豆腐工坊」兩棟建築比鄰而立,提供的服務內容各異,但在內核深處,它們遵循著相同的設計邏輯,謙遜地回應著與地域環境的關係,期望牆體學會傾聽往來人們的故事,屋頂懂得溫柔地收集山谷的陽光。

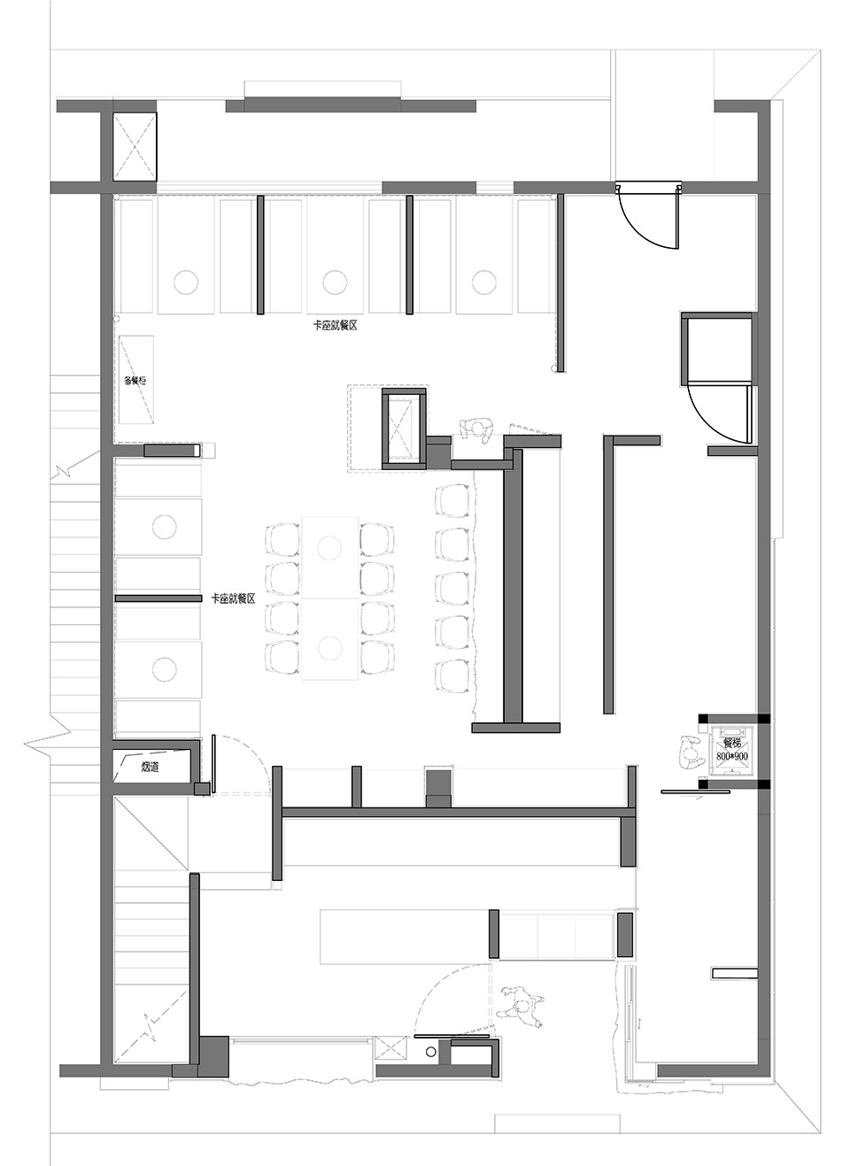
燃炙屋的市井氣息
盤踞在街角轉彎處的「燃炙屋」日式烤肉店,自然而然地承接了周邊巷弄那股樸實無華的市井生活氣息。建築外觀選擇了帶有手感溫度的水洗石塗料作為基底,巧妙搭配著飽經風霜的老木板與線條俐落的金屬屋簷,共同勾勒出簡潔明快的幾何輪廓。特別是入口處設置的開放式售賣檔口,它打破了建築的封閉性,積極地融入街道紋理,成為街巷景觀的有機組成部分,自然地與社區居民及往來遊客形成親切的互動關係,重現了傳統鄰里間的溫暖交流。


暖陽下的山居記憶
步入「燃炙屋」內部,高達五米的挑空區域豁然開朗,不僅創造了開闊舒展的空間視野,更為室內引入了豐沛的自然採光。想像那溫暖的陽光從高窗一側灑落,光影在粗獷的牆面上緩緩移動,空氣中瀰漫著烤肉的香氣與人們的歡聲笑語,一幅溫馨的山居生活圖景便在升騰的煙火氣息中徐徐構築。中央的燒烤吧檯與壁爐,是空間的靈魂所在,設計團隊特意選用了回收的老舊木材與帶有復古質感的石材,為空間平添了幾分歲月的沉積感與山野獨有的原始況味,讓人們在此能徹底放鬆。





山谷豆腐工坊
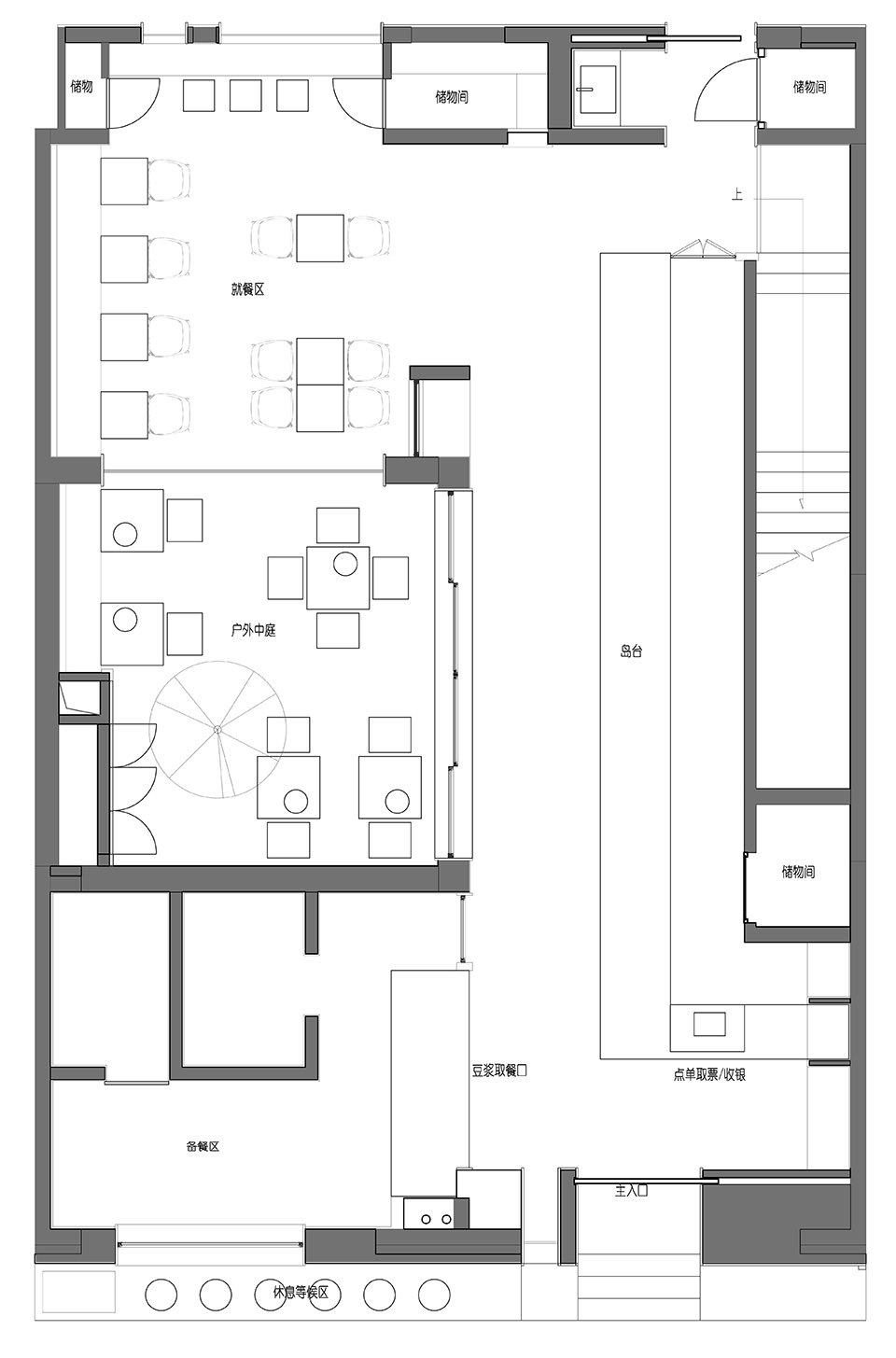
豆腐坊的敘事場景
「山谷豆腐工坊」則呈現出截然不同的氣質。它跳脫了傳統商業空間那種程式化的、可預期的結構佈局,轉而建構出一個以「豆腐」這項傳統食材為互動核心與靈感源頭的創新敘事場景。
建築立面運用大面積的留白牆面,與層層疊疊的深遠木屋簷相互搭配,創造出豐富而耐人尋味的視覺層次。最引人注目的是那大片的玻璃窗,路過的行人得以窺見廚房內師傅們忙碌的身影,以及製作豆漿時那蒸騰的熱氣,這種「被看見的製作過程」,直接傳達出手作食物的真實性與溫暖趣味。

建築大面積留白牆面與層疊的木屋簷搭配出豐富的立面層次。透過玻璃窗,行人可以窺見廚房內忙碌的身影和製作豆漿時蒸騰的熱氣,這種“被看見的製作”體現了手作的真實性和趣味性。工坊入口以10米長島台作為視覺引導,同時具有收銀、展示、儲物等功能。

光影交織的味蕾體驗
工坊入口處,一座長達十米的巨大島台成為強烈的視覺引導,它不僅界定了空間動線,同時身兼收銀、產品陳列與儲藏等多重實用功能。戶外的中庭則散發著山居生活特有的質樸與寧靜,食客們能在此處毫無遮蔽的空間裡,盡情感受山谷的陽光、清風與鳥鳴。室內的用餐區域,永遠瀰漫著現磨豆漿的濃郁香氣。當陽光穿過精心安排
的木質格柵,在溫潤的木質桌椅和牆面上灑下斑駁的光影時,整座工坊宛如一塊細膩溫潤的豆腐,輕柔地調動著食客們視覺、嗅覺、味覺乃至觸覺的全部感官體驗,回味無窮。


用餐區瀰漫著現磨的豆香,當陽光穿過木格,灑在木質桌椅和牆面上,整個工坊就像一塊細膩的豆腐,調度著食客的各種感官。


每當暮色籠罩山谷,這兩棟生長於街角的社區建築,便以它們特有的方式,續寫關於自然、食物與人的山居敘事。




作品資訊
作品名稱: 阿那亞燃炙屋與山谷豆腐工坊
作品位置: 中國河北金山嶺阿那亞
作品類型: 舊建築改造、餐廳、餐飲設施、室內設計、中國建築、中國建築師
業主: 燃炙屋、山谷豆腐工坊
設計單位: odd設計事務所
總樓地板面積: 580 平方米 (燃炙屋300平方米、山谷豆腐工坊280平方米)
竣工: 2024年
攝影: 銳景攝影
主創及設計團隊: 出口勉、岡本慶三、邸俊巍、李恆、葉貝、王朗旭、方圓