龐畢度出走:一場名為游牧的文化長征
龐畢度中心(Centre Pompidou)此座矗立於巴黎波堡區近半世紀的文化發動機,正為一場史無前例的蛻變做準備。自2025年秋季起,它將暫時拉下帷幕,展開名為「龐畢度2030」的浩大整建工程,預計至2030年重新開放。
此次閉館並非僅是修舊如舊的技術性維護,更是對建築本身石棉清除、結構防腐、能源優化等沉疴積弊的釜底抽薪,同時也蘊含著文化上的遠大抱負:重新連結創館時的烏托邦初心。
面對長達五年的空窗期,館方並未選擇讓典藏沉睡,而是擘劃出名為「星群」的館外計畫,化身為游牧大使館,將藝術、人群與活動帶往巴黎乃至世界各地。此場文化長征的首站,便選在歷史地標大皇宮(Grand Palais)的榮譽廳,展開別開生面的對話。






古典殿堂與高科技機器人的世紀對話
將臨時大使館設置於大皇宮(Grand Palais),此舉本身即為深思熟慮的策展行動,上演著兩造建築巨人間的無聲對話。落成於1900年萬國博覽會的大皇宮,是美術學院派(Beaux-Arts)風格的極致展現,以宏偉的石材、鋼構與歐洲最大的玻璃穹頂,彰顯第三共和國的文化輝煌與國力。
它代表著一種植根於歷史、秩序與國家榮光的古典烏托邦。與此形成鮮明對照的,是1977年開幕的龐畢度中心,它以「由內而外」的高科技建築語彙,將結構與管線悍然曝露,徹底顛覆美術館的傳統樣貌,成為一處反紀念碑式的、為大眾服務的文化機器。當此一現代主義的叛逆者,以柔軟、暫時的姿態進駐古典主義的殿堂,兩種截然不同的時代精神與美學理想在此交鋒,耐人尋味。




未竟烏托邦的溫柔變奏與當代應答
此場展演的核心精神,可謂是對一樁建築史傳奇的遙遠應答。活動直接命名為「歡樂宮殿」(Fun Palace),公然向1960年代建築師塞德里克.普萊斯(Cedric Price)與劇作家瓊.利特爾伍德(Joan Maud Littlewood)聯手構思的未竟之作致敬。
普萊斯的藍圖,描繪的並非傳統建築,而是一所巨大、可隨時變動的「街道大學」與「歡樂實驗室」,一套由鋼架與可插拔模組構成的開放系統,讓使用者能隨心所欲地創造自己的學習與遊樂環境。此種前衛的賽博格(cybernetic)建築概念,深深影響著包括龐畢度中心原建築師在內的後世設計者。
如今,龐畢度中心藉由這次的館外計畫,重新啟動深植於自身血脈的烏托邦基因,但它並非生搬硬套,而是對前人遺產進行一次溫柔的批判性轉化,別出心裁。






織物為袍:Ossidiana工作室的感官建築學
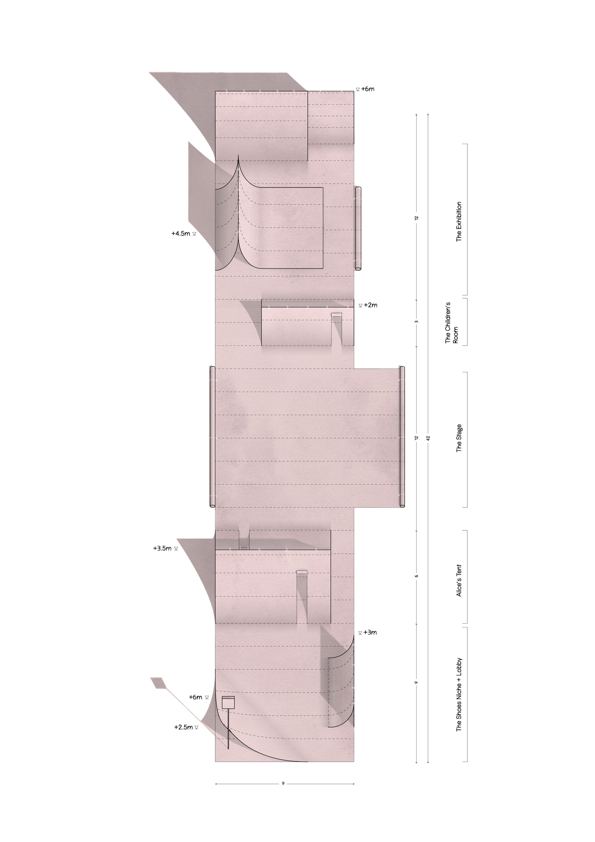
負責將此概念化為實體的,是駐於鹿特丹的 Studio Ossidiana ,由義大利建築師亞歷山德拉.科維尼與喬瓦尼.貝洛蒂主理。他們的作品向來遊走於建築、藝術與地景之間,擅長以詩意手法探索人與萬物的共存之道。此次,他們跳脫慣用的混凝土材料研究,選擇以「織物建築」的輕盈手法,構築出名為「柔軟宮殿」(Soft Palace)的空間。此一裝置宛如一張巨大的粉紅色毛氈地毯,被隨意地摺疊、捲曲,形成一件可供穿梭探索的龐大衣袍,每一處皺褶與口袋都可供人棲居。這種刻意為之的非正式感,運用材質本身的柔軟與溫潤,誘使人們脫下鞋履,隨地坐臥,從根本上改變公共空間的身體經驗與社交儀式。






身體即展演:從被動觀看走向集體編舞
「柔軟宮殿」的設計意圖,在於徹底瓦解傳統美術館中觀者與藝術品之間的僵硬界線。設計師構想的此處,既是舉辦大小集會、展覽與表演的公共舞台,亦是個人可以尋得片刻寧靜、隨意躲藏小憩的私密庇護所。這種容納動靜光譜的空間,打破單一功能的侷限,讓每位來訪者都能找到自處之道。
設計團隊的期許是,讓每位訪客都成為「日常展演的集體編舞中,既是演員又是觀眾」的角色。在此,個人的行走、交談、休憩等日常舉動,都匯集成一場不斷流變的集體演出。相較於坂茂為攝影師寇伯特設計的「游牧美術館」那般精妙的藝術「容器」,「柔軟宮殿」更像社會性的「催化劑」,藝術的內容由參與者的互動即時生成,生生不息。



共享愉悅:一座測試未來社群的臨時實驗室
此座織物宮殿,實為一場為期十天的跨領域文化盛宴的核心。整個「歡樂宮殿」活動,在哲學家埃馬努埃萊.科恰的協作下,以探討「共享的愉悅」為題,安排密集的論壇、舞蹈、音樂表演、烹飪體驗,甚至還有藝術家愛麗絲.巴克內爾設計的互動電玩。此座空間裝置因此不只是一件靜態雕塑,更是一處充滿活力的「生活實驗室」,一處測試社群連結與公共幸福可能性的臨時場域。此種前瞻性的文化探針,由龐畢度中心與大皇宮聯合製作,並獲得香奈兒文化基金會支持,昭示一種公私協力的新模式。它並未提供一套關於未來的標準答案,而是提出一道根本詰問:我們該如何共同生活?並將答案留給每一位親身參與、共同創造這段短暫烏托邦經驗的人。



