空間新生:挑戰巴淡島「店屋」建築舊制
位於印尼廖內群島省巴淡島(Batam)的 ITSUMO 甜點店改造計畫,由印尼建築師事務所 kousou 與業主攜手構思,意圖挑戰當地建築慣性。巴淡島受惠於自由貿易區地位,都市擴張飛快,「店屋」(ruko,結合商業與居住的東南亞典型建築)因此大量湧現,多數偏重實用而忽視美感。團隊因此希望透過此案,在功能與設計之間尋求新平衡。
此餐飲設施不僅是業主的第一家店,更是她親自設計的起始之地,因此對於建築團隊而言,其意義非凡。改造的目標,便是要將建築的價值從單純的零售空間,提升至更高層次的空間感知,賦予這棟「店屋」超脫日常的建築語彙,為巴淡島的城市肌理注入一股清流,不再受限於僅追求效率與實用的過往。





靜心之所:自然材質構築城中謐境
業主對於品牌發源地要有「大膽宣示」的遠見,是這項計畫的核心推動力,意味著必須跳脫巴淡島慣見的實用主義與快速開發下的建築面貌,擺脫充斥著鮮豔、人工材料的喧囂環境。設計團隊刻意走上反其道而行的路子,期望創造一處安靜、細膩且根植於自然材質的體驗空間。
最終,這種設計理念在一面醒目的白色極簡主義立面中具體化,透過其純粹的線條與內斂的色彩,輕聲預告了內部將呈現的寧靜氛圍,彷彿在城市叢林中闢出一方靜謐的港灣。它不僅是一種視覺上的區隔,更是設計者對城市喧囂的溫柔抗議,訴說著建築也能成為心靈的庇護所。






形塑個性:ITSUMO品牌識別的地域語彙
另一項關鍵的設計驅動力,是為ITSUMO的每一個據點賦予其獨特的身分標誌。有別於峇里島建築(Balinese Architecture)中常見的流動、豐滿的紅色曲線美學,巴淡島的分店則明確要求更為嚴謹、俐落的幾何線條——這是一場有意識的對比。
設計團隊將黑色設定為主要色彩,並從日本前衛時尚(Japanese avant-garde fashion)那種層次豐富的質感中汲取靈感,營造出一種內斂而沉穩,卻又自信且層次分明的空間感受。不僅確立了ITSUMO在巴淡島的獨特形象,也透過色彩與線條的選擇,巧妙呼應了日本設計中那種極致的細膩與精準。




詩意引領:雨水天井與光影的自然對話
這項計畫的一個核心要素,源於業主對於「雨水」的特殊情感連結,這也催生出一個引人入勝的創新設計——室內天井,讓自然光線與雨水能夠融入室內空間。然而,將這些靈感轉譯為實際的建築語彙,卻充滿挑戰。
首先,要創造一個具有識別度的建築地標,同時又要融入周遭環境,必須在極簡形式與具紋理的內斂立面之間取得精妙平衡,以達成一種「低調而強烈」的聲明。其次,考量到室內主色調為黑色,如何避免空間顯得沉悶壓抑,成為另一大課題。為此,團隊深入研究了各種天然黑色或可染色的材質,例如石材、金屬與木材,以期透過材質本身的質感變化,為沉穩的黑色調注入生氣。




質材對話:構築和諧與深度的空間哲思
在ITSUMO的室內設計裡,設計師將天然灰色混凝土與各式黑、棕色元素並置,不僅創造出和諧的視覺效果,更增添了空間的層次與深度。其中最具詩意的挑戰,莫過於滿足業主「將雨水引入室內」的渴望。
建築師精心開發了隱藏式的雨水槽系統,將其巧妙地設置於立面牆與天窗之間。如此一來,在風雨交加之際,受控制的雨水便能順著特定路徑滴落至庭院,同時也兼顧了自然通風的需求。另一組隱藏式排水槽則負責將多餘的水導向外部,確保功能性與美學的兼備。這套設計不僅將業主對雨水的鍾愛具體化為建築的一部分,更將實用機能與詩意追求完美結合,展現了設計的非凡巧思。


信任共舞:建築師與業主的藝術昇華
ITSUMO的設計過程,還經歷了一種「完全信任」的特殊動態,這也構成了一項獨特的挑戰。長期以來,建築師們習慣於在各種限制條件下工作,而在此案中,他們卻享有罕見的藝術自由。這使得團隊內部的工作流程產生了轉變,建築師們反而成為了自身設計的「評論者」,不斷自我審視與精進。這種客戶的全然信任,最終演變成一場意義深遠的實踐,讓建築師能夠透過自身的藝術視角,將業主對於空間的本質渴望,轉化為具體的建築形式。這段歷程證明了,當信任的橋樑搭建完成,藝術的邊界便得以無限拓展,共創出超越預期的作品。


溝通循環:ITSUMO設計的迭代與協奏
究其核心,ITSUMO的建築實踐由「溝通」與「迭代」兩大主軸交織而成。建築師、業主與承包商之間維持不間斷的對話,對於專案的推進至關重要。而採納「迭代設計」(iterative design)的流程,針對每個細節反覆探索各種可能性,則被證明是不可或缺的。Room Studio工匠們的傾力投入與無數次的樣品製作,更是達成預期空間氛圍的關鍵。印證了建築作為一種協作性活動的本質,也使得團隊對既有基地條件產生了全新的欣賞,最終促成了將原始結構暴露並使其成為空間焦點的設計決策。

理念共鳴:建築超越地理界線的深遠啟示
總而言之,ITSUMO所傳遞的,是一個擲地有聲的宣告:有意義的建築,其價值足以超越地域的限制。儘管巴淡島普遍被視為一個重實用功能、輕視覺表達的務實城市,但設計團隊堅信,每一處空間都應當深思熟慮且以充滿創新的設計對待。ITSUMO正是這份信念的實踐,不僅展現建築所蘊含的轉化力量,更成功地挑戰了人們對於建築的既有假設。
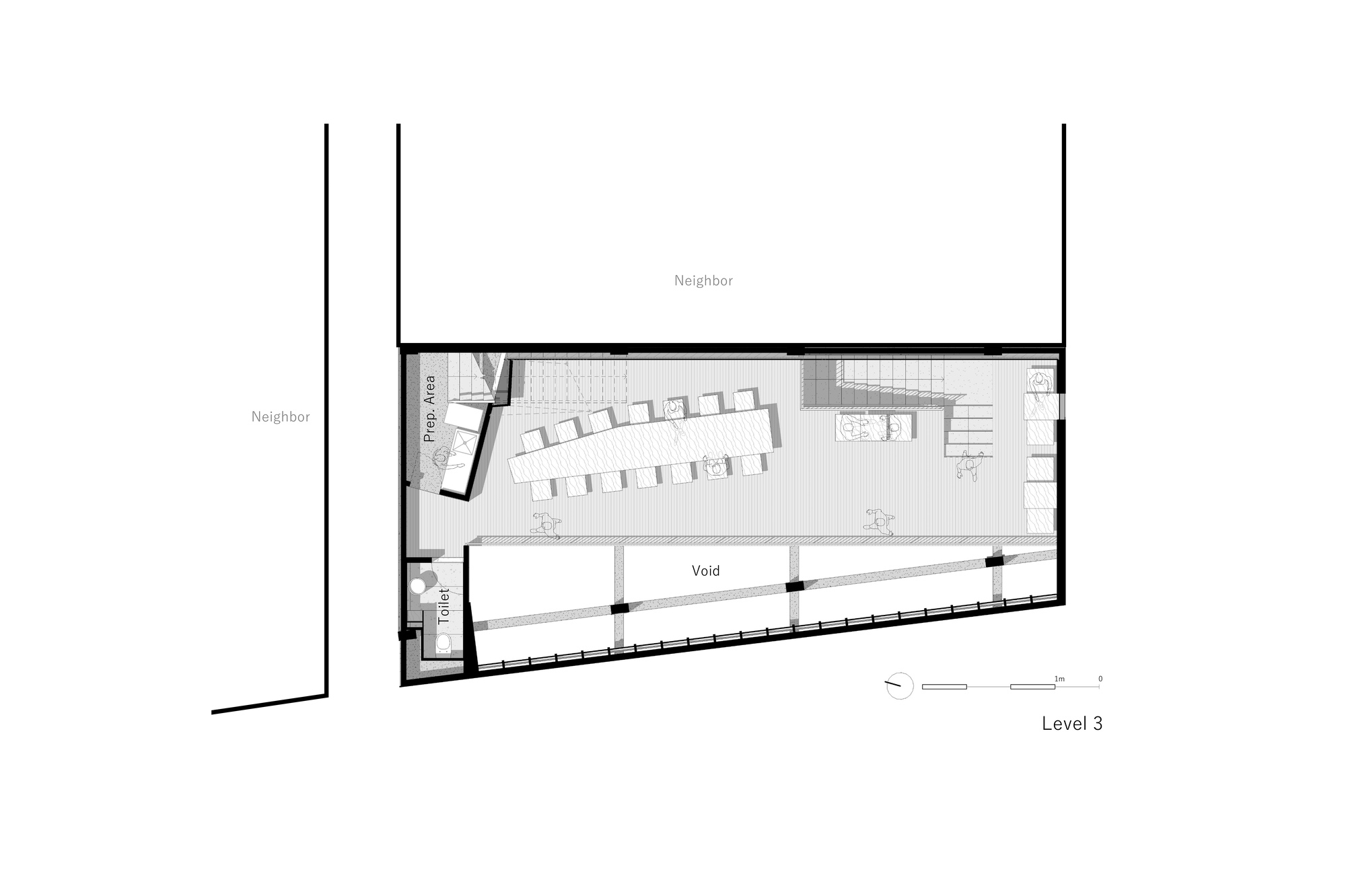
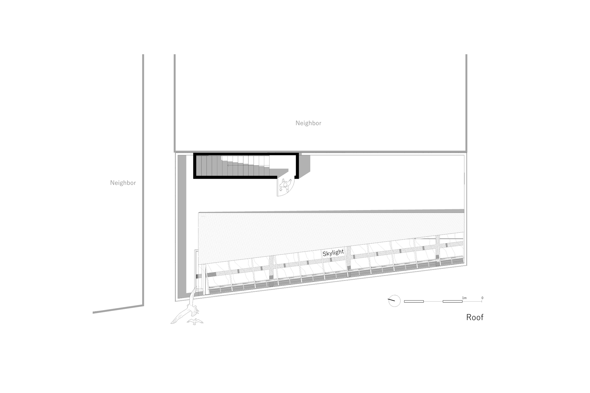
建築圖






作品資訊
作品名稱:ITSUMO Dessert Shop
作品位置:印尼 Kecamatan Lubuk Baja, Indonesia
作品類型:咖啡館、舊建築改造、餐飲設施、室內設計、印尼建築師、印尼建築
設計單位:kousou
總樓地板面積:300 平方米
竣工:2025年
攝影:Kung Photograph
主持建築師:Svetlin Petrov
專案團隊:Svetlin Petrov
燈光工程顧問:ERRELUCE
營造廠:Room Studio