重塑工業地景的長屋詩篇
在日本神奈川縣相模原市一片運轉超過半世紀的工業團地,千篇一律的廠房與建材構築出一幅灰色風景。當面前道路因都市計畫而拓寬,為舊事務所的拆建帶來契機,建築師野口修與DAT/都市環境研究室(DAT/株式会社 都市環境研究室)便懷抱一個信念:要將木造的溫潤感帶入這片無機質的街區。
他們預見,一旦視野洞開,這棟別出心裁的建築型態將如星火燎原,成為改變周遭環境的濫觴,為冰冷的工業地帶注入一股源於自然的人文氣息,重新定義工作場域的表情。

略顯雜亂的機能性場域裡,這座有著單斜屋頂的灰色量體,以其清晰的幾何造型與秩序感,成為一個沉靜而自持的存在。日本建築師野口修並未選用昂貴的材料去對抗環境,而是將鍍鋅鋼梯、金屬壁板等工業語彙重新編排,透過設計賦予它們嶄新的價值
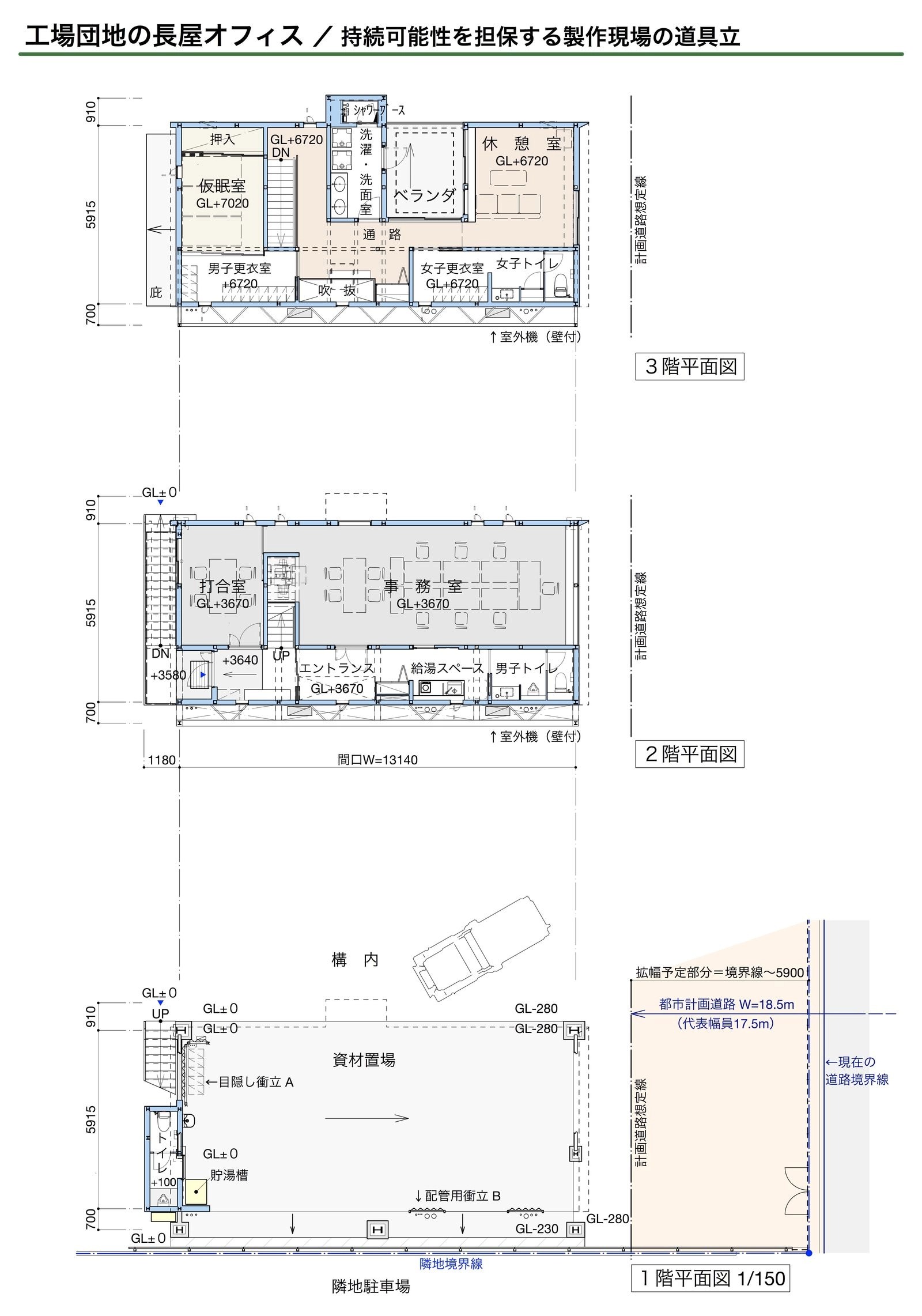
基地再編計畫圖:呈現新辦公室如何因應前方道路拓寬而生。舊建築拆除後,新量體策略性地配置於基地深處,解決了過往貨車裝卸動線與辦公空間相互干擾的窘境,更重新劃設出寬敞的戶外作業區域,透過理性的基地規劃,提升工廠整體的運作效率
辦公室呈現為一道長廊般的開闊空間,天花板大方地展露木造結構的序列感。溫潤的木質膠合樑、夾板牆面與天花,和深色的地板形成對比。家具選用基礎的會議桌椅,維持空間的純粹。窗戶引入了光線與周遭的工業地景



一脈相承的社群記憶與永續之道
此案的前身,曾是供職人住宿的場所,那種近似於傳統「長屋」(Nagaya)的生活感與人際間的緊密距離,深植於此地的記憶中。設計團隊敏銳地捕捉到現今工廠人員身上流動的相似氛圍,決定讓這份感覺一脈相承。
他們提出「道具立」(dogutate)概念,意即將建築本身視為一套工具,從結構、零件到材料的選擇,都鼓勵使用者「自己的空間自己修」,藉此建立起一種專屬於製造現場的永續模式,這種模式根植於社群認同,而非冰冷的規範。
建築外觀呈現為一個輕盈的銀色金屬盒子,由鮮明的紅色鋼骨高高抬舉。底層挑空的「pilotis」構造,直接回應了工廠貨車通行的機能需求。立面採用水平向的鍍鋁鋅鋼板,呼應周遭工業地景的語彙,頂層內凹陽台,則打破了量體的封閉感
建築東側立面展現獨特構造工法。鮮紅色的鋼骨與斜撐,刻意從主牆面脫開70公分,形成一道垂直的維護通道。所有的空調室外機與管線均被整合於此,便於日後檢修,也維持了主要牆面的完整性

底層挑空區域,展現極度誠實的構造美學。鮮紅色的鋼構與斜撐,定義出寬闊的半戶外工作暨通道空間。天花未加修飾,直接裸露出波浪狀的鋼承板,地面則是耐用的拋光混凝土地坪。設計滿足了貨車通行與暫存物料的機能,粗獷的工業感也與周遭環境相呼應



鋼骨與木材共生
為了滿足一樓資材置場需要高三米、寬十三米無落柱的開闊空間,以利貨物順暢搬運,最初的構想是在一個鋼骨構造的基座上,安放木造工作區。最終定案為四周採鋼骨圍束,二、三樓內部則為木構造的複合形式,其中為了支撐十三米跨距的大梁,甚至需要從上層結構以斜拉桿懸吊。鋼與木的接合,則透過一種名為「Panelyd Steel」的長螺絲將水平梁緊密縫合,宛若精密的編織工藝,因地制宜地解決了結構上的艱鉅挑戰。

樓梯扶手的細部設計,將建築外部的鋼骨語彙引入室內。管狀的鋼材彎折出簡潔的圓弧,並漆上與結構相同的鮮明紅色。在沉靜的深灰牆面與淺色木質家具旁,這抹紅色不僅是視覺焦點,也成為串連內外空間、引導使用者動線的鮮活線索

三樓的休憩區,清楚演繹了「長屋」的巷弄(路地)概念。一道長廊串連起各個單元,一側則以大面開窗迎向內縮的私密陽台。傾斜的屋頂下,外露的木樑、管線與溫潤的夾板牆面共同定義空間調性。窗下的臥榻式收納櫃,則為此處增添了濃厚的起居氣息


洗面室(洗手間)的設計,將「道具立」的務實精神展露無遺。天窗引入自然光,照亮了由夾板、深色壁板構成的線性空間。水槽下方的管線特意不做遮掩,直接裸露,將維修的便利性置於首位。這種直白的設計手法,從公共空間一路延伸至後勤場域,貫徹了整棟建築的設計主張

理性區劃下的生活溫度
因應業主希望「辦公與生活空間必須明確區分」的要求,內部空間的佈局煞費苦心。二樓被設計成一個水平延展、一氣呵成的辦公區域,有利於團隊溝通與協作。相較之下,三樓的構成則明顯受到「長屋」概念的啟發,沿著一條充滿巷弄(路地)意象的走道,串連起各個休憩室與生活空間,重現了傳統鄰里關係的空間趣味。面向嶄新道路的北側立面,更設置了大面積的開口,讓溫暖的木質內裝得以向外張望。

樓梯間是整棟建築的垂直樞紐,集結了此案的關鍵設計語彙。溫潤的木質階梯與夾板牆面,對比著深灰色的壁板;鮮紅色的扶手則化為一道引導動線的視覺彩帶,串起不同樓層
三樓廊道空間,將木構造的魅力展露無遺。厚實的木樑、木柱與桁架,在傾斜的屋頂下構成空間的主要韻律。陽光自天窗灑落,在深色地板上形成溫暖光斑。欄杆採用黑色金屬網搭配木質層板,通透的工業質感,與樸實的木構造、夾板牆面共同圍塑出長屋巷弄般的靜謐氛圍
信手拈來的「道具立」哲學
為了讓建築成為一套使用者可以輕易上手的「工具箱」,各處的零件選擇都以通用性為最高原則。例如,將尋常的建築五金轉用於樓梯的支撐構件,或把電工材料組合改造成別具一格的照明燈具,這些做法讓後續的增設或維修變得直觀易懂。甚至,連扶手與隔屏的鋼製面板,也依據不同用途(懸掛安全帽、工具,或是作為綠化植栽的平台)選擇相異的類型,處處都為使用者的自主創造預留了伏筆。

建築,企業文化的無聲催化劑
營運這間工廠的業主,株式会社サンメイ(Sanmei Co., Ltd.),專門承攬巨型煙囪的維護與拆解工程,這是一項極度仰賴「團隊合作」的高風險專業。設計團隊從中得到啟發,認為建築若能成為一個促進互動、培養共同體意識的媒介,便能對企業文化產生潛移默化的作用。當建築的永續性,是透過使用者的投入與組織風氣的成長來灌溉,那麼,讓事務所化身為一套激發團隊精神的「道具立」,或許正是廠辦建築最關鍵的存在意義。

建築圖
配置圖與現況照片:顯示基地脈絡。建築坐落於被老舊廠房與物料包圍的無機質工業區,周遭景觀單調。然而,鄰近的車站區域正進行大規模再開發。在此新舊交陳的背景下,設計者企圖以這座溫潤的木造空間為起點,為單一的工業地景注入活水,踏出都市景觀革新的第一步

四向立面圖:顯示對應不同機能與座向的設計策略。面向道路的北向立面,以一處深邃的內凹陽台作為視覺焦點,大方地向外展示溫潤的木質內裝;東側立面則大膽地將紅色鋼骨結構外掛,形成一道整合管線與空調的維修足場,是「道具立」精神的具象化。相較之下,南、西兩側則顯得內斂封閉,以較少開口確保內部隱私。圖面詳列的鍍鋁鋅鋼板、窯業系壁板等標準化工業建材,產品型號說明此案的構成邏輯:一座由通用零件組裝而成、易於維護的精密機械,將永續性建立在材料的通用性與使用者自主修繕的可能性之上

軸測圖:可以看到建築的鋼構與木構混成構造,並圖解「道具立」概念。設計大量運用如波紋鋼板、鍍鋁鋅鋼板與有孔折板等通用建材,從外牆、屋頂到室內隔斷,皆為方便使用者日後自行修繕。三樓仿照「長屋」佈局,沿著走道配置休憩空間,二樓則為開放辦公室,清楚劃分出公私領域的機能分野
圖解顯示此案的混合構造工法:為求十三米無柱大跨距,建築以鋼構為基,並藉由上層的斜拉桿懸吊主梁。施工相片顯示,木構桁架與紅色鋼骨、藍色斜撐在現場交錯,構築出開放的內部空間。東側構面更外移七十公分,預留將來管線維護的足場通道
基地再編計畫圖:呈現新辦公室如何因應前方道路拓寬而生。舊建築拆除後,新量體策略性地配置於基地深處,解決了過往貨車裝卸動線與辦公空間相互干擾的窘境,更重新劃設出寬敞的戶外作業區域,透過理性的基地規劃,提升工廠整體的運作效率