巴西地景式機構建築群,桑坦德銀行坎皮納斯資料中心,半地下機房與水體庭園,創造永續且高效工作環境

0
760

地理位置與總體規劃

桑坦德銀行(Santander Bank)資料中心座落於巴西聖保羅州坎皮納斯市(Campinas),毗鄰坎皮納斯大學(UNICAMP)校區。這座由羅布卡波特建築與都市規劃事務所(LoebCapote Arquitetura e Urbanismo)操刀設計的建築群,總樓地板面積達8.5萬平方公尺,基地總面積達70萬平方公尺。整個園區規劃有三座獨立且自主運作的「資料處理中心」,出於安全考量和營運策略,各中心之間相距約500公尺。這種分散式配置不僅強化系統安全性,同時也顧及災難復原能力,成為巴西金融科技建築的典範。

巴西坎皮納斯銀行數據中心(Santander Datacenter) LoebCapote Arquitetura e Urbanismo

巴西坎皮納斯銀行數據中心(Santander Datacenter) LoebCapote Arquitetura e Urbanismo

巴西坎皮納斯銀行數據中心(Santander Datacenter) LoebCapote Arquitetura e Urbanismo
坎皮納斯銀行數據中心位於聖保羅州坎皮納斯市,這裡毗鄰坎皮納斯大學。建築基地是一處700,000平方米的開闊地,設有三個獨立的數據處理中心,各中心之間相隔500米左右,這也是為了滿足安全和技術實施所需
巴西坎皮納斯銀行數據中心(Santander Datacenter) LoebCapote Arquitetura e Urbanismo
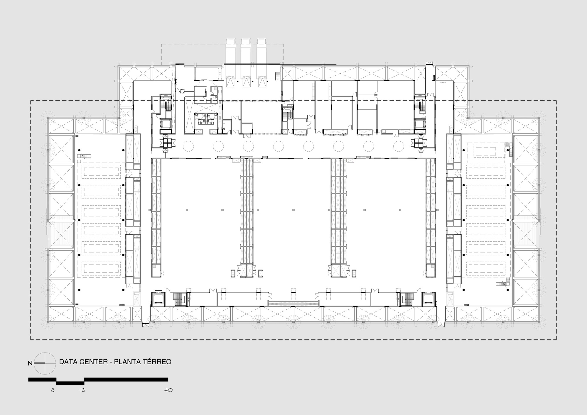
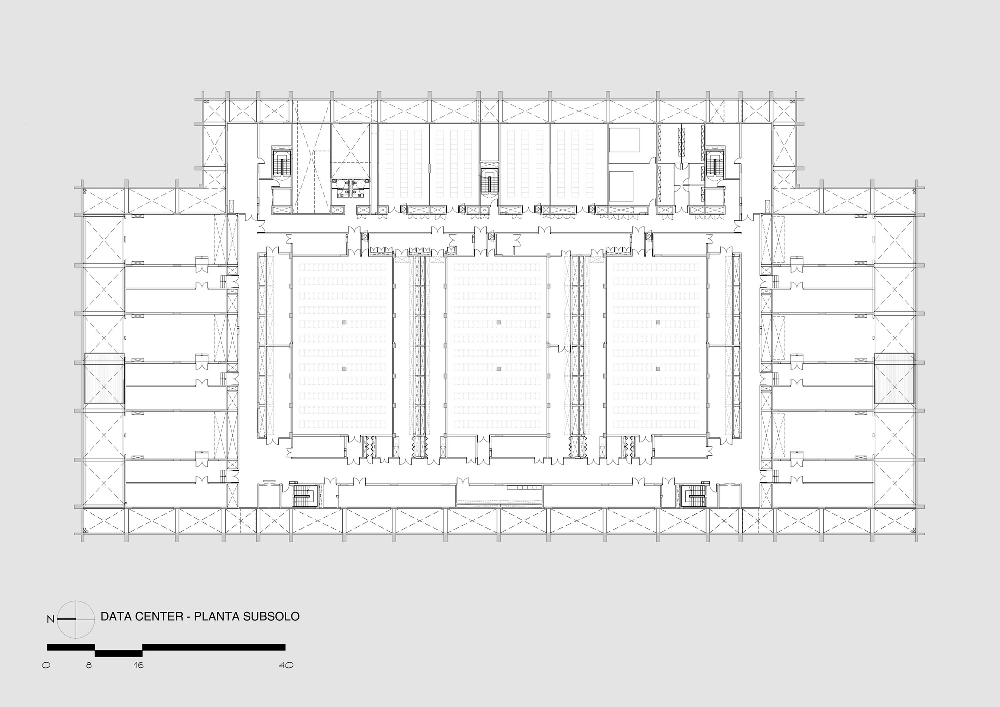
每個數據處理中心佔地25,000平方米,有三層樓,其中有兩層部分位於地下,整個建築看起來如同從地下生長出來的一株植物

巴西坎皮納斯銀行數據中心(Santander Datacenter) LoebCapote Arquitetura e Urbanismo

三座地景式機房:土方再利用創造的半地下建築群

每座資料處理中心總地板面積約2.5萬平方公尺,分布於三個樓層,其中兩層為半地下室設計。這些建築群在地貌中特別醒目,歸功於創新的挖掘工程理念—建造期間移除的土壤並未外運,而是在結構完成後回填。此一作法不但降低工程成本,更讓建築與周圍環境融為一體,形成起伏有致的地景建築。半地下室設計除了提供穩定的溫溼度環境,有利於伺服器運作外,也減少能源消耗,符合永續建築理念。建築外觀簡潔有力,展現高度安全性和科技感。

巴西坎皮納斯銀行數據中心(Santander Datacenter) LoebCapote Arquitetura e Urbanismo

巴西坎皮納斯銀行數據中心(Santander Datacenter) LoebCapote Arquitetura e Urbanismo
第一棟建築位於兩個相互獨立空間的中間,這個長條狀的混凝土結構包括接待室、工作室和服務大廳,周圍同樣包裹著混凝土石牆,這裡也充當著通向內部花園的通道。第二個中心採用了柵格式的玻璃窗設計,陽光透過天窗可以照射進房間。寬12米,長80米的水域位於中心前方,成為中心的有機組成部分。為了進一步完善數據中心的交通,這裡還配備了物流配送大樓、出入大門、公交車站地鐵站和停車場

巴西坎皮納斯銀行數據中心(Santander Datacenter) LoebCapote Arquitetura e Urbanismo

巴西坎皮納斯銀行數據中心(Santander Datacenter) LoebCapote Arquitetura e Urbanismo

巴西坎皮納斯銀行數據中心(Santander Datacenter) LoebCapote Arquitetura e Urbanismo

營運控制中心:監控機房樞紐的雙空間設計

營運控制中心(NOC)位於資料中心戰略性樞紐位置,對整座資料中心各部門都有操作管理權限。該中心由兩個相互依存的空間組成。第一空間容納接待處、工作室與服務區,是一座縱向建築,位於大型混凝土垂直結構與長石牆之間,形成內部庭園,可從工作區域進入,並配備安全防護系統。庭園設計讓工作環境更為舒適,石牆則提供視覺隱私與安全屏障,混凝土結構則展現建築力度。

巴西坎皮納斯銀行數據中心(Santander Datacenter) LoebCapote Arquitetura e Urbanismo

巴西坎皮納斯銀行數據中心(Santander Datacenter) LoebCapote Arquitetura e Urbanismo

巴西坎皮納斯銀行數據中心(Santander Datacenter) LoebCapote Arquitetura e Urbanismo

巴西坎皮納斯銀行數據中心(Santander Datacenter) LoebCapote Arquitetura e Urbanismo

巴西坎皮納斯銀行數據中心(Santander Datacenter) LoebCapote Arquitetura e Urbanismo

巴西坎皮納斯銀行數據中心(Santander Datacenter) LoebCapote Arquitetura e Urbanismo

巴西坎皮納斯銀行數據中心(Santander Datacenter) LoebCapote Arquitetura e Urbanismo

外牆剖面圖 Section 巴西坎皮納斯銀行數據中心(Santander Datacenter) LoebCapote Arquitetura e Urbanismo
外牆剖面圖 Section

水體與光影:複合式建築元素創造的工作環境

營運控制中心第二空間是容納操作中心及支援後勤室的大型建築體。此空間與內部庭園相連,庭園上方覆蓋混凝土蜂巢狀結構,讓日光透過但過濾陽光強度。一座寬約12公尺、長約80公尺的水體設計,為營運控制中心增添景觀層次。園區景觀復原了原有植被,道路系統則配合複合體物流需求而設計。多座策略性支援設施,如物流大樓、入口門戶、巴士站、變電站及不同停車區域,共同組成坎皮納斯桑坦德銀行資料中心複合體,使整個園區在功能與美學上達到平衡。

巴西坎皮納斯銀行數據中心(Santander Datacenter) LoebCapote Arquitetura e Urbanismo

巴西坎皮納斯銀行數據中心(Santander Datacenter) LoebCapote Arquitetura e Urbanismo

巴西坎皮納斯銀行數據中心(Santander Datacenter) LoebCapote Arquitetura e Urbanismo

巴西坎皮納斯銀行數據中心(Santander Datacenter) LoebCapote Arquitetura e Urbanismo

巴西坎皮納斯銀行數據中心(Santander Datacenter) LoebCapote Arquitetura e Urbanismo

巴西坎皮納斯銀行數據中心(Santander Datacenter) LoebCapote Arquitetura e Urbanismo

巴西坎皮納斯銀行數據中心(Santander Datacenter) LoebCapote Arquitetura e Urbanismo

巴西坎皮納斯銀行數據中心(Santander Datacenter) LoebCapote Arquitetura e Urbanismo

巴西坎皮納斯銀行數據中心(Santander Datacenter) LoebCapote Arquitetura e Urbanismo

巴西坎皮納斯銀行數據中心(Santander Datacenter) LoebCapote Arquitetura e Urbanismo

巴西坎皮納斯銀行數據中心(Santander Datacenter) LoebCapote Arquitetura e Urbanismo

巴西坎皮納斯銀行數據中心(Santander Datacenter) LoebCapote Arquitetura e Urbanismo

巴西坎皮納斯銀行數據中心(Santander Datacenter) LoebCapote Arquitetura e Urbanismo

巴西坎皮納斯銀行數據中心(Santander Datacenter) LoebCapote Arquitetura e Urbanismo

巴西坎皮納斯銀行數據中心(Santander Datacenter) LoebCapote Arquitetura e Urbanismo

巴西坎皮納斯銀行數據中心(Santander Datacenter) LoebCapote Arquitetura e Urbanismo

巴西坎皮納斯銀行數據中心(Santander Datacenter) LoebCapote Arquitetura e Urbanismo

巴西坎皮納斯銀行數據中心(Santander Datacenter) LoebCapote Arquitetura e Urbanismo

巴西坎皮納斯銀行數據中心(Santander Datacenter) LoebCapote Arquitetura e Urbanismo

巴西坎皮納斯銀行數據中心(Santander Datacenter) LoebCapote Arquitetura e Urbanismo

巴西坎皮納斯銀行數據中心(Santander Datacenter) LoebCapote Arquitetura e Urbanismo

巴西坎皮納斯銀行數據中心(Santander Datacenter) LoebCapote Arquitetura e Urbanismo

巴西坎皮納斯銀行數據中心(Santander Datacenter) LoebCapote Arquitetura e Urbanismo

巴西坎皮納斯銀行數據中心(Santander Datacenter) LoebCapote Arquitetura e Urbanismo

巴西坎皮納斯銀行數據中心(Santander Datacenter) LoebCapote Arquitetura e Urbanismo

巴西坎皮納斯銀行數據中心(Santander Datacenter) LoebCapote Arquitetura e Urbanismo


作品資訊

作品名稱:Santander Datacenter 坎皮納斯銀行數據中心
作品位置:巴西 Campinas
作品類型:機構建築、數據中心、企業總部、政府建築、辦公室辦公空間巴西建築師巴西建築
業主:Banco Santander
設計單位:LoebCapote Arquitetura e Urbanismo
總樓地板面積:85,000 平方米
竣工:2013年
攝影:Leonardo Finotti
主持建築師:Roberto Loeb, Luis Capote
協同建築師:Damiano Leite, Chantal Longo
專案團隊:Nicola Pugliese, Francisco Cassimiro, Camila da Silva, Noemi Fernandes, Erica Urbani, Luis Nogueira, Bernardo Fridmann, Estevam Martins, Vitor Lucas, Eduardo Escabeche, Emily Shayo, Maria Carolina Simões, Camilo Badue, Juliana Lovato, Rafael Leoni, Cristina Sin, Cecília Mesquita
管理:Typsa/Engecorps
監督:Banco Santander
結構工程:Acciona Engenharia Ltda
基礎工程:Infra Estrutura Engenharia Ltda
工程顧問:MHA Engenharia
照明設計:Franco e Fortes
LEED顧問:CTE
防水工程:PROASSP
聲學設計:Sresnewsky Consultores Associados
工業廚房設計:Studio Ino
視覺設計:UND
景觀設計:André Paoliello Paisagistas Associados
窗戶設計:Mário Newton Leme Consultoria de Esquadria Ltda
概念設計:IBM
數據中心工程:Innovative Borsoi
砌體工程:Addor e Associados

Leave a reply

Please enter your comment!
Please enter your name here

這個網站採用 Akismet 服務減少垃圾留言。進一步了解 Akismet 如何處理網站訪客的留言資料